MEIN ERGEBNIS ANPASSEN

Helle 3-Zimmer Citywohnung (Heizkosten inkl.) - Objektnr. 5566810


ökologisch beheizt
1100
Ort
€ 1.500,00
Gesamtkosten
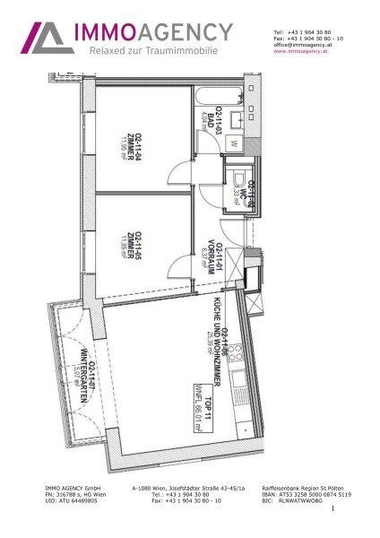
66,01 m²
Fläche
3.0
Zimmer

ECKDATEN
FindMyHome.at // Externe Immobilien-ID5566810 // 18961
ImmobilienartWohnung - Miete
Anschrift1100 Wien
Baujahr1960
Befeuerung
Luftwärmepumpe
Fläche66,01 m²
Zimmer3.0
Bad2
WC2
Brutto-Miete:€ 1.500,00
Betriebskosten (inkl. MwSt):€ 300,00
Mehrwertsteuer:€ 136,36
Monatliche Gesamtkosten:€ 1.500,00
Provision: Gemäß Erstauftraggeberprinzip bezahlt der Abgeber die Provision.




BESCHREIBUNG

Helle 3-Zimmer Citywohnung (Heizkosten inkl.)

Willkommen in Ihrem neuen Zuhause im Herzen des 10. Bezirks!
Diese charmante Wohnung mit rund 66 m² Wohnfläche befindet sich im 3. Obergeschoss eines gepflegten Hauses mit Lift und überzeugt durch ihre durchdachte Raumaufteilung sowie das helle, freundliche Ambiente. Ruhig gelegen und dennoch mitten im urbanen Leben ideal für Paare, Familien oder als Wohngemeinschaft (WG-geeignet).

Die Wohnung überzeugt durch ihre optimale Raumaufteilung, die sowohl funktional als auch gemütlich gestaltet ist. Das großzügige Wohnzimmer mit offener Wohnküche und breiter Fensterfront bildet das Herzstück der Wohnung und sorgt für eine helle, einladende Atmosphäre. Zwei separate Schlafzimmer bieten ausreichend Platz für individuelle Wohnbedürfnisse. Das Badezimmer mit Badewanne lädt zum Entspannen ein, während das separate WC zusätzlichen Komfort im Alltag schafft.

Die Heizkosten sind bereits in der Miete inkludiert!

Ausstattung

  • ca. 66,01 m² Wohnfläche

  • 3 zentral begehbare Zimmer ideal für WG-Nutzung

  • Bad mit Badewanne

  • separates WC

  • Lift im Haus

  • möbliert oder unmöbliert beziehbar

  • Heizkosten inkludiert

Lage

Die Wohnung befindet sich in einer ruhigen, aber zentralen Wohngegend im 10. Bezirk.
Die U1-Station Kepplerplatz ist in nur 5 Gehminuten erreichbar und bietet eine direkte Verbindung in die Innenstadt. In unmittelbarer Umgebung finden sich zahlreiche Einkaufsmöglichkeiten, Restaurants, Cafés und Nahversorger.

Trotz der hervorragenden Infrastruktur genießen Sie hier ein angenehm ruhiges Wohnumfeld mit Nähe zu Grünflächen und Freizeitmöglichkeiten, die perfekte Kombination aus Stadtleben und Erholung.

Wir weisen darauf hin, dass zwischen dem Vermittler und dem zu vermittelnden Dritten ein familiäres oder wirtschaftliches Naheverhältnis besteht.

Der Immobilienmakler erklärt, dass er entgegen dem in der Immobilienwirtschaft üblichen Geschäftsgebrauch des Doppelmaklers einseitig nur für den Vermieter tätig ist.

Objekt ist für eine Wohngemeinschaft geeignet
Kabel/SAT/TV: JA
Provision: Gemäß Erstauftraggeberprinzip bezahlt der Abgeber die Provision.


Alle Details anzeigen

KONTAKT






 

Lasse dich kostenlos vom Anbieter dieser Immobilie zurückrufen.







 


 
IMMO AGENCY GmbH
Michael Gebesmair
Telefonnummer anzeigen Telefon Allgemein: +436769525755
 
Bitte dem Makler die FindMyHome.at - ID bekanntgeben: 5566810

Bewertungen dieses Anbieters
Qualitätsmakler
Qualitätsmakler:
2015, 2016, 2017, 2019, 2020, 2021, 2023 , 2024,
Netiquette
Freundlichkeit
76 %

BEWERTUNGEN DIESES ANBIETERS

 
Qualit�tsmakler
Qualitätsmakler
2015, 2016, 2017, 2019, 2020, 2021, 22/23 2024
Weiterempfehlung
WIRD GERNE

Freundlichkeit
BESONDERS
FREUNDLICH
Netiquette
FINDMYHOME
NETIQUETTE
Auch du kannst bewerten! 7 Tage nach deiner Anfrage erhältst du dafür von uns ein Bewertungsmail.
Alle Infos zu unseren Auszeichnungen und dem FINDMYHOME.AT Qualitätsprogramm findest du hier: Übersicht anzeigen


Du willst wissen, wie viel dein Umzug kosten wird?

Mach gleich den kostenlosen Preisvergleich und schau, welche seriösen Anbieter in deiner Region günstig deinen Umzug organisieren


ZUM UMZUGS-VERGLEICH
-->

MYHOME BLOG
SuchAgentin auf FindMyHome.at
Unterschiedlichen Rechtsthemen, köstliche Rezepte, neueste Design-Highlights, sowie aktuelle Technik-Tools für Ihr Eigenheim.


FINDMYHOME.AT SUCHAGENTIN
SuchAgentin auf FindMyHome.at
Hallo, soll ich dir ähnliche Immobilien kostenfrei per E-Mail schicken?


ÄHNLICHE IMMOBILIEN
Aehnliche Immobilie - Vorschaubild 1

2-ZIMMER LUXUS-WOHNUNG - PARKAPARTMENTS BEIM BELVEDERE!... - Objektnr. 5588243

56,91 m² - 2.0 Zimmer
1287.58 €
PLZ: 1100

Mehr anzeigen

Aehnliche Immobilie - Vorschaubild 2

BEL&MAIN: UNBEFRISTETE 2 Zimmer mit Loggia und vielen Extras... - Objektnr. 5564798

56,00 m² - 2.0 Zimmer
1495.49 €
PLZ: 1100

Mehr anzeigen

Aehnliche Immobilie - Vorschaubild 3

PARKAPARTMENT AM BELVEDERE: 2-ZIMMER-LOGGIA-WHG. IM 10. OG... - Objektnr. 5585875

61,39 m² - 2.0 Zimmer
1248.26 €
PLZ: 1100

Mehr anzeigen

Durch die Nutzung unserer Seite erklären Sie sich mit der Verwendung von Cookies zur Verbesserung Ihres Online-Erlebnisses einverstanden. Detaillierte Informationen zu diesem und weiteren Themen erhalten Sie in unserer Datenschutzerklärung.