KTG 44, Nachhaltige Architektur trifft auf urbane Lebensqualität! - Objektnr. 5566005
			WEITERE MEDIEN
			
		
	
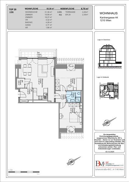
			ECKDATEN
			
		
	
			BESCHREIBUNG
			
		
	
			KONTAKT
		
    Lasse dich kostenlos vom Anbieter dieser Immobilie zurückrufen.
    
    
	
  
    
    IMMO AGENCY GmbH
IMMO AGENCY
    
        
          
        
        
    
    
      
    
    
    
        
          
            
          
          
      
      
      
        
                  
            
          
        
                  
            
          
        
                          
      
      
     
  
  
IMMO AGENCY
            
            
            Telefonnummer anzeigen
            
              Handy Bearbeiter: +4369919293025 
               
Bitte dem Makler die FindMyHome.at - ID bekanntgeben: 5566005
          
        Bitte dem Makler die FindMyHome.at - ID bekanntgeben: 5566005
    Bewertungen dieses Anbieters
    
          
          Qualitätsmakler:
2015, 2016, 2017, 2019, 2020, 2021, 2023 , 2024,
        2015, 2016, 2017, 2019, 2020, 2021, 2023 , 2024,
            75
            %
          
                
			BEWERTUNGEN DIESES ANBIETERS
		
	
          Qualitätsmakler 
2015, 2016, 2017, 2019, 2020, 2021, 22/23 2024
      2015, 2016, 2017, 2019, 2020, 2021, 22/23 2024
        WIRD  GERNE
WEITEREMPFOHLEN
        
      
      WEITEREMPFOHLEN
          BESONDERS
FREUNDLICH
      
      FREUNDLICH
          FINDMYHOME.AT
NETIQUETTE
      
      NETIQUETTE
Auch du kannst bewerten! 7 Tage nach deiner Anfrage erhältst du dafür von uns ein Bewertungsmail.
Alle Infos zu unseren Auszeichnungen und dem FINDMYHOME.AT Qualitätsprogramm findest du hier: Übersicht anzeigen
  Alle Infos zu unseren Auszeichnungen und dem FINDMYHOME.AT Qualitätsprogramm findest du hier: Übersicht anzeigen
			FINANZIERUNG
			
		
	Du willst wissen, wie viel dein Umzug kosten wird?
Mach gleich den kostenlosen Preisvergleich und schau, welche seriösen Anbieter in deiner Region günstig deinen Umzug organisieren
ZUM UMZUGS-VERGLEICH

























      
    
    
    









