MEIN ERGEBNIS ANPASSEN

Neuer Preis - Rarität! Großartiges Baugrundstück am Schafberg! Bestlage + Attraktiver Wohnbau möglich oder Traum vom eigenen Haus erfüllen! Jetzt zugreifen! - Objektnr. 5565580

1170
Ort
381,00 m²
Fläche

ECKDATEN
FindMyHome.at // Externe Immobilien-ID5565580 // 282019
ImmobilienartGrundstück - Eigentum
AnschriftCzartoryskigasse
1170 Wien
Fläche346,50 m²
Grundfläche381,00 m²
Kaufpreis:€ 850.000,00
Ratenzahlung:Finanzierungsmöglichkeiten für diese Immobilie anzeigen
Provision: 3% des Kaufpreises zzgl. 20% USt.







BESCHREIBUNG

Neuer Preis - Rarität! Großartiges Baugrundstück am Schafberg! Bestlage + Attraktiver Wohnbau möglich oder Traum vom eigenen Haus erfüllen! Jetzt zugreifen!

Rarität! Großartiges Baugrundstück am Schafberg! Bestlage + Attraktiver Wohnbau möglich oder Traum vom eigenen Haus erfüllen! Jetzt zugreifen!

 

Zum Verkauf steht ein attraktives Grundstück in Traumlage am Schafberg. Gleich ums Eck befindet sich das so beliebte Schafbergbad und das Schutzhaus.

Setzen Sie hier ein kleines, aber exklusives Bauprojekt um! Eine gute Nachfrage für TOP-Lagen wie diese, sowie eine gute Planung sorgen hier bestimmt für einen Verkaufserfolg!

 

Facts:

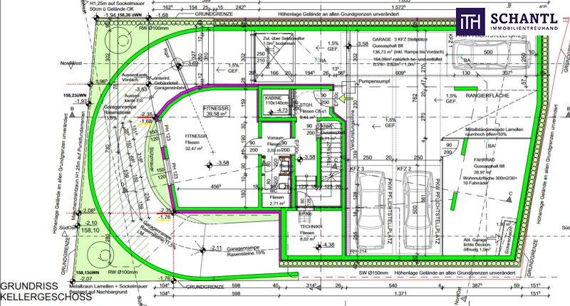
+ Grundstücksgröße ca 381m² / Bebaute Fläche ca. 127m²

+ Projektiert nach § 70b: Eine zeitnahe Umsetzung des Projektes ist daher möglich

+ 4 Wohneinheiten erzielbar (ca. 346m² reine Wohnfläche)

+ Erzielbare Nutzfläche gewichtet ca. 405,50m²

+ Garagenfläche inkl. Rampe und Zufahrt ca. 163m²

+ Die Liegenschaft soll unterkellert werden

+ Zusätzlicher Luxus: 3 Garagenplätze sowie ein Fitnessraum

 

Kaufpreis: € 850.000.-

 

www.schantl-ith.at

Hinweis gemäß Energieausweisvorlagegesetz: Ein Energieausweis wurde vom Eigentümer bzw. Verkäufer, nach unserer Aufklärung über die generell geltende Vorlagepflicht, sowie Aufforderung zu seiner Erstellung noch nicht vorgelegt. Daher gilt zumindest eine dem Alter und der Art des Gebäudes entsprechende Gesamtenergieeffizienz als vereinbart. Wir übernehmen keinerlei Gewähr oder Haftung für die tatsächliche Energieeffizienz der angebotenen Immobilie.

Wir weisen darauf hin, dass zwischen dem Vermittler und dem zu vermittelnden Dritten ein familiäres oder wirtschaftliches Naheverhältnis besteht.

Der Vermittler ist als Doppelmakler tätig.


Infrastruktur / Entfernungen

Gesundheit
Arzt <750m
Apotheke <750m
Klinik <1.250m
Krankenhaus <750m

Kinder & Schulen
Schule <1.000m
Kindergarten <750m
Universität <2.250m
Höhere Schule <2.250m

Nahversorgung
Supermarkt <750m
Bäckerei <750m
Einkaufszentrum <1.750m

Sonstige
Geldautomat <1.500m
Bank <1.750m
Post <750m
Polizei <1.750m

Verkehr
Bus <250m
Straßenbahn <750m
U-Bahn <1.750m
Bahnhof <1.750m
Autobahnanschluss <4.750m

Angaben Entfernung Luftlinie / Quelle: OpenStreetMap

Gartennutzung: JA
Provision: 3% des Kaufpreises zzgl. 20% USt.


Alle Details anzeigen

KONTAKT






 

Lasse dich kostenlos vom Anbieter dieser Immobilie zurückrufen.







 


 
Schantl ITH Immobilientreuhand GmbH
Samir Agha-Schantl
Telefonnummer anzeigen Telefon Allgemein: +436643070009
Handy Bearbeiter: +436604701793
 
Bitte dem Makler die FindMyHome.at - ID bekanntgeben: 5565580

Bewertungen dieses Anbieters
Qualitätsmakler
Qualitätsmakler:
2015, 2016, 2018, 2019, 2020, 2021, 2023 , 2024, 2025,
Netiquette
Freundlichkeit
79 %

BEWERTUNGEN DIESES ANBIETERS

 
Qualit�tsmakler
Qualitätsmakler
2015, 2016, 2018, 2019, 2020, 2021, 22/23, 2024, 2025
Antwortzeit
ø 48h ANTWORT
Weiterempfehlung
WIRD GERNE

Freundlichkeit
BESONDERS
FREUNDLICH
Netiquette
FINDMYHOME
NETIQUETTE
Auch du kannst bewerten! 7 Tage nach deiner Anfrage erhältst du dafür von uns ein Bewertungsmail.
Alle Infos zu unseren Auszeichnungen und dem FINDMYHOME.AT Qualitätsprogramm findest du hier: Übersicht anzeigen

FINANZIERUNG
?>

Du willst wissen, wie viel dein Umzug kosten wird?

Mach gleich den kostenlosen Preisvergleich und schau, welche seriösen Anbieter in deiner Region günstig deinen Umzug organisieren


ZUM UMZUGS-VERGLEICH
-->

MYHOME BLOG
SuchAgentin auf FindMyHome.at
Unterschiedlichen Rechtsthemen, köstliche Rezepte, neueste Design-Highlights, sowie aktuelle Technik-Tools für Ihr Eigenheim.


FINDMYHOME.AT SUCHAGENTIN
SuchAgentin auf FindMyHome.at
Hallo, soll ich dir ähnliche Immobilien kostenfrei per E-Mail schicken?


Durch die Nutzung unserer Seite erklären Sie sich mit der Verwendung von Cookies zur Verbesserung Ihres Online-Erlebnisses einverstanden. Detaillierte Informationen zu diesem und weiteren Themen erhalten Sie in unserer Datenschutzerklärung.