Wohlfühloase mit Weitblick ? 3-Zimmer-Wohnung mit großem Balkon - Objektnr. 5564098
ECKDATEN
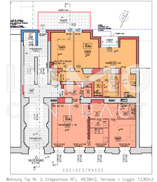
BESCHREIBUNG
KONTAKT
Lasse dich kostenlos vom Anbieter dieser Immobilie zurückrufen.
IMMOcontract Immobilien Vermittlung GmbH
Anna Valentina Blecha
Anna Valentina Blecha
Telefonnummer anzeigen
Telefon Allgemein: +43676841420465
Bitte dem Makler die FindMyHome.at - ID bekanntgeben: 5564098
Bitte dem Makler die FindMyHome.at - ID bekanntgeben: 5564098
Bewertungen dieses Anbieters
Qualitätsmakler:
2016, 2018, 2020, 2021, 2023, 2024,
2016, 2018, 2020, 2021, 2023, 2024,
BEWERTUNGEN DIESES ANBIETERS
Qualitätsmakler
2016, 2018, 2020, 2021, 22/23, 2024
2016, 2018, 2020, 2021, 22/23, 2024
BESONDERS
FREUNDLICH
FREUNDLICH
FINDMYHOME.AT
NETIQUETTE
NETIQUETTE
Auch du kannst bewerten! 7 Tage nach deiner Anfrage erhältst du dafür von uns ein Bewertungsmail.
Alle Infos zu unseren Auszeichnungen und dem FINDMYHOME.AT Qualitätsprogramm findest du hier: Übersicht anzeigen
Alle Infos zu unseren Auszeichnungen und dem FINDMYHOME.AT Qualitätsprogramm findest du hier: Übersicht anzeigen
Du willst wissen, wie viel dein Umzug kosten wird?
Mach gleich den kostenlosen Preisvergleich und schau, welche seriösen Anbieter in deiner Region günstig deinen Umzug organisieren
ZUM UMZUGS-VERGLEICH






















