MEIN ERGEBNIS ANPASSEN

Exklusive 3-Zimmer-Wohnung mit 70 m² und privatem Seezugang in Velden am Wörthersee. - Objektnr. 5564034

9220
Ort
70,21 m²
Fläche
3.0
Zimmer

ECKDATEN
FindMyHome.at // Externe Immobilien-ID5564034 // 6906/518
ImmobilienartWohnung - Eigentum
Anschrift9220 Velden am Wörther See
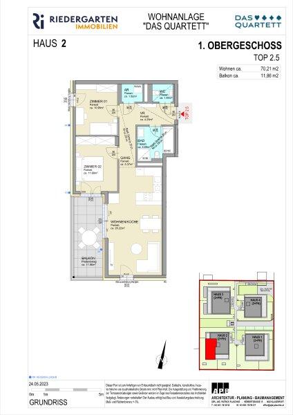
Stock1
Geschosse4
Fläche70,21 m²
Zimmer3.0
Bad1
WC2
Kaufpreis:€ 450.000,00
Ratenzahlung:Finanzierungsmöglichkeiten für diese Immobilie anzeigen
Provision:







BESCHREIBUNG

Exklusive 3-Zimmer-Wohnung mit 70 m² und privatem Seezugang in Velden am Wörthersee.

RIEDERGARTEN. SEEZUGANG & BADEHAUS.

  • Zugang zu einem exklusiven Badehaus am Wörthersee.
  • Grundbücherlich gesichertes Baderecht für Wohnungseigentümer.
  • Seegrundstück mit einer Fläche von ca. 200 m² zzgl. Stegfläche mit ca. 90 m².
  • Voll ausgestattete Umkleidekabinen mit Dusche und WC.
  • Persönlicher Spind.
  • Fußläufig von der eigenen Eigentumswohnung zum privatem Seezugang.
  • Preis 50.000 EUR pro Baderecht für 4 Personen

 

RIEDERGARTEN. NACHHALTIG & ENERGIEEFFIZIENT.

  • energieeffiziente Brunnenwasserwärmepumpe für die Fußbodenheizung.
  • Deckenkühlung mittels Betonkernaktivierung.
  • Warmwasseraufbereitung - dezentrale Wohnungsstation.
  • Umfangreiches Bepflanzungskonzept.
  • Wärmeschutzisolierglas. 
  • Außenliegender moderner elektrischer Sonnenschutz.
  • Mietbare E-Ladestationen für jeden Tiefgaragenstellplatz.

 

RIEDERGARTEN. EINE KLASSE FÜR SICH.

  • Lichtdurchflutete Eigentumswohnungen.
  • Ruhelage in Zentrumsnähe.
  • Nur fünf Gehminuten zum Wörthersee.
  • Ansprechende Architektur.
  • Attraktive Balkone, Terrassen und Eigengärten.
  • Durchdachte Grundrisse.
  • Hochwertige Basisausstattung.

Infrastruktur / Entfernungen

Gesundheit
Arzt <500m
Apotheke <500m

Kinder & Schulen
Schule <500m
Kindergarten <500m

Nahversorgung
Supermarkt <500m
Bäckerei <1.000m

Sonstige
Bank <500m
Geldautomat <500m
Post <500m
Polizei <500m

Verkehr
Bus <500m
Autobahnanschluss <2.000m
Bahnhof <1.500m

Angaben Entfernung Luftlinie / Quelle: OpenStreetMap

Barrierefrei: JA
Provision:


Alle Details anzeigen

KONTAKT






 

Lasse dich kostenlos vom Anbieter dieser Immobilie zurückrufen.







 


 
RGB Riedergarten Bauträger GmbH
Verkaufsteam Kärnten
Telefonnummer anzeigen Telefon Allgemein: +4346344403333
 
Bitte dem Makler die FindMyHome.at - ID bekanntgeben: 5564034

Bewertungen dieses Anbieters
Netiquette

BEWERTUNGEN DIESES ANBIETERS

 
Netiquette
FINDMYHOME.AT
NETIQUETTE
Auch du kannst bewerten! 7 Tage nach deiner Anfrage erhältst du dafür von uns ein Bewertungsmail.
Alle Infos zu unseren Auszeichnungen und dem FINDMYHOME.AT Qualitätsprogramm findest du hier: Übersicht anzeigen

FINANZIERUNG
?>

Du willst wissen, wie viel dein Umzug kosten wird?

Mach gleich den kostenlosen Preisvergleich und schau, welche seriösen Anbieter in deiner Region günstig deinen Umzug organisieren


ZUM UMZUGS-VERGLEICH
-->

MYHOME BLOG
SuchAgentin auf FindMyHome.at
Unterschiedlichen Rechtsthemen, köstliche Rezepte, neueste Design-Highlights, sowie aktuelle Technik-Tools für Ihr Eigenheim.


FINDMYHOME.AT SUCHAGENTIN
SuchAgentin auf FindMyHome.at
Hallo, soll ich dir ähnliche Immobilien kostenfrei per E-Mail schicken?


ÄHNLICHE IMMOBILIEN
Aehnliche Immobilie - Vorschaubild 1

Wohntraum in Velden: 3-Zimmer Eigentumswohnung mit privatem ... - Objektnr. 5275972

61,22 m² - 3.0 Zimmer
389000 €
PLZ: 9220

Mehr anzeigen

Aehnliche Immobilie - Vorschaubild 2

3-Zimmer Traumwohnung mit privatem Seezugang in Velden am Wö... - Objektnr. 5499992

67,46 m² - 3.0 Zimmer
429000 €
PLZ: 9220

Mehr anzeigen

Aehnliche Immobilie - Vorschaubild 3

Exklusive 3-Zimmerwohnung in Velden am Wörthersee mit privat... - Objektnr. 5423760

69,49 m² - 3.0 Zimmer
460000 €
PLZ: 9220

Mehr anzeigen

Durch die Nutzung unserer Seite erklären Sie sich mit der Verwendung von Cookies zur Verbesserung Ihres Online-Erlebnisses einverstanden. Detaillierte Informationen zu diesem und weiteren Themen erhalten Sie in unserer Datenschutzerklärung.