MEIN ERGEBNIS ANPASSEN

TOP BALKONWOHNUNG - CITY PARK - Objektnr. 5563131


ökologisch beheizt
8020
Ort
60,50 m²
Fläche
3.0
Zimmer

ECKDATEN
FindMyHome.at // Externe Immobilien-ID5563131 // 518
ImmobilienartWohnung - Eigentum
Anschrift8020 Graz,05.Bez.:Gries
Baujahr2006
Befeuerung
Fernwärme
Stock2
Fläche60,50 m²
Zimmer3.0
Bad1
WC1
Kaufpreis:€ 179.000,00
Ratenzahlung:Finanzierungsmöglichkeiten für diese Immobilie anzeigen
Provision: 3% des Kaufpreises zzgl. 20% USt.







BESCHREIBUNG

TOP BALKONWOHNUNG - CITY PARK

BESTLAGE in der OEVERSEEGASSE: Genießen Sie die Vorteile vom zentralen Wohnen im Neubau mit Top Infrastruktur und trotzdem wirklicher Ruhelage mit Grünblick und nur 250 Meter zu Fuß zum CITY PARK und mit dem Rad 1,4 km in die ALTSTADT! 

Die moderne Wohnanlage mit viel Grünflächen bietet alle Vorzüge eines aktuellen Neubaus: niedrige Heizkosten (Fernwärme), trockene Kellerabteile, Tiefgarage, Lift, Fahrradabstellplatz, moderne Ausstattung wie z.B. Balkone, Isolierglasfenster, Außenjalousien, Parkettböden, Einbauküchen, etc.

Im gegenständlichen Wohnhaus werden Wohnungen unterschiedlicher Größen von rd. 41-62m² mit 2 oder 3 Zimmern verkauft.

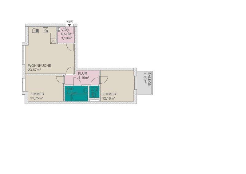
Diese Wohnung ist ein Beispiel für den 3 Zimmer Typ liegt im 1.OG (2.Etage) und verfügt über einen Balkon mit schönem Weit- und Grünblick. Herz der Wohnung ist das ausgesprochen helle Wohn- Esszimmer (23m²) sowie der sonnige Balkon!  Der Ausblick auf eine wunderbare, sonnige Grünfläche lädt wirklich zum Entspannen ein. Genießen Sie die Vorteile von Top Infrastruktur und trotzdem grüner Ruhelage! 

Das Schlafzimmer ist ebenfalls in den ruhigen, grünen Innenhof ausgerichtet und mit ca. 12m² groß genug für ein schönes Doppelbett, Kästen und hat auch Platz für ein Kinder-Beistellbett. Eben so ist das Kinderzimmer mit 11m² als Drittes Zimmer sehr gut nutzbar und kann sowohl mit einem Stockbett bestückt als auch als Büro für Home Office genutzt werden. Vorraum und Flur bieten mit zusammen rd. 7m² nochmals Platz für Kleiderschränke und Garderobe.  

Die Raumaufteilung ist wirklich hervorragend: Alle Zimmer zentral begehbar! Die Wohnfläche beträgt 49,1m² zuzüglich Nebenflächen und teilt sich wie folgt auf:

  • zentrales Wohn-Esszimmer mit Küche 23m²
  • 4,2m² großen Balkon  
  • ruhiges Schlafzimmer 12m²
  • helles Kinder- / Arbeitszimmer 11m²
  • Bad 4,3m², WC 1,4m² sowie
  • Flur mit Garderobenbereich 7,1
  • eigener Einlagerungsraum ca. 2m²

Bei dem Gebäude handelt es sich um einen rund 19 Jahre alten Neubau mit guter Wärmedämmung und Fernwärme. Die Wohnung ist noch bis Februar 2028 befristet für rd. € 666,- Miete p.m. zzgl. BK befristet vermietet. Dies ergibt eine KP-Rendite von ca. 4,5%p.a. Andere 3 Zimmer Wohnungen stehen bereits ab April 2026 leerstehend zur Verfügung. 

Egal ob Singles, Paare oder Familien das Angebot an zur Verfügung stehenden Wohnungen bietet genug Platz und Behaglichkeit zum Wohlfühlen. Im Innenhof befindet sich eine Tiefgarage wo KFZ-Stellplätze kostengünstig angemietet werden können. Die Wohnungen haben alle den selben, gehobenen Ausstattungsstandard: Außenjalousien, Fernwärme, Echtholzparkettboden, Einbauküche, Personenaufzug, Einlagerungsraum, Isolierglasfenster, etc. 

   TOP / Zi

WFL m² Balk. Stock Miete p.m. Miete /m² BK Mietende Kaufpreis KP -Rendite
1 / 2 Zi 53,3 0 HP  € 563,4  10,6 €  € 151,7 Jun.28  € 145 000 4,66%
2 / 3 Zi. 60,5 0 HP  € 622,8  10,3 €  € 172,3 Sep.28  € 159 000 4,70%
4 49,1 7,6 1.OG  verkauft 
5 / 3 Zi. 60,5 4,2 1.OG  € 666,4  11,0 €  172,3 € Feb.28  € 179 000 4,47%
6 / 2 Zi. 63,1 4,2 2.OG  € 640,6  10,2 €  179,7 € Mär.26  € 175 000 4,39%
49,1 7,6 2.OG  verkauft 
8 / 3 Zi. 62,1 4,2 2.OG  € 672,2  10,8 €  177,0 € Mai.27  € 185 000 4,36%
10 / 2 Zi. 41,2 3,4 3.OG  € 465,5  11,3 €  117,3 € Mai.28  € 130 000 4,30%
11 / 3 Zi. 61,6 4,2 3.OG  € 688,4  11,2 €  175,6 € Apr.26  € 185 000 4,47%

Die Vermarktung erfolgt über die Seifert Real GmbH. Kontaktieren Sie uns und vereinbaren Sie einen Besichtigungstermin per Email unter nikolaus@seifert-real.at oder unter 06765309013. 

Wir weisen darauf hin, dass zwischen dem Vermittler und dem zu vermittelnden Dritten ein familiäres oder wirtschaftliches Naheverhältnis besteht.

Der Vermittler ist als Doppelmakler tätig.


Infrastruktur / Entfernungen

Gesundheit
Arzt <500m
Apotheke <500m
Klinik <500m
Krankenhaus <1.000m

Kinder & Schulen
Schule <500m
Kindergarten <500m
Universität <1.500m
Höhere Schule <1.500m

Nahversorgung
Supermarkt <500m
Bäckerei <500m
Einkaufszentrum <500m

Sonstige
Geldautomat <500m
Bank <500m
Post <500m
Polizei <500m

Verkehr
Bus <500m
Straßenbahn <1.000m
Autobahnanschluss <4.000m
Bahnhof <1.000m
Flughafen <8.500m

Angaben Entfernung Luftlinie / Quelle: OpenStreetMap

Barrierefrei: JA
Provision: 3% des Kaufpreises zzgl. 20% USt.


Alle Details anzeigen

KONTAKT






 

Lasse dich kostenlos vom Anbieter dieser Immobilie zurückrufen.







 


 
Seifert Maxian Partner Immobilientreuhand GmbH & Co KG
Nikolaus Seifert
Telefonnummer anzeigen Telefon Allgemein: +436765309013
 
Bitte dem Makler die FindMyHome.at - ID bekanntgeben: 5563131

BEWERTUNGEN DIESES ANBIETERS


Die Anzahl der Bewertungen dieses Anbieters ist noch nicht aussagekrätig.
 
Auch du kannst bewerten! 7 Tage nach deiner Anfrage erhältst du dafür von uns ein Bewertungsmail.
Alle Infos zu unseren Auszeichnungen und dem FINDMYHOME.AT Qualitätsprogramm findest du hier: Übersicht anzeigen

FINANZIERUNG
?>

Du willst wissen, wie viel dein Umzug kosten wird?

Mach gleich den kostenlosen Preisvergleich und schau, welche seriösen Anbieter in deiner Region günstig deinen Umzug organisieren


ZUM UMZUGS-VERGLEICH
-->

MYHOME BLOG
SuchAgentin auf FindMyHome.at
Unterschiedlichen Rechtsthemen, köstliche Rezepte, neueste Design-Highlights, sowie aktuelle Technik-Tools für Ihr Eigenheim.


FINDMYHOME.AT SUCHAGENTIN
SuchAgentin auf FindMyHome.at
Hallo, soll ich dir ähnliche Immobilien kostenfrei per E-Mail schicken?


ÄHNLICHE IMMOBILIEN
Aehnliche Immobilie - Vorschaubild 1

Ihre Chance: 3-Zimmer-Wohnung mit Terrasse zum Renovieren... - Objektnr. 5583391

73,00 m² - 3 Zimmer
158000 €
PLZ: 8020

Mehr anzeigen

Aehnliche Immobilie - Vorschaubild 2

Neuer Preis! Eigentumswohnung in guter Wohnlage mit Modernis... - Objektnr. 5566899

57,00 m² - 2 Zimmer
145000 €
PLZ: 8020

Mehr anzeigen

Durch die Nutzung unserer Seite erklären Sie sich mit der Verwendung von Cookies zur Verbesserung Ihres Online-Erlebnisses einverstanden. Detaillierte Informationen zu diesem und weiteren Themen erhalten Sie in unserer Datenschutzerklärung.