MEIN ERGEBNIS ANPASSEN

"MARGRET´S" - ruhige und charmante 1-Zimmer Wohnung im Herzen von Margareten! Nähe Naschmarkt und Schlossquadrat! - Objektnr. 5563016

1050
Ort
33,62 m²
Fläche
1.0
Zimmer

ECKDATEN
FindMyHome.at // Externe Immobilien-ID5563016 // 19844
ImmobilienartWohnung - Eigentum
AnschriftSchönbrunner Straße 22-24/9
1050 Wien
Baujahr1900
Geschosse5
Fläche33,62 m²
Zimmer1.0
Bad1
WC1
Kaufpreis:€ 215.000,00
Ratenzahlung:Finanzierungsmöglichkeiten für diese Immobilie anzeigen
Provision: 3% des Kaufpreises zzgl. 20% USt.







BESCHREIBUNG

"MARGRET´S" - ruhige und charmante 1-Zimmer Wohnung im Herzen von Margareten! Nähe Naschmarkt und Schlossquadrat!

"MARGRET´S - Wohngenuss im Herzen von Margareten! Nähe Naschmarkt und Schlossquadrat!

In diesem sehr gepflegtem Stilaltbau in toller City Lage stehen mehrere Wohnungen zum Verkauf. Einige sind in einem sehr gepflegten Zustand und sofort beziehbar, andere Wohnungen wurden generalsaniert und stehen in wenigen Wochen als Erstbezug zur Verfügung. Die Einheiten haben zwischen 1 und 2 Zimmern, die Größen belaufen sich zwischen 33m² und 78m² Wohnfläche. Die Dachgeschoss-Wohnungen haben alle Terrassen.
 

Umgebung

Das Wohnprojekt befindet sich in Top-Lage des 5. Bezirks, Nahe dem Schlossquadrat und zahlreichen öffentlichen Anbindungen:

  • unmittelbare Nähe zur U-Bahn Station Pilgramgasse, sowie Autobuslinien 12A, 13A, 14A und 59A
  • schnelle Erreichbarkeit der Innenstadt
  • Vielzahl an Geschäften des täglichen Bedarfs, als auch Apotheken, Shops und Restaurants
  • Der Naschmarkt ist fußläufig innerhalb weniger Minuten erreichbar. Die Lage bietet somit die perfekte Balance zwischen Großstadtflair und Naherholungsgebiet.
  • für Sport- und Schwimmbegeisterte ist das John-Harris Fitness-Center, bzw. das Margartenbad in nur 2 Minuten zu Fuß erreichbar

Der 5.Bezirk "Margareten" - speziell in dieser Lage - gehört zu den begehrtesten Wohngegenden Wiens. Ausgezeichnete Infrastruktur, perfekte Verkehrsanbindung und Lifestyle zeichnen das Gebiet um den Naschmarkt und das Schlossquadrat aus. Viele multikulturelle Gastronomieangebote, Designerboutiquen sowie trendige Lokale und Geschäfte laden zum Flanieren und Shoppen ein. Nicht umsonst zählt die Region um den Naschmarkt zu einer der "Lieblingsadressen" in Wien.

Altbaucharme auf kleinem Raum!

Dieses gepflegte Single-Apartment befindet sich in einem wunderschönen Stilaltbau in Top-Lage des 5. Bezirks. Die 1-Zimmer-Wohnung liegt im Erdgeschoss des Hauses und ist absolut ruhig in zwei - zum Teil begrünte - Innenhöfe ausgerichtet. Ein kompaktes, sehr gut aufgeteiltes Apartment, welches trotz Erdgeschoss-Lage ausgesprochen hell ist und sich in einem gepflegten Zustand befindet. Perfekt für die, die eine stilvolle und praktische Wohnlösung suchen. Der begrünte Innenhof lädt mit Sitzbänken ein die Ruhe zu genießen und die Seele baumeln zu lassen. Klein, Fein, Mein!

 

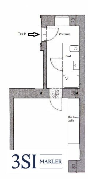
  • Vorzimmer
  • Badezimmer mit Toilette und Dusche
  • Wohnzimmer
  • Küche im Wohnzimmer mit Waschmaschinenanschluss
  • Hohe Decken
  • große Fenster für mehr Tageslicht 

 

Haus und Umgebung

Dieser schöne Stilaltbau wurde soeben teilsaniert und bietet ein wunderschönes Entrée, ein klassisches Stiegenhaus und einen charmanten Innenhof. Das Gebäude verfügt über ein ausgebautes Dachgeschoß, 3 Regelgeschoße, ein Erdgeschoß und ein Kellergeschoß.

Das Wohnprojekt befindet sich in sehr guter, beliebter und zentraler Lage des 5. Bezirks, Nahe dem Schlossquadrat und zahlreichen öffentlichen Anbindungen:

  • unmittelbare Nähe zur U-Bahn Station Pilgramgasse, sowie Autobuslinien 12A, 13A, 14A und 59A
  • schnelle Erreichbarkeit der Innenstadt
  • Großangebot an Lehranstalten, Kindergarten etc.
  • Vielzahl an Geschäften des täglichen Bedarfs, als auch Apotheken, Shops und Restaurants
  • auch der Naschmarkt ist fußläufig innerhalb von 15 Minuten erreichbar. Die Lage bietet somit die perfekte Balance zwischen Großstadtflair und Naherholungsgebiet.
  • für Sport- und Schwimmbegeisterte ist das John-Harris Fitness-Center, bzw. das Margaretenbad in nur 2 Minuten zu Fuß erreichbar

Der 5.Bezirk "Margareten" - speziell in dieser Lage - gehört zu den begehrtesten Wohngegenden Wiens. Ausgezeichnete Infrastruktur, perfekte Verkehrsanbindung und Lifestyle zeichnen das Gebiet um den Naschmarkt und das Schlossquadrat aus. Viele multikulturelle Gastronomieangebote, Designerboutiquen sowie trendige Lokale und Geschäfte laden zum Flanieren und Shoppen ein. Nicht umsonst zählt die Region um den Naschmarkt zu einer der "Lieblingsadressen" in Wien.

 

Nebenkosten

Der guten Ordnung halber halten wir fest, dass, sofern im Angebot nicht anders vermerkt, bei erfolgreichem Abschlussfall eine Provision anfällt, die den in der Immobilienmaklerverordnung BGBI. 262 und 297/1996 festgelegten Sätzen entspricht - das sind 3% des Kaufpreises zzgl. 20% MwSt. bzw. 2 Bruttomonatsmieten bei Wohnungen/Einfamilienhäusern oder 3 Bruttomonatsmieten bei Büro-/Geschäftsräumen zzgl. 20% MwSt. Diese Provisionspflicht besteht auch dann, wenn Sie die Ihnen überlassenen Informationen an Dritte weitergeben. Es besteht ein wirtschaftliches Naheverhältnis zum Verkäufer.

Die Vertragserrichtung und Treuhandabwicklung ist gebunden an die Kanzlei Mag. Schreiber A-1010 Wien, Schottenring 16. Die Kosten betragen 1,5 % des Kaufpreises zzgl. 20 % USt. sowie Barauslagen und Beglaubigung. Bei Fremdfinanzierung erhöht sich das Honorar auf 1,8 % vom Kaufpreis zzgl. 20 % USt., Barauslagen und Beglaubigung.

Sämtliche Ihnen hiermit übermittelte Angaben wurden uns, seitens des Abgebers bekannt gegeben. Eine Garantie auf Richtigkeit und Vollständigkeit können wir nicht übernehmen.

Wir weisen darauf hin, dass zwischen dem Vermittler und dem zu vermittelnden Dritten ein familiäres oder wirtschaftliches Naheverhältnis besteht.

Der Vermittler ist als Doppelmakler tätig.


Infrastruktur / Entfernungen

Gesundheit
Arzt <150m
Apotheke <225m
Klinik <125m
Krankenhaus <675m

Kinder & Schulen
Schule <250m
Kindergarten <50m
Universität <525m
Höhere Schule <275m

Nahversorgung
Supermarkt <50m
Bäckerei <250m
Einkaufszentrum <700m

Sonstige
Geldautomat <50m
Bank <275m
Post <250m
Polizei <150m

Verkehr
Bus <200m
U-Bahn <300m
Straßenbahn <675m
Bahnhof <325m
Autobahnanschluss <3.625m

Angaben Entfernung Luftlinie / Quelle: OpenStreetMap

Kabel/SAT/TV: JA
Provision: 3% des Kaufpreises zzgl. 20% USt.


Alle Details anzeigen

KONTAKT






 

Lasse dich kostenlos vom Anbieter dieser Immobilie zurückrufen.







 


 
3SI Makler GmbH
Andrea Djuricin
Telefonnummer anzeigen Telefon Allgemein: +431607585859
Handy Bearbeiter: +436606400663
 
Bitte dem Makler die FindMyHome.at - ID bekanntgeben: 5563016

Bewertungen dieses Anbieters
Qualitätsmakler
Qualitätsmakler:
2013, 2014, 2016, 2018, 2019,
Netiquette
Freundlichkeit

BEWERTUNGEN DIESES ANBIETERS

 
Qualitätsmakler
UNSERE HALL OF FAME DER BESTEN ANBIETER
Qualit�tsmakler
Qualitätsmakler
2013, 2014, 2016, 2018, 2019
Freundlichkeit
BESONDERS
FREUNDLICH
Netiquette
FINDMYHOME
NETIQUETTE
Auch du kannst bewerten! 7 Tage nach deiner Anfrage erhältst du dafür von uns ein Bewertungsmail.
Alle Infos zu unseren Auszeichnungen und dem FINDMYHOME.AT Qualitätsprogramm findest du hier: Übersicht anzeigen

FINANZIERUNG
?>

Du willst wissen, wie viel dein Umzug kosten wird?

Mach gleich den kostenlosen Preisvergleich und schau, welche seriösen Anbieter in deiner Region günstig deinen Umzug organisieren


ZUM UMZUGS-VERGLEICH
-->

MYHOME BLOG
SuchAgentin auf FindMyHome.at
Unterschiedlichen Rechtsthemen, köstliche Rezepte, neueste Design-Highlights, sowie aktuelle Technik-Tools für Ihr Eigenheim.


FINDMYHOME.AT SUCHAGENTIN
SuchAgentin auf FindMyHome.at
Hallo, soll ich dir ähnliche Immobilien kostenfrei per E-Mail schicken?


ÄHNLICHE IMMOBILIEN
Aehnliche Immobilie - Vorschaubild 1

Kompakt. Stilvoll. Besonders – Ihr charmantes Altbau-Apartme... - Objektnr. 5453820

33,62 m² - 1 Zimmer
215000 €
PLZ: 1050

Mehr anzeigen

Aehnliche Immobilie - Vorschaubild 2

Stilvolle Altbauwohnung mit modernem Charme und hochwertiger... - Objektnr. 5555015

35,87 m² - 1 Zimmer
229000 €
PLZ: 1050

Mehr anzeigen

Aehnliche Immobilie - Vorschaubild 3

Schönbrunner Straße 60 - Elegante Altbau-Stadtresidenzen... - Objektnr. 5551293

35,87 m² - 1.0 Zimmer
229000 €
PLZ: 1050

Mehr anzeigen

Durch die Nutzung unserer Seite erklären Sie sich mit der Verwendung von Cookies zur Verbesserung Ihres Online-Erlebnisses einverstanden. Detaillierte Informationen zu diesem und weiteren Themen erhalten Sie in unserer Datenschutzerklärung.