Hier einige kurze Informationen zur Immobilie:
Die Wohnanlage bietet Platz für 10 großzügige Wohnungen mit ausreichend Platz für Familien. Im Erdgeschoss sind 2 Geschäftslokale situiert die durch die Laubengangsituation optimal Richtung Dorfplatz geöffnet sind. Der Garten ist parkähnlich angelegt und beinhaltet einen modernen Kinderspielplatz. In der Grundausstattung inbegriffen sind hochwertige Parkettböden, großflächige Fliesen sowie eine Sanitär- und Elektroausstattung von namhaften Herstellern.
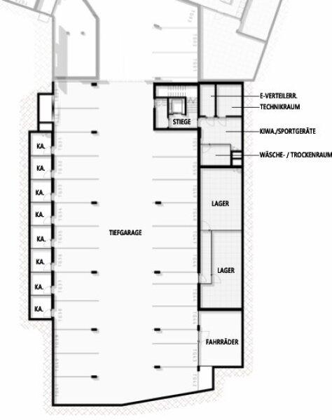
Das Gebäude umfasst ein Untergeschoss sowie drei oberirdische Geschosse. Im Untergeschoss befindet sich eine Tiefgarage mit Technik- und Lagerräumen sowie Allgemeinflächen für Sportgeräte, usw. Die 2 im Erdgeschoss situierten Geschäftslokale bieten sich aufgrund des zentralen Standorts ideal für eine Bäckerei oder ein Kaffeehaus mit kleinen Snacks an. Ein Sportgeschäft könnte das Angebot im Ortszentrum abrunden. In den oberen Etagen (1. und 2. OG) liegen die geräumigen Wohnungen mit 2-3 Zimmern. Das Heiz- und Kühlsystem des Gebäudes basiert auf dem effizienten Einsatz moderner Wärmepumpentechnologie welche optional über eine Photovoltaik Anlage auf dem Flachdach unterstütz werden kann.
Die Wohnung 07 (2.OG) hat eine Größe von ca. 69 Quadratmeter und einen Balkon mit ca. 20 Quadratmeter.
Kaufpreis Wohnung: 460.000€
Optional Kaufpreis Autoabstellplatz Garage: 25.000€
Optional Kaufpreis Autoabstellplatz Außen: 15.000€
Infina, Österreichs beliebtester Wohnbau-Finanz-Experte, begleitet Sie ganzheitlich rund um Ihr Immobilienvorhaben.
Unser Team von Immobilienexperten unterstützt Sie beim geplanten Kauf als auch bei einem möglichen Verkauf Ihrer bestehenden Immobilie. Zudem bieten unsere Finanzierungsexperten auf Wunsch maßgeschneiderte Finanzierungslösungen durch den Vergleich der besten Kredite von über 120 Banken in Österreich und Deutschland.
Wir möchten Sie unabhängig, transparent und flexibel als starker Partner in allen Immobilienangelegenheiten unterstützen.
Kontaktieren Sie uns für einen persönlichen Besichtigungstermin oder eine unverbindliche und kostenfreie Finanzierungsberatung.
Kaufpreis EUR 460.000,00
(Sämtliche o.a. m²-Angaben laut Nutzwertgutachten gem. Kauf & Wohnungseigentumsvertrag bzw. Einreichplanung)
Für weitere Informationen fordern Sie bitte unser ausführliches Exposé an.
Johannes Kurz
johannes.kurz@infina-partner.at
Was kann Infina noch für Sie tun
Wenn Sie eine Finanzierung für Ihre Traumimmobilie wünschen, begleiten wir Sie gerne von der strategischen Planung bis zur Realisierung und darüber hinaus. Wir sind Österreichs beliebtester Wohnbau-Finanz-Experte und unsere Mission lautet: Jeder Kunde hat das Recht auf den besten Kredit.
- Infina kooperiert mit über 120 Banken in Österreich und Deutschland
- Über 600 Kreditprodukte im Vergleich
- Über 100-mal vor Ort in ganz Österreich
Ebenso unterstützen wir unsere Kunden beim Verkauf und der Vermietung Ihrer Immobilien sowie bei der Immobiliensuche durch unsere Immobilienexperten.
Kauferwerbsnebenkosten:
Lt. Nebenkostenübersicht
3,5 % Grunderwerbssteuer
1,1 % Grundbuchseintragungsgebühr
Kosten für die Errichtung des Kaufvertrages und Treuhandschaft lt. Anwaltstarif zzgl. Barauslagen
Wir weisen Sie darauf hin, dass die gemachten Angaben und Informationen lediglich unverbindliche Vorabinformationen sind und daher ohne Gewähr erfolgen.
Der Vermittler ist als Doppelmakler tätig.
Infrastruktur / Entfernungen
Gesundheit
Arzt <500m
Apotheke <500m
Kinder & Schulen
Schule <500m
Kindergarten <500m
Höhere Schule <6.000m
Nahversorgung
Bäckerei <500m
Supermarkt <1.000m
Sonstige
Bank <500m
Geldautomat <500m
Post <500m
Polizei <6.500m
Verkehr
Bus <500m
Bahnhof <500m
Angaben Entfernung Luftlinie / Quelle: OpenStreetMap
Kabel/SAT/TV: JA
Rollstuhlgerecht: JA
Barrierefrei: JA
Provision: 3,60 ? inkl. 20% USt.