MEIN ERGEBNIS ANPASSEN

Architektonisch hochwertiger Neubau in bester Lage von Scharnitz! Top 06 - Objektnr. 5562900


ökologisch beheizt
  • Visualisierung Peak Karwendel Nr.1.jpg
  • Visualisierung Peak Karwendel Nr.2.jpg
  • Position Wohnung 06.png
  • Bild Schlafzimmer 1.jpg
  • Bild Schlafzimmer 2.jpg
  • Bild Balkon.png
  • Grundriss 06.jpg
  • Grundrisse Gesamt 2.OG.jpg
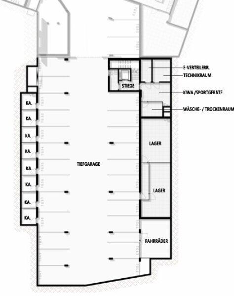
  • Grundriss UG.jpg
6108
Ort
61,82 m²
Fläche
2.0
Zimmer

ECKDATEN
FindMyHome.at // Externe Immobilien-ID5562900 // 8071/262
ImmobilienartEigentum
Anschrift6108 Scharnitz
Befeuerung
Luftwärmepumpe
Geschosse2
Fläche61,82 m²
Zimmer2.0
Bad1
WC1
 Abstellraum
Kaufpreis:€ 410.000,00
Ratenzahlung:Finanzierungsmöglichkeiten für diese Immobilie anzeigen
Provision: 3,60 ? inkl. 20% USt.







BESCHREIBUNG

Architektonisch hochwertiger Neubau in bester Lage von Scharnitz! Top 06

Hier einige kurze Informationen zur Immobilie:

Die Wohnanlage bietet Platz für 10 großzügige Wohnungen mit ausreichend Platz für Familien. Im Erdgeschoss sind 2 Geschäftslokale situiert die durch die Laubengangsituation optimal Richtung Dorfplatz geöffnet sind. Der Garten ist parkähnlich angelegt und beinhaltet einen modernen Kinderspielplatz. In der Grundausstattung inbegriffen sind hochwertige Parkettböden, großflächige Fliesen sowie eine Sanitär- und Elektroausstattung von namhaften Herstellern.

Das Gebäude umfasst ein Untergeschoss sowie drei oberirdische Geschosse. Im Untergeschoss befindet sich eine Tiefgarage mit Technik- und Lagerräumen sowie Allgemeinflächen für Sportgeräte, usw. Die 2 im Erdgeschoss situierten Geschäftslokale bieten sich aufgrund des zentralen Standorts ideal für eine Bäckerei oder ein Kaffeehaus mit kleinen Snacks an. Ein Sportgeschäft könnte das Angebot im Ortszentrum abrunden. In den oberen Etagen (1. und 2. OG) liegen die geräumigen Wohnungen mit 2-3 Zimmern. Das Heiz- und Kühlsystem des Gebäudes basiert auf dem effizienten Einsatz moderner Wärmepumpentechnologie welche optional über eine Photovoltaik Anlage auf dem Flachdach unterstütz werden kann.

Die Wohnung 06 (2.OG) hat eine Größe von ca. 62 Quadratmeter und eine Loggia mit ca. 8,5 Quadratmeter.

Kaufpreis Wohnung: 410.000€

Optional Kaufpreis Autoabstellplatz Garage: 25.000€

Optional Kaufpreis Autoabstellplatz Außen: 15.000€

Infina, Österreichs beliebtester Wohnbau-Finanz-Experte, begleitet Sie ganzheitlich rund um Ihr Immobilienvorhaben.

Unser Team von Immobilienexperten unterstützt Sie beim geplanten Kauf als auch bei einem möglichen Verkauf Ihrer bestehenden Immobilie. Zudem bieten unsere Finanzierungsexperten auf Wunsch maßgeschneiderte Finanzierungslösungen durch den Vergleich der besten Kredite von über 120 Banken in Österreich und Deutschland.

Wir möchten Sie unabhängig, transparent und flexibel als starker Partner in allen Immobilienangelegenheiten unterstützen.

Kontaktieren Sie uns für einen persönlichen Besichtigungstermin oder eine unverbindliche und kostenfreie Finanzierungsberatung.

Kaufpreis EUR 410.000,00
(Sämtliche o.a. m²-Angaben laut Nutzwertgutachten gem. Kauf & Wohnungseigentumsvertrag bzw. Einreichplanung)

Für weitere Informationen fordern Sie bitte unser ausführliches Exposé an.

Johannes Kurz
johannes.kurz@infina-partner.at

Was kann Infina noch für Sie tun

Wenn Sie eine Finanzierung für Ihre Traumimmobilie wünschen, begleiten wir Sie gerne von der strategischen Planung bis zur Realisierung und darüber hinaus. Wir sind Österreichs beliebtester Wohnbau-Finanz-Experte und unsere Mission lautet: Jeder Kunde hat das Recht auf den besten Kredit.

  • Infina kooperiert mit über 120 Banken in Österreich und Deutschland
  • Über 600 Kreditprodukte im Vergleich
  • Über 100-mal vor Ort in ganz Österreich

Ebenso unterstützen wir unsere Kunden beim Verkauf und der Vermietung Ihrer Immobilien sowie bei der Immobiliensuche durch unsere Immobilienexperten.

Kauferwerbsnebenkosten:
Lt. Nebenkostenübersicht
3,5 % Grunderwerbssteuer
1,1 % Grundbuchseintragungsgebühr
Kosten für die Errichtung des Kaufvertrages und Treuhandschaft lt. Anwaltstarif zzgl. Barauslagen


Wir weisen Sie darauf hin, dass die gemachten Angaben und Informationen lediglich unverbindliche Vorabinformationen sind und daher ohne Gewähr erfolgen.

Der Vermittler ist als Doppelmakler tätig.


Infrastruktur / Entfernungen

Gesundheit
Arzt <500m
Apotheke <500m

Kinder & Schulen
Schule <500m
Kindergarten <500m
Höhere Schule <6.000m

Nahversorgung
Bäckerei <500m
Supermarkt <1.000m

Sonstige
Bank <500m
Geldautomat <500m
Post <500m
Polizei <6.500m

Verkehr
Bus <500m
Bahnhof <500m

Angaben Entfernung Luftlinie / Quelle: OpenStreetMap

Kabel/SAT/TV: JA
Rollstuhlgerecht: JA
Barrierefrei: JA
Provision: 3,60 ? inkl. 20% USt.


Alle Details anzeigen

KONTAKT






 

Lasse dich kostenlos vom Anbieter dieser Immobilie zurückrufen.







 


 
Infina Immobilien
Johannes Kurz | Infina Partner
Telefonnummer anzeigen Telefon Allgemein: +436641433953
Handy Bearbeiter: +436641433953
 
Bitte dem Makler die FindMyHome.at - ID bekanntgeben: 5562900

Bewertungen dieses Anbieters
Netiquette

BEWERTUNGEN DIESES ANBIETERS

 
Netiquette
FINDMYHOME.AT
NETIQUETTE
Auch du kannst bewerten! 7 Tage nach deiner Anfrage erhältst du dafür von uns ein Bewertungsmail.
Alle Infos zu unseren Auszeichnungen und dem FINDMYHOME.AT Qualitätsprogramm findest du hier: Übersicht anzeigen

FINANZIERUNG
?>

Du willst wissen, wie viel dein Umzug kosten wird?

Mach gleich den kostenlosen Preisvergleich und schau, welche seriösen Anbieter in deiner Region günstig deinen Umzug organisieren


ZUM UMZUGS-VERGLEICH
-->

MYHOME BLOG
SuchAgentin auf FindMyHome.at
Unterschiedlichen Rechtsthemen, köstliche Rezepte, neueste Design-Highlights, sowie aktuelle Technik-Tools für Ihr Eigenheim.


FINDMYHOME.AT SUCHAGENTIN
SuchAgentin auf FindMyHome.at
Hallo, soll ich dir ähnliche Immobilien kostenfrei per E-Mail schicken?


ÄHNLICHE IMMOBILIEN
Aehnliche Immobilie - Vorschaubild 1

Architektonisch hochwertiger Neubau in Top-Lage von Scharnit... - Objektnr. 5562901

69,26 m² - 3.0 Zimmer
460000 €
PLZ: 6108

Mehr anzeigen

Aehnliche Immobilie - Vorschaubild 2

Architektonisch hochwertiger Neubau in Top-Lage von Scharnit... - Objektnr. 5562899

69,37 m² - 3.0 Zimmer
465000 €
PLZ: 6108

Mehr anzeigen

Durch die Nutzung unserer Seite erklären Sie sich mit der Verwendung von Cookies zur Verbesserung Ihres Online-Erlebnisses einverstanden. Detaillierte Informationen zu diesem und weiteren Themen erhalten Sie in unserer Datenschutzerklärung.