MEIN ERGEBNIS ANPASSEN

Gemütliche helle Wohnung mit Balkon und Stellplatz in Katzelsdorf - Objektnr. 5562763


ökologisch beheizt
2801
Ort
€ 1.056,28
Gesamtkosten
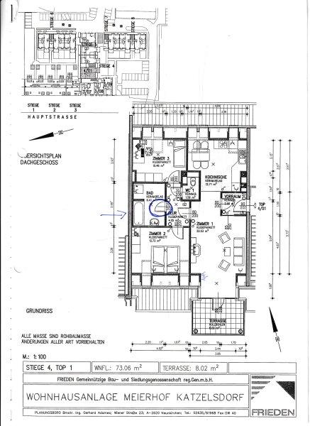
73,00 m²
Fläche
3.0
Zimmer

ECKDATEN
FindMyHome.at // Externe Immobilien-ID5562763 // 136002797
ImmobilienartWohnung - Miete
Anschrift2801 Katzelsdorf
Baujahr2003
Befeuerung
Fernwärme
Mietdauer3
Fläche73,00 m²
Zimmer3.0
Bad1
WC1
Brutto-Miete:€ 1.056,28
Betriebskosten (inkl. MwSt):€ 242,28
Mehrwertsteuer:€ 96,03
Monatliche Gesamtkosten:€ 1.056,28
Provision: Gemäß Erstauftraggeberprinzip bezahlt der Abgeber die Provision.




BESCHREIBUNG

Gemütliche helle Wohnung mit Balkon und Stellplatz in Katzelsdorf

Diese gepflegte, lichtdurchflutete Wohnung mit idealer Raumaufteilung, in Grünruhelage wird ab sofort vermietet.

Das Objekt liegt in einer sehr guten Wohnlage und besticht durch ihre Ruhe, sowie die Nähe zu Wr. Neustadt. Die Wohnanlage verfügt über einen schönen, gepflegten  und großen Gemeinschaftsgarten mit Sitzgelegenheiten.

Die Wohnung befindet sich im 1. Stock und verfügt über 2 Schlafzimmer. Über den Vorraum kommen Sie ins südseitig gelegene Wohnzimmer mit  Ausgang auf einen großen Balkon, rechts befindet sich die vollkommen eingerichtete Küche mit Essplatz. Die Schlafräume sind vom Wohnzimmer durch eine Tür getrennt. Das Badezimmer ist mit Badewanne, Waschmaschine und einem geräumigen Schrank ausgestattet. Das WC liegt gegenüber des Badezimmers. Zur Wohnung gehört auch ein geräumiges Kellerabteil und ein eigener Stellplatz.

Die Wohnung ist ausgestattet mit Parkettfußböden und Fliesen.

Es besteht eine Fußbodenheizung(Fernwärme) mit eigenem Zähler.

Strom und Heizkosten werden über die eigenen Zähler mit Ihnen direkt verrechnet. 

Die öffentliche Verkehrsanbindung ist durch Bus und Bahn in unmittelbarer Nähe gegeben. Im Ort gibt es sowohl Einkaufsmöglichkeiten als auch Kindergärten und Schulen.

Die Nähe zu Wiener Neustadt, die nahegelegene Autobahnauffahrt, beliebte Heurigen und einige Restaurants, sogar ein Haubenlokal machen Katzelsdorf zu einem beliebten Wohnort für Familien und Pärchen, dörflicher Charakter mit vielen Annehmlichkeiten 

Katzelsdorf als Wohnort hat in Bezug auf Freizeit und Sport so einiges zu bieten.Nicht unweit vom Ortszentrum befinden sich die ersten Weingärten des Thermengebietes. Die traditionellen Heurigen laden herzlich zu Weinverkostungen und hervorragender Heurigenjause. 

Unberührte Naturlandschaften in den Leithaauen und den Wäldern der Rosalia, sowie umfangreiche Kulturveranstaltungen runden das Angebot ab.

Aufgrund der Nachweispflicht gegenüber dem Eigentümer ersuchen wir um Verständnis, dass nur Anfragen mit der Angabe der vollständigen Anschrift und Telefonnummer bearbeitet werden können.

Wir weisen auf Ihre 14-tägige Rücktrittsfrist (gemäß § 11 FAGG ) hin. Um Ihre Rechte zu wahren, können nur Anfragen mit vollständigen Kontaktdaten (Name, Adresse, Telefon, Email) beantwortet werden. Vor Ablauf der 14-tägigen Rücktrittsfrist werden wir gerne für Sie tätig, wenn Sie gesetzeskonform (FAGG) uns ausdrücklich (am einfachsten per E-Mail) dazu auffordern.

Wenn der Kaufvertrag nicht zustande kommt, bleibt unsere Tätigkeit für Sie vollkommen kostenlos.

Ich freue mich auf Ihre Anfrage bzw. einen gemeinsamen Besichtigungstermin unter 0676 60 86 484.

Der Immobilienmakler erklärt, dass er entgegen dem in der Immobilienwirtschaft üblichen Geschäftsgebrauch des Doppelmaklers einseitig nur für den Vermieter tätig ist.


Infrastruktur / Entfernungen

Gesundheit
Arzt <500m
Apotheke <3.000m
Klinik <4.000m
Krankenhaus <4.500m

Kinder & Schulen
Schule <1.500m
Kindergarten <500m
Universität <7.000m
Höhere Schule <4.000m

Nahversorgung
Supermarkt <500m
Bäckerei <500m
Einkaufszentrum <500m

Sonstige
Bank <500m
Geldautomat <500m
Post <500m
Polizei <3.000m

Verkehr
Bus <500m
Autobahnanschluss <2.000m
Bahnhof <2.000m
Flughafen <7.000m

Angaben Entfernung Luftlinie / Quelle: OpenStreetMap

Kabel/SAT/TV: JA
Provision: Gemäß Erstauftraggeberprinzip bezahlt der Abgeber die Provision.


Alle Details anzeigen

KONTAKT






 

Lasse dich kostenlos vom Anbieter dieser Immobilie zurückrufen.







 


 
Real Immobilien Treuhand GmbH
Renate Steinberger
Telefonnummer anzeigen Handy Bearbeiter: +436766086484
 
Bitte dem Makler die FindMyHome.at - ID bekanntgeben: 5562763

Bewertungen dieses Anbieters
Netiquette
Freundlichkeit
Antwortszeit
100 %

BEWERTUNGEN DIESES ANBIETERS

 
Antwortzeit
ø 24h ANTWORT
Weiterempfehlung
WIRD SEHR GERNE

Freundlichkeit
BESONDERS
FREUNDLICH
Netiquette
FINDMYHOME
NETIQUETTE
Auch du kannst bewerten! 7 Tage nach deiner Anfrage erhältst du dafür von uns ein Bewertungsmail.
Alle Infos zu unseren Auszeichnungen und dem FINDMYHOME.AT Qualitätsprogramm findest du hier: Übersicht anzeigen


Du willst wissen, wie viel dein Umzug kosten wird?

Mach gleich den kostenlosen Preisvergleich und schau, welche seriösen Anbieter in deiner Region günstig deinen Umzug organisieren


ZUM UMZUGS-VERGLEICH
-->

MYHOME BLOG
SuchAgentin auf FindMyHome.at
Unterschiedlichen Rechtsthemen, köstliche Rezepte, neueste Design-Highlights, sowie aktuelle Technik-Tools für Ihr Eigenheim.


FINDMYHOME.AT SUCHAGENTIN
SuchAgentin auf FindMyHome.at
Hallo, soll ich dir ähnliche Immobilien kostenfrei per E-Mail schicken?


Durch die Nutzung unserer Seite erklären Sie sich mit der Verwendung von Cookies zur Verbesserung Ihres Online-Erlebnisses einverstanden. Detaillierte Informationen zu diesem und weiteren Themen erhalten Sie in unserer Datenschutzerklärung.