Hell und zentral - Moderne 2-Zimmer Wohnung (Heizkosten inkl.) - Objektnr. 5562161
ECKDATEN
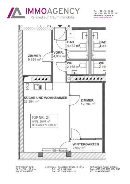
BESCHREIBUNG
KONTAKT
Lasse dich kostenlos vom Anbieter dieser Immobilie zurückrufen.
IMMO AGENCY GmbH
Michael Gebesmair
Michael Gebesmair
Telefonnummer anzeigen
Telefon Allgemein: +436769525755
Bitte dem Makler die FindMyHome.at - ID bekanntgeben: 5562161
Bitte dem Makler die FindMyHome.at - ID bekanntgeben: 5562161
Bewertungen dieses Anbieters
Qualitätsmakler:
2015, 2016, 2017, 2019, 2020, 2021, 2023 , 2024,
2015, 2016, 2017, 2019, 2020, 2021, 2023 , 2024,
76
%
BEWERTUNGEN DIESES ANBIETERS
Qualitätsmakler
2015, 2016, 2017, 2019, 2020, 2021, 22/23 2024
2015, 2016, 2017, 2019, 2020, 2021, 22/23 2024
WIRD GERNE
WEITEREMPFOHLEN
WEITEREMPFOHLEN
BESONDERS
FREUNDLICH
FREUNDLICH
FINDMYHOME.AT
NETIQUETTE
NETIQUETTE
Auch du kannst bewerten! 7 Tage nach deiner Anfrage erhältst du dafür von uns ein Bewertungsmail.
Alle Infos zu unseren Auszeichnungen und dem FINDMYHOME.AT Qualitätsprogramm findest du hier: Übersicht anzeigen
Alle Infos zu unseren Auszeichnungen und dem FINDMYHOME.AT Qualitätsprogramm findest du hier: Übersicht anzeigen
Du willst wissen, wie viel dein Umzug kosten wird?
Mach gleich den kostenlosen Preisvergleich und schau, welche seriösen Anbieter in deiner Region günstig deinen Umzug organisieren
ZUM UMZUGS-VERGLEICH






















