MEIN ERGEBNIS ANPASSEN

Wohnen im Grünen - Exklusive Neubauwohnung in Graz-Mariatrost mit modernem Komfort und idyllischer Aussicht! - Objektnr. 5561786

8044
Ort
108,00 m²
Fläche
4.0
Zimmer

ECKDATEN
FindMyHome.at // Externe Immobilien-ID5561786 // 289030
ImmobilienartEigentum
AnschriftMariatroster Straße
8044 Graz,11.Bez.:Mariatrost
Stock2
Fläche108,00 m²
Terrassen1 (41,00 m²)
Zimmer4.0
Bad2
WC2
Kaufpreis:€ 749.000,00
Ratenzahlung:Finanzierungsmöglichkeiten für diese Immobilie anzeigen
Provision:







BESCHREIBUNG

Wohnen im Grünen - Exklusive Neubauwohnung in Graz-Mariatrost mit modernem Komfort und idyllischer Aussicht!

Wohnen im Grünen - Exklusive Neubauwohnung in Graz-Mariatrost mit modernem Komfort und idyllischer Aussicht!

 

Fakten zur Top 5:

  • WFL von 107,9m² im 2.OG und SW Ausrichtung
  • 4 Zimmer
  • 3 Schlafzimmer mit (14,3m², 11,3m², 11,4m²)
  • WO/ESS/KO auf 43m² und der anschließenden Terrasse mit 21,8m²
  • Vorräume gesamt mit 13m²
  • Badezimmer 1, mit Badewanne und WC auf 5,3m²
  • Badezimmer 2, mit Dusche, WC und Fenster
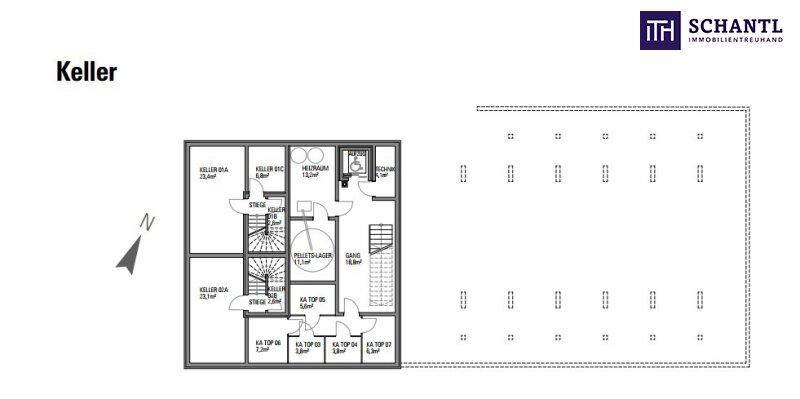
  • Abstellraum mit 2m²
  • Speis mit 2,7m²                                                                                                          
  • Pellets-Heizung
  • KP BRUTTO der Top 5 € 749.000,00
  • KP NETTO der Top 5 € 717.697,00
  • KP der TG BRUTTO € 27.500,00
  • KP der TG NETTO € 24.750,00

Highlights zur Top 5:

  • großzügiger Wohnraum 108 m² Wohnfläche mit offenem Grundriss und lichtdurchfluteten Räumen für ein komfortables Wohnambiente

  • moderne Ausstattung hochwertige Materialien, edler Parkettboden, Fußbodenheizung und moderne Sanitäranlagen sorgen für gehobenen Wohnkomfort

  • große Fensterfronten Panorama-Fenster bieten einen traumhaften Ausblick auf das grüne Mariatrost und lassen viel natürliches Licht herein

  • sehr geräumiger Balkon  ein großzügiger Außenbereich lädt zum Entspannen und Genießen der idyllischen Umgebung ein

  • zwei luxuriöse Badezimmer moderne Bäder mit bodentiefer Dusche, Badewanne und hochwertigen Armaturen für eine Wohlfühloase zuhause

  • zusätzlicher Abstellraum praktischer Stauraum innerhalb der Wohnung sowie Kellerabteil für zusätzlichen Komfort

  • Tiefgarage  eigener Stellplatz oder Carport direkt vor der Tür, ideal für bequemes und sicheres Parken

  • erstklassige Energieeffizienz modernste Bauweise und nachhaltige Energieversorgung für niedrige Betriebskosten und umweltfreundliches Wohnen

  • eine Traumlage im Grünen ruhige und naturnahe Umgebung in Graz-Mariatrost mit schneller Anbindung ans Stadtzentrum und guter Infrastruktur in der Nähe

  • diese Highlights betonen die Besonderheiten und den hohen Wohnstandard der Wohnung

 

NOCH VERFÜGBARE TOPS:
  • 1.OG Top 3, WFL von 47m², 2 Zimmer, brutto € 309.000,00, netto € 295.399,00, TG brutto € 27.500,00, TG netto € 24.750,00
  • 2 & 3 OG Top 6, WFL von 118m², 4 Zimmer, brutto € 895.000,00, netto € 746.697,00, TG brutto € 27.500,00, TG netto € 24.750,00

Worauf noch warten

Vereinbaren Sie noch heute eine Besichtigung oder eine persönliche Beratung mit uns!

Sie wollen Ihre Immobilie verkaufen Dann sind Sie bei uns goldrichtig!

Wir sind gerne für Sie da und unterstützen Sie unverbindlich bei der Bewertung Ihrer Immobilie. Mit viel Sorgfalt stellen wir Ihnen alle wichtigen Informationen und Unterlagen zusammen, damit Sie die besten Entscheidungen treffen können.

In Kooperation mit unserer SFI Vermögenstreuhand begleiten wir Sie bei der Verwirklichung Ihres Traumobjekts und unterstützen Sie beim nachhaltigen Vermögensaufbau. Mit unseren erfahrenen Experten sorgen wir dafür, dass Sie die besten Konditionen erhalten damit Ihre Träume Wirklichkeit werden!

http://www.schantl-ith.at in Kooperation mit www.sfi-invest.com 

 

Wir weisen darauf hin, dass zwischen dem Vermittler und dem zu vermittelnden Dritten ein familiäres oder wirtschaftliches Naheverhältnis besteht.

Der Vermittler ist als Doppelmakler tätig.


Infrastruktur / Entfernungen

Gesundheit
Arzt <500m
Apotheke <250m
Klinik <2.250m
Krankenhaus <2.000m

Kinder & Schulen
Schule <750m
Kindergarten <1.000m
Universität <2.250m
Höhere Schule <1.750m

Nahversorgung
Supermarkt <250m
Bäckerei <2.000m
Einkaufszentrum <4.250m

Sonstige
Geldautomat <750m
Bank <750m
Post <1.000m
Polizei <2.500m

Verkehr
Bus <250m
Straßenbahn <250m
Bahnhof <4.250m
Autobahnanschluss <7.500m

Angaben Entfernung Luftlinie / Quelle: OpenStreetMap

Kabel/SAT/TV: JA
Provision:


Alle Details anzeigen

KONTAKT






 

Lasse dich kostenlos vom Anbieter dieser Immobilie zurückrufen.







 


 
Schantl ITH Immobilientreuhand GmbH
Ursula Seiwald
Telefonnummer anzeigen Handy Bearbeiter: +436645725475
 
Bitte dem Makler die FindMyHome.at - ID bekanntgeben: 5561786

Bewertungen dieses Anbieters
Qualitätsmakler
Qualitätsmakler:
2015, 2016, 2018, 2019, 2020, 2021, 2023 , 2024, 2025,
Netiquette
Freundlichkeit
79 %

BEWERTUNGEN DIESES ANBIETERS

 
Qualit�tsmakler
Qualitätsmakler
2015, 2016, 2018, 2019, 2020, 2021, 22/23, 2024, 2025
Antwortzeit
ø 48h ANTWORT
Weiterempfehlung
WIRD GERNE

Freundlichkeit
BESONDERS
FREUNDLICH
Netiquette
FINDMYHOME
NETIQUETTE
Auch du kannst bewerten! 7 Tage nach deiner Anfrage erhältst du dafür von uns ein Bewertungsmail.
Alle Infos zu unseren Auszeichnungen und dem FINDMYHOME.AT Qualitätsprogramm findest du hier: Übersicht anzeigen

FINANZIERUNG
?>

Du willst wissen, wie viel dein Umzug kosten wird?

Mach gleich den kostenlosen Preisvergleich und schau, welche seriösen Anbieter in deiner Region günstig deinen Umzug organisieren


ZUM UMZUGS-VERGLEICH
-->

MYHOME BLOG
SuchAgentin auf FindMyHome.at
Unterschiedlichen Rechtsthemen, köstliche Rezepte, neueste Design-Highlights, sowie aktuelle Technik-Tools für Ihr Eigenheim.


FINDMYHOME.AT SUCHAGENTIN
SuchAgentin auf FindMyHome.at
Hallo, soll ich dir ähnliche Immobilien kostenfrei per E-Mail schicken?


Durch die Nutzung unserer Seite erklären Sie sich mit der Verwendung von Cookies zur Verbesserung Ihres Online-Erlebnisses einverstanden. Detaillierte Informationen zu diesem und weiteren Themen erhalten Sie in unserer Datenschutzerklärung.