MEIN ERGEBNIS ANPASSEN

Perfekt aufgeteilte 2 Zimmerwohnung mit Balkon - Objektnr. 5560883


ökologisch beheizt
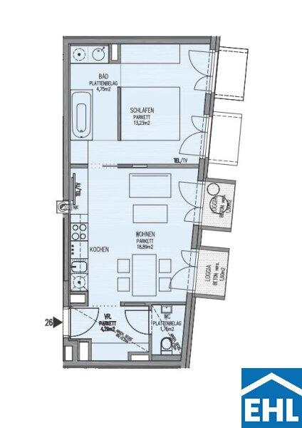
  • Grundriss
1100
Ort
€ 845,00
Gesamtkosten
42,91 m²
Fläche
2.0
Zimmer
WEITERE MEDIEN

ECKDATEN
FindMyHome.at // Externe Immobilien-ID5560883 // 20347
ImmobilienartWohnung - Miete
AnschriftDavidgasse
1100 Wien
Befeuerung
Fernwärme
Stock5
Mietdauer5
Fläche42,91 m²
Zimmer2.0
Bad1
WC1
Kaution:€ 2.535,00
Brutto-Miete:€ 845,00
Betriebskosten (inkl. MwSt):€ 116,07
Mehrwertsteuer:€ 76,82
Monatliche Gesamtkosten:€ 845,00
Provision: Gemäß Erstauftraggeberprinzip bezahlt der Abgeber die Provision.




BESCHREIBUNG

Perfekt aufgeteilte 2 Zimmerwohnung mit Balkon

Perfekt aufgeteilte 2 Zimmerwohnung mit Loggia

Die Wohnung ist aufgrund der optimalen Raumaufteilung sowohl als Paarwohnung als auch für den Single bestens geeignet und besteht aus einem Wohnzimmer mit voll ausgestatteter Küche, einem Schlafzimmer mit direkt angrenzendem Badezimmer, einem Vorraum, einer separaten Toilette und zwei Loggien.

Gleich ums Eck, nur einen Steinwurf vom Reumannplatz entfernt, ist man von hier aus in exakt 10 Minuten am Stephansplatz, in einer Minute zu Fuß auf der Shoppingmeile Favoritenstraße und im Handumdrehen in Wiens legendärstem Eissalon. Wer Erholung oder sportliche Betätigung sucht, geht nebenan ins historische Amalienbad. Eine höhere Lehranstalt für wirtschaftliche Berufe und die Volkshochschule Favoriten sorgen für Aus- und Weiterbildung im unmittelbaren Umfeld.

Auch verkehrstechnisch gesehen befindet sich das Objekt in guter Lage. Die U-Bahn Linie U1 und diverse Bus- und Straßenbahnlinien sind in kürzester Zeit zu erreichen.

Ausstattung

  • vollausgestattete Küche
  • Bad mit Wanne, Waschmaschinenanschluss und Handtuchheizkörper
  • hochwertiger Parkettboden in den Wohnräumen
  • helle Fliesen in den Nassräumen


Ein Lift, Kellerabteile, ein Kinderwagen- und Fahrradabstellraum sowie eine Waschküche befinden sich ebenfalls im Haus. In der hauseigenen Tiefgarage besteht außerdem die Möglichkeit einer Stellplatzanmietung.

Öffentliche Verkehrsanbindung:
U-Bahn Linie U1 - "Reumannplatz"
Straßenbahnlinie 6, 67
Buslinien 70A
Regionalbuslinien 266, 271

Heizung und Warmwasser werden nach Verbrauch abgerechnet.

Befristung: 5 Jahre, 
1 Jahr Kündigungsverzicht, 1 Monate Kündigungsfrist

Nebenkosten:
3 BMM Kaution, Vertragserrichtungsgebühr

Wir weisen darauf hin, dass zwischen dem Vermittler und dem zu vermittelnden Dritten ein familiäres oder wirtschaftliches Naheverhältnis besteht.

Der Immobilienmakler erklärt, dass er entgegen dem in der Immobilienwirtschaft üblichen Geschäftsgebrauch des Doppelmaklers einseitig nur für den Vermieter tätig ist.


Infrastruktur / Entfernungen

Gesundheit
Arzt <250m
Apotheke <250m
Klinik <500m
Krankenhaus <2.000m

Kinder & Schulen
Schule <250m
Kindergarten <500m
Universität <750m
Höhere Schule <2.500m

Nahversorgung
Supermarkt <250m
Bäckerei <250m
Einkaufszentrum <1.000m

Sonstige
Geldautomat <250m
Bank <250m
Post <250m
Polizei <750m

Verkehr
Bus <250m
U-Bahn <250m
Straßenbahn <250m
Bahnhof <250m
Autobahnanschluss <1.250m

Angaben Entfernung Luftlinie / Quelle: OpenStreetMap

Provision: Gemäß Erstauftraggeberprinzip bezahlt der Abgeber die Provision.


Alle Details anzeigen

KONTAKT






 

Lasse dich kostenlos vom Anbieter dieser Immobilie zurückrufen.







 


 
EHL Wohnen GmbH
Andreas Minarik
Telefonnummer anzeigen Telefon Allgemein: +4315127690425
 
Bitte dem Makler die FindMyHome.at - ID bekanntgeben: 5560883

Bewertungen dieses Anbieters
Qualitätsmakler
Qualitätsmakler:
Netiquette
Freundlichkeit
81 %

BEWERTUNGEN DIESES ANBIETERS

 
Qualitätsmakler
UNSERE HALL OF FAME DER BESTEN ANBIETER
Qualit�tsmakler
Qualitätsmakler
2012, 2013, 2014, 2015, 2016, 2017, 2018, 2019, 2020, 2021, 22/23, 2024, 2025
Weiterempfehlung
WIRD GERNE

Freundlichkeit
BESONDERS
FREUNDLICH
Netiquette
FINDMYHOME
NETIQUETTE
Auch du kannst bewerten! 7 Tage nach deiner Anfrage erhältst du dafür von uns ein Bewertungsmail.
Alle Infos zu unseren Auszeichnungen und dem FINDMYHOME.AT Qualitätsprogramm findest du hier: Übersicht anzeigen


Du willst wissen, wie viel dein Umzug kosten wird?

Mach gleich den kostenlosen Preisvergleich und schau, welche seriösen Anbieter in deiner Region günstig deinen Umzug organisieren


ZUM UMZUGS-VERGLEICH
-->

MYHOME BLOG
SuchAgentin auf FindMyHome.at
Unterschiedlichen Rechtsthemen, köstliche Rezepte, neueste Design-Highlights, sowie aktuelle Technik-Tools für Ihr Eigenheim.


FINDMYHOME.AT SUCHAGENTIN
SuchAgentin auf FindMyHome.at
Hallo, soll ich dir ähnliche Immobilien kostenfrei per E-Mail schicken?


ÄHNLICHE IMMOBILIEN
Aehnliche Immobilie - Vorschaubild 1

Klein aber fein: Smartapartment mit allen Extras!... - Objektnr. 5549604

37,88 m² - 1.0 Zimmer
840 €
PLZ: 1100

Mehr anzeigen

Aehnliche Immobilie - Vorschaubild 2

ERSTBEZUG in modernen NEUBAU mit FREIFLÄCHEN! - Objektnr. 5560338

41,55 m² - 2.0 Zimmer
1000.95 €
PLZ: 1100

Mehr anzeigen

Aehnliche Immobilie - Vorschaubild 3

Services Apartment mit Balkon in Oberlaa! Strom, Heizung, Kü... - Objektnr. 5523311

34,00 m² - 1.0 Zimmer
990 €
PLZ: 1100

Mehr anzeigen

Durch die Nutzung unserer Seite erklären Sie sich mit der Verwendung von Cookies zur Verbesserung Ihres Online-Erlebnisses einverstanden. Detaillierte Informationen zu diesem und weiteren Themen erhalten Sie in unserer Datenschutzerklärung.