MEIN ERGEBNIS ANPASSEN

Wohnen Nahe des Cottageviertels - Sternwartestraße 18 - Objektnr. 5560388

  • Wohnzimmer
  • Zimmer
  • Küche
  • Strassenblick
  • Küche
  • WC
  • Badezimmer
  • Küche
  • Abstellraum
  • Vorzimmer
  • Zimmer
  • Zimmer
  • Zimmer
  • Wohnzimmer
  • Bad
  • Ausblick
1180
Ort
170,00 m²
Fläche
2.0
Zimmer

ECKDATEN
FindMyHome.at // Externe Immobilien-ID5560388 // 25306
ImmobilienartWohnung - Eigentum
AnschriftSternwartestraße 18/3+4
1180 Wien
Stock1
Geschosse4
Fläche170,00 m²
Zimmer2.0
Kaufpreis:€ 1.008.000,00
Ratenzahlung:Finanzierungsmöglichkeiten für diese Immobilie anzeigen
Provision: 3







BESCHREIBUNG

Wohnen Nahe des Cottageviertels - Sternwartestraße 18

DAS PROJEKT

Die Liegenschaft wurde kürzlich einer umfassenden Renovierung unterzogen, bei der Bedacht auf den Erhalt historischer Stilelemente gelegt wurde, in Einklang gebracht mit den Bedürfnissen modernen Wohnens.

Von der Gestaltung der Straßenfassade bis hin zur  Adaptierung des Stiegenhauses wurden zahlreiche Maßnahmen gesetzt, um Ihrem Wohnbedürfnis zu entsprechen!

Vom Erstbezug bis zur Möglichkeit Ihre eigenen Vorstellungen zu verwirklichen!

Gelegen in einem schönen Stilhaus in der Sternwartestraße gelangen 5 Wohnungen zum Verkauf.

Im Angebot befinden sich fünf hochwertige Wohnungen, von denen drei nach einer umfangreichen Sanierung in Top-Zustand präsentiert werden. Die Wohnflächen variieren zwischen 51 m² und 109 m² und bieten für unterschiedliche Bedürfnisse und Lebensstile das passende Raumangebot. 

Drei Einheiten wurden aufwendig saniert und bieten als Erstbezüge höchsten Wohnkomfort in stilvollem Ambiente.

Besonders hervorzuheben sind die Freiflächen, die einige Wohnungen mitbringen Terrassen und Gärten laden zum Entspannen im Freien ein. Die Dachgeschosswohnung bietet eine ruhige absolut private Terrasse.

Bei den sanierungsbedürftigen Wohnungen ist ein Balkonanbau möglich.

Auf Wunsch können Stapelparkplätze im Haus erworben werden.

Der Preis für den oberen Stapelparker beträgt € 45.000, der Preis für den unteren Stapelparker liegt bei € 37.500.x

 

HIGHLIGHTS

  • Charme der Jahrhundertwende kombiniert mit modernem Wohnen
  • 2-5 Zimmer Wohnungen
  • von sanierungsbedürftig bis zum topsanierten Erstbezug
  • flexible Raumgestaltung möglich
  • Terrassen, Gärten
  • Balkonanbau möglich
  • Lift
  • zentrale Lage
  • gute öffentliche Anbindung
  • Garagenplätze möglich

NEBENKOSTEN

Der guten Ordnung halber halten wir fest, dass, sofern im Angebot nicht anders vermerkt, bei erfolgreichem Abschlussfall eine Provision anfällt, die den in der Immobilienmaklerverordnung BGBI. 262 und 297/1996 festgelegten Sätzen entspricht das sind 3 % des Kaufpreises zzgl. 20 % USt. Diese Provisionspflicht besteht auch dann, wenn Sie die Ihnen überlassenen Informationen an Dritte weitergeben. Es besteht ein wirtschaftliches Naheverhältnis zum Verkäufer.

Die Vertragserrichtung und Treuhandabwicklung ist gebunden an die Kanzlei Giebl & Zirm Rechtsanwälte, Dr. Karl Lueger-Platz 5, A-1010 Wien . Die Kosten dafür betragen 1,5% + 20% Ust + Barauslagen.

Sämtliche Ihnen hiermit übermittelte Angaben wurden uns, seitens des Abgebers bekannt gegeben. Eine Garantie auf Richtigkeit und Vollständigkeit können wir nicht übernehmen.

Hinweis gemäß Energieausweisvorlagegesetz:

Ein Energieausweis wurde vom Eigentümer bzw. Verkäufer, nach unserer Aufklärung über die generell geltende Vorlagepflicht, sowie Aufforderung zu seiner Erstellung noch nicht vorgelegt. Daher gilt zumindest eine dem Alter und der Art des Gebäudes entsprechende Gesamtenergieeffizienz als vereinbart. Wir übernehmen keinerlei Gewähr oder Haftung für die tatsächliche Energieeffizienz der angebotenen Immobilie.

Wir weisen darauf hin, dass zwischen dem Vermittler und dem zu vermittelnden Dritten ein familiäres oder wirtschaftliches Naheverhältnis besteht.

Der Vermittler ist als Doppelmakler tätig.

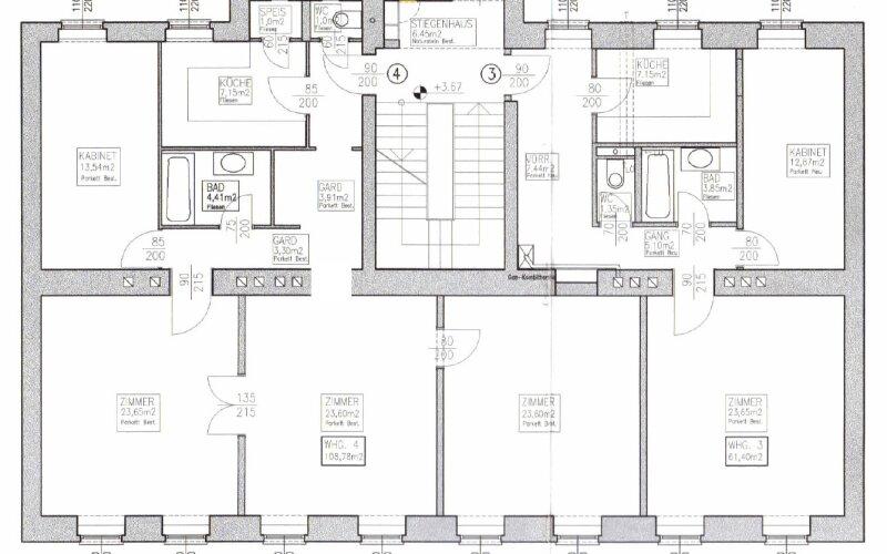
Sanierungsbedürftige Etage im 1. Liftstock:

Zusammenlegung 2er Wohnungen Top 3+4

Sie haben die selten Möglichkeit, eine gesamte Altbauetage zu erwerben und nach Ihren Vorstellungen zu gestalten!

 

Aufteilung derzeit Top 3:

  • Vorraum
  • WC
  • Bad
  • Küche
  • Kabinett
  • Zimmer

Aufteilung derzeit Top 4:

  • Vorraum
  • WC
  • Bad
  • Küche
  • Kabinett
  • 3 Zimmer

Ein Balkonanbau wäre möglich. 

Gerne kann die Wohnung auch als sanierter Erstbezug nach Ihren Vorstellungen erworben werden.

Wir weisen darauf hin, dass zwischen dem Vermittler und dem zu vermittelnden Dritten ein familiäres oder wirtschaftliches Naheverhältnis besteht.

Der Vermittler ist als Doppelmakler tätig.


Infrastruktur / Entfernungen

Gesundheit
Arzt <50m
Apotheke <175m
Klinik <350m
Krankenhaus <650m

Kinder & Schulen
Schule <150m
Kindergarten <200m
Universität <425m
Höhere Schule <250m

Nahversorgung
Supermarkt <175m
Bäckerei <175m
Einkaufszentrum <1.650m

Sonstige
Geldautomat <225m
Bank <225m
Post <225m
Polizei <950m

Verkehr
Bus <100m
U-Bahn <350m
Straßenbahn <225m
Bahnhof <450m
Autobahnanschluss <1.625m

Angaben Entfernung Luftlinie / Quelle: OpenStreetMap

Provision: 3


Alle Details anzeigen

KONTAKT






 

Lasse dich kostenlos vom Anbieter dieser Immobilie zurückrufen.







 


 
WINEGG Makler GmbH
Julian Himmelbauer
Telefonnummer anzeigen Telefon Allgemein: +4313157280
Handy Bearbeiter: +436765505797
 
Bitte dem Makler die FindMyHome.at - ID bekanntgeben: 5560388

Bewertungen dieses Anbieters
Qualitätsmakler
Qualitätsmakler:
2015, 2017, 2025,
Netiquette
Freundlichkeit
82 %

BEWERTUNGEN DIESES ANBIETERS

 
Qualit�tsmakler
Qualitätsmakler
2015, 2017, 2025
Weiterempfehlung
WIRD GERNE

Freundlichkeit
BESONDERS
FREUNDLICH
Netiquette
FINDMYHOME
NETIQUETTE
Auch du kannst bewerten! 7 Tage nach deiner Anfrage erhältst du dafür von uns ein Bewertungsmail.
Alle Infos zu unseren Auszeichnungen und dem FINDMYHOME.AT Qualitätsprogramm findest du hier: Übersicht anzeigen

FINANZIERUNG
?>

Du willst wissen, wie viel dein Umzug kosten wird?

Mach gleich den kostenlosen Preisvergleich und schau, welche seriösen Anbieter in deiner Region günstig deinen Umzug organisieren


ZUM UMZUGS-VERGLEICH
-->

MYHOME BLOG
SuchAgentin auf FindMyHome.at
Unterschiedlichen Rechtsthemen, köstliche Rezepte, neueste Design-Highlights, sowie aktuelle Technik-Tools für Ihr Eigenheim.


FINDMYHOME.AT SUCHAGENTIN
SuchAgentin auf FindMyHome.at
Hallo, soll ich dir ähnliche Immobilien kostenfrei per E-Mail schicken?


ÄHNLICHE IMMOBILIEN
Aehnliche Immobilie - Vorschaubild 1

Exklusives Wohnen in idyllischer Cottagelage (inkl. Garage)... - Objektnr. 5562097

147,52 m² - 4.0 Zimmer
1100000 €
PLZ: 1180

Mehr anzeigen

Aehnliche Immobilie - Vorschaubild 2

Mehr Raum nach Wunsch - Zwei Wohnungen zur freien Zusammenle... - Objektnr. 5558111

170,00 m² - 6.0 Zimmer
947000 €
PLZ: 1180

Mehr anzeigen

Durch die Nutzung unserer Seite erklären Sie sich mit der Verwendung von Cookies zur Verbesserung Ihres Online-Erlebnisses einverstanden. Detaillierte Informationen zu diesem und weiteren Themen erhalten Sie in unserer Datenschutzerklärung.