MEIN ERGEBNIS ANPASSEN

Bestandsfreie Villa - Objektnr. 5559100

2500
Ort
911,97 m²
Fläche

ECKDATEN
FindMyHome.at // Externe Immobilien-ID5559100 // 4337
ImmobilienartHaus - Eigentum
Anschrift2500 Baden
Baujahr1915
Geschosse3
Grundfläche3.006,00 m²
Kaufpreis:€ 2.990.000,00
Ratenzahlung:Finanzierungsmöglichkeiten für diese Immobilie anzeigen
Provision: 3% des Kaufpreises zzgl. 20% USt.







BESCHREIBUNG

Bestandsfreie Villa

Die Immobilie

Eine Rarität, wie sie nur selten auf dem Immobilienmarkt zu finden ist. Eine bestandsfreie Villa in bester Badener Wohnlage, auf einem wunderbaren, parkähnlichen Grundstück, gelangt im Rahmen eines zweistufigen Bieterverfahrens zum Verkauf. Die Liegenschaft befindet sich im Stadtzentrum von Baden, etwas mehr als 500 m vom Josefsplatz und der Fußgängerzone entfernt. Das ursprünglich als Wohnhaus konzipierte Villengebäude wurde die letzten Jahre als Büro verwendet und verfügt über ein Gartenhaus im rückwärtigen und eine großzügig dimensionierte Garage im seitlichen Grundstücksbereich.

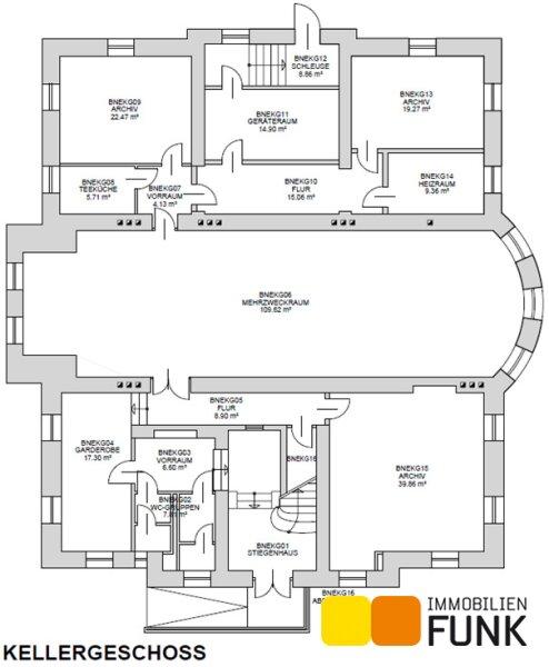
Das Grundstück, auf dem sich das wunderbare, 3-geschossige Haus befindet, ist ca. 3.006 m² groß. Die Nutzfläche der Villa von etwa 911,97 m² teilt sich auf wie folgt:

  • im Kellergeschoss:                          ca. 293,19 m²
  • im Erdgeschoss:                              ca. 317,07 m²
  • im 1. Obergeschoss:                       ca. 301,71 m².

Die Nutzfläche des zu sanierenden Gartenhauses beträgt ca. 107,52 m², jene des Garagengebäudes etwa 136,70 m²

Die Villa selbst wurde gemäß §2 Abs 1 Z1 Denkmalschutzgesetz unter Schutz gestellt, da der aktuelle Eigentümer eine Körperschaft öffentlichen Rechts ist. Sollte die Liegenschaft an einen Dritten, also eine Körperschaft des Privatrechtes oder natürliche Person veräußert werden, gibt es Annahmen, dass der Denkmalschutz für die Villa aufgehoben werden könnte und es dann durch den aktuell verordneten Denkmalschutz für die Villa nicht zu einer Beeinträchtigung der (künftigen) Nutzung der Liegenschaft kommen wird.

Infrastruktur und Umgebung

Die Bezirkshauptstadt Baden, im sogenannten Speckgürtel Wiens, der die einkommensstarken und bildungsaffinen Regionen rund um die Bundeshauptstadt bezeichnet, liegt etwa 25 km von der Stadtgrenze und ca. 38 km vom Stadtzentrum Wiens (Stephansplatz) entfernt. Die Liegenschaft Elisabethstraße 38 befindet sich etwa 550 m vom Josefsplatz und dem Zugang zur Fußgängerzone mit einem umfassenden Angebot an Einkaufsmöglichkeiten, Arztpraxen, Restaurants und Apotheke, entfernt. Die nächstgelegenen Supermärkte (Spar, Penny) befinden sich in Gehweite.

Baden trägt wohl zu Recht die Bezeichnung Schulstadt. Es sind u.a. zwei Bundes- und Bundesrealgymnasien, Handelsschule und Handelsakademie, HTL, HBLA f- wirtschaftliche Berufe, Bundesinstitut für Sozialpädagogik sowie eine Vielzahl an öffentlichen und privaten Volksschulen und Kindergärten angesiedelt.

Die Verkehrsanbindung könnte kaum besser sein. Über den Bahnhof Baden (mit Park & Ride Anlage) ist Baden etwa durch die Züge S1, S2, S3, S4 und unterschiedliche R und REX-Linien sehr gut angebunden. Insgesamt verkehren 4 Stadtbuslinien innerstädtisch und nicht weniger als 26 regionale Buslinien vernetzten Baden mit dem Umland.

Die Anbindung für den Individualverkehr ist durch die Auffahrt auf die nur 4 km entfernte Auf-Abfahrt Baden der A2 Südautobahn und über die Bundesstraßen 17 und 210 ausgezeichnet.

Das Bieterverfahren

Die Vermittlung erfolgt im Rahmen eines zweistufigen Bieterverfahrens, das von Schramm Öhler Rechtsanwälte GmbH im Auftrag der Verkäuferin durchgeführt wird.  Anbote, die unter dem Mindestkaufpreis liegen, werden nicht berücksichtigt. 

Alle Details zur Liegenschaft erfahren Sie von Immobilien Funk, Georg Flödl, MA MRICS und Walter Mitterstöger, MA.

 

Noch nichts gefunden Wir informieren Sie über geeignete Immobilienangebote noch vor allen anderen.
Legen Sie jetzt Ihren individuellen Suchagenten unter folgendem Link an. Wir schicken Ihnen passende Immobilien exklusiv vorab zu.
Suchagent anlegen - https://funk.service.immo/registrieren/de

Der Vermittler ist als Doppelmakler tätig.

Informationen und Besichtigungen

Herr Prok. Walter Mitterstöger, MA steht Ihnen gerne telefonisch unter +43 1 533 46 44-1 oder per E-Mail unter walter.mitterstoeger@funk.at zur Verfügung.
Immobilien Funk.success in real estate


Infrastruktur / Entfernungen

Gesundheit
Arzt <500m
Apotheke <500m
Klinik <500m
Krankenhaus <2.000m

Kinder & Schulen
Schule <500m
Kindergarten <500m
Höhere Schule <9.000m
Universität <9.500m

Nahversorgung
Supermarkt <500m
Bäckerei <500m
Einkaufszentrum <5.500m

Sonstige
Bank <500m
Geldautomat <500m
Post <500m
Polizei <1.000m

Verkehr
Bus <500m
Bahnhof <500m
Autobahnanschluss <3.500m
Straßenbahn <500m
Flughafen <5.000m

Angaben Entfernung Luftlinie / Quelle: OpenStreetMap

Provision: 3% des Kaufpreises zzgl. 20% USt.


Alle Details anzeigen

KONTAKT






 

Lasse dich kostenlos vom Anbieter dieser Immobilie zurückrufen.







 


 
Dr. Funk Immobilien GmbH & Co KG
Walter Mitterstöger
Telefonnummer anzeigen Telefon Allgemein: +43153346441
Handy Bearbeiter: +4366488739935
 
Bitte dem Makler die FindMyHome.at - ID bekanntgeben: 5559100

Bewertungen dieses Anbieters
Qualitätsmakler
Qualitätsmakler:
2012, 2017, 2019, 2023,
Netiquette
Freundlichkeit
79 %

BEWERTUNGEN DIESES ANBIETERS

 
Qualit�tsmakler
Qualitätsmakler
2012, 2017, 2019, 22/23
Weiterempfehlung
WIRD GERNE

Freundlichkeit
BESONDERS
FREUNDLICH
Netiquette
FINDMYHOME
NETIQUETTE
Auch du kannst bewerten! 7 Tage nach deiner Anfrage erhältst du dafür von uns ein Bewertungsmail.
Alle Infos zu unseren Auszeichnungen und dem FINDMYHOME.AT Qualitätsprogramm findest du hier: Übersicht anzeigen

FINANZIERUNG
?>

Du willst wissen, wie viel dein Umzug kosten wird?

Mach gleich den kostenlosen Preisvergleich und schau, welche seriösen Anbieter in deiner Region günstig deinen Umzug organisieren


ZUM UMZUGS-VERGLEICH
-->

MYHOME BLOG
SuchAgentin auf FindMyHome.at
Unterschiedlichen Rechtsthemen, köstliche Rezepte, neueste Design-Highlights, sowie aktuelle Technik-Tools für Ihr Eigenheim.


FINDMYHOME.AT SUCHAGENTIN
SuchAgentin auf FindMyHome.at
Hallo, soll ich dir ähnliche Immobilien kostenfrei per E-Mail schicken?


ÄHNLICHE IMMOBILIEN
Aehnliche Immobilie - Vorschaubild 1

Charme trifft Wertbeständigkeit - Rarität für Anleger im Her... - Objektnr. 5617196

795,29 m²
3300000 €
PLZ: 2500

Mehr anzeigen

Durch die Nutzung unserer Seite erklären Sie sich mit der Verwendung von Cookies zur Verbesserung Ihres Online-Erlebnisses einverstanden. Detaillierte Informationen zu diesem und weiteren Themen erhalten Sie in unserer Datenschutzerklärung.