MEIN ERGEBNIS ANPASSEN

Exklusive 2-Zimmer-Wohnung in bester Citylage - Objektnr. 5558979

  • DSC03010-HDR copy
  • DSC03013-HDR copy
  • DSC03016-HDR copy
  • DSC03019-HDR copy
  • DSC03004-HDR copy
  • DSC03007-HDR copy
  • DSC02995-HDR copy
  • DSC02998-HDR copy
  • DSC03001-HDR copy
  • _DSC2304
  • _DSC1986
  • _DSC2015
  • _DSC2098
  • _DSC2115
  • _DSC2175
  • _DSC2368
  • _DSC2412
  • Ausblick
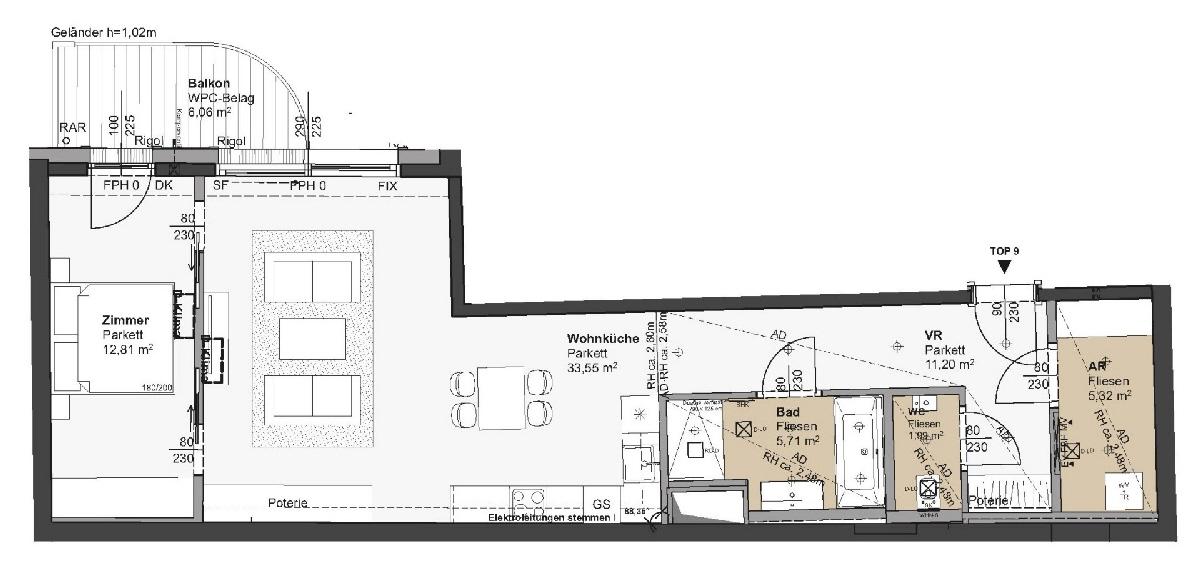
  • Plan-Stiege3-Top_09
1040
Ort
70,58 m²
Fläche
2
Zimmer
WEITERE MEDIEN

ECKDATEN
FindMyHome.at // Externe Immobilien-ID5558979 // 101/15907
ImmobilienartWohnung - Eigentum
AnschriftKettenbrückengasse
1040 Wien
Baujahr2023
Alt- oder NeubauNeubau
NäheNaschmarkt
Stock2
Beziehbar absofort
Fläche70,58 m²
Balkon1 (6,00 m²)
Zimmer2
Bad1
WC1
 Abstellraum
Kaufpreis:€ 649.000,00
Ratenzahlung:Finanzierungsmöglichkeiten für diese Immobilie anzeigen
sonstige Kosten (inkl. MwSt):€ 210,67
Mehrwertsteuer:€ 2.756,02
Provision: 3%







BESCHREIBUNG

Exklusive 2-Zimmer-Wohnung in bester Citylage

Direkt am Naschmarkt steht das innovative und nachhaltige Projekt THE FUSION.
Das revitalisierte Biedermeierhaus beeindruckt nicht nur durch die prächtige Fassade, sondern auch durch die klassischen Rundbogenfenster und großzügigen Stiltüren. Es wurde höchster Wert auf ökologische, ökonomische sowie soziokulturelle und funktionale Qualität gelegt, welche durch die Verleihung des „DGNB-Zertifikates in Gold“ bestätigt wurde.

Entdecken Sie ein Zuhause mit unbegrenzten Möglichkeiten!

Diese Wohnung im zweiten Obergeschoss verfügt über ein Schlafzimmer, eine großzügige Wohnküche mit Zugang zum Balkon, ein modernes Badezimmer, ein separates WC und einen geräumigen Abstellräum. Alle Räume sind mit Parkett- oder Fliesenböden ausgestattet. Diese Wohnung eignet sich perfekt für Paare oder Singles.

Highlights der Ausstattung:
• Hochwertiger Fischgrätparkett
• Klimatisierte Wohnräume im letzten Regelgeschoß sowie im Dachgeschoß
• Exquisite Sanitärobjekte in den Bädern
• Edles, italienisches Feinsteinzeug
• Gegensprechanlage mit Video-Option
• Komfortable Paketboxanlage
• Online-Hausverwaltung mittels PUCK-App

Lage
Der abwechslungsreiche 4. Bezirk zieht Bewohner wie Besucher magisch an und offeriert ihnen eine Welt voll überraschender Impressionen. Erstklassige Restaurants, schicke Bars, gemütliche Cafés, der Naschmarkt und wunderbare Plätze laden zum Verweilen ein.
Die Anbindung an das öffentliche Straßennetz ist durch die U4-Station "Kettenbrückengasse" sowie die Autobuslinie 59A bestens gegeben.


Ansprechpartner
Frau Doris Kurzweil || +43 699 17 55 66 16 || dk@jpi.at

Wir weisen darauf hin, dass wir mit dem Abgeber in ständiger Geschäftsbeziehung stehen und schon aus diesem Grund ein wirtschaftliches Naheverhältnis vorliegt.Provision: 3%


Alle Details anzeigen

KONTAKT






 

Lasse dich kostenlos vom Anbieter dieser Immobilie zurückrufen.







 


 
JP Immobilien
Hubert Bodner
Telefonnummer anzeigen Telefon Allgemein: +4315966020682
Handy Bearbeiter: +4369917556682
 
Bitte dem Makler die FindMyHome.at - ID bekanntgeben: 5558979

Bewertungen dieses Anbieters
Qualitätsmakler
Qualitätsmakler:
2021,

BEWERTUNGEN DIESES ANBIETERS

 
Qualit�tsmakler
Qualitätsmakler
2021
Auch du kannst bewerten! 7 Tage nach deiner Anfrage erhältst du dafür von uns ein Bewertungsmail.
Alle Infos zu unseren Auszeichnungen und dem FINDMYHOME.AT Qualitätsprogramm findest du hier: Übersicht anzeigen

FINANZIERUNG
?>

Du willst wissen, wie viel dein Umzug kosten wird?

Mach gleich den kostenlosen Preisvergleich und schau, welche seriösen Anbieter in deiner Region günstig deinen Umzug organisieren


ZUM UMZUGS-VERGLEICH
-->

MYHOME BLOG
SuchAgentin auf FindMyHome.at
Unterschiedlichen Rechtsthemen, köstliche Rezepte, neueste Design-Highlights, sowie aktuelle Technik-Tools für Ihr Eigenheim.


FINDMYHOME.AT SUCHAGENTIN
SuchAgentin auf FindMyHome.at
Hallo, soll ich dir ähnliche Immobilien kostenfrei per E-Mail schicken?


ÄHNLICHE IMMOBILIEN
Aehnliche Immobilie - Vorschaubild 1

Leibenfrostgasse 8 - Zwischen Sehnsucht und Realität... - Objektnr. 5556576

77,66 m² - 2.0 Zimmer
525000 €
PLZ: 1040

Mehr anzeigen

Aehnliche Immobilie - Vorschaubild 2

Weitblick, Ruhe & zentrale Lage - Sonnige Altbauwohnung mit ... - Objektnr. 5558125

70,00 m² - 3.0 Zimmer
648000 €
PLZ: 1040

Mehr anzeigen

Aehnliche Immobilie - Vorschaubild 3

Helle und stilvolle 2-Zimmer-Wohnung nähe Naschmarkt... - Objektnr. 5558978

68,18 m² - 2 Zimmer
587000 €
PLZ: 1040

Mehr anzeigen

Durch die Nutzung unserer Seite erklären Sie sich mit der Verwendung von Cookies zur Verbesserung Ihres Online-Erlebnisses einverstanden. Detaillierte Informationen zu diesem und weiteren Themen erhalten Sie in unserer Datenschutzerklärung.