MEIN ERGEBNIS ANPASSEN

2-Zimmer Wohnung in 1210 Wien zu vermieten! - Objektnr. 5558836

1210
Ort
€ 987,68
Gesamtkosten
44,45 m²
Fläche
2.0
Zimmer

ECKDATEN
FindMyHome.at // Externe Immobilien-ID5558836 // 16036
ImmobilienartWohnung - Miete
Anschrift1210 Wien
Befeuerung
Stock2
Mietdauer5
Fläche44,45 m²
Zimmer2.0
Bad1
WC1
 Abstellraum
Brutto-Miete:€ 987,68
Betriebskosten (inkl. MwSt):€ 107,57
Mehrwertsteuer:€ 89,79
Monatliche Gesamtkosten:€ 987,68
Provision: Gemäß Erstauftraggeberprinzip bezahlt der Abgeber die Provision.




BESCHREIBUNG

2-Zimmer Wohnung in 1210 Wien zu vermieten!

Moderne 2-Zimmer-Wohnung mit optimalem Grundriss Brünner Straße 10, 1210 Wien

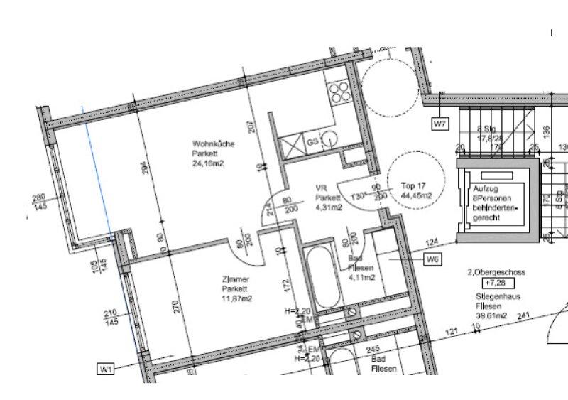
Zur Vermietung gelangt eine helle und effizient geschnittene 2-Zimmer-Wohnung mit einer Wohnfläche von rund 44,45 m² im 2. Obergeschoss eines gepflegten Neubaus in der Brünner Straße 10.
Die Wohnung überzeugt durch ihre moderne Ausstattung, eine durchdachte Raumaufteilung und eine angenehme Wohnatmosphäre in attraktiver Lage von Floridsdorf.


Raumaufteilung

  • Vorraum (ca. 4,31 m²) zentral begehbar mit Platz für Garderobe

  • Wohnküche (ca. 24,16 m²) großzügig geschnitten, mit moderner Einbauküche und ausreichend Platz für Wohn- und Essbereich

  • Schlafzimmer (ca. 11,57 m²) ruhig gelegen und gut möblierbar

  • Badezimmer (ca. 4,11 m²) mit Badewanne, Waschbecken und Waschmaschinenanschluss

  • Separates WC praktisch vom Badezimmer getrennt

Die Wohnung besticht durch ihren funktionalen Grundriss und eignet sich ideal für Singles oder Paare, die Wert auf modernen Wohnkomfort legen.


Ausstattung

  • Hochwertiger Parkettboden in den Wohnräumen, Fliesen in den Nassräumen

  • Moderne Einbauküche mit allen Geräten

  • Fußbodenheizung und große Fensterflächen für ein helles, freundliches Raumgefühl

  • Barrierefreier Lift im Haus

  • Neubau-Standard mit effizienter Energieversorgung


Lage & Infrastruktur

Die Wohnung befindet sich in zentraler Lage von Floridsdorf direkt an der Brünner Straße, einer der wichtigsten Verkehrs- und Geschäftsachsen des 21. Bezirks.
In unmittelbarer Umgebung finden sich zahlreiche Nahversorger (Billa, Hofer, Lidl), Apotheken, Ärzte, Cafés und Restaurants.
Das nahegelegene Shopping Center Nord bietet zusätzliche Einkaufsmöglichkeiten.
Für Freizeit und Erholung sorgen der Floridsdorfer Wasserpark, die Alte Donau und die Donauinsel, die in wenigen Minuten erreichbar sind.


Öffentliche Verkehrsanbindung

Die Lage bietet eine hervorragende Anbindung an das öffentliche Verkehrsnetz:

  • Straßenbahnlinien 30 und 31 direkt vor der Haustür, mit schneller Verbindung zur U6 (Floridsdorf) und in die Innenstadt

  • Buslinien 30A, 36A, 36B Richtung Strebersdorf, Leopoldau und Floridsdorf Bahnhof

  • Bahnhof Floridsdorf wenige Minuten entfernt, mit U6, S-Bahn, Regionalzügen und Busverbindungen

  • Rasche Erreichbarkeit der A22 Donauuferautobahn sowie der B3 Richtung Zentrum

Nebenkosten:

  • 3 Bruttomonatsmieten Kaution

Wir möchten Sie höflichst darauf hinweisen, dass der Mietvertrag jährlich an den Verbraucherpreisindex angepasst wird.

 

Maklervereinbarung: Wir ersuchen um Verständnis, dass wir bei Anfragen zur Objektadresse, bzw. Besichtigungstermin aufgrund neuer gesetzlicher Bestimmungen Unterlagen erst dann zusenden können, wenn Sie vorab bestätigen, dass Sie unser sofortiges Tätigwerden wünschen und über Ihre Rücktrittsrechte aufgeklärt wurden. Sie bekommen nach Ihrer schriftlichen Anfrage mit vollständiger Angabe des Namens, Anschrift und Telefonnummer ein Email, in dem Sie diese Punkte bestätigen müssen.


Haftungsausschluss: Wir weisen darauf hin, dass sämtliche Daten im vorliegenden Angebot sowie die von unserem Büro an Sie weitergegebenen Auskünfte, vom Eigentümer der Immobilie zur Verfügung gestellt wurden. Ebenso sind Informationen von Dritten (z.B. behördliche Informationen) eingeholt worden, auch für diese können wir unsererseits keinerlei Haftung für deren uneingeschränkte Richtigkeit übernehmen.

Wir weisen darauf hin, dass zwischen dem Vermittler und dem zu vermittelnden Dritten ein familiäres oder wirtschaftliches Naheverhältnis besteht.

Der Immobilienmakler erklärt, dass er entgegen dem in der Immobilienwirtschaft üblichen Geschäftsgebrauch des Doppelmaklers einseitig nur für den Vermieter tätig ist.

Barrierefrei: JA
Provision: Gemäß Erstauftraggeberprinzip bezahlt der Abgeber die Provision.


Alle Details anzeigen

KONTAKT






 

Lasse dich kostenlos vom Anbieter dieser Immobilie zurückrufen.







 


 
Moritz Immobilien
Nicolas Büttner
Telefonnummer anzeigen Handy Bearbeiter: +436606365858
 
Bitte dem Makler die FindMyHome.at - ID bekanntgeben: 5558836

Bewertungen dieses Anbieters
Netiquette

BEWERTUNGEN DIESES ANBIETERS

 
Netiquette
FINDMYHOME.AT
NETIQUETTE
Auch du kannst bewerten! 7 Tage nach deiner Anfrage erhältst du dafür von uns ein Bewertungsmail.
Alle Infos zu unseren Auszeichnungen und dem FINDMYHOME.AT Qualitätsprogramm findest du hier: Übersicht anzeigen


Du willst wissen, wie viel dein Umzug kosten wird?

Mach gleich den kostenlosen Preisvergleich und schau, welche seriösen Anbieter in deiner Region günstig deinen Umzug organisieren


ZUM UMZUGS-VERGLEICH
-->

MYHOME BLOG
SuchAgentin auf FindMyHome.at
Unterschiedlichen Rechtsthemen, köstliche Rezepte, neueste Design-Highlights, sowie aktuelle Technik-Tools für Ihr Eigenheim.


FINDMYHOME.AT SUCHAGENTIN
SuchAgentin auf FindMyHome.at
Hallo, soll ich dir ähnliche Immobilien kostenfrei per E-Mail schicken?


ÄHNLICHE IMMOBILIEN
Aehnliche Immobilie - Vorschaubild 1

360° TOUR // TERRASSEN ERSTBEZUG WOHNUNG / FIRST LETTING BAL... - Objektnr. 5537052

43,79 m² - 2.0 Zimmer
960 €
PLZ: 1210

Mehr anzeigen

Aehnliche Immobilie - Vorschaubild 2

| AB JÄNNER | 2,5 ZIMMER | SCHLAFNISCHE | NAHE THERESA-TAUSC... - Objektnr. 5554821

48,87 m² - 2.5 Zimmer
938.62 €
PLZ: 1210

Mehr anzeigen

Aehnliche Immobilie - Vorschaubild 3

360° TOUR // ERSTBEZUG WOHNUNG / FIRST LETTING APARTMENT... - Objektnr. 5537051

51,25 m² - 2.0 Zimmer
962.33 €
PLZ: 1210

Mehr anzeigen

Durch die Nutzung unserer Seite erklären Sie sich mit der Verwendung von Cookies zur Verbesserung Ihres Online-Erlebnisses einverstanden. Detaillierte Informationen zu diesem und weiteren Themen erhalten Sie in unserer Datenschutzerklärung.