MEIN ERGEBNIS ANPASSEN

Wohnen mit Stil: Erstklassige Materialien und moderne Ausstattung - Objektnr. 5558790


ökologisch beheizt
1140
Ort
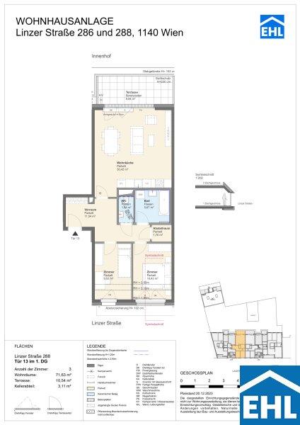
71,53 m²
Fläche
3.0
Zimmer
WEITERE MEDIEN

ECKDATEN
FindMyHome.at // Externe Immobilien-ID5558790 // 80139
ImmobilienartWohnung - Eigentum
AnschriftLinzer Straße/13
1140 Wien
Baujahr2024
Befeuerung
Erdwärme
Fläche71,53 m²
Terrassen1 (11,00 m²)
Zimmer3.0
Bad1
WC1
 Abstellraum
Kaufpreis:€ 497.700,00
Ratenzahlung:Finanzierungsmöglichkeiten für diese Immobilie anzeigen
Provision: Provision bezahlt der Abgeber.







BESCHREIBUNG

Wohnen mit Stil: Erstklassige Materialien und moderne Ausstattung

Wohnen am Baumgartner-Casino-Park - mit exklusiver Lage und Komfort

Lebensraum neu gedacht!

Hier am Baumgartner Casino Park wird der Luxus vom großzügigem Lebensraum neu definiert!

Der beste Wohnraum ergibt sich aus gut durchdachte Grundrisse mit ausgezeichneten Zimmergrößen und lichtdurchfluteten Räumen. Jede Wohnung bietet zudem Freiflächen wie Loggia, Terrasse oder Garten ideale Rückzugsorte zum Entspannen und Genießen.

Sie wünschen noch mehr Im idyllischen Innenhof erwartet Sie ein exklusives Doppelhaus mit zwei 4-Zimmer-Maisonettewohnungen, die zusätzlich über integrierte Büros verfügen. Hier verschmelzen Wohnen und Arbeiten zu einer perfekten Symbiose für ein Leben ohne Kompromisse.

Jede Wohnung besticht durch die Verwendung erstklassiger Materialien: Edle Parkettböden verleihen den Wohnräumen Wärme und Eleganz, während in den stilvoll gestalteten Nassräumen hochwertiges Feinsteinzeug im Format 30 x 60 cm sowie sorgfältig ausgewählte Keramiken und Armaturen zum Einsatz kommen.

Für optimalen Komfort sorgt der außenliegende Sonnenschutz in Form von Raffstores, die bequem per Fernbedienung gesteuert werden können.

Und noch ein Vorteil:

Durch die Niedrigenergiebauweise und einem intelligenten Anergienetz profitieren Sie von unschlagbar günstigen Heiz- und Warmwasserkosten. Über Tiefensonden wird die Erdwärme genützt und im Solespeicher gespeichert, zusätzlich sind Sonnenkollektoren errichtet worden. Die Heizung und Temperierung erfolgt über eine Betonkernaktivierung in der Geschoßdecke. 

Die Ausstattung:

  • Parkettböden in den Wohnräumen und Keramikfliesen (60*30cm) im Badezimmer
  • Fenster mit 3-Scheibenisolierverglasung
  • Außenliegende Raffstores, elektronisch Bedienbar
  • Wärmepumpenanlage mit Geothermie (Tiefenbohrungen) und PV-Anlagen
  • Modernste Heizung und Temperierung über Bauteilaktivierung in der Decke
  • Barrierefreier Zugang vom Keller bis zur Wohnetage dank Liftanlage
  • Garagenplätze in der hauseigenen Tiefgarage
  • Insgesamt verfügt das Projekt über 31 Wohnungen und 3 Townhouses 

Die Lage:

Die Linzer Straße 286-288 in Penzing verbindet städtisches Leben mit einem hohen Maß an Ruhe und Grünflächen, was sie besonders attraktiv für Familien und Naturliebhaber macht.

In der näheren Umgebung befinden sich zahlreiche Geschäfte des täglichen Bedarfs, Schulen, Kindergärten und Restaurants. Auch kulturelle Einrichtungen wie das Technische Museum und das Schloss Schönbrunn mit seinem weitläufigen Park und dem Tiergarten sind nicht weit entfernt.

Für Erholung und Freizeitaktivitäten vor der Tür ist der Casino Park wie geschaffen, aber auch der nahegelegene Wienerwald sowie der Schlosspark Schönbrunn laden zu Spaziergängen, Sport oder einfach zum Entspannen im Grünen ein.

Öffentliche Verkehrsmittel wie Straßenbahnen und Busse sind in unmittelbarer Nähe und ermöglichen eine schnelle Verbindung zu anderen Stadtteilen. Zudem ist die U-Bahn-Station Hütteldorf in wenigen Minuten erreichbar, was eine ausgezeichnete Anbindung an das Wiener U-Bahn-Netz sicherstellt.

Öffentliche Verkehrsmittel:

  • Buslinie 47A mit Anbindung an die U4 (Ober St. Veit)
  • Straßenbahnlinie 52 (Hochsatzengasse) , 49 (Hochsatzengasse/Hütteldorfer Straße)


Ein Stellplatz kann ab € 34.500,-  angekauft werden.

Provisionsfrei für den Käufer!

Wir weisen darauf hin, dass zwischen dem Vermittler und dem zu vermittelnden Dritten ein familiäres oder wirtschaftliches Naheverhältnis besteht.

Der Vermittler ist als Doppelmakler tätig.


Infrastruktur / Entfernungen

Gesundheit
Arzt <250m
Apotheke <500m
Klinik <1.750m
Krankenhaus <1.250m

Kinder & Schulen
Schule <250m
Kindergarten <250m
Universität <1.750m
Höhere Schule <3.500m

Nahversorgung
Supermarkt <500m
Bäckerei <500m
Einkaufszentrum <3.250m

Sonstige
Geldautomat <500m
Bank <500m
Post <500m
Polizei <1.000m

Verkehr
Bus <250m
Straßenbahn <250m
U-Bahn <750m
Bahnhof <750m
Autobahnanschluss <4.250m

Angaben Entfernung Luftlinie / Quelle: OpenStreetMap

Klimaanlage: JA
Provision: Provision bezahlt der Abgeber.


Alle Details anzeigen

KONTAKT






 

Lasse dich kostenlos vom Anbieter dieser Immobilie zurückrufen.







 


 
EHL Wohnen GmbH
Ingrid Neugebauer
Telefonnummer anzeigen Telefon Allgemein: +4315127690418
Handy Bearbeiter: +4369915212532
 
Bitte dem Makler die FindMyHome.at - ID bekanntgeben: 5558790

Bewertungen dieses Anbieters
Qualitätsmakler
Qualitätsmakler:
Netiquette
Freundlichkeit
81 %

BEWERTUNGEN DIESES ANBIETERS

 
Qualitätsmakler
UNSERE HALL OF FAME DER BESTEN ANBIETER
Qualit�tsmakler
Qualitätsmakler
2012, 2013, 2014, 2015, 2016, 2017, 2018, 2019, 2020, 2021, 22/23, 2024, 2025
Weiterempfehlung
WIRD GERNE

Freundlichkeit
BESONDERS
FREUNDLICH
Netiquette
FINDMYHOME
NETIQUETTE
Auch du kannst bewerten! 7 Tage nach deiner Anfrage erhältst du dafür von uns ein Bewertungsmail.
Alle Infos zu unseren Auszeichnungen und dem FINDMYHOME.AT Qualitätsprogramm findest du hier: Übersicht anzeigen

FINANZIERUNG
?>

Du willst wissen, wie viel dein Umzug kosten wird?

Mach gleich den kostenlosen Preisvergleich und schau, welche seriösen Anbieter in deiner Region günstig deinen Umzug organisieren


ZUM UMZUGS-VERGLEICH
-->

MYHOME BLOG
SuchAgentin auf FindMyHome.at
Unterschiedlichen Rechtsthemen, köstliche Rezepte, neueste Design-Highlights, sowie aktuelle Technik-Tools für Ihr Eigenheim.


FINDMYHOME.AT SUCHAGENTIN
SuchAgentin auf FindMyHome.at
Hallo, soll ich dir ähnliche Immobilien kostenfrei per E-Mail schicken?


ÄHNLICHE IMMOBILIEN
Aehnliche Immobilie - Vorschaubild 1

Vivara! Gut geschnitten, vielseitig nutzbar ? ein Zuhause mi... - Objektnr. 5539697

71,00 m² - 3 Zimmer
487450 €
PLZ: 1140

Mehr anzeigen

Aehnliche Immobilie - Vorschaubild 2

| DACHTERRASSE | 2-ZIMMER | 1140 | EIGENNUTZERPREIS | DACHGE... - Objektnr. 5436219

63,40 m² - 2.0 Zimmer
499000 €
PLZ: 1140

Mehr anzeigen

Aehnliche Immobilie - Vorschaubild 3

Eigennutzer - Investieren zwischen Kultur und Natur - Top 20... - Objektnr. 5308563

64,90 m² - 3 Zimmer
519300 €
PLZ: 1140

Mehr anzeigen

Durch die Nutzung unserer Seite erklären Sie sich mit der Verwendung von Cookies zur Verbesserung Ihres Online-Erlebnisses einverstanden. Detaillierte Informationen zu diesem und weiteren Themen erhalten Sie in unserer Datenschutzerklärung.