MEIN ERGEBNIS ANPASSEN

Familienfreundliche Häuser mit 4 Zimmern und großzügigen Freiflächen - Objektnr. 5558781

3100
Ort
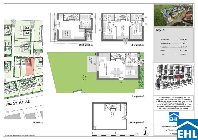
104,60 m²
Fläche
4.0
Zimmer
WEITERE MEDIEN

ECKDATEN
FindMyHome.at // Externe Immobilien-ID5558781 // 63134
ImmobilienartHaus - Eigentum
AnschriftWaldstraße/29
3100 St. Pölten
Baujahr2025
Fläche104,60 m²
Terrassen2 (15,00 m²)
Zimmer4.0
Bad3
WC4
Kaufpreis:€ 449.000,00
Ratenzahlung:Finanzierungsmöglichkeiten für diese Immobilie anzeigen
Provision: Provision bezahlt der Abgeber.







BESCHREIBUNG

Familienfreundliche Häuser mit 4 Zimmern und großzügigen Freiflächen

*Jetzt NEU - Traumimmobilie kaufen und Nebenkosten sparen!*

Herzlich willkommen in der exklusiven Wohnhausanlage Nova Terra!

In begehrter Lage am Eisberg in St. Pölten entstehen 56 moderne und geschmackvolle Reihen- und Doppelhäuser in einer einzigartigen Wohnsiedlung. Hier erleben Sie zeitgemäßes Wohnen in einem harmonischen Umfeld in der Natur und dennoch nahe dem Stadtzentrum.

Die Häuser verfügen über drei Etagen, wobei in den meisten Einheiten ein zusätzliches Kellergeschoß ausgeführt wird. Die Wohnflächen variieren zwischen 99 und 109 m² und bieten mit 4 Zimmern ausreichend Platz und Komfort für eine Familie. Großzügige Freiflächen in Form von Gärten, Terrassen und Dachterrassen laden zum Entspannen und Genießen ein. Hier können Sie Ihren grünen Daumen entfalten und entspannte, gesellige Stunden mit Freunden und Familie erleben. Für jede Wohneinheit sind zudem 2 Tiefgaragenplätze vorgesehen, die bequem erreichbar und schon im Kaufpreis inbegriffen sind.

Geplante Fertigstellung: Q1/2025
Provisionsfrei für den Käufer!

Das Projekt

  • 56 Reihen- und Doppelhäuser
  • Drei Etagen zumeist mit eigenem Keller
  • 99 109 m² Wohnfläche mit 4 Zimmer
  • Großzügige Freiflächen wie Garten, Terrasse und Dachterrasse
  • 2 Tiefgaragenplätze pro Haus (optional auch 3 möglich)
  • Energieausweis gültig bis 07.01.2030:
    • HWB ab 38,53 kWh/m²a; Klasse B
    • fGEE ab 0,82; Klasse A

Die monatlichen Kosten werden noch bekannt gegeben.

Die Ausstattung

Die Ausstattung der Häuser lässt keine Wünsche offen. Die behagliche Fußbodenheizung mittels Luft-/Wasserwärmepumpe sorgt für Komfort und angenehme Raumtemperaturen. Eine effiziente Photovoltaikanlage ermöglicht grüne und kosteneffiziente Energieversorgung. Die dreifach verglasten Kunststoff- und Alufenster mit außenliegendem Sonnenschutz bieten optimalen Schutz vor Lärm und Sonneneinstrahlung. Die Innenräume beeindrucken durch exquisite Holzböden und Designerfliesen, die die Räume warm und einladend wirken lassen.

Darüber hinaus ist jedes Haus mit einem KNX-System für intelligentes Wohnen ausgestattet, das modernste Technologien beinhaltet und somit maximale Wohnqualität garantiert!

  • Luft-/Wasserwärmepumpe
  • Photovoltaikanlage
  • Fußbodenheizung
  • Kunststoff- und Alufenster 3-fach verglast mit außenliegendem Sonnenschutz
  • Holzböden und Designerfliesen
  • KNX-System für Smart Home

Die Lage

Die Lage dieser Wohnhausanlage ist äußerst attraktiv. Die Waldstraße/Haydngasse bietet eine ruhige und dennoch zentral gelegene Umgebung in St. Pölten. Sie profitieren von der Nähe zur Natur und gleichzeitig sind die Innenstadt und der Bahnhof nur 5 Autominuten entfernt und sogar zu Fuß gut erreichbar. Nahe gelegene Einrichtungen wie Schulen, Einkaufsmöglichkeiten und Ärzte gestalten einen komfortablen Alltag.

Verpassen Sie nicht die Gelegenheit, in einem dieser exklusiven Häuser Ihr neues Zuhause zu finden. Hier werden all Ihre Ansprüche an modernes Wohnen übertroffen! Sichern Sie sich jetzt Ihre Traumimmobilie und genießen Sie das Leben in einer erstklassigen Wohnanlage, umgeben von Natur und allen Annehmlichkeiten, die Sie sich wünschen.

Holen Sie sich einen ersten Eindruck mittels unserem 3D Rundgang: https://squarebytes.at/novaterra/

*Jetzt NEU - Traumimmobilie kaufen und Nebenkosten sparen!*: Der Bauträger übernimmt die Grunderwerbsteuer in der Höhe von 3,5%

Wir weisen darauf hin, dass zwischen dem Vermittler und dem zu vermittelnden Dritten ein familiäres oder wirtschaftliches Naheverhältnis besteht.


Infrastruktur / Entfernungen

Gesundheit
Arzt <1.750m
Apotheke <2.000m
Klinik <2.250m
Krankenhaus <2.250m

Kinder & Schulen
Schule <1.250m
Kindergarten <1.000m
Höhere Schule <2.250m
Universität <2.500m

Nahversorgung
Supermarkt <1.750m
Bäckerei <1.250m
Einkaufszentrum <1.750m

Sonstige
Bank <1.750m
Geldautomat <1.750m
Polizei <750m
Post <2.000m

Verkehr
Bus <250m
Bahnhof <1.500m
Autobahnanschluss <1.500m
Flughafen <5.500m

Angaben Entfernung Luftlinie / Quelle: OpenStreetMap

Provision: Provision bezahlt der Abgeber.


Alle Details anzeigen

KONTAKT






 

Lasse dich kostenlos vom Anbieter dieser Immobilie zurückrufen.







 


 
EHL Wohnen GmbH
Ilse Reindl
Telefonnummer anzeigen Telefon Allgemein: +4315127690410
Handy Bearbeiter: +4366488160143
 
Bitte dem Makler die FindMyHome.at - ID bekanntgeben: 5558781

Bewertungen dieses Anbieters
Qualitätsmakler
Qualitätsmakler:
Netiquette
Freundlichkeit
81 %

BEWERTUNGEN DIESES ANBIETERS

 
Qualitätsmakler
UNSERE HALL OF FAME DER BESTEN ANBIETER
Qualit�tsmakler
Qualitätsmakler
2012, 2013, 2014, 2015, 2016, 2017, 2018, 2019, 2020, 2021, 22/23, 2024, 2025
Weiterempfehlung
WIRD GERNE

Freundlichkeit
BESONDERS
FREUNDLICH
Netiquette
FINDMYHOME
NETIQUETTE
Auch du kannst bewerten! 7 Tage nach deiner Anfrage erhältst du dafür von uns ein Bewertungsmail.
Alle Infos zu unseren Auszeichnungen und dem FINDMYHOME.AT Qualitätsprogramm findest du hier: Übersicht anzeigen

FINANZIERUNG
?>

Du willst wissen, wie viel dein Umzug kosten wird?

Mach gleich den kostenlosen Preisvergleich und schau, welche seriösen Anbieter in deiner Region günstig deinen Umzug organisieren


ZUM UMZUGS-VERGLEICH
-->

MYHOME BLOG
SuchAgentin auf FindMyHome.at
Unterschiedlichen Rechtsthemen, köstliche Rezepte, neueste Design-Highlights, sowie aktuelle Technik-Tools für Ihr Eigenheim.


FINDMYHOME.AT SUCHAGENTIN
SuchAgentin auf FindMyHome.at
Hallo, soll ich dir ähnliche Immobilien kostenfrei per E-Mail schicken?


ÄHNLICHE IMMOBILIEN
Aehnliche Immobilie - Vorschaubild 1

Einziehen, wenn?s fertig ist ? zahlen auch! Im Neubau mit Ge... - Objektnr. 5511799

125,63 m² - 5 Zimmer
420000 €
PLZ: 3100

Mehr anzeigen

Aehnliche Immobilie - Vorschaubild 2

Investieren in Reihenhäuser in St. Pölten - Wachstum trifft ... - Objektnr. 5559420

99,72 m² - 4.0 Zimmer
442501 €
PLZ: 3100

Mehr anzeigen

Aehnliche Immobilie - Vorschaubild 3

Investieren in Reihenhäuser in St. Pölten - Jetzt investiere... - Objektnr. 5559397

99,89 m² - 4.0 Zimmer
460524 €
PLZ: 3100

Mehr anzeigen

Durch die Nutzung unserer Seite erklären Sie sich mit der Verwendung von Cookies zur Verbesserung Ihres Online-Erlebnisses einverstanden. Detaillierte Informationen zu diesem und weiteren Themen erhalten Sie in unserer Datenschutzerklärung.