MEIN ERGEBNIS ANPASSEN

Luxus-Altbauwohnung mit Hofgarten im Botschaftsviertel - Objektnr. 5558389

  • Obergeschoss
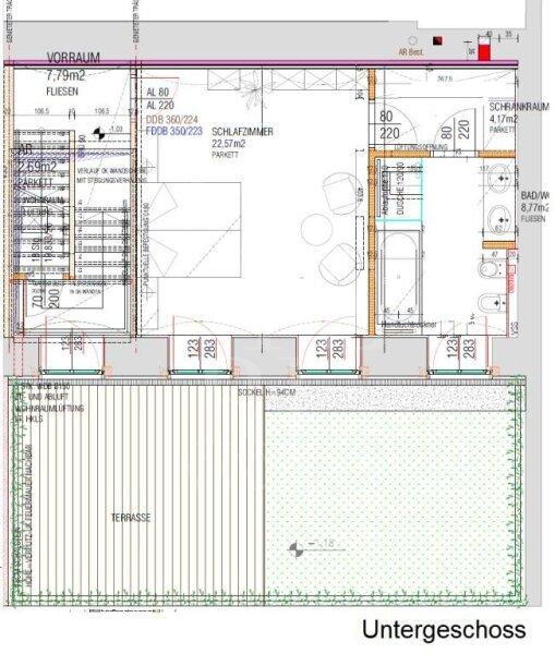
  • Untergeschoss
1030
Ort
169,82 m²
Fläche
4.0
Zimmer

ECKDATEN
FindMyHome.at // Externe Immobilien-ID5558389 // 1096/20009
ImmobilienartWohnung - Eigentum
Anschrift1030 Wien
Baujahr1900
Geschosse2
Fläche169,82 m²
Terrassen1 (18,00 m²)
Zimmer4.0
Bad2
WC3
Kaufpreis:€ 3.400.000,00
Ratenzahlung:Finanzierungsmöglichkeiten für diese Immobilie anzeigen
Provision:







BESCHREIBUNG

Luxus-Altbauwohnung mit Hofgarten im Botschaftsviertel

HOCHWERTIG SANIERTE MAISONETTE IN REPRÄSENTATIVEM HAUS,
** MIT HOFTERRASSE / HOFGARTEN **

RAUMAUFTEILUNG
Obergeschoss: Vorraum, großes Wohn-Esszimmer (45 m²), sehr große Küche mit Essplatzmöglichkeit (30 m²), 1 Schlafzimmer mit ensuite Badezimmer (Doppelwaschtisch, Badewanne, Dusche und Toilette), Abstellraum mit Waschtrockner, Gästetoilette
Untergeschoss: Vorraum/Gang und Ausgang in den Garten, 1 großes Schlafzimmer mit Schrankraum und Ausgang in den Garten und eigenem Tageslicht-Badezimmer (Doppelwaschtisch, Badewanne, Dusche, Toilette und Bidet) und Ausgang in den Garten
Der Terrassen-/Gartenzugang ist von überall im UG möglich

AUSSTATTUNG
Parkett-/Stein- und Marmorböden, Fußbodenheizung mittels Brennwertgerät, Klimaanlage, Sat-Anschluss, Wohnraumlüftung, Einbauspots, Alarmanlage, Kellerabteil, Raum für Fahrräder und Kinderwagen

LAGE
Die Wohnung befindet sich inmitten des Botschaftsviertels
Der Botanische Garten/Belvedere sowie der Stadtpark sind nur wenige Gehminuten entfernt
Straßenbahnlinie 71 sowie Bahnhof Rennweg ebenfalls in Gehdistanz erreichbar - U4 Stadtpark (9 Gehminuten)
+ Garagenplätze sind in einer (bewachten Hotelgarage) welche sich 2 Gehminuten entfernt befinden, auf Anfrage anzumieten ca. € 140,00 pro/Monat

**----------**

HIGH-QUALITY RENOVATED DUPLEX APARTMENT IN A REPRESENTATIVE HOUSE
** WITH COURTYARD TERRACE/GARDEN **

LAYOUT
Upper floor: hall, large living-dining room (45 m²), spacious kitchen with dining area (30 m²), 1 bedroom with en suite bathroom (double sink, bathtub, shower and toilet), guest toilet, storeroom with washer-dryer
Ground floor: anteroom/corridor, 1 large bedroom with closet space and private daylight bathroom (double sink, tub, shower and toilet)
Terrace/garden access is available from anywhere on the basement level

FIXTURES AND FITTINGS
Parquet/stone and marble floors, underfloor heating by gas, air conditioning, satellite connection, home ventilation system, built-in spotlights, alarm system, cellar, room for bicycles and strollers

LOCATION
The apartment is located in the middle of the embassy area
The Botanical Garden/Belvedere as well as the "Stadtpark" are only a few minutes walk away
Traml 71 as well as City Train station Rennweg are also within walking distance, U4 Stadtpark (9 minutes walk)
Garage spaces on request in a (hotel garage) which is located 2 walking minutes away: approx. € 140,00 per/month

Noch nichts gefunden Wir informieren Sie über geeignete Immobilienangebote noch vor allen anderen.
Legen Sie jetzt Ihren individuellen Suchagenten unter folgendem Link an. Wir schicken Ihnen passende Immobilien exklusiv vorab zu.
Suchagent anlegen - https://realkanzlei-hildegard-mayerl-eva-krulis.service.immo/registrieren/de


Infrastruktur / Entfernungen

Gesundheit
Arzt <500m
Apotheke <500m
Klinik <500m
Krankenhaus <1.000m

Kinder & Schulen
Schule <500m
Kindergarten <500m
Universität <500m
Höhere Schule <500m

Nahversorgung
Supermarkt <500m
Bäckerei <500m
Einkaufszentrum <1.000m

Sonstige
Geldautomat <500m
Bank <500m
Post <500m
Polizei <500m

Verkehr
Bus <500m
U-Bahn <1.000m
Straßenbahn <500m
Bahnhof <500m
Autobahnanschluss <2.500m

Angaben Entfernung Luftlinie / Quelle: OpenStreetMap

Provision:


Alle Details anzeigen

KONTAKT






 

Lasse dich kostenlos vom Anbieter dieser Immobilie zurückrufen.







 


 
MAYERL IMMOBILIEN
Eva Krulis
Telefonnummer anzeigen Telefon Allgemein: +431479411710
 
Bitte dem Makler die FindMyHome.at - ID bekanntgeben: 5558389

Bewertungen dieses Anbieters
Netiquette
Freundlichkeit
Antwortszeit
100 %

BEWERTUNGEN DIESES ANBIETERS

 
Antwortzeit
ø 24h ANTWORT
Weiterempfehlung
WIRD SEHR GERNE

Freundlichkeit
BESONDERS
FREUNDLICH
Netiquette
FINDMYHOME
NETIQUETTE
Auch du kannst bewerten! 7 Tage nach deiner Anfrage erhältst du dafür von uns ein Bewertungsmail.
Alle Infos zu unseren Auszeichnungen und dem FINDMYHOME.AT Qualitätsprogramm findest du hier: Übersicht anzeigen

FINANZIERUNG
?>

Du willst wissen, wie viel dein Umzug kosten wird?

Mach gleich den kostenlosen Preisvergleich und schau, welche seriösen Anbieter in deiner Region günstig deinen Umzug organisieren


ZUM UMZUGS-VERGLEICH
-->

MYHOME BLOG
SuchAgentin auf FindMyHome.at
Unterschiedlichen Rechtsthemen, köstliche Rezepte, neueste Design-Highlights, sowie aktuelle Technik-Tools für Ihr Eigenheim.


FINDMYHOME.AT SUCHAGENTIN
SuchAgentin auf FindMyHome.at
Hallo, soll ich dir ähnliche Immobilien kostenfrei per E-Mail schicken?


ÄHNLICHE IMMOBILIEN
Aehnliche Immobilie - Vorschaubild 1

Neubauprojekt in spitzen Lage für gehobene Ansprüche!... - Objektnr. 5640216

160,60 m² - 3.0 Zimmer
2900000 €
PLZ: 1030

Mehr anzeigen

Aehnliche Immobilie - Vorschaubild 2

Licht. Raum. Eleganz. - Das Penthouse Alta Luce - Objektnr. 5640238

160,60 m² - 3.0 Zimmer
2900000 €
PLZ: 1030

Mehr anzeigen

Aehnliche Immobilie - Vorschaubild 3

Wohnkomfort am Park - fußläufig zur Innenstadt - Objektnr. 5061233

160,61 m² - 3.0 Zimmer
2900000 €
PLZ: 1030

Mehr anzeigen

Durch die Nutzung unserer Seite erklären Sie sich mit der Verwendung von Cookies zur Verbesserung Ihres Online-Erlebnisses einverstanden. Detaillierte Informationen zu diesem und weiteren Themen erhalten Sie in unserer Datenschutzerklärung.