MEIN ERGEBNIS ANPASSEN

Anlegerwohnung mit Sorglos-Vermietungs-Konzept und Top Rendite - Objektnr. 5558256


ökologisch beheizt
  • Beispiel Apartment
  • Beispiel Apartment
1100
Ort
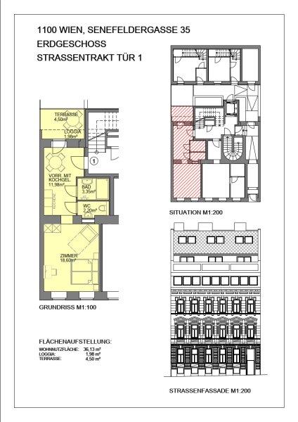
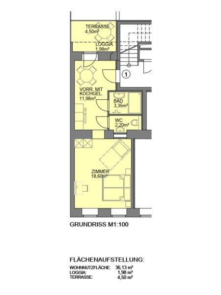
36,13 m²
Fläche
1.0
Zimmer

ECKDATEN
FindMyHome.at // Externe Immobilien-ID5558256 // 10289
ImmobilienartEigentum
AnschriftSenefeldergasse 35/1
1100 Wien
Baujahr1900
Befeuerung
Fernwärme
Geschosse6
Fläche36,13 m²
Terrassen1 (6,00 m²)
Zimmer1.0
Bad1
WC1
Kaufpreis:€ 240.000,00
Ratenzahlung:Finanzierungsmöglichkeiten für diese Immobilie anzeigen
Provision: 3% des Kaufpreises zzgl. 20% USt.







BESCHREIBUNG

Anlegerwohnung mit Sorglos-Vermietungs-Konzept und Top Rendite

Alle verfügbaren Wohnungen finden Sie unter: www.accenta-immo.at/sen35

Das Projekt Senefeldergasse 35 vereint historischen Charme mit modernem Wohnkomfort.
Das gesamte Haus wurden umfassend renoviert, um zeitgemäße Wohnstandards zu erfüllen und gleichzeitig den ursprünglichen Charakter des Gebäudes zu bewahren. Dabei lag besonderes Augenmerk auf der Erhaltung historischer Elemente, ergänzt durch moderne Annehmlichkeiten. Insgesamt umfasst das Projekt 18 Wohnungen, von denen 13 über Außenflächen wie Balkone oder Terrassen verfügen.

Moderne Apartments für Kurzzeit- und Langzeitvermietung mit professionellem Betreiber für Kurzzeitvermietung und Vermietungs-Service.
Acht Wohnungen des Projekts verfügen über eine Beherbergungswidmung und werden mit einem Betreiber-Konzept für die Kurzzeitvermietung angeboten. Die übrigen Wohneinheiten sind für die Langzeitvermietung vorgesehen.

Sorglos-Vermietungs-Konzept | Betreiber für Kurzzeitvermietung | Mietenpool - das Konzept einfach erklärt
Ein Käufer erwirbt eine Wohnung und ist grundbücherlicher Eigentümer. Übliche Pflichten und Aufgaben von Vermietern wie Mietersuche, Kontrolle der Zahlungseingänge, Abrechnung der Betriebskosten, berechnen der Index-Anpassungen, Ansprechperson für Fragen / Reklamationen / Anliegen von Mietern, Kosten bei Leerstand, Maklerkosten bei Neuvermietung, Instandhaltungskosten und MRG-Einschränkungen, entfallen. Alle Vermieteraufgaben übernimmt ein renommierter Betreiber und Spezialist für Kurzzeitvermietung. Der Betreiber trägt sämtliche Betriebs-, Verbrauchs-, Energie- und Instandhaltungskosten.

Die Mieteinnahmen werden über einen gemeinsamen Mietenpool prozentual auf Basis eines speziell errechneten Rendite-Nutzwertes unter den Eigentümern verteilt. Dieser speziell berechnete Wert sorgt für volle Transparenz und garantiert jedem Eigentümer die gleiche Rendite.

Die Kombination der Kurzzeitvermietung mit Betreiber und dem Mietenpool-System bedeutet somit:

  • Überdurchschnittlich hohe Mieteinnahmen / Renditen
  • Stark reduziertes Vermieterrisiko
  • Eigentümer überlässt Vermieteraufgaben dem Betreiber

Dieses Rundum-Sorglos-Paket steht für ein transparentes, renditestarkes und entspanntes Immobilieninvestment.

Zahlen, Daten, kalkulierte Werte | Beispielwohnung

  • 34,44 m² gewichtete Wohnfläche
  • 235.611,- Netto-Kaufpreis exkl. 20% USt
  • 906,- Netto-Miete pro Monat (€ 25,06 pro m²)
  • 4,34% Mietrendite

Kaufpreise
Netto-Kaufpreis* ab  € 180.000,- (zzgl. 20 % USt.)
Möbel- und Einrichtungspaket ist NICHT im Kaufpreis enthalten. Die Preise sind beim jeweiligen Objekt angeführt.


Rechtlicher Hinweis:
Alle Angaben beruhen auf Vergangenheitswerten und Annahmen; sie stellen keine Garantie für zukünftige Entwicklungen dar. Sämtliche Bilder, Visualisierungen, Pläne und KI-generierte Darstellungen, die in den Inseraten verwendet werden, dienen ausschließlich als Referenz. Die gezeigte Einrichtung und Fotos sind beispielhaft und können von der tatsächlichen Ausstattung oder dem Layout abweichen. Alle Angaben beruhen auf Informationen des Verkäufers.

Noch nichts gefunden Wir informieren Sie über geeignete Immobilienangebote noch vor allen anderen.
Legen Sie jetzt Ihren individuellen Suchagenten unter folgendem Link an. Wir schicken Ihnen passende Immobilien exklusiv vorab zu.
Suchagent anlegen - https://accenta-immobilien.service.immo/registrieren/de

Wir weisen darauf hin, dass zwischen dem Vermittler und dem zu vermittelnden Dritten ein familiäres oder wirtschaftliches Naheverhältnis besteht.

Der Vermittler ist als Doppelmakler tätig.

Sie wollen auch Ihre Immobilien Verkaufen oder Vermieten

Accenta Immobilien - Ihr Partner für Immobilienvermittlung
www.accenta-immo.at
01/997 12 93
 


Infrastruktur / Entfernungen

Gesundheit
Arzt <50m
Apotheke <175m
Klinik <200m
Krankenhaus <1.825m

Kinder & Schulen
Schule <175m
Kindergarten <375m
Universität <850m
Höhere Schule <2.275m

Nahversorgung
Supermarkt <50m
Bäckerei <150m
Einkaufszentrum <900m

Sonstige
Geldautomat <100m
Bank <100m
Post <100m
Polizei <600m

Verkehr
Bus <150m
U-Bahn <200m
Straßenbahn <100m
Bahnhof <200m
Autobahnanschluss <1.275m

Angaben Entfernung Luftlinie / Quelle: OpenStreetMap

Provision: 3% des Kaufpreises zzgl. 20% USt.


Alle Details anzeigen

KONTAKT






 

Lasse dich kostenlos vom Anbieter dieser Immobilie zurückrufen.







 


 
Accenta Immobilien e.U.
Martina Schütz
Telefonnummer anzeigen Telefon Allgemein: +4319971293
Handy Bearbeiter: +4369917089345
 
Bitte dem Makler die FindMyHome.at - ID bekanntgeben: 5558256

Bewertungen dieses Anbieters
Qualitätsmakler
Qualitätsmakler:
2019,
Netiquette
Freundlichkeit

BEWERTUNGEN DIESES ANBIETERS

 
Qualit�tsmakler
Qualitätsmakler
2019
Freundlichkeit
BESONDERS
FREUNDLICH
Netiquette
FINDMYHOME
NETIQUETTE
Auch du kannst bewerten! 7 Tage nach deiner Anfrage erhältst du dafür von uns ein Bewertungsmail.
Alle Infos zu unseren Auszeichnungen und dem FINDMYHOME.AT Qualitätsprogramm findest du hier: Übersicht anzeigen

FINANZIERUNG
?>

Du willst wissen, wie viel dein Umzug kosten wird?

Mach gleich den kostenlosen Preisvergleich und schau, welche seriösen Anbieter in deiner Region günstig deinen Umzug organisieren


ZUM UMZUGS-VERGLEICH
-->

MYHOME BLOG
SuchAgentin auf FindMyHome.at
Unterschiedlichen Rechtsthemen, köstliche Rezepte, neueste Design-Highlights, sowie aktuelle Technik-Tools für Ihr Eigenheim.


FINDMYHOME.AT SUCHAGENTIN
SuchAgentin auf FindMyHome.at
Hallo, soll ich dir ähnliche Immobilien kostenfrei per E-Mail schicken?


ÄHNLICHE IMMOBILIEN
Aehnliche Immobilie - Vorschaubild 1

# SQ - TOP INVESTMENT - NEUBAUWOHNUNG - 2 ZIMMER im EG MIT L... - Objektnr. 5517554

39,51 m² - 2.0 Zimmer
199000 €
PLZ: 1100

Mehr anzeigen

Aehnliche Immobilie - Vorschaubild 2

Anlegerwohnung mit Sorglos-Vermietungs-Konzept und Top Rendi... - Objektnr. 5594126

30,19 m² - 1.0 Zimmer
199000 €
PLZ: 1100

Mehr anzeigen

Aehnliche Immobilie - Vorschaubild 3

Anlegerwohnung mit Sorglos-Vermietungs-Konzept und Top Rendi... - Objektnr. 5594127

34,46 m² - 1.0 Zimmer
245000 €
PLZ: 1100

Mehr anzeigen

Durch die Nutzung unserer Seite erklären Sie sich mit der Verwendung von Cookies zur Verbesserung Ihres Online-Erlebnisses einverstanden. Detaillierte Informationen zu diesem und weiteren Themen erhalten Sie in unserer Datenschutzerklärung.