MEIN ERGEBNIS ANPASSEN

Ankommen. Aufatmen. Im Grünen Zuhause sein. Ein modernes Reihenhaus mit sonnigem Garten & Raum zum Leben. - Objektnr. 5558201

  • Das neue Zuhause
  • Gartenansicht
  • Vogelperspektive
  • Panorama
  • Eingangsbereich
  • Beispiel Zimmer 2. OG
  • Wohnessbereich (Einrichtungsbeispiel)
  • Beispiel Zimmer OG
  • Aufgang OG (mit Böden und Handlauf)
  • Eingangsbereich II
  • Hebe-Schiebetür
  • Wohn-Essbereich
  • Küche mit Blickrichtung Garten
  • Schlafzimmer & Schrankraum
  • Zimmer mit Ausgang zur Loggia
8181
Ort
134,87 m²
Fläche
4.0
Zimmer

ECKDATEN
FindMyHome.at // Externe Immobilien-ID5558201 // 287738
ImmobilienartHaus - Eigentum
Anschrift8181 Sankt Ruprecht an der Raab
Baujahr2025
Geschosse2
Fläche134,87 m²
Zimmer4.0
Bad1
WC2
 Abstellraum
Kaufpreis:€ 595.000,00
Ratenzahlung:Finanzierungsmöglichkeiten für diese Immobilie anzeigen
Provision: 3% des Kaufpreises zzgl. 20% USt.







BESCHREIBUNG

Ankommen. Aufatmen. Im Grünen Zuhause sein. Ein modernes Reihenhaus mit sonnigem Garten & Raum zum Leben.

Ankommen. Aufatmen. Im Grünen Zuhause sein.

Ein Zuhause, das vom ersten Moment an Geborgenheit ausstrahlt offen, hell und mit Liebe zum Detail gestaltet.
Dieses moderne Reihenhaus vereint stilvolle Architektur, durchdachte Raumplanung und ein außergewöhnliches Wohngefühl ideal für Familien, Paare oder Berufstätige, die Wert auf Lebensqualität legen.

Objektbeschreibung

Das Herzstück des Hauses ist der weitläufige Wohn- und Essbereich lichtdurchflutet, offen gestaltet und mit hohen Raumhöhen, die ein einzigartiges Raumgefühl schaffen. Über eine großzügige Hebeschiebetür gelangt man direkt auf den Balkon, der den Wohnraum harmonisch ins Freie erweitert.
Die offene Stiege verbindet den einladenden Wohnbereich harmonisch mit den privaten Rückzugsräumen im Obergeschoss.

Im Erdgeschoss erwarten Sie neben dem großzügigen Wohnraum auch eine praktische Dusche und ein separates WC komfortabel für den Alltag und Gäste. Ein großzügiger Vorraum mit Garderobe und ein Abstellraum erleichtern den Alltag und sorgen für ein harmonisches Wohngefühl vom ersten Moment an.

Im Obergeschoss entsteht Ihre persönliche Wohlfühloase:
Ein Schlafzimmer mit begehbarem Kleiderschrank, ein modernes Badezimmer mit großer Badewanne und einer riesigen, begehbaren Dusche, ein separates WC sowie zwei große Schlafräume für Familie, Gäste oder Homeoffice. Von den beiden Schlafzimmern gelangt man direkt auf die Loggia der perfekte Ort, um morgens frische Luft zu tanken oder abends in Ruhe abzuschalten.

Als Randhaus bietet dieses Objekt maximale Privatsphäre und überzeugt mit einem sonnigen Eigengarten (ca. 184 m²) sowie einer Loggia mit Blick ins Grüne perfekt zum Entspannen und Genießen.

Ausstattung & Highlights

  • Randhaus mit zusätzlichem Gartenanteil und Privatsphäre
  • Großzügiger Wohn-/Essbereich mit offener Bauweise und hohen Raumhöhen
  • Offene Stiege als stilvolles Verbindungselement zwischen den Ebenen
  • Schlafzimmer mit begehbarem Kleiderschrank
  • Riesige Dusche im Obergeschoss
  • Zwei WCs ideal für Alltag und Gäste
  • Belagsfertig Optionale Fertigstellung: € 30.000,-
  • Beziehbar ab: ca. 2 Monate nach Vertragsabschluss
  • Fußbodenheizung über nachhaltigen Nahwärmeanschluss (Hackgut)
  • Parkplätze direkt vor dem Haus 

Bautechnische Details

  • Massivbauweise mit 25 cm Ziegelmauerwerk & 16 cm Vollwärmeschutz
  • Kunststoff-/Alu-Fenster mit 3-fach-Isoplusverglasung
  • Sämtliche Installationen für Badewanne, Dusche, Waschbecken & Waschmaschine vorbereitet
  • Energieeffiziente Heiztechnik & moderne Bauweise
  • Die angegebenen Betriebskosten basieren auf Erfahrungswerten und sind daher als Annahmen zu werten.

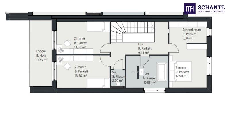
Raumaufteilung

Erdgeschoss

  • Vorraum: ca. 6,56 m²
  • Garderobe: ca. 2,64 m²
  • Abstellraum: ca. 4,86 m²
  • Haustechnik: ca. 3,93 m²
  • Gäste-WC: ca. 4,80 m²
  • Küche: ca. 14,24 m²
  • Wohnen/Essen: ca. 29,53 m²

Obergeschoss

  • Flur: ca. 9,44 m²
  • Bad: ca. 10,55 m²
  • Separates WC: ca. 2,00 m²
  • Schrankraum: ca. 6,34 m²
  • Schlafzimmer 1: ca. 13,50 m²
  • Schlafzimmer 2: ca. 13,50 m²
  • Schlafzimmer 3: ca. 12,98 m²

Gesamtwohnfläche: ca. 134,87 m²

Außenbereiche

  • Eigengarten: ca. 183,64 m²
  • Loggia (OG): ca. 10,78 m²
  • Vorgarten: ca. 3,80 m²
  • Vorplatz: ca. 6,50 m²
  • Gesamtfreifläche: ca. 204,72 m²

Fazit

Ein Zuhause, das begeistert modern, effizient und mit Liebe geplant.
Hier treffen Design, Komfort und Lebensqualität aufeinander.
Ankommen. Aufatmen. Zuhause fühlen.

 

Hinweis zur Visualisierung:
Die dargestellten Bilder mit Bodenbelägen, Küche oder Einrichtungsgegenständen dienen lediglich zur veranschaulichenden Darstellung. Das Haus wird belagsfertig, weiß ausgemalen (ohne Innentüren) übergeben die endgültige Gestaltung der Oberflächen, Böden und des Interieurs obliegt dem Käufer.

 

Worauf noch warten

Vereinbaren Sie noch heute eine Besichtigung oder eine persönliche Beratung mit uns!

Sie wollen Ihre Immobilie verkaufen Dann sind Sie bei uns goldrichtig!
Wir sind gerne für Sie da und unterstützen Sie unverbindlich bei der Bewertung Ihrer Immobilie. Mit viel Sorgfalt stellen wir Ihnen alle wichtigen Informationen und Unterlagen zusammen, damit Sie die besten Entscheidungen treffen können.

In Kooperation mit unserer SFI Vermögenstreuhand begleiten wir Sie bei der Verwirklichung Ihres Traumobjekts und unterstützen Sie beim nachhaltigen Vermögensaufbau. Mit unseren erfahrenen Experten sorgen wir dafür, dass Sie die besten Konditionen erhalten damit Ihre Träume Wirklichkeit werden!

http://www.schantl-ith.at in Kooperation mit www.sfi-invest.com 

Die Angaben über das angebotene Objekt erfolgen mit der Sorgfalt eines ordentlichen Immobilienmaklers; für die Richtigkeit solcher Angaben, die auf Informationen der über das Objekt Verfügungsberechtigten beruhen, wird keine Gewähr geleistet!

Wir weisen darauf hin, dass zwischen dem Vermittler und dem zu vermittelnden Dritten ein familiäres oder wirtschaftliches Naheverhältnis besteht.

Der Vermittler ist als Doppelmakler tätig.


Infrastruktur / Entfernungen

Gesundheit
Arzt <2.500m
Apotheke <3.000m
Krankenhaus <4.500m

Kinder & Schulen
Schule <3.000m
Kindergarten <3.000m
Höhere Schule <9.500m

Nahversorgung
Supermarkt <3.000m
Bäckerei <3.500m
Einkaufszentrum <5.000m

Sonstige
Geldautomat <3.000m
Bank <3.000m
Post <3.000m
Polizei <3.500m

Verkehr
Bus <500m
Bahnhof <500m
Autobahnanschluss <9.500m
Flughafen <1.500m

Angaben Entfernung Luftlinie / Quelle: OpenStreetMap

Provision: 3% des Kaufpreises zzgl. 20% USt.


Alle Details anzeigen

KONTAKT






 

Lasse dich kostenlos vom Anbieter dieser Immobilie zurückrufen.







 


 
Schantl ITH Immobilientreuhand GmbH
Patrick Hrauda, BA
Telefonnummer anzeigen Handy Bearbeiter: +436763330356
 
Bitte dem Makler die FindMyHome.at - ID bekanntgeben: 5558201

Bewertungen dieses Anbieters
Qualitätsmakler
Qualitätsmakler:
2015, 2016, 2018, 2019, 2020, 2021, 2023 , 2024, 2025,
Netiquette
Freundlichkeit
79 %

BEWERTUNGEN DIESES ANBIETERS

 
Qualit�tsmakler
Qualitätsmakler
2015, 2016, 2018, 2019, 2020, 2021, 22/23, 2024, 2025
Antwortzeit
ø 48h ANTWORT
Weiterempfehlung
WIRD GERNE

Freundlichkeit
BESONDERS
FREUNDLICH
Netiquette
FINDMYHOME
NETIQUETTE
Auch du kannst bewerten! 7 Tage nach deiner Anfrage erhältst du dafür von uns ein Bewertungsmail.
Alle Infos zu unseren Auszeichnungen und dem FINDMYHOME.AT Qualitätsprogramm findest du hier: Übersicht anzeigen

FINANZIERUNG
?>

Du willst wissen, wie viel dein Umzug kosten wird?

Mach gleich den kostenlosen Preisvergleich und schau, welche seriösen Anbieter in deiner Region günstig deinen Umzug organisieren


ZUM UMZUGS-VERGLEICH
-->

MYHOME BLOG
SuchAgentin auf FindMyHome.at
Unterschiedlichen Rechtsthemen, köstliche Rezepte, neueste Design-Highlights, sowie aktuelle Technik-Tools für Ihr Eigenheim.


FINDMYHOME.AT SUCHAGENTIN
SuchAgentin auf FindMyHome.at
Hallo, soll ich dir ähnliche Immobilien kostenfrei per E-Mail schicken?


ÄHNLICHE IMMOBILIEN
Aehnliche Immobilie - Vorschaubild 1

Modernes Reihenhaus mit großzügigem Garten in idyllischer Ru... - Objektnr. 5560538

134,87 m² - 4.0 Zimmer
595000 €
PLZ: 8181

Mehr anzeigen

Aehnliche Immobilie - Vorschaubild 2

Modernes Reihenhaus mit großzügigem Garten in idyllischer Ru... - Objektnr. 5560537

134,87 m² - 4.0 Zimmer
595000 €
PLZ: 8181

Mehr anzeigen

Durch die Nutzung unserer Seite erklären Sie sich mit der Verwendung von Cookies zur Verbesserung Ihres Online-Erlebnisses einverstanden. Detaillierte Informationen zu diesem und weiteren Themen erhalten Sie in unserer Datenschutzerklärung.