MEIN ERGEBNIS ANPASSEN

Familientraum auf Pachtgrund am wunderschönen Mariensee - Objektnr. 5557353


ökologisch beheizt
2301
Ort
150,33 m²
Fläche
6.0
Zimmer

ECKDATEN
FindMyHome.at // Externe Immobilien-ID5557353 // 4843
ImmobilienartHaus - Eigentum
Anschrift2301 Groß-Enzersdorf
Baujahr2009
Befeuerung
Erdwärme
Geschosse3
Fläche150,33 m²
Grundfläche420,00 m²
Terrassen2 (53,00 m²)
Zimmer6.0
Bad2
WC2
 Abstellraum
Kaufpreis:€ 349.000,00
Ratenzahlung:Finanzierungsmöglichkeiten für diese Immobilie anzeigen
Provision: 3% des Kaufpreises zzgl. 20% USt. 







BESCHREIBUNG

Familientraum auf Pachtgrund am wunderschönen Mariensee

Wohnen wo andere Urlaub machen

Willkommen am Mariensee!

Sie suchen nach einem Haus am See für sich und Ihre Familie und das in guter Erreichbarkeit zum Wiener Stadtgebiet Dann haben wir genau das Richtige für Sie! Zum Verkauf gelangt ein freistehendes Einfamilienhaus in begehrter See-Ruhelage mit privatem Badesteg am Mariensee. Urlaubsfeeling garantiert! Dieser Familientraum mit gemütlichem Garten mit direktem Zugang zum See befindet sich auf Pachtgrund, welcher für 10 Jahre verpachtet wird - eine Verlängerung des Pachtvertrags ist natürlich möglich. Die Ost-West Lage dieses smart aufgeteilten Juwels verspricht tolle Lichtverhältnisse, eröffnet einen traumhaften Weitblick entlang des Mariensees und bietet eine spektakuläre Kulissefür atemberaubende Sonnenuntergänge. Die herrliche Grünruhelage direkt am türkisblauen Wasser machen diese Immobilie so einzigartig. Das gesamte Haus wird gerade frisch saniert und erstrahlt schon in wenigen Tagen in neuem Glanz!

Sind Sie Neugierig auf diese entzückende Immobilie geworden Überzeugen Sie sich selbst von dieser Rarität und schnuppern Sie noch heute das einzigartige Lebensgefühl von morgen! 

Gerne stehe ich Ihnen für alle Fragen und eine unverbindliche Besichtigung zur Verfügung.

 

Die Lage

Groß-Enzersdorf grenzt an den 22. Bezirk und verfügt über eine ausgezeichnete Infrastruktur (Kindergärten, Schulen, Ärzte). Einkaufsmöglichkeiten befinden sich wenige Minuten mit dem Auto entfernt (Marchfeldcenter). Mit dem Auto erreichen Sie ebenso die U2 Station Aspern in 18 Minuten. Die Griechische Taverne am Sachsengang ist nur wenige Minuten zu Fuß entfernt und lädt zu mediterranem Genuss ein! Oder Sie betätigen sich sportlich und nutzten die große Tennisanlage in direkter Nähe.

Die Wiener Stadtgrenze erreichen Sie in ca. 5 Autominuten, am Busbahnhof Groß Enzersdorf haben Sie eine optimale Anbindung mit dem Bus 26A nach Wien und die U1 & U2.

Das Haus am See

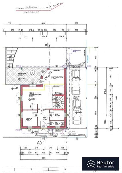
Über die gepflegte Privatstraße gelangen Sie bequem zu Ihrem neuen Traumhaus. Im Jahr 2008/09 errichtet, sticht dieses moderne Familiendomizil auf den ersten Blick aus der Bebauungsstruktur der umliegenden Häuser heraus. Eine durchdachte Raumaufteilung trifft hier auf zeitgemäße Haustechnik und verspricht einen unbeschwerten Wohngenuss für viele Jahre. Vor dem Haus erwarten Sie 4 PKW Abstellmöglichkeiten - zwei davon witterungsgeschützt unter dem Carport, zwei vor dem Haus selbst. Dieses Haus erstreckt sich über drei Wohnebenen. Dank der leichten Hanglage, entpuppt sich das Kellergeschoss als heller, offener Wohnraum mit direktem Zugang in den Garten. Spektakuläres Highlight ist der direkte Seezugang mit privatem Badesteg am smaragdgrünen Mariensee.

Folgende Raumaufteilung erwartet Sie:

Erdgeschoss:

1 einladendes Vorzimmer
1 großzügige Wohnküche (vollausgestattet) mit Ausgang auf die Terrasse, welche über eine Treppe in den Garten führt
1 Arbeitszimmer/Gästezimmer
1 Badezimmer mit Walk-In Dusche und WC

Obergeschoss:

3 Schlafzimmer (eines davon mit Schrankraum)
1 großes Badezimmer mit Wanne, Dusche und WC
1 Balkon mit Blick auf den See

Kellergeschoss:

1 großzügiger Wohnsalon mit Zugang in den Garten
1 Heizraum
1 Waschküche
1 geräumiger Kellerraum
2 Abstellräume (einer vom Garten aus begehbar)

Dachboden:

zusätzlicher Stauraum unter dem Dach

Kurz und bündig

Grundstücksgröße: ca. 420 m2 (1 1/2 Parzellen) auf Pachtgrund
Wohnfläche: ca. 169,70 m2
Zimmer: 6
Baujahr: 2008/09
Heizung: Wasserwärmepumpe
Heizungsart: Fußbodenheizung
Elektrische Rollläden an allen Fenstern
Zustand: gepflegt
Süd-westseitiger Garten mit privatem Badesteg
2 Terrassen
voll unterkellert
Carport für 2 PKW oder ein großes Wohnmobil
Alarmanlage verkabelt
Klimaanlage & Fliegengitter an Fenstern u. Türen

 

+++ Achtung: Es handelt sich um ein Superädifikat - das bedeutet, dass Ihr Haus im Eigentum auf einem Pachtgrund steht +++

Der Pachtvertrag wird immer auf 10 Jahre abgeschlossen.
Die jährliche Pacht beträgt 9.234,00 Euro 

Kaufpreis: EUR 349.000,00

Nebenkosten bei Kauf der Immobilie:

Kaufvertragserrichtung: nach Vereinbarung
Grundbucheintragung: 1,1% des Kaufpreises -> ENTFÄLLT bei HAUPTWOHNSITZANMELDUNG
Grunderwerbssteuer: 3,5%  des Kaufpreises 
Provision: 3% des Kaufpreises zzgl. 20% USt. 

Für weitere Fragen oder eine Besichtigung steht Ihnen Herr DI Constantin Mayer gerne unter +43 670 1978445 oder cm@neutorreal.at zur Verfügung.

Wir dürfen gem. § 5 Maklergesetz darauf hinweisen, dass wir als Doppelmakler tätig sind und ein wirtschaftliches/familiäres Naheverhältnis zu unseren Auftraggebern besteht. Das wirtschaftliche Naheverhältnis ergibt sich aus regelmäßiger geschäftlicher Verbindung. Irrtum vorbehalten.


Infrastruktur / Entfernungen

Gesundheit
Arzt <1.500m
Apotheke <1.500m
Klinik <6.000m
Krankenhaus <8.500m

Kinder & Schulen
Schule <1.500m
Kindergarten <2.000m
Universität <1.000m
Höhere Schule <5.500m

Nahversorgung
Supermarkt <1.500m
Bäckerei <1.500m
Einkaufszentrum <2.000m

Sonstige
Bank <1.500m
Geldautomat <1.500m
Polizei <2.000m
Post <1.500m

Verkehr
Bus <500m
U-Bahn <5.500m
Straßenbahn <6.000m
Autobahnanschluss <8.500m
Bahnhof <4.500m

Angaben Entfernung Luftlinie / Quelle: OpenStreetMap

Klimaanlage: JA
Gartennutzung: JA
Kabel/SAT/TV: JA
Provision: 3% des Kaufpreises zzgl. 20% USt.


Alle Details anzeigen

KONTAKT






 

Lasse dich kostenlos vom Anbieter dieser Immobilie zurückrufen.







 


 
Neutor Real GmbH
Constantin Mayer
Telefonnummer anzeigen Telefon Allgemein: +4315323730
Handy Bearbeiter: +436701978445
 
Bitte dem Makler die FindMyHome.at - ID bekanntgeben: 5557353

Bewertungen dieses Anbieters
Qualitätsmakler
Qualitätsmakler:
2025,
Netiquette
Freundlichkeit
82 %

BEWERTUNGEN DIESES ANBIETERS

 
Qualit�tsmakler
Qualitätsmakler
2025
Weiterempfehlung
WIRD GERNE

Freundlichkeit
BESONDERS
FREUNDLICH
Netiquette
FINDMYHOME
NETIQUETTE
Auch du kannst bewerten! 7 Tage nach deiner Anfrage erhältst du dafür von uns ein Bewertungsmail.
Alle Infos zu unseren Auszeichnungen und dem FINDMYHOME.AT Qualitätsprogramm findest du hier: Übersicht anzeigen

FINANZIERUNG
?>

Du willst wissen, wie viel dein Umzug kosten wird?

Mach gleich den kostenlosen Preisvergleich und schau, welche seriösen Anbieter in deiner Region günstig deinen Umzug organisieren


ZUM UMZUGS-VERGLEICH
-->

MYHOME BLOG
SuchAgentin auf FindMyHome.at
Unterschiedlichen Rechtsthemen, köstliche Rezepte, neueste Design-Highlights, sowie aktuelle Technik-Tools für Ihr Eigenheim.


FINDMYHOME.AT SUCHAGENTIN
SuchAgentin auf FindMyHome.at
Hallo, soll ich dir ähnliche Immobilien kostenfrei per E-Mail schicken?


ÄHNLICHE IMMOBILIEN
Aehnliche Immobilie - Vorschaubild 1

"Platz für 2 Generationen" - Objektnr. 5534847


160,00 m² - 6.0 Zimmer
400000 €
PLZ: 2301

Mehr anzeigen

Durch die Nutzung unserer Seite erklären Sie sich mit der Verwendung von Cookies zur Verbesserung Ihres Online-Erlebnisses einverstanden. Detaillierte Informationen zu diesem und weiteren Themen erhalten Sie in unserer Datenschutzerklärung.