MEIN ERGEBNIS ANPASSEN

Attraktive 2-Zimmer Wohnung mit Loggia im 16.Bezirk - zu verkaufen! - Objektnr. 5557258

1160
Ort
60,27 m²
Fläche
2.0
Zimmer

ECKDATEN
FindMyHome.at // Externe Immobilien-ID5557258 // 16034
ImmobilienartWohnung - Eigentum
Anschrift1160 Wien
Baujahr2008
Befeuerung
Stock2
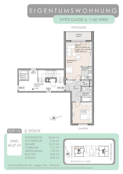
Fläche60,27 m²
Zimmer2.0
Bad1
WC1
 Abstellraum
Kaufpreis:€ 355.000,00
Ratenzahlung:Finanzierungsmöglichkeiten für diese Immobilie anzeigen
Provision: 3% des Kaufpreises zzgl. 20% USt.







BESCHREIBUNG

Attraktive 2-Zimmer Wohnung mit Loggia im 16.Bezirk - zu verkaufen!

Zum Verkauf gelangt eine charmante 2-Zimmerwohnung im 16.Wiener Gemeindebezirk 

Die Wohnung liegt im 2.Obergeschoß eines 2008 errichteten Neubaus mit glatter Fassade und Personenaufzug.

Sie verfügt über zwei Zimmer und ist wie folgt aufgeteilt:
Vom Vorraum aus sind alle Zimmer zentral begehbar.
Das Wohnzimmer ist mit einer modernen Einbauküche ausgestattet, von hier aus erreichen Sie auch die Loggia, das Schlafzimmer befindet sich nebenan. 
Das Badezimmer ist mit Badewanne und WC ausgestattet. 
Durch die großen Fenster wirkt die Wohnung hell und freundlich. Zudem bietet der Abstellraum weiteren Stauraum. 

Raumaufteilung:

  • Vorraum
  • Bad mit Badewanne und WC
  • Schlafzimmer
  • Wohnküche mit Zugang zur Loggia
  • Abstellraum

Wenn diese Wohnung Ihr Interesse geweckt hat, vereinbaren Sie gerne jederzeit einen Besichtigungstermin unter +43 660 636 5858
Da aktuell mehrere Objekte in der Liegenschaft verfügbar sind, beraten wir Sie gerne auch über folgende Alternativen! 

Lage:

Die Wohnung liegt in der Hyrtlgasse im 16. Wiener Gemeindebezirk. Die Geschäfte des täglichen Bedarfs sind fußläufig erreichbar und in unmittelbarer Umgebung, wie etwa Billa und Spar in 5 Gehminuten. Auch diverse Restaurants und Lokale befinden sich in Gehweite.

Das Objekt befindet sich in einer sehr citynahen Lage, vor allem die Lügner City, welche nur wenige hundert Meter von der Wohnung entfernt ist, wertet das Objekt enorm auf. Die Lügner City hat täglich bis 21.00 Uhr geöffnet und bietet zahlreiche Einkaufsmöglichkeiten an, ebenso wie der Westbahnhof, welcher auch in unmittelbarere Nähe gelegen ist. Aber auch Naturliebhaber haben die Möglichkeit den Wilhelminenberg zu besuchen.

Öffentliche Verkehrsmittel:

- U-Bahn U6 Station "Burggasse-Stadthalle" (ca. 10 Gehminuten entfernt!)
- Buslinie 48A
- Straßenbahn 9
 

Nebenkosten: 

Grundbucheintragung: 1,1% d.KP. 

Grunderwerbssteuer: 3,5% d.KP.

Maklerprovision: 3% d.KP. + 20% USt. 

Kaufvertragshonorar: 1,2% zzgl. Barauslagen und USt. | Die Errichtung und Durchführung des Kaufvertrages erfolgt durch die Kanzlei Tiefenthaler Gnesda Rechtsanwälte GmbH.

 

Maklervereinbarung: Wir ersuchen um Verständnis, dass wir bei Anfragen zur Objektadresse, bzw. Besichtigungstermin  aufgrund neuer gesetzlicher Bestimmungen Unterlagen erst dann zusenden können, wenn Sie vorab bestätigen, dass Sie unser sofortiges Tätigwerden wünschen und über Ihre Rücktrittsrechte aufgeklärt wurden. Sie bekommen nach Ihrer schriftlichen Anfrage mit vollständiger Angabe des Namens, Anschrift und Telefonnummer ein Email, in dem Sie diese Punkte bestätigen müssen.


Haftungsausschluss:  Wir weisen darauf hin, dass sämtliche Daten im vorliegenden Angebot sowie die von unserem Büro an Sie weitergegebenen Auskünfte, vom Eigentümer der Immobilie zur Verfügung gestellt wurden. Ebenso sind Informationen von Dritten (z.B. behördliche Informationen) eingeholt worden, auch für diese können wir unsererseits keinerlei Haftung für deren uneingeschränkte Richtigkeit übernehmen.

Wir weisen darauf hin, dass zwischen dem Vermittler und dem zu vermittelnden Dritten ein familiäres oder wirtschaftliches Naheverhältnis besteht.


Infrastruktur / Entfernungen

Gesundheit
Arzt <500m
Apotheke <500m
Klinik <1.000m
Krankenhaus <2.000m

Kinder & Schulen
Schule <500m
Kindergarten <500m
Universität <1.000m
Höhere Schule <1.000m

Nahversorgung
Supermarkt <500m
Bäckerei <500m
Einkaufszentrum <1.000m

Sonstige
Geldautomat <500m
Bank <1.000m
Post <1.000m
Polizei <1.000m

Verkehr
Bus <500m
U-Bahn <1.000m
Straßenbahn <500m
Bahnhof <1.000m
Autobahnanschluss <5.000m

Angaben Entfernung Luftlinie / Quelle: OpenStreetMap

Provision: 3% des Kaufpreises zzgl. 20% USt.


Alle Details anzeigen

KONTAKT






 

Lasse dich kostenlos vom Anbieter dieser Immobilie zurückrufen.







 


 
Moritz Immobilien
Nicolas Büttner
Telefonnummer anzeigen Handy Bearbeiter: +436606365858
 
Bitte dem Makler die FindMyHome.at - ID bekanntgeben: 5557258

Bewertungen dieses Anbieters
Netiquette

BEWERTUNGEN DIESES ANBIETERS

 
Netiquette
FINDMYHOME.AT
NETIQUETTE
Auch du kannst bewerten! 7 Tage nach deiner Anfrage erhältst du dafür von uns ein Bewertungsmail.
Alle Infos zu unseren Auszeichnungen und dem FINDMYHOME.AT Qualitätsprogramm findest du hier: Übersicht anzeigen

FINANZIERUNG
?>

Du willst wissen, wie viel dein Umzug kosten wird?

Mach gleich den kostenlosen Preisvergleich und schau, welche seriösen Anbieter in deiner Region günstig deinen Umzug organisieren


ZUM UMZUGS-VERGLEICH
-->

MYHOME BLOG
SuchAgentin auf FindMyHome.at
Unterschiedlichen Rechtsthemen, köstliche Rezepte, neueste Design-Highlights, sowie aktuelle Technik-Tools für Ihr Eigenheim.


FINDMYHOME.AT SUCHAGENTIN
SuchAgentin auf FindMyHome.at
Hallo, soll ich dir ähnliche Immobilien kostenfrei per E-Mail schicken?


ÄHNLICHE IMMOBILIEN
Aehnliche Immobilie - Vorschaubild 1

Nahe Wilhelminenberg: Wohnen mit Stil und Freiraum... - Objektnr. 5600017

61,47 m² - 3.0 Zimmer
401900 €
PLZ: 1160

Mehr anzeigen

Aehnliche Immobilie - Vorschaubild 2

Hochwertiger 3-Zimmer-Erstbezug Nähe Wilhelminenspital - U3... - Objektnr. 5589914

54,02 m² - 3.0 Zimmer
298000 €
PLZ: 1160

Mehr anzeigen

Aehnliche Immobilie - Vorschaubild 3

RUHIGE 2-ZIMMER-EIGENTUMSWOHNUNG IN HOFSEITIGER LAGE ? IDEAL... - Objektnr. 5578016

58,00 m² - 2.0 Zimmer
355000 €
PLZ: 1160

Mehr anzeigen

Durch die Nutzung unserer Seite erklären Sie sich mit der Verwendung von Cookies zur Verbesserung Ihres Online-Erlebnisses einverstanden. Detaillierte Informationen zu diesem und weiteren Themen erhalten Sie in unserer Datenschutzerklärung.