MEIN ERGEBNIS ANPASSEN

ANLEGERPREIS | NEUBAU | 2-ZIMMER | GARTENWOHNUNG | EXKLUSIVE AUSSTATTUNG - Objektnr. 5556271


ökologisch beheizt
  • KI generiert
  • KI generiert
  • KI generiert
  • KI generiert
  • KI generiert
  • KI generiert
  • KI generiert
  • KI generiert
  • KI generiert
  • KI generiert
  • KI generiert
  • KI generiert
1230
Ort
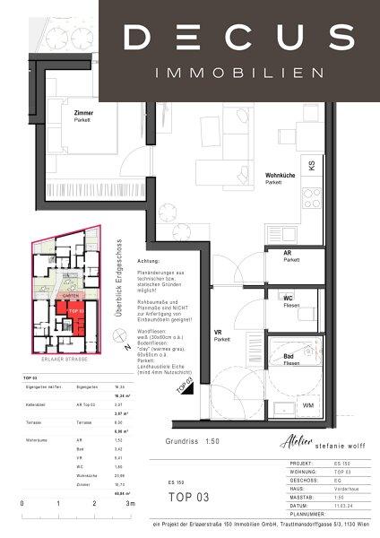
46,84 m²
Fläche
2.0
Zimmer
WEITERE MEDIEN

ECKDATEN
FindMyHome.at // Externe Immobilien-ID5556271 // 1150866
ImmobilienartEigentum
AnschriftErlaaer Straße/03
1230 Wien
Baujahr2025
Befeuerung
Luftwärmepumpe
Fläche46,84 m²
Terrassen1 (8,00 m²)
Zimmer2.0
Bad1
WC1
Kaufpreis:€ 299.736,00
Ratenzahlung:Finanzierungsmöglichkeiten für diese Immobilie anzeigen
Provision: 3% des Kaufpreises zzgl. 20% USt.







BESCHREIBUNG

ANLEGERPREIS | NEUBAU | 2-ZIMMER | GARTENWOHNUNG | EXKLUSIVE AUSSTATTUNG

| THE 150 |

 

Fertigstellung Q4 - 2025

 

Vereinbaren Sie JETZT einen Termin für die Besichtigung der Musterwohnungen (2 und 3 Zimmer)

 

Willkommen zu unserem exklusiven Neubauprojekt in einer ruhigen Nebenstraße Wiens mit 16 hochwertigen Eigentumswohnungen sowie einem Geschäftslokal. Diese Wohnungen bieten Singles, Anlegern und Familien gleichermaßen ein perfektes Zuhause, mit einer Auswahl von 1 bis 4 Zimmern für ein vielfältiges Wohnkonzept.

Architektonisches Konzept: Das Objekt besteht aus zwei Bauteilen, wobei die meisten Wohneinheiten eine eigene Außenfläche besitzen.

Alle Dachgeschoßwohnungen sowie das Townhouse sind mit großzügigen Dachterrassen ausgestattet.

Materialien und Technik: Hochwertige und Umweltfreundliche Materialien, moderne ALU-Kunststoff Fenster und Luft-Wasser-Wärmepumpe für Heizung, Warmwasser und Kühlung sorgen für erstklassigen Komfort und reduzieren den CO2 Fußabdruck des Gebäude erheblich.

Besondere Highlights:

  • Massive Ziegel-Bauweise
  • Umweltfreundliche Glaswolle für optimale Dämmung und Nachhaltigkeit
  • Luft-Wasser-Wärmepumpe mit PV-Unterstützung für niedrigsten Energieverbrauch
  • Komfortable Ausstattung mit Fußbodenheizung und Handtuchtrockner in den Badezimmern
  • Fenster mit 3-fach-Isolierverglasung und UV-Schutz
  • Wohnungseingangstüren für maximale Sicherheit und Brandschutz
  • Effiziente Energieausnutzung mit niedrigem Heizwärmebedarf
  • Klimatisierung für ganzjährigen Komfort
  • Ab dem 1.OG ist eine Vorbereitung für die Split Geräte in jedem Wohnraum vorhanden
  • Jeder Garagenplatz verfügt über eine Wallbox Elektroladestation
  • Die Wohnung sind mit einer Videogegensprechanlage ausgestattet

Schlüsselfertiges Paket: Jede Wohnung wird mit einem hochwertigen Schlüsselfertig-Paket ausgestattet, das höchsten Ansprüchen an Qualität und Design gerecht wird. Die Ausstattung umfasst elegante Dielenböden, die einen Hauch von Luxus verleihen, sowie exquisit gestaltete Sanitäranlagen, die Komfort und Eleganz vereinen. Darüber hinaus zeichnen sich die Badezimmer durch erstklassige Fliesen aus, die eine harmonische Atmosphäre schaffen und den zeitlosen Stil der Wohnungen unterstreichen.

Freiflächen und Ausstattung: Ein kleiner Kinderspielplatz und eine Eigengartenzone zwischen den Gebäuden bieten zusätzlichen Freiraum. Die Tiefgarage mit 9 PKW-Stellplätzen, Abstellräumen für Fahrräder und Kinderwagen sowie Technik- und Erschließungsräumen im Untergeschoss bieten maximalen Komfort.

Ein Garagenplatz kostet EUR 35.000,--

Die kalkulierten Betriebskosten für Garagenplätze belaufen sich auf: 22,40 € pro Monat, Brutto

Die kalkulierten Betriebskosten für die Wohneinheiten belaufen sich auf: 2,11€/m² und Monat, inkl. der Rücklage und zzgl. Ust. 

Auf das wirtschaftliche Naheverhältnis zur Verkäuferin wird hingewiesen. Abweichungen von den Plänen und Änderungen sind vorbehalten! Die gezeigten Fotos sind mit KI-Software bearbeitet, und stammen von den beiden Musterwohnungen in diesem Haus. Bitte orientieren Sie sich zunächst am Plan.

Die Wohnungen werden ohne Küche übergeben.

Bitte nehmen Sie zur Kenntnis, dass die Anlegerpreisen zzgl. Umsatzsteuer zu verstehen sind. Bei Überrechnung dieser Umsatzsteuer beim Finanzamt muss diese jedoch nicht finanziert werden.

Wir weisen darauf hin, dass zwischen dem Vermittler und dem zu vermittelnden Dritten ein familiäres oder wirtschaftliches Naheverhältnis besteht.

Der Vermittler ist als Doppelmakler tätig.

DECUS Immobilien GmbH – Wir beleben Räume

Für weitere Informationen und Besichtigungen steht Ihnen gerne Herr Ing. Nicolas Putzlager unter der Mobilnummer +43 660 302 61 70 und per E-Mail unter putzlager@decus.at persönlich zur Verfügung.

www.decus.at | office@decus.at 

 

Wichtige Informationen

Bitte beachten Sie, dass per 13.06.2014 eine neue Richtlinie für Fernabsatz- und Auswärtsgeschäfte in Kraft getreten ist.

Ab 1.4.2024 entfallen die Grundbuchs- und Pfandrechtseintragungsgebühren vorübergehend für Eigenheime bis zu einer Bemessungsgrundlage von EUR 500.000,-. Voraussetzung ist das dringende Wohnbedürfnis, ausgenommen davon sind vererbte oder geschenkte Immobilien. Die Befreiung ist jedoch für den Einzelfall zu prüfen, DECUS Immobilien übernimmt hierzu keine Haftung.

Ab 01.07.2023 gilt das Erstauftraggeber-Prinzip bei Wohnungsmietverträgen, ausgenommen davon sind Dienst-/Natural-/Werkswohnungen. Wir dürfen gem. § 17 Maklergesetz darauf hinweisen, dass wir auf die Doppelmaklertätigkeit gem. § 5 Maklergesetz bei Wohnungsmietverträgen verzichten und nur noch einseitig tätig sind (bei den restlichen Vermittlungsarten nicht) und ein wirtschaftliches Naheverhältnis zu unseren Auftraggebern besteht. 

Im Falle eines Abschlusses mit Ihnen oder einem von Ihnen namhaft gemachten Dritten bzw. bei beidseitiger Willensübereinstimmung beträgt unser Honorar (lt. Honorarverordnung für Immobilienmakler) 2 Bruttomonatsmieten (BMM) bei Dienst-/Natural-/Werkwohnungen sowie Suchaufträgen, 3 BMM bei Gewerbe-, PKW-, Keller- und Lagermietverträgen sowie bei Kaufobjekten 3 % des Kaufpreises, zuzüglich der gesetzlichen Umsatzsteuer.

Dieses Objekt wird Ihnen unverbindlich und freibleibend angeboten. Oben angeführte Angaben basieren auf Informationen und Unterlagen des Eigentümers und sind unsererseits ohne Gewähr.

Nähere Informationen sowie unsere AGBs und die Nebenkostenübersichtsblatt finden Sie auf unserer Homepage www.decus.at unter "Service" - "Rechtliches zum FAGG" sowie im Anhang der zugesendeten Objekt-Exposés!


Infrastruktur / Entfernungen

Gesundheit
Arzt <250m
Apotheke <500m
Klinik <1.750m
Krankenhaus <1.750m

Kinder & Schulen
Schule <750m
Kindergarten <250m
Universität <5.000m
Höhere Schule <4.500m

Nahversorgung
Supermarkt <500m
Bäckerei <1.500m
Einkaufszentrum <1.000m

Sonstige
Geldautomat <500m
Bank <1.500m
Post <1.500m
Polizei <1.500m

Verkehr
Bus <250m
U-Bahn <750m
Straßenbahn <2.750m
Bahnhof <500m
Autobahnanschluss <1.000m

Angaben Entfernung Luftlinie / Quelle: OpenStreetMap

Rollstuhlgerecht: JA
Barrierefrei: JA
Provision: 3% des Kaufpreises zzgl. 20% USt.


Alle Details anzeigen

KONTAKT






 

Lasse dich kostenlos vom Anbieter dieser Immobilie zurückrufen.







 


 
DECUS Immobilien GmbH
Nicolas Putzlager
Telefonnummer anzeigen Telefon Allgemein: +436603026170
Handy Bearbeiter: +436603026170
 
Bitte dem Makler die FindMyHome.at - ID bekanntgeben: 5556271

Bewertungen dieses Anbieters
Qualitätsmakler
Qualitätsmakler:
2019, 2020, 2021, 2023, 2024, 2025,
Netiquette
Freundlichkeit
83 %

BEWERTUNGEN DIESES ANBIETERS

 
Qualit�tsmakler
Qualitätsmakler
2019, 2020, 2021, 22/23, 2024, 2025
Weiterempfehlung
WIRD GERNE

Freundlichkeit
BESONDERS
FREUNDLICH
Netiquette
FINDMYHOME
NETIQUETTE
Auch du kannst bewerten! 7 Tage nach deiner Anfrage erhältst du dafür von uns ein Bewertungsmail.
Alle Infos zu unseren Auszeichnungen und dem FINDMYHOME.AT Qualitätsprogramm findest du hier: Übersicht anzeigen

FINANZIERUNG
?>

Du willst wissen, wie viel dein Umzug kosten wird?

Mach gleich den kostenlosen Preisvergleich und schau, welche seriösen Anbieter in deiner Region günstig deinen Umzug organisieren


ZUM UMZUGS-VERGLEICH
-->

MYHOME BLOG
SuchAgentin auf FindMyHome.at
Unterschiedlichen Rechtsthemen, köstliche Rezepte, neueste Design-Highlights, sowie aktuelle Technik-Tools für Ihr Eigenheim.


FINDMYHOME.AT SUCHAGENTIN
SuchAgentin auf FindMyHome.at
Hallo, soll ich dir ähnliche Immobilien kostenfrei per E-Mail schicken?


ÄHNLICHE IMMOBILIEN
Aehnliche Immobilie - Vorschaubild 1

NEUBAU | 2-ZIMMER | QUALITATIVE BAUWEISE | SCHLÜSSELFERTIG... - Objektnr. 5559492

38,30 m² - 2.0 Zimmer
240100 €
PLZ: 1230

Mehr anzeigen

Aehnliche Immobilie - Vorschaubild 2

Erstbezug | Neubau mit Loggia | schlüsselfertig | Luftwärmep... - Objektnr. 5561548

44,09 m² - 2.0 Zimmer
278070 €
PLZ: 1230

Mehr anzeigen

Aehnliche Immobilie - Vorschaubild 3

| NEUBAU | 2-ZIMMER | GARTENWOHNUNG | EXKLUSIVE AUSSTATTUNG... - Objektnr. 5584533

46,84 m² - 2.0 Zimmer
325800 €
PLZ: 1230

Mehr anzeigen

Durch die Nutzung unserer Seite erklären Sie sich mit der Verwendung von Cookies zur Verbesserung Ihres Online-Erlebnisses einverstanden. Detaillierte Informationen zu diesem und weiteren Themen erhalten Sie in unserer Datenschutzerklärung.