MEIN ERGEBNIS ANPASSEN

2 Zimmer Wohnung mit Balkon ab sofort! - Objektnr. 5554185

1220
Ort
€ 879,16
Gesamtkosten
45,95 m²
Fläche
2.0
Zimmer

ECKDATEN
FindMyHome.at // Externe Immobilien-ID5554185 // 3815
ImmobilienartWohnung - Miete
AnschriftZiegelhofstraße
1220 Wien
Baujahr2022
Stock4
Mietdauer10
Fläche45,95 m²
Zimmer2.0
Bad1
WC1
Kaution:€ 2.700,00
Brutto-Miete:€ 879,16
Betriebskosten (inkl. MwSt):€ 87,16
Mehrwertsteuer:€ 79,92
Monatliche Gesamtkosten:€ 879,16
Provision: Gemäß Erstauftraggeberprinzip bezahlt der Abgeber die Provision.




BESCHREIBUNG

2 Zimmer Wohnung mit Balkon ab sofort!

2-Zimmer-Wohnung mit Balkon auf 10 Jahre mit Option auf Verlängerung!

 

Beschreibung:

Die Wohnhausanlage befindet sich im 22. Wiener Bezirk, nahe dem Hirschstettner Badeteich und den Blumengärten Hirschstetten.

Die 46 m² große Wohnung mit knapp 5 m² Freifläche (Balkon) sucht einen neuen Nachmieter ab sofort! 

 

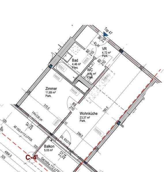
Beim Betreten der Wohnung gelangen Sie durch die Eingangstür in einen einladenden Flur. Direkt gegenüber befindet sich das Badezimmer mit einer Badewanne, einem Waschbecken und einem Waschmaschinenanschluss sowie ein separat liegendes WC inkl. Handwaschbecken. Folgt man dem Flur gelangt man in den geräumigen Wohnbereich, der eine offene Wohnküche umfasst. Die Küche ist mit modernen Geräten ausgestattet und bietet Ihnen alles, was Sie für den täglichen Gebrauch benötigen. Von hier aus haben Sie Zugang zu dem gemütlichen Balkon. Eine weitere Tür im Wohnbereich führt Sie in das abgetrennte Schlafzimmer.

 

Des Weiteren ist die Wohnung mit einer Deckenkühlung ausgestattet, welche bereits in den Betriebskosten inkludiert ist. Geheizt wird in der Anlage mittels Fernwärme. Ein geräumiges Kellerabteil wir dem Mieter für die Mietdauer zur Verfügung gestellt. Ein Aufzug ist natürlich auch vorhanden. Die Hausanlage verfügt außerdem über einen Kinderwagen- und einen Fahrradabstellraum, sowie einem Party- bzw. Kinderspielraum und einer Waschküche.

Ein Autostellplatz kann in der Tiefgarage bei Bedarf und Verfügbarkeit separat angemietet werden.

 

Ausstattung:

Parkettböden in den Wohnräumen, Fußbodenheizung, elektrische Außenjalousien, Internet- und Kabel-Anschlüsse, Gegensprechanlage; Sicherheitstür; Deckenkühlung

 

Hinweis:

Dies sind keine Originalbilder! Die Fotos stammen von neben liegenden/ähnlichen Wohnungen aus dem Gebäude und dienen daher als gute Veranschaulichung und bieten gleichzeitig die Möglichkeit zum Vergleich. (Aufbau der Wohnung entsprechend dem Grundrissplan!)

 

 

Konditionen:

Vermietet wird auf 10 Jahre ab sofort; mit Option auf Verlängerung

Kündigungsverzicht: 1 JahrKündigungsfrist: 3 Monate;

Gesamtmiete (inkl. BK und Steuern): € 879,16

Kaution: € 2.700,- // Vertragserrichtung: € 360, - // provisionsfrei für den Mieter!

 

Strom wird auf den Mieter umgemeldet. Heizung (Fernwärme und Wasser) wird direkt über Wien Energie verrechnet und auf den Mieter umgeschrieben.

TV und Internet sind nach Bedarf selbst an- und wieder abzumelden.

Ein Abschluss einer Haushaltsversicherung wird vor dem Einzug empfohlen.

 

 

 

Kontakt

Bitte beachten Sie, dass wir aufgrund der Nachweispflicht gegenüber dem Eigentümer nur Anfragen mit vollständiger Angabe der Anschrift bearbeiten können. 

Wir senden Ihnen gerne weitere und detaillierte Beschreibungen, sowie Besichtigungstermine zu, sobald wir Ihre Anfrage erhalten haben.

Wir bitten Sie daher um eine Email Anfrage an:

 

 

Noch nichts gefunden Wir informieren Sie über geeignete Immobilienangebote noch vor allen anderen.
Legen Sie jetzt Ihren individuellen Suchagenten unter folgendem Link an. Wir schicken Ihnen passende Immobilien exklusiv vorab zu.
Suchagent anlegen - https://pr-immobilien-real-estate.service.immo/registrieren/de

Der Immobilienmakler erklärt, dass er entgegen dem in der Immobilienwirtschaft üblichen Geschäftsgebrauch des Doppelmaklers einseitig nur für den Vermieter tätig ist.


Infrastruktur / Entfernungen

Gesundheit
Arzt <250m
Apotheke <500m
Klinik <1.500m
Krankenhaus <2.250m

Kinder & Schulen
Schule <500m
Kindergarten <500m
Universität <3.000m
Höhere Schule <3.000m

Nahversorgung
Supermarkt <250m
Bäckerei <750m
Einkaufszentrum <1.500m

Sonstige
Geldautomat <250m
Bank <250m
Post <750m
Polizei <250m

Verkehr
Bus <250m
U-Bahn <1.000m
Straßenbahn <500m
Bahnhof <1.000m
Autobahnanschluss <1.250m

Angaben Entfernung Luftlinie / Quelle: OpenStreetMap

Klimaanlage: JA
Gartennutzung: JA
Kabel/SAT/TV: JA
Rollstuhlgerecht: JA
Provision: Gemäß Erstauftraggeberprinzip bezahlt der Abgeber die Provision.


Alle Details anzeigen

KONTAKT






 

Lasse dich kostenlos vom Anbieter dieser Immobilie zurückrufen.







 


 
PR-IMMOBILIEN / REAL ESTATE
Marissa Stifter
Telefonnummer anzeigen Telefon Allgemein: +436765900280
Handy Bearbeiter: +436765900280
 
Bitte dem Makler die FindMyHome.at - ID bekanntgeben: 5554185

Bewertungen dieses Anbieters
Netiquette
Freundlichkeit
Antwortszeit
100 %

BEWERTUNGEN DIESES ANBIETERS

 
Antwortzeit
ø 24h ANTWORT
Weiterempfehlung
WIRD SEHR GERNE

Freundlichkeit
BESONDERS
FREUNDLICH
Netiquette
FINDMYHOME
NETIQUETTE
Auch du kannst bewerten! 7 Tage nach deiner Anfrage erhältst du dafür von uns ein Bewertungsmail.
Alle Infos zu unseren Auszeichnungen und dem FINDMYHOME.AT Qualitätsprogramm findest du hier: Übersicht anzeigen


Du willst wissen, wie viel dein Umzug kosten wird?

Mach gleich den kostenlosen Preisvergleich und schau, welche seriösen Anbieter in deiner Region günstig deinen Umzug organisieren


ZUM UMZUGS-VERGLEICH
-->

MYHOME BLOG
SuchAgentin auf FindMyHome.at
Unterschiedlichen Rechtsthemen, köstliche Rezepte, neueste Design-Highlights, sowie aktuelle Technik-Tools für Ihr Eigenheim.


FINDMYHOME.AT SUCHAGENTIN
SuchAgentin auf FindMyHome.at
Hallo, soll ich dir ähnliche Immobilien kostenfrei per E-Mail schicken?


ÄHNLICHE IMMOBILIEN
Aehnliche Immobilie - Vorschaubild 1

Bertha-von-Suttner-Gasse 6, 1220 Wien / I3 - Objektnr. 5554214


42,81 m² - 2.0 Zimmer
774 €
PLZ: 1220

Mehr anzeigen

Aehnliche Immobilie - Vorschaubild 2

2-Zimmer-Wohnung inkl hochwertiger Markenküche mit Geschirrs... - Objektnr. 5523778

52,57 m² - 2.0 Zimmer
1029 €
PLZ: 1220

Mehr anzeigen

Aehnliche Immobilie - Vorschaubild 3

Nähe Alte Donau - Sonnig und modern mit Balkon - Objektnr. 5549614

51,68 m² - 2.0 Zimmer
1047.05 €
PLZ: 1220

Mehr anzeigen

Durch die Nutzung unserer Seite erklären Sie sich mit der Verwendung von Cookies zur Verbesserung Ihres Online-Erlebnisses einverstanden. Detaillierte Informationen zu diesem und weiteren Themen erhalten Sie in unserer Datenschutzerklärung.