MEIN ERGEBNIS ANPASSEN

Stilvolle Dachgeschosswohnung mit außergewöhnlicher Dachterrasse in 1090 Wien - Objektnr. 5553638


ökologisch beheizt
1090
Ort
€ 3.474,62
Gesamtkosten
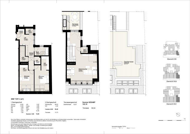
122,10 m²
Fläche
3.0
Zimmer

ECKDATEN
FindMyHome.at // Externe Immobilien-ID5553638 // 5237/1282
ImmobilienartWohnung - Miete
Anschrift1090 Wien,Alsergrund
Befeuerung
Fernwärme
Beziehbar ab2025-06-01
Mietdauer5
Fläche122,10 m²
Terrassen1 (57,00 m²)
Zimmer3.0
Bad1
WC2
 Abstellraum
Kaution:€ 10.423,86
Brutto-Miete:€ 3.474,62
Betriebskosten (inkl. MwSt):€ 239,07
Mehrwertsteuer:€ 329,86
Monatliche Gesamtkosten:€ 3.474,62
Provision: Gemäß Erstauftraggeberprinzip bezahlt der Abgeber die Provision.




BESCHREIBUNG

Stilvolle Dachgeschosswohnung mit außergewöhnlicher Dachterrasse in 1090 Wien

Objektbeschreibung

Diese im Jahr 2018 errichtete Dachgeschosswohnung besticht durch ihre zeitlose Architektur, lichtdurchflutete Räume und eine Ausstattung auf hohem Niveau.
Schon beim Betreten der Wohnung wird die Großzügigkeit der Raumplanung spürbar: Der einladende Eingangsbereich öffnet sich zu einem durchdachten Grundriss, der Funktionalität und Wohnkomfort harmonisch vereint.
Angrenzend befindet sich ein WC mit Tageslicht praktisch und elegant zugleich.

Über den zentralen Gang gelangt man in das helle Badezimmer mit Badewanne, Dusche und zwei Waschbecken, das mit hochwertigen Materialien und natürlichem Lichteinfall überzeugt.
Zwei Schlafzimmer bieten ausreichend Platz zum Entspannen; ein begehbarer Wirtschaftsraum und ein Stauraum unter der Treppe sorgen für zusätzlichen Stauraum und Komfort.

Die Wohnung ist unmöbliert (ausgenommen die moderne Küche), verfügt jedoch über eine Klimaanlage sowie großflächige Fensterfronten mit elektrisch steuerbarer Außenbeschattung ideal für ein angenehmes Raumklima zu jeder Jahreszeit.

 

 

Wohn- und Freiflächen

Über eine elegante innenliegende Treppe gelangt man in den offen gestalteten Wohnbereich mit rund 50 m², der durch seine klare Raumstruktur besticht.
Die großzügige Gestaltung ermöglicht eine harmonische Trennung von Wohn- und Essbereich, wodurch ein besonders einladendes Ambiente entsteht.

Ein weiteres WC sowie eine ca. 14 m² große Terrasse  ergänzen diese Ebene perfekt für den morgendlichen Kaffee oder entspannte Stunden im Freien.

Das absolute Highlight der Immobilie ist jedoch die beeindruckende Dachterrasse mit rund 43 m², die über eine Treppe im Außenbereich erreichbar ist.
Von hier eröffnet sich ein atemberaubender Rundumblick über die Wiener Skyline ein Platz, der zu jeder Tageszeit begeistert und sowohl Ruhe als auch einzigartige Momente über den Dächern Wiens verspricht.

 

 

Raumaufteilung

  • Wohnküche (offen gestaltet)
  • 2 Schlafzimmer
  • Badezimmer mit Badewanne und Dusche
  • Wirtschaftsraum
  • Vorzimmer
  • 2 WCs
  • Abstellraum
  • Terrassen (ca. 14 m² und ca. 43 m² Dachterrasse)
  • Fliesen in den Sanitärbereichen, hochwertiger Parkettboden
     

 

Ausstattung im Überblick

  • Baujahr: 2018
  • Unmöbliert (nur Küche vorhanden)
  • Klimaanlage
  • Elektrische Außenbeschattung
  • Großflächige Verglasungen
  • Zwei großzügige Terrassen
  • Moderne Sanitärausstattung
  • Hochwertige Bodenbeläge
     

 

 

Lage und Infrastruktur

Die Wohnung befindet sich in ausgezeichneter Lage des 9. Bezirks mit optimaler öffentlicher Anbindung:

  • Straßenbahnlinie D (Station Schlickgasse): ca. 3 Gehminuten
  • U-Bahn-Stationen U4 Roßauer Lände und U4 Schottenring: jeweils unter 10 Gehminuten

Darüber hinaus bietet die Umgebung eine erstklassige Nahversorgung mit vielfältigen Einkaufsmöglichkeiten, Cafés und Restaurants.
Die zentrale, dennoch ruhige Lage verbindet urbanes Leben mit einem hohen Maß an Wohnqualität.

 

 

Bonitätskriterien für eine Anmietung

Für den Abschluss eines Mietvertrages sind folgende Unterlagen erforderlich:

  • Gültiger Lichtbildausweis
  • Aktuelle Bonitätsauskunft (z. B. KSV)
  • Meldezettel (nicht älter als 3 Monate)
  • Nachweis eines unbefristeten Aufenthaltstitels
  • Nachweis eines laufenden, unbefristeten Dienstverhältnisses
    • Mindestens einjährige Beschäftigungsdauer (ggf. mit Vorlohnzettel)
    • Bei kürzerer Beschäftigungsdauer: erhöhte Kaution bis 6 BMM oder Garantie
  • Gehaltszettel der letzten 3 Monate
  • Die monatliche Bruttomonatsmiete (BMM) darf 40 % des Netto-Haushaltseinkommens (ohne Zulagen bzw. 13./14. Gehalt) nicht überschreiten
     

 

Besichtigung und Kontakt

Zögern Sie nicht und vereinbaren Sie einen Besichtigungstermin! Gerne auch am Wochenende!


Diese Dachgeschosswohnung in 1090 Wien ist nicht nur ein Ort zum Wohnen, sondern ein Zuhause mit Charakter, Licht und Weitblick geschaffen für Menschen, die das Besondere suchen.

PROVISIONSFREI für Mieter.

 

Hinweis

Einzelne Fotos sind mit Hilfe von KI generiert worden um eine Möblierung darzustellen - ein entsprechender Hinweis befindet sich im Foto. Die Wohnung wird ohne Möbel vermietet. 

Der Immobilienmakler erklärt, dass er entgegen dem in der Immobilienwirtschaft üblichen Geschäftsgebrauch des Doppelmaklers einseitig nur für den Vermieter tätig ist.


Infrastruktur / Entfernungen

Gesundheit
Arzt <500m
Apotheke <500m
Klinik <500m
Krankenhaus <1.500m

Kinder & Schulen
Schule <500m
Kindergarten <1.000m
Universität <500m
Höhere Schule <1.000m

Nahversorgung
Supermarkt <500m
Bäckerei <500m
Einkaufszentrum <2.000m

Sonstige
Geldautomat <500m
Bank <500m
Post <500m
Polizei <500m

Verkehr
Bus <500m
U-Bahn <500m
Straßenbahn <500m
Bahnhof <500m
Autobahnanschluss <2.500m

Angaben Entfernung Luftlinie / Quelle: OpenStreetMap

Objekt ist für eine Wohngemeinschaft geeignet
Kabel/SAT/TV: JA
Provision: Gemäß Erstauftraggeberprinzip bezahlt der Abgeber die Provision.


Alle Details anzeigen

KONTAKT






 

Lasse dich kostenlos vom Anbieter dieser Immobilie zurückrufen.







 


 
convival Immobilien im Auftrag von GEZI Immobilienvermittlung, Inh. Gregor Zimmel
Gregor Zimmel
Telefonnummer anzeigen Telefon Allgemein: +436702014614
 
Bitte dem Makler die FindMyHome.at - ID bekanntgeben: 5553638

Bewertungen dieses Anbieters
Netiquette
Freundlichkeit
100 %

BEWERTUNGEN DIESES ANBIETERS

 
Weiterempfehlung
WIRD SEHR GERNE

Freundlichkeit
BESONDERS
FREUNDLICH
Netiquette
FINDMYHOME
NETIQUETTE
Auch du kannst bewerten! 7 Tage nach deiner Anfrage erhältst du dafür von uns ein Bewertungsmail.
Alle Infos zu unseren Auszeichnungen und dem FINDMYHOME.AT Qualitätsprogramm findest du hier: Übersicht anzeigen


Du willst wissen, wie viel dein Umzug kosten wird?

Mach gleich den kostenlosen Preisvergleich und schau, welche seriösen Anbieter in deiner Region günstig deinen Umzug organisieren


ZUM UMZUGS-VERGLEICH
-->

MYHOME BLOG
SuchAgentin auf FindMyHome.at
Unterschiedlichen Rechtsthemen, köstliche Rezepte, neueste Design-Highlights, sowie aktuelle Technik-Tools für Ihr Eigenheim.


FINDMYHOME.AT SUCHAGENTIN
SuchAgentin auf FindMyHome.at
Hallo, soll ich dir ähnliche Immobilien kostenfrei per E-Mail schicken?


ÄHNLICHE IMMOBILIEN
Aehnliche Immobilie - Vorschaubild 1

Luxuriöse 3-Zimmer-Wohnung mit Dachterrasse im Servitenviert... - Objektnr. 5552386

122,10 m² - 3.0 Zimmer
3290 €
PLZ: 1090

Mehr anzeigen

Aehnliche Immobilie - Vorschaubild 2

Außergewöhnliche Terrassenwohnung Nähe AKH! - Objektnr. 5553481

137,00 m²
2990 €
PLZ: 1090

Mehr anzeigen

Aehnliche Immobilie - Vorschaubild 3

++NEU++ Bestlage im Servitenviertel, 4-Zimmer + zwei Balkone... - Objektnr. 5548994

139,42 m² - 4.0 Zimmer
3599 €
PLZ: 1090

Mehr anzeigen

Durch die Nutzung unserer Seite erklären Sie sich mit der Verwendung von Cookies zur Verbesserung Ihres Online-Erlebnisses einverstanden. Detaillierte Informationen zu diesem und weiteren Themen erhalten Sie in unserer Datenschutzerklärung.