MEIN ERGEBNIS ANPASSEN

Weitblick, Ruhe & zentrale Lage - Sonnige Altbauwohnung mit Balkon - Objektnr. 5553477

  • Garage
1040
Ort
70,00 m²
Fläche
3.0
Zimmer

ECKDATEN
FindMyHome.at // Externe Immobilien-ID5553477 // 24729
ImmobilienartWohnung - Eigentum
AnschriftKleine Neugasse
1040 Wien
Baujahr1900
Befeuerung
Stock4
Geschosse6
Fläche70,00 m²
Zimmer3.0
Bad1
WC1
Kaufpreis:€ 648.000,00
Ratenzahlung:Finanzierungsmöglichkeiten für diese Immobilie anzeigen
Provision: 3% des Kaufpreises zzgl. 20% USt.







BESCHREIBUNG

Weitblick, Ruhe & zentrale Lage - Sonnige Altbauwohnung mit Balkon

Diese sonnige Altbauwohnung mit Balkon und atemberaubendem Ausblick ist der perfekte Ort für alle, die ein urbanes Leben mit Lebensqualität und Ruhe kombinieren möchten.
Zwischen Freihausviertel und Margaretenplatz gelegen, findet man hier den perfekten Mix aus historischem Flair und modernem Komfort und das in einer der angesagtesten Lagen Wiens.

Bei der Liegenschaft handelt es sich um ein schönes Jahrhundertwendehaus, welches 2008 im Zuge des Dachgeschoß-Ausbaus generalsaniert wurde.
Ein barrierefreier Zugang, ein Personenlift und hauseigene KFZ-Stellplätze (Stapelparker) bieten höchsten Komfort und Funktionalität!

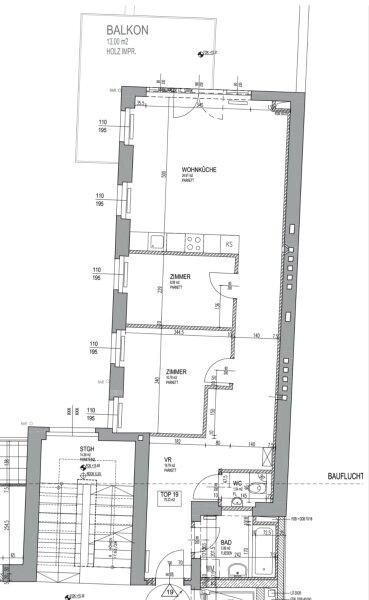
Die zum Verkauf stehende Altbauwohnung befindet sich im 4. Liftstock und verfügt über ca. 70 m2 Wohnfläche zzgl. eines ca. 13 m2 großen Balkons.
Diese außergewöhnliche Wohnung besticht durch einen traumhaften Aus-, bzw. Weitblick über die Dächer von Wien. Durch die westseitige Ausrichtung kann man die Sonne bis in die Abendstunden genießen.
Hervorzuheben ist sicherlich auch die absolute Hofruhelage, eine wahre Ruhe-Oase inmitten der Großstadt.

Neben einem unbeschreiblichen Wohngefühl bietet diese Immobilie eine gute Raumaufteilung, so sind alle Räume vom Vorraum aus zentral begehbar:

  • die ca. 25 m2 große Wohnküche, welche durchwegs hell und lichtdurchflutet ist.
  • das absolut ruhig gelegene Schlafzimmer mit ca. 11m2.
  • Ein weiteres Zimmer (ca. 8 m²), das als Kinder-, bzw. Gästezimmer, oder als Büro genutzt werden kann.
  • das Badezimmer mit Walk-In-Dusche 
  • die separate Toilette mit Handwaschbecken


Das absolute Highlight der Wohnung ist sicherlich der Balkon - genießen Sie auf diesem privaten Rückzugsort den herrlichen Ausblick und lassen Sie den Alltagsstress bei einem Glas Wein hinter sich.

Abgerundet wird dieses außergewöhnliche Angebot durch einen hauseigenen KFZ-Stellplatz (Stapelparker) eine echte Rarität in dieser begehrten Lage.


Das Beste von allem

Diese einzigartige Immobilie vereint alles, was man sich von einem perfekten Zuhause wünschen kann: Sie verbindet auf perfekte Weise historischen Charme mit modernem Wohnkomfort und schafft so ein einzigartiges Wohlfühlambiente.
Die Kombination aus hoher Lebensqualität, exzellenter Infrastruktur und der Nähe zu kulturellen sowie kulinarischen Highlights macht diese Wohnung zu einer echten Rarität auf dem Wiener Immobilienmarkt.

Überzeugen Sie sich selbst! 
Gerne übermitteln wir auf Anfrage weiterführende Unterlagen und freuen uns, Ihnen die Immobilie im Zuge einer Besichtigung präsentieren zu dürfen!

 

 

 

Dieses Objekt wird Ihnen unverbindlich und freibleibend zum Kauf angeboten. Oben angeführte Angaben basieren auf Informationen und Unterlagen der Eigentümerin und sind unsererseits ohne Gewähr. Als Vermittlungshonorar gelten die allgemeinen Geschäftsbedingungen und die Verordnung für Immobilienmakler des BM für Handel, Gewerbe und Industrie, BGBL. 297/1996. Für den Fall, dass es diesbezüglich zu einem entsprechenden Rechtsgeschäft kommt, verrechnen wir Ihnen eine Vermittlungsprovision von 3 Prozent der Kaufsumme zuzüglich der gesetzlichen Mehrwertsteuer. Wir möchten noch darauf hinweisen, dass wir in einem wirtschaftlichen Naheverhältnis zur Verkäuferin stehen.

Wir weisen darauf hin, dass zwischen dem Vermittler und dem zu vermittelnden Dritten ein familiäres oder wirtschaftliches Naheverhältnis besteht.

Der Vermittler ist als Doppelmakler tätig.


Infrastruktur / Entfernungen

Gesundheit
Arzt <250m
Apotheke <500m
Klinik <500m
Krankenhaus <500m

Kinder & Schulen
Schule <250m
Kindergarten <250m
Universität <250m
Höhere Schule <500m

Nahversorgung
Supermarkt <250m
Bäckerei <500m
Einkaufszentrum <500m

Sonstige
Geldautomat <500m
Bank <500m
Post <500m
Polizei <500m

Verkehr
Bus <250m
U-Bahn <750m
Straßenbahn <500m
Bahnhof <750m
Autobahnanschluss <3.250m

Angaben Entfernung Luftlinie / Quelle: OpenStreetMap

Objekt ist für eine Wohngemeinschaft geeignet
Kabel/SAT/TV: JA
Rollstuhlgerecht: JA
Barrierefrei: JA
Provision: 3% des Kaufpreises zzgl. 20% USt.


Alle Details anzeigen

KONTAKT






 

Lasse dich kostenlos vom Anbieter dieser Immobilie zurückrufen.







 


 
WINEGG Makler GmbH
Christoph Kral
Telefonnummer anzeigen Telefon Allgemein: +4313157280
Handy Bearbeiter: +436766461289
 
Bitte dem Makler die FindMyHome.at - ID bekanntgeben: 5553477

Bewertungen dieses Anbieters
Qualitätsmakler
Qualitätsmakler:
2015, 2017, 2025,
Netiquette
Freundlichkeit
82 %

BEWERTUNGEN DIESES ANBIETERS

 
Qualit�tsmakler
Qualitätsmakler
2015, 2017, 2025
Weiterempfehlung
WIRD GERNE

Freundlichkeit
BESONDERS
FREUNDLICH
Netiquette
FINDMYHOME
NETIQUETTE
Auch du kannst bewerten! 7 Tage nach deiner Anfrage erhältst du dafür von uns ein Bewertungsmail.
Alle Infos zu unseren Auszeichnungen und dem FINDMYHOME.AT Qualitätsprogramm findest du hier: Übersicht anzeigen

FINANZIERUNG
?>

Du willst wissen, wie viel dein Umzug kosten wird?

Mach gleich den kostenlosen Preisvergleich und schau, welche seriösen Anbieter in deiner Region günstig deinen Umzug organisieren


ZUM UMZUGS-VERGLEICH
-->

MYHOME BLOG
SuchAgentin auf FindMyHome.at
Unterschiedlichen Rechtsthemen, köstliche Rezepte, neueste Design-Highlights, sowie aktuelle Technik-Tools für Ihr Eigenheim.


FINDMYHOME.AT SUCHAGENTIN
SuchAgentin auf FindMyHome.at
Hallo, soll ich dir ähnliche Immobilien kostenfrei per E-Mail schicken?


ÄHNLICHE IMMOBILIEN
Aehnliche Immobilie - Vorschaubild 1

Wohnen beim Schloss Belvedere: Altbauwohnung mit südwestlich... - Objektnr. 5551268

67,60 m² - 2.0 Zimmer
635000 €
PLZ: 1040

Mehr anzeigen

Aehnliche Immobilie - Vorschaubild 2

Atemberaubende Gartenwohnung in bester Lage - Objektnr. 5532481

79,63 m² - 3.0 Zimmer
690000 €
PLZ: 1040

Mehr anzeigen

Aehnliche Immobilie - Vorschaubild 3

Moderne 3-Zimmer-Wohnung mit Balkon im Botschaftsviertel - I... - Objektnr. 5531906

75,68 m² - 3.0 Zimmer
695000 €
PLZ: 1040

Mehr anzeigen

Durch die Nutzung unserer Seite erklären Sie sich mit der Verwendung von Cookies zur Verbesserung Ihres Online-Erlebnisses einverstanden. Detaillierte Informationen zu diesem und weiteren Themen erhalten Sie in unserer Datenschutzerklärung.