MEIN ERGEBNIS ANPASSEN

Schöne 2-Zimmer Wohnung, Nähe Westbahnhof - Objektnr. 5552423

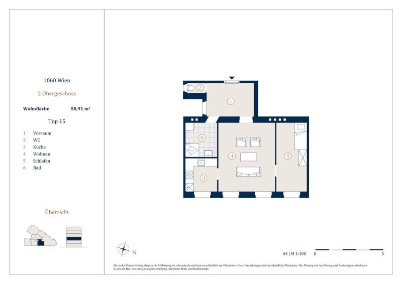
1060
Ort
50,91 m²
Fläche
2.0
Zimmer

ECKDATEN
FindMyHome.at // Externe Immobilien-ID5552423 // 4962
ImmobilienartWohnung - Eigentum
Anschrift1060 Wien,Mariahilf
Baujahr1897
Stock2
Fläche50,91 m²
Zimmer2.0
Bad1
WC1
Kaufpreis:€ 324.000,00
Ratenzahlung:Finanzierungsmöglichkeiten für diese Immobilie anzeigen
Provision: 3% des Kaufpreises zzgl. 20% USt.







BESCHREIBUNG

Schöne 2-Zimmer Wohnung, Nähe Westbahnhof

Im Falle der Notwendigkeit einer Fremdfinanzierung Ihrer Wunschimmobilie ermittelt unser Wohnbau-Finanzierungsexperte gerne die optimale Finanzierungslösung und findet das passende Zins- und Konditionsangebot für Sie. Er vergleicht die aktuellen Angebote aller relevanten Banken und Bausparkassen. Der Angebotsvergleich kann aus einem Portfolio von über 120 Banken erfolgen. Das Erstgespräch ist für Sie kostenfrei und unverbindlich, gerne auch bei Ihnen vor Ort. So sparen Sie Ihre wertvolle Zeit und erhalten eine professionelle und unabhängige Finanzierungslösung vom Spezialisten. Sprechen Sie uns wegen eines Termins gerne an!

 

Zum Verkauf gelangt eine schöne 2-Zimmer Wohnung im 6. Wiener Gemeindebezirk Neubau.

Die Wohnung befindet sich im 2. Stock eines schönen Stilaltbaus aus dem Jahr 1897 und gliedert sich in einen Vorraum, eine Küche, ein Wohnzimmer, ein Badezimmer und ein separates WC. Die Wohnung ist möbliert.

Sie betreten die Wohnung und befinden sich im Vorraum, gerade durch gelangen Sie in den geräumigen Wohnraum, linkerhand befindet sich das Schlafzimmer. Die Küche befindet sich rechts und ist komplett ausgestattet. Das Bad ist mit einer Dusche, einem Handwaschbecken, einem Handtuchtrockner und einem Waschmaschineanschluss ausgestattet. Das separate WC ist ebenfalls vom Vorraum erreichbar. Die Wohnräume sind mit schönem Parkett ausgestattet und die Nassräume sind verfliest.

Das Gebäude erstreckt sich über vier Regelgeschoße sowie ein ausgebautes Dachgeschoß und bietet eine vielfältige Auswahl an Wohnungen. Einige Einheiten befinden sich in gepflegtem Gebrauchtzustand, während andere hochwertig saniert wurden.

Die Lage überzeugt durch ihre ausgezeichnete Infrastruktur. In direkter Umgebung befinden sich zahlreiche Einkaufsmöglichkeiten, Cafés, Restaurants und kulturelle Einrichtungen allen voran die Mariahilfer Straße als bedeutendste Einkaufsmeile Wiens. Die öffentliche Verkehrsanbindung ist hervorragend, mit U-Bahn-Stationen der Linie U3 in Gehweite sowie mehreren Straßenbahn- und Buslinien in der Nähe. Auch der Westbahnhof ist schnell erreichbar und sorgt für optimale nationale und internationale Anbindung.

Zudem bietet das Umfeld ein umfassendes Angebot an Nahversorgung, medizinischer Betreuung sowie Bildungs- und Betreuungseinrichtungen für Kinder. Die Nähe zu beliebten Erholungs- und Freizeitangeboten wie dem MuseumsQuartier oder dem Burggarten rundet die hohe Lebensqualität dieser Adresse ab.

Die Vertragserrichtung und Treuhandabwicklung ist gebunden an die Kanzlei Mag. Schreiber A-1010 Wien, Schottenring 16. Die Kosten betragen 1,5 % des Kaufpreises zzgl. 20 % USt. sowie Barauslagen und Beglaubigung. Bei Fremdfinanzierung erhöht sich das Honorar auf 1,8 % vom Kaufpreis zzgl. 20 % USt., Barauslagen und Beglaubigung.

Für Besichtigungsmöglichkeiten und nähere Informationen stehen wir Ihnen gerne zur Verfügung.

Frau Marie-Louise Eisenburger
national - Tel: 0676 605 9800
international - Tel.: +43 676 605 9800
e-mail:

Wir weisen darauf hin, dass zwischen dem Vermittler und dem zu vermittelnden Dritten ein familiäres oder wirtschaftliches Naheverhältnis besteht.

Der Vermittler ist als Doppelmakler tätig.

 

 


Infrastruktur / Entfernungen

Gesundheit
Arzt <500m
Apotheke <500m
Klinik <500m
Krankenhaus <500m

Kinder & Schulen
Schule <500m
Kindergarten <500m
Universität <1.000m
Höhere Schule <1.500m

Nahversorgung
Supermarkt <500m
Bäckerei <500m
Einkaufszentrum <1.000m

Sonstige
Geldautomat <500m
Bank <500m
Post <500m
Polizei <500m

Verkehr
Bus <500m
U-Bahn <500m
Straßenbahn <500m
Bahnhof <500m
Autobahnanschluss <4.500m

Angaben Entfernung Luftlinie / Quelle: OpenStreetMap

Provision: 3% des Kaufpreises zzgl. 20% USt.


Alle Details anzeigen

KONTAKT






 

Lasse dich kostenlos vom Anbieter dieser Immobilie zurückrufen.







 


 
IM Lifestyle Properties GmbH
Marie-Louise Eisenburger
Telefonnummer anzeigen Telefon Allgemein: +4315121484
Handy Bearbeiter: +436766059800
 
Bitte dem Makler die FindMyHome.at - ID bekanntgeben: 5552423

Bewertungen dieses Anbieters
Qualitätsmakler
Qualitätsmakler:
2019, 2023,
Netiquette
Freundlichkeit

BEWERTUNGEN DIESES ANBIETERS

 
Qualit�tsmakler
Qualitätsmakler
2019, 22/23
Freundlichkeit
BESONDERS
FREUNDLICH
Netiquette
FINDMYHOME
NETIQUETTE
Auch du kannst bewerten! 7 Tage nach deiner Anfrage erhältst du dafür von uns ein Bewertungsmail.
Alle Infos zu unseren Auszeichnungen und dem FINDMYHOME.AT Qualitätsprogramm findest du hier: Übersicht anzeigen

FINANZIERUNG
?>

Du willst wissen, wie viel dein Umzug kosten wird?

Mach gleich den kostenlosen Preisvergleich und schau, welche seriösen Anbieter in deiner Region günstig deinen Umzug organisieren


ZUM UMZUGS-VERGLEICH
-->

MYHOME BLOG
SuchAgentin auf FindMyHome.at
Unterschiedlichen Rechtsthemen, köstliche Rezepte, neueste Design-Highlights, sowie aktuelle Technik-Tools für Ihr Eigenheim.


FINDMYHOME.AT SUCHAGENTIN
SuchAgentin auf FindMyHome.at
Hallo, soll ich dir ähnliche Immobilien kostenfrei per E-Mail schicken?


ÄHNLICHE IMMOBILIEN
Aehnliche Immobilie - Vorschaubild 1

Sanierte Eigentumswohnung mit Bewilligung zur Kurzzeitvermie... - Objektnr. 5457634

44,77 m² - 2 Zimmer
369000 €
PLZ: 1060

Mehr anzeigen

Aehnliche Immobilie - Vorschaubild 2

"2 Roomflat, newly renovated" - Objektnr. 5542768


41,00 m² - 2.0 Zimmer
273000 €
PLZ: 1060

Mehr anzeigen

Aehnliche Immobilie - Vorschaubild 3

Altbau-Charme und Kulturgenuss - Perfekt für Theaterliebhabe... - Objektnr. 5544021

51,00 m² - 2.0 Zimmer
285000 €
PLZ: 1060

Mehr anzeigen

Durch die Nutzung unserer Seite erklären Sie sich mit der Verwendung von Cookies zur Verbesserung Ihres Online-Erlebnisses einverstanden. Detaillierte Informationen zu diesem und weiteren Themen erhalten Sie in unserer Datenschutzerklärung.