MEIN ERGEBNIS ANPASSEN

Investitionsmöglichkeit! Zinshaus mit Wohn & Geschäftsflächen - Zentrale Lage in Horn - Objektnr. 5552416

3580
Ort
1.007,01 m²
Fläche

ECKDATEN
FindMyHome.at // Externe Immobilien-ID5552416 // 4834
ImmobilienartZinshaus - Eigentum
Anschrift3580 Horn
Befeuerung
Geschosse3
Grundfläche555,00 m²
Terrassen2
Kaufpreis:€ 430.000,00
Ratenzahlung:Finanzierungsmöglichkeiten für diese Immobilie anzeigen
Provision: 3% des Kaufpreises zzgl. 20% USt.







BESCHREIBUNG

Investitionsmöglichkeit! Zinshaus mit Wohn & Geschäftsflächen - Zentrale Lage in Horn

Im Falle der Notwendigkeit einer Fremdfinanzierung Ihrer Wunschimmobilie ermittelt unser Wohnbau-Finanzierungsexperte gerne die optimale Finanzierungslösung und findet das passende Zins- und Konditionsangebot für Sie. Er vergleicht die aktuellen Angebote aller relevanten Banken und Bausparkassen. Der Angebotsvergleich kann aus einem Portfolio von über 120 Banken erfolgen. Das Erstgespräch ist für Sie kostenfrei und unverbindlich, gerne auch bei Ihnen vor Ort. So sparen Sie Ihre wertvolle Zeit und erhalten eine professionelle und unabhängige Finanzierungslösung vom Spezialisten. Sprechen Sie uns wegen eines Termins gerne an!

 

Zum Verkauf gelangt ein attraktives Zinshaus im Herzen des Waldviertels, in Horn.

Die Liegenschaft wurde vor rund 10 Jahren umfassend saniert. Im Zuge der Arbeiten wurden unter anderem die Etagenheizung, die Elektroleitungen sowie das Dach erneuert. Beheizt wird das Gebäude über eine moderne Gaszentralheizung. Das Objekt ist sofort übernahmebereit und eignet sich hervorragend als nachhaltige Kapitalanlage.

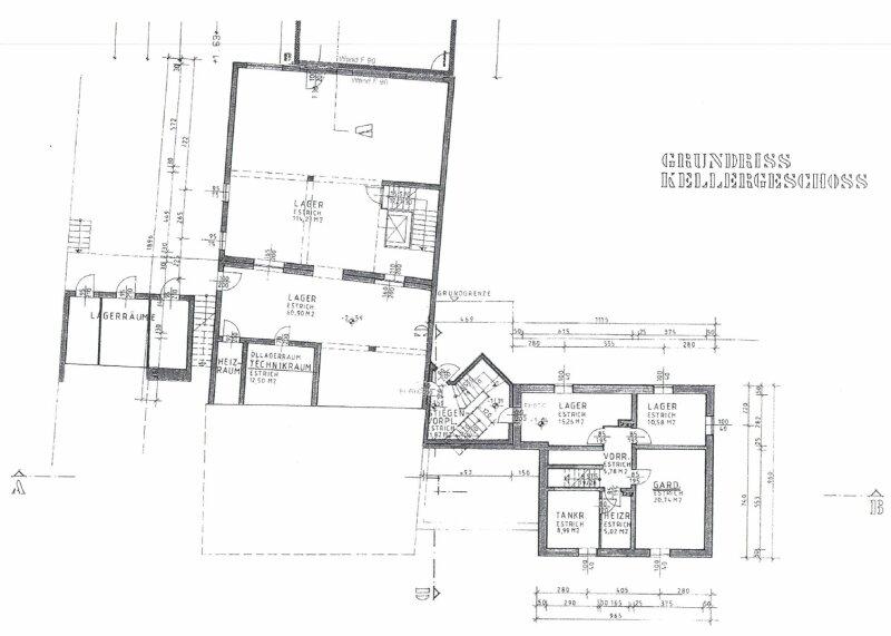
Die Immobilie gliedert sich in mehrere Nutzungseinheiten:

Im Erdgeschoss befinden sich zwei Geschäftslokale:
Ein Lokal mit einer Fläche von ca.
98,53m², derzeit leerstehend
Ein weiteres Geschäftslokal mit ca. 276,61 m², aktuell unbefristet vermietet

Im Obergeschoss stehen zwei Wohnungen mit jeweils eigenen Terrassen zur Verfügung:
Eine ca. 118,49 m² große Wohnung, befristet vermietet bis 31.05.2029
Eine weitere Wohnung mit ca. 96,20 m², derzeit leerstehend

Im Dachgeschoss befindet sich eine zusätzliche Wohneinheit mit ca. 62,29 m², ebenfalls leerstehend.

Das Raumangebot wird durch zwei großzügige Kellereinheiten mit einer Gesamtnutzfläche von ca. 327,73 m² ergänzt, die sich hervorragend als Lagerflächen eignen und derzeit teilweise vom Eigentümer als Lager genutzt werden.

Durch die Kombination aus bereits vermieteten und sofort verfügbaren Einheiten bietet das Objekt ein besonders attraktives und sicheres Ertragspotenzial für Investoren. Bei Vollvermietung ist eine Rendite von ca. 6% realistisch erzielbar. Die Rendite wurde auf Basis der aktuell vermieteten Objekte zu einem reduzierten Mietpreis berechnet (Vereinbarung zwischen Eigentümer und Mietern aufgrund von Investitionen der Mieter), während für die nicht vermieteten Flächen ein Quadratmeterpreis von 5 €/m² angenommen wurde. Die Kellerfläche von ca. 327,73 m² wurde in der Berechnung nicht miteinberechnet. Die Bauweise, der gepflegte Zustand und die vielseitige Nutzung machen diese Liegenschaft zu einer ausgezeichneten Investitionsmöglichkeit.

Die Lage im Zentrum von Horn bietet hohe Lebensqualität und eine ausgezeichnete Infrastruktur. Der Hauptplatz ist nur etwa 500 Meter entfernt, der Bahnhof rund 200 Meter bequem zu Fuß erreichbar. In unmittelbarer Nähe befinden sich das Höbarthmuseum, das Kunsthaus Horn, Schulen, Supermärkte, Restaurants und weitere Einrichtungen des täglichen Bedarfs. Die Verkehrsanbindung ist hervorragend: Über die Bundesstraßen B2 und B4 bestehen direkte Verbindungen nach Krems und St. Pölten. Zusätzlich sorgen mehrere Buslinien unter anderem die Linie 175 für eine direkte Verbindung nach Wien Praterstern und in die umliegende Region. Eine gute Zufahrt sowie vorhandene Parkmöglichkeiten runden das Gesamtbild ab.

Gerne lassen wir Ihnen bei ernsthaftem Interesse vor Kaufanbotlegung weitere vertrauliche Unterlagen zu dieser Liegenschaft zukommen, welche nicht veröffentlicht werden dürfen.

Vereinbaren Sie noch heute einen Besichtigungstermin und überzeugen Sie sich selbst vom Potenzial dieses vielseitigen Zinshauses mit guter Struktur, guter Lage und attraktiver Zukunftsperspektive.

Itana Pavicevic
national - Tel: 0667 77 77 858
international - Tel: +43 667 77 77 858

e-mail:

Wir weisen darauf hin, dass zwischen dem Vermittler und dem zu vermittelnden Dritten ein familiäres oder wirtschaftliches Naheverhältnis besteht.

Der Vermittler ist als Doppelmakler tätig.

 

 


Infrastruktur / Entfernungen

Gesundheit
Arzt <500m
Klinik <500m
Apotheke <1.000m
Krankenhaus <500m

Kinder & Schulen
Schule <1.000m
Kindergarten <1.000m
Höhere Schule <3.500m

Nahversorgung
Supermarkt <500m
Bäckerei <500m
Einkaufszentrum <2.500m

Sonstige
Bank <500m
Geldautomat <500m
Post <1.000m
Polizei <1.500m

Verkehr
Bus <500m
Bahnhof <1.000m

Angaben Entfernung Luftlinie / Quelle: OpenStreetMap

Provision: 3% des Kaufpreises zzgl. 20% USt.


Alle Details anzeigen

KONTAKT






 

Lasse dich kostenlos vom Anbieter dieser Immobilie zurückrufen.







 


 
IM Lifestyle Properties GmbH
Itana Pavicevic
Telefonnummer anzeigen Telefon Allgemein: +4315121484
Handy Bearbeiter: +436677777858
 
Bitte dem Makler die FindMyHome.at - ID bekanntgeben: 5552416

Bewertungen dieses Anbieters
Qualitätsmakler
Qualitätsmakler:
2019, 2023,
Netiquette
Freundlichkeit

BEWERTUNGEN DIESES ANBIETERS

 
Qualit�tsmakler
Qualitätsmakler
2019, 22/23
Freundlichkeit
BESONDERS
FREUNDLICH
Netiquette
FINDMYHOME
NETIQUETTE
Auch du kannst bewerten! 7 Tage nach deiner Anfrage erhältst du dafür von uns ein Bewertungsmail.
Alle Infos zu unseren Auszeichnungen und dem FINDMYHOME.AT Qualitätsprogramm findest du hier: Übersicht anzeigen

FINANZIERUNG
?>

Du willst wissen, wie viel dein Umzug kosten wird?

Mach gleich den kostenlosen Preisvergleich und schau, welche seriösen Anbieter in deiner Region günstig deinen Umzug organisieren


ZUM UMZUGS-VERGLEICH
-->

MYHOME BLOG
SuchAgentin auf FindMyHome.at
Unterschiedlichen Rechtsthemen, köstliche Rezepte, neueste Design-Highlights, sowie aktuelle Technik-Tools für Ihr Eigenheim.


FINDMYHOME.AT SUCHAGENTIN
SuchAgentin auf FindMyHome.at
Hallo, soll ich dir ähnliche Immobilien kostenfrei per E-Mail schicken?


Durch die Nutzung unserer Seite erklären Sie sich mit der Verwendung von Cookies zur Verbesserung Ihres Online-Erlebnisses einverstanden. Detaillierte Informationen zu diesem und weiteren Themen erhalten Sie in unserer Datenschutzerklärung.