MEIN ERGEBNIS ANPASSEN

*NEUER PREIS* Terrassenwohnung mit Hauscharakter // Gartenflächen & Pool vor der Tür - Objektnr. 5552067

  • Plan OG
  • Plan EG
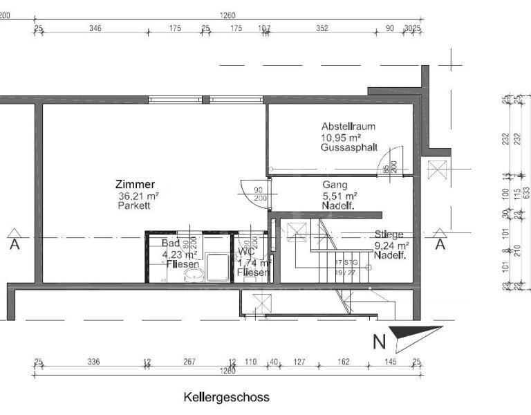
  • Plan KG
1190
Ort
216,00 m²
Fläche
5.0
Zimmer

ECKDATEN
FindMyHome.at // Externe Immobilien-ID5552067 // 1096/20001
ImmobilienartWohnung - Eigentum
Anschrift1190 Wien
Baujahr1970
Befeuerung
Geschosse3
Zimmer5.0
Bad3
WC3
Kaufpreis:€ 1.190.000,00
Ratenzahlung:Finanzierungsmöglichkeiten für diese Immobilie anzeigen
Provision: 3% des Kaufpreises zzgl. 20% USt.







BESCHREIBUNG

*NEUER PREIS* Terrassenwohnung mit Hauscharakter // Gartenflächen & Pool vor der Tür

Umfangreich sanierte Neubauwohnung mit Terrasse, Klimaanlage, Garage, Garten- und Poolbenützung
zwischen Grinzinger Straße und Schreiberweg

RAUMAUFTEILUNG (Raumhöhe 2,80 Meter)
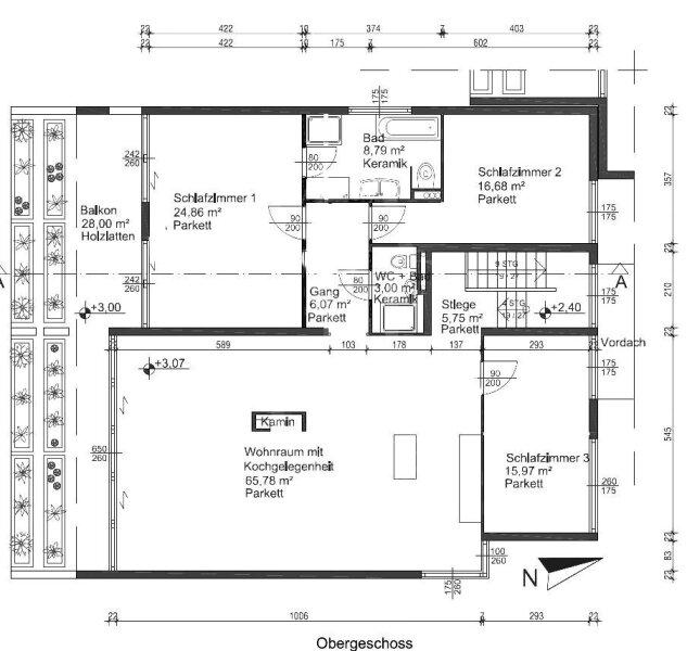
ERDGESCHOSS: Aufgang in die Wohn-und Schlafebene mit eigenem Vorraum, großzügiges Wohn-Esszimmer (65 m²) mit offener Küche und Ausgang auf die Terrasse, offener Kamin, Hauptschlafzimmer mit eigenem Tageslichtbad, zwei weitere Schlafzimmer, zweites
Badezimmer mit Dusche und Toilette,
UNTERGESCHOSS: ein großes Schlaf-, Gäste-oder Arbeitszimmer mit Küchenanschlüssen (36 m²) perfekt als Einliegerwohnung, drittes Badezimmer und eine separate Toilette, großer Technikraum, Abstellraum (perfekt für Wein)

AUSSTATTUNG
Klimaanlage, Parkettböden, Alarmanlage, Fußbodenheizung/Zentralheizung mit Gas, komplett ausgestattete Küche, elektrische Jalousien, Wärmedämm-Fassade, offener Kamin, Fliesen in den Bädern, Gartenmitbenützung, Outdoorpool

+Garagenstellplatz € 30.000,00
+ A-Konto für Heizung derzeit € 241,30 (inkl. 20% Ust.) monatlich
+ A-Konto für Warmwasser derzeit € 73,73 (inkl. 10% Ust.) monatlich

**----------**

Extensively renovated new apartment with terrace, air conditioning, garage, garden and pool
between Grinzinger Straße and Schreiberweg

LAYOUT (room height 2.80 meters)
GROUND FLOOR: Entrance to the living and sleeping area with its own foyer, spacious living-dining room (65 m²) with open kitchen and access to the terrace, open fireplace, master bedroom with its own daylight bathroom, two further bedrooms, second bathroom with shower and toilet,


LOWER FLOOR: a large bedroom, guest or study room with kitchen connections (36 m²) perfect as a separate apartment, third bathroom and a separate toilet, large technical room, storage room (perfect for wine)

FEATURES AND FITTINGS
Air conditioning, parquet floors, alarm system, underfloor heating/central heating with gas, fully equipped kitchen, electric blinds, thermal insulation facade, open fireplace, tiles in the bathrooms, garden usage, outdoor pool

LOCATION
The house is located in a complex from 1972, which has been extensively renovated in 2019 and 2023.
Within walking distance in Grinzing: excellent local supply, restaurants, and public transport in Grinzing (tram 38, bus 38A)
A garage parking space can be purchased in the complex for € 30,000.

Noch nichts gefunden Wir informieren Sie über geeignete Immobilienangebote noch vor allen anderen.
Legen Sie jetzt Ihren individuellen Suchagenten unter folgendem Link an. Wir schicken Ihnen passende Immobilien exklusiv vorab zu.
Suchagent anlegen - https://realkanzlei-hildegard-mayerl-eva-krulis.service.immo/registrieren/de

Wir weisen darauf hin, dass zwischen dem Vermittler und dem zu vermittelnden Dritten ein familiäres oder wirtschaftliches Naheverhältnis besteht.

Der Vermittler ist als Doppelmakler tätig.


Infrastruktur / Entfernungen

Gesundheit
Arzt <500m
Apotheke <500m
Klinik <500m
Krankenhaus <1.500m

Kinder & Schulen
Schule <1.000m
Kindergarten <1.000m
Universität <1.000m
Höhere Schule <1.000m

Nahversorgung
Supermarkt <1.000m
Bäckerei <1.000m
Einkaufszentrum <1.500m

Sonstige
Geldautomat <1.500m
Bank <1.000m
Post <1.000m
Polizei <1.000m

Verkehr
Bus <500m
U-Bahn <1.500m
Straßenbahn <1.000m
Bahnhof <1.500m
Autobahnanschluss <1.500m

Angaben Entfernung Luftlinie / Quelle: OpenStreetMap

Swimmingpool: JA
Provision: 3% des Kaufpreises zzgl. 20% USt.


Alle Details anzeigen

KONTAKT






 

Lasse dich kostenlos vom Anbieter dieser Immobilie zurückrufen.







 


 
MAYERL IMMOBILIEN
Daniel Grüner, MSc
Telefonnummer anzeigen Telefon Allgemein: +431479411714
 
Bitte dem Makler die FindMyHome.at - ID bekanntgeben: 5552067

Bewertungen dieses Anbieters
Netiquette

BEWERTUNGEN DIESES ANBIETERS

 
Netiquette
FINDMYHOME.AT
NETIQUETTE
Auch du kannst bewerten! 7 Tage nach deiner Anfrage erhältst du dafür von uns ein Bewertungsmail.
Alle Infos zu unseren Auszeichnungen und dem FINDMYHOME.AT Qualitätsprogramm findest du hier: Übersicht anzeigen

FINANZIERUNG
?>

Du willst wissen, wie viel dein Umzug kosten wird?

Mach gleich den kostenlosen Preisvergleich und schau, welche seriösen Anbieter in deiner Region günstig deinen Umzug organisieren


ZUM UMZUGS-VERGLEICH
-->

MYHOME BLOG
SuchAgentin auf FindMyHome.at
Unterschiedlichen Rechtsthemen, köstliche Rezepte, neueste Design-Highlights, sowie aktuelle Technik-Tools für Ihr Eigenheim.


FINDMYHOME.AT SUCHAGENTIN
SuchAgentin auf FindMyHome.at
Hallo, soll ich dir ähnliche Immobilien kostenfrei per E-Mail schicken?


ÄHNLICHE IMMOBILIEN
Aehnliche Immobilie - Vorschaubild 1

Traumhafte Terrassenwohnung in Döbling I Erstbezug... - Objektnr. 5377409

68,04 m² - 2.0 Zimmer
988500 €
PLZ: 1190

Mehr anzeigen

Aehnliche Immobilie - Vorschaubild 2

Exklusiver Wohnkomfort in Döbling: Die perfekte Symbiose aus... - Objektnr. 5524917

110,45 m² - 4.0 Zimmer
993400 €
PLZ: 1190

Mehr anzeigen

Aehnliche Immobilie - Vorschaubild 3

Breathe. Relax. Live - Penthouse mit 182m2 Terrasse - Ganz o... - Objektnr. 5527450

105,75 m² - 3 Zimmer
1050000 €
PLZ: 1190

Mehr anzeigen

Durch die Nutzung unserer Seite erklären Sie sich mit der Verwendung von Cookies zur Verbesserung Ihres Online-Erlebnisses einverstanden. Detaillierte Informationen zu diesem und weiteren Themen erhalten Sie in unserer Datenschutzerklärung.