MEIN ERGEBNIS ANPASSEN

Mieten mitten in Ebreichsdorf - Objektnr. 5551862

2483
Ort
€ 1.352,73
Gesamtkosten
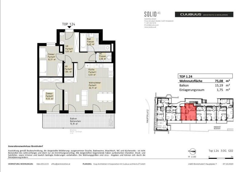
75,08 m²
Fläche
3.0
Zimmer

ECKDATEN
FindMyHome.at // Externe Immobilien-ID5551862 // 201801270208-2
ImmobilienartWohnung - Miete
Anschrift2483 Ebreichsdorf
Stock3
Mietdauer5
Fläche75,08 m²
Zimmer3.0
Bad1
WC1
 Abstellraum
Brutto-Miete:€ 1.352,73
Betriebskosten (inkl. MwSt):€ 164,73
Mehrwertsteuer:€ 122,98
Monatliche Gesamtkosten:€ 1.352,73
Provision: Gemäß Erstauftraggeberprinzip bezahlt der Abgeber die Provision.




BESCHREIBUNG

Mieten mitten in Ebreichsdorf

Allgemeine Informationen:

Direkt im Zentrum von Ebreichsdorf entstand bis 2022 das Mehrgenerationen Wohnhaus Solid #1.

Das von Cuubuus Architects & Developers entwickelte Projekt bietet optimale Wohnlösungen für unterschiedliche Lebenslagen, Bedürfnisse und verbindet zu dem, Generationen.

Das Wohnhaus umfasst insgesamt 52 Wohnungen. Wobei 28 Einheiten als klassische Mietwohnungen vermietet sind und weitere 24 Wohnungen mit einem zusätzlichen Betreuungsangebot für Best Ager in Kooperation mit Silver Living.

 

Lage:

  • Ideale Anbindung an das öffentliche Verkehrsnetz
  • Bushaltestelle der Busse 4 und 200 direkt gegenüber
  • Ebreichsdorfer Bahnhof ist ebenfalls fußläufig gut erreichbar
  • Diverse Geschäfte mit Nahversorgern und Restaurants in unmittelbarer Nähe
  • Der Golfplatz Ebreichsdorf sowie das Schloss Ebreichsdorf laden zur Erholung ein

 

Informationen zur Wohnanlage:

  • 52 hochwertige Wohnungen mit ansprechendem Flair und zeitgemäßem Komfort, nach aktuellstem technischen und ökologischen Standard (Niedrigenergiewohnhausanlage)
  • 2-4 Zimmer Lösungen; 50-111 m2
  • barrierefrei
  • jede Wohnung verfügt über einen eigenen Garten, Balkon oder Terrasse
  • Besonderes Highlight: ein Gemeinschaftsgarten am Dach bietet jedem Bewohner die Möglichkeit zum eigenen nachhaltigen Lebensmittelanbau
  • Eine Photovoltaikanlage am Dach speist mitunter die Wärmeversorgung und Stromerzeugung des Hauses
  • hauseigene Tiefgarage ein Stellplatz kann hier auf Wunsch zusätzlich zur Wohnung angemietet werden.
    • Die Kosten hierfür belaufen sich auf Netto EUR 55,00 + BK EUR 17 + 20% Ust = EUR 86,40 Brutto Gesamt / Monat

 

Ausstattung:

Bei der Ausstattung handelt es sich um moderne und solide Materialien:

  • Wohnbereich und Schlafzimmer sind mit einem Eiche Fertigparkettboden mit Trittschalldämmung ausgestattet
  • Der Vorraum und der Sanitärbereich (Bad mit WC) verfügen über einen hellen Fliesenbelag
  • Kunststofffenster mit 3fach Isolierverglasung; Fenster und Fenstertüren sind zudem mit elektrisch bedienbaren Rollläden ausgestattet
  • Röhrenspanntüren Innen
  • Wohnungseingangstüren mit Türspion
  • Küche mit Kühlschrank mit Gefrierkombination, Geschirrspüler, Herd mit Cerankochfeld
  • ansonsten unmöbliert

 

Vermietungskonditionen:

  • Beziehbar am 01.10.2025
  • Befristeter Mietvertrag auf 5 Jahre
  • Provisionsfrei für den Mieter
  • 3 BMM Kaution

 

Gerne stehen wir Ihnen für weitere Auskünfte und Vormerkungen zur Verfügung.

 

 

Wir weisen darauf hin, dass zwischen dem Vermittler und dem zu vermittelnden Dritten ein wirtschaftliches Naheverhältnis mit gesellschaftlicher Verflechtung besteht.

Der Immobilienmakler erklärt, dass er entgegen dem in der Immobilienwirtschaft üblichen Geschäftsgebrauch des Doppelmaklers einseitig nur für den Vermieter tätig ist.


Infrastruktur / Entfernungen

Gesundheit
Arzt <500m
Apotheke <500m
Klinik <10.000m

Kinder & Schulen
Kindergarten <500m
Schule <500m

Nahversorgung
Supermarkt <500m
Bäckerei <500m

Sonstige
Bank <500m
Geldautomat <500m
Post <500m
Polizei <1.000m

Verkehr
Bus <500m
Autobahnanschluss <3.000m
Bahnhof <1.000m

Angaben Entfernung Luftlinie / Quelle: OpenStreetMap

Klimaanlage: JA
Kabel/SAT/TV: JA
Provision: Gemäß Erstauftraggeberprinzip bezahlt der Abgeber die Provision.


Alle Details anzeigen

KONTAKT






 

Lasse dich kostenlos vom Anbieter dieser Immobilie zurückrufen.







 


 
P.Kornherr Immobilien GmbH
Patrizia Hunter-Kornherr
Telefonnummer anzeigen Handy Bearbeiter: +436648512133
 
Bitte dem Makler die FindMyHome.at - ID bekanntgeben: 5551862

Bewertungen dieses Anbieters
Netiquette
Freundlichkeit

BEWERTUNGEN DIESES ANBIETERS

 
Freundlichkeit
BESONDERS
FREUNDLICH
Netiquette
FINDMYHOME
NETIQUETTE
Auch du kannst bewerten! 7 Tage nach deiner Anfrage erhältst du dafür von uns ein Bewertungsmail.
Alle Infos zu unseren Auszeichnungen und dem FINDMYHOME.AT Qualitätsprogramm findest du hier: Übersicht anzeigen


Du willst wissen, wie viel dein Umzug kosten wird?

Mach gleich den kostenlosen Preisvergleich und schau, welche seriösen Anbieter in deiner Region günstig deinen Umzug organisieren


ZUM UMZUGS-VERGLEICH
-->

MYHOME BLOG
SuchAgentin auf FindMyHome.at
Unterschiedlichen Rechtsthemen, köstliche Rezepte, neueste Design-Highlights, sowie aktuelle Technik-Tools für Ihr Eigenheim.


FINDMYHOME.AT SUCHAGENTIN
SuchAgentin auf FindMyHome.at
Hallo, soll ich dir ähnliche Immobilien kostenfrei per E-Mail schicken?


ÄHNLICHE IMMOBILIEN
Aehnliche Immobilie - Vorschaubild 1

MODERN, RUHIG UND ZENTRAL ? MIT WOHLFÜHLFAKTOR AB DEM ERSTEN... - Objektnr. 5542552

79,00 m² - 3 Zimmer
1133 €
PLZ: 2483

Mehr anzeigen

Durch die Nutzung unserer Seite erklären Sie sich mit der Verwendung von Cookies zur Verbesserung Ihres Online-Erlebnisses einverstanden. Detaillierte Informationen zu diesem und weiteren Themen erhalten Sie in unserer Datenschutzerklärung.