MEIN ERGEBNIS ANPASSEN

Zukunftsorientiertes Wohnen in Liesing: Nachhaltig, modern, komfortabel - Objektnr. 5551828

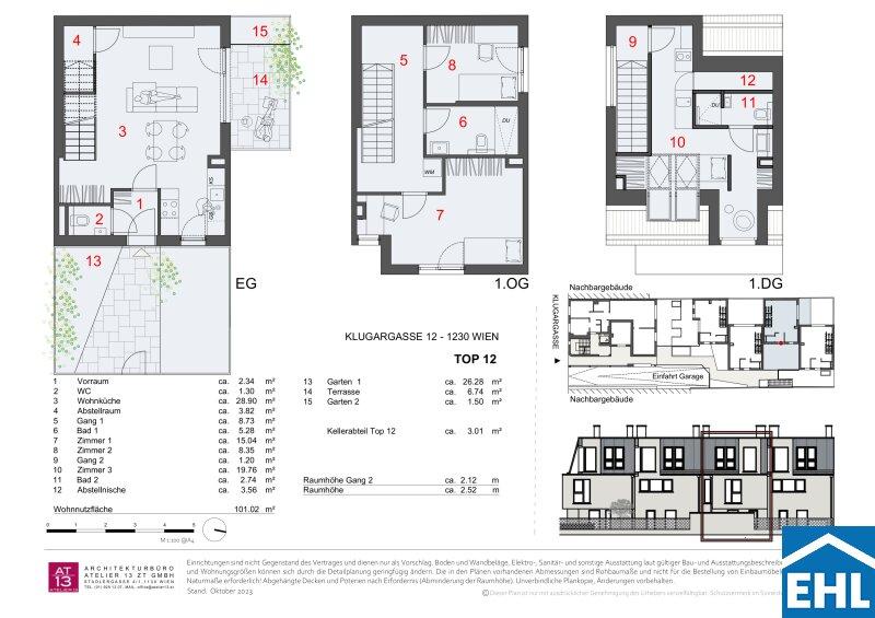
1230
Ort
101,02 m²
Fläche
4.0
Zimmer
WEITERE MEDIEN

ECKDATEN
FindMyHome.at // Externe Immobilien-ID5551828 // 79512
ImmobilienartWohnung - Eigentum
AnschriftKlugargasse
1230 Wien
Baujahr2024
Geschosse4
Fläche101,02 m²
Terrassen1 (7,00 m²)
Zimmer4.0
Bad2
WC3
 Abstellraum
Kaufpreis:€ 595.000,00
Ratenzahlung:Finanzierungsmöglichkeiten für diese Immobilie anzeigen
Provision: 3% des Kaufpreises zzgl. 20% USt.







BESCHREIBUNG

Zukunftsorientiertes Wohnen in Liesing: Nachhaltig, modern, komfortabel

Im Herzen des aufstrebenden Wiener Bezirks Liesing entsteht ein modernes und stilvolles Neubauprojekt, unweit der charmanten Heurigen-Gegend von Perchtoldsdorf! Hier vereinen sich naturnahe Entspannung und moderner Wohnkomfort. Leben, wo man aufatmen kann: Genießen Sie die vielfältigen Freizeitmöglichkeiten in Liesing und erfreuen sich gleichzeitig über eine perfekte Anbindung an die Innenstadt. KLUGARTOWN - ein Ort, der begeistert.

Das Projekt

Ein Wohnraum im Einklang mit besonderen Werten Das Projekt ist umweltbewusst, hochwertig und verfolgt moderne nachhaltige Ansätze. Als Basis diente ein langfristig durchdachtes Konzept, gefolgt von einer tiefgehenden Planung bis hin zur qualitativ hochwertigen Bauausführung. Highlights für die Bewohner und die Natur sind die Luft-Wärmepumpe sowie der Fokus auf Niedrigenergiestandards. 

Einziehen und wohlfühlen - die Wohneinheiten werden schlüsselfertig übergeben und bieten Lebensraum für Singles, Paare und Familien. Für ein rundum schönes und gemütliches Zuhause sorgen hochwertige Materialen, abgerundet durch großzügige, hofseitige Freiflächen. Dadurch wird die Wohnanlage zu einem privaten, ruhigen Rückzugsort.

  • 4 Townhouses
  • 10 Wohnungen
  • 2 4 Zimmer-Wohnungen
  • Wohnungsgrößen zwischen 40 und 101 m²
  • Freiflächen wie Eigengärten, Terrassen, Loggias oder Balkone
  • Hauseigene Tiefgarage
  • Kinderwagen- und Fahrradabstellraum
  • Energieeffizienz:
    • HWB ab 23,10 kWh/m²a (Klasse B)
    • fGEE ab 0,68 (Klasse A+)

Die Ausstattung

  • Fußbodenheizung mittels Luft-Wärmepumpe zuzüglich PV-Module
  • 3-fach isolierte Kunststoff-Alufenster
  • Außenliegender, elektrischer Sonnenschutz
  • Parkettböden in Eiche
  • Feinsteinzeug im Format 30x60 in den Nassbereichen
  • Klimaanlagen auf Sonderwunsch möglich

Verschaffen Sie sich einen ersten Eindruck bei unserem Video-Rundgang!

Die Lage

Die Klugargasse im 23. Wiener Gemeindebezirk zeichnet sich durch ihre attraktive Lage in einer ruhigen, aber dennoch hervorragend erschlossenen Wohngegend aus. Gepflegte Wohn- und Einfamilienhäuser und grüne Oasen prägen das Straßenbild und schaffen eine angenehme, entspannte Atmosphäre. Die Lage besticht zudem durch ihre exzellente Verkehrsanbindung.

Der nahegelegene Kaufpark Alterlaa und Wienerberg City bieten zahlreiche Einkaufsmöglichkeiten sowie vielfältige Unterhaltungsangebote. Darüber hinaus ist die Shopping City Süd, das größte Einkaufszentrum Österreichs, in nur etwa 20 Minuten mit dem Auto zu erreichen. Ein Supermarkt ist fußläufig erreichbar.

  • Bus: 60A, 66A
  • U-Bahn Station Alterlaa
  • Autobahn A2

3% Kundenprovision
Fertigstellung: Herbst 2024

Wir weisen darauf hin, dass zwischen dem Vermittler und dem zu vermittelnden Dritten ein familiäres oder wirtschaftliches Naheverhältnis besteht.

Der Vermittler ist als Doppelmakler tätig.


Infrastruktur / Entfernungen

Gesundheit
Arzt <1.000m
Apotheke <500m
Klinik <250m
Krankenhaus <1.750m

Kinder & Schulen
Schule <500m
Kindergarten <500m
Universität <5.000m
Höhere Schule <4.500m

Nahversorgung
Supermarkt <250m
Bäckerei <500m
Einkaufszentrum <1.500m

Sonstige
Geldautomat <500m
Bank <500m
Post <1.500m
Polizei <1.250m

Verkehr
Bus <250m
U-Bahn <1.500m
Straßenbahn <2.250m
Bahnhof <1.000m
Autobahnanschluss <2.250m

Angaben Entfernung Luftlinie / Quelle: OpenStreetMap

Provision: 3% des Kaufpreises zzgl. 20% USt.


Alle Details anzeigen

KONTAKT






 

Lasse dich kostenlos vom Anbieter dieser Immobilie zurückrufen.







 


 
EHL Wohnen GmbH
Ilse Reindl
Telefonnummer anzeigen Telefon Allgemein: +4315127690410
Handy Bearbeiter: +4366488160143
 
Bitte dem Makler die FindMyHome.at - ID bekanntgeben: 5551828

Bewertungen dieses Anbieters
Qualitätsmakler
Qualitätsmakler:
Netiquette
Freundlichkeit
81 %

BEWERTUNGEN DIESES ANBIETERS

 
Qualitätsmakler
UNSERE HALL OF FAME DER BESTEN ANBIETER
Qualit�tsmakler
Qualitätsmakler
2012, 2013, 2014, 2015, 2016, 2017, 2018, 2019, 2020, 2021, 22/23, 2024, 2025
Weiterempfehlung
WIRD GERNE

Freundlichkeit
BESONDERS
FREUNDLICH
Netiquette
FINDMYHOME
NETIQUETTE
Auch du kannst bewerten! 7 Tage nach deiner Anfrage erhältst du dafür von uns ein Bewertungsmail.
Alle Infos zu unseren Auszeichnungen und dem FINDMYHOME.AT Qualitätsprogramm findest du hier: Übersicht anzeigen

FINANZIERUNG
?>

Du willst wissen, wie viel dein Umzug kosten wird?

Mach gleich den kostenlosen Preisvergleich und schau, welche seriösen Anbieter in deiner Region günstig deinen Umzug organisieren


ZUM UMZUGS-VERGLEICH
-->

MYHOME BLOG
SuchAgentin auf FindMyHome.at
Unterschiedlichen Rechtsthemen, köstliche Rezepte, neueste Design-Highlights, sowie aktuelle Technik-Tools für Ihr Eigenheim.


FINDMYHOME.AT SUCHAGENTIN
SuchAgentin auf FindMyHome.at
Hallo, soll ich dir ähnliche Immobilien kostenfrei per E-Mail schicken?


ÄHNLICHE IMMOBILIEN
Aehnliche Immobilie - Vorschaubild 1

4-ZIMMER | DACHTERRASSE | HOCHWERTIGE AUSFÜHRUNG | MODERNER ... - Objektnr. 5543197

87,98 m² - 4.0 Zimmer
594800 €
PLZ: 1230

Mehr anzeigen

Aehnliche Immobilie - Vorschaubild 2

++ NEU ++ Exklusiver WOHNTRAUM mit BALKON und PANORAMA über ... - Objektnr. 5555388

84,21 m² - 3 Zimmer
599000 €
PLZ: 1230

Mehr anzeigen

Aehnliche Immobilie - Vorschaubild 3

IHR WOHLFÜHL-ZUHAUSE IN WIEN-LIESING | DUO547 | - Objektnr. 5479729

83,47 m² - 3.0 Zimmer
584000 €
PLZ: 1230

Mehr anzeigen

Durch die Nutzung unserer Seite erklären Sie sich mit der Verwendung von Cookies zur Verbesserung Ihres Online-Erlebnisses einverstanden. Detaillierte Informationen zu diesem und weiteren Themen erhalten Sie in unserer Datenschutzerklärung.