MEIN ERGEBNIS ANPASSEN

++MOLLARD 50++ stilvolle 3-Zimmer-Wohnung mitten im Herzen der Stadt (3/5) - Objektnr. 5551320

1060
Ort
€ 2.025,00
Gesamtkosten
71,00 m²
Fläche
3.0
Zimmer

ECKDATEN
FindMyHome.at // Externe Immobilien-ID5551320 // 61720
ImmobilienartWohnung - Miete
Anschrift/5
1060 Wien
Baujahr2025
Stock2
Mietdauer5
Fläche71,00 m²
Zimmer3.0
Bad2
WC1
 Abstellraum
Brutto-Miete:€ 2.025,00
Mehrwertsteuer:€ 184,09
Monatliche Gesamtkosten:€ 2.025,00
Provision: Gemäß Erstauftraggeberprinzip bezahlt der Abgeber die Provision.




BESCHREIBUNG

++MOLLARD 50++ stilvolle 3-Zimmer-Wohnung mitten im Herzen der Stadt (3/5)

Willkommen beim Neubauprojekt Mollardgasse 50!
Bestlage im 6. Wiener Gemeindebezirk Mariahilf Fertigstellung in Kürze!

 

++ Bitte beachten Sie, dass Sie das Projekt nicht auch bei einem anderen Unternehmen anfragen, Sie können über uns alle verfügbaren Wohnungen im Haus besichtigen +++


Zur befristeten Vermietung gelangt diese helle, toll aufgeteilte und sehr hochwertig ausgestattete ca. 71 m² große 3-Zimmer Neubauwohnung mit Balkon in einem einzigartigen Neubau in toller Lage des 6. Wiener Gemeindebezirks!

Das Projekt:

Das Projekt MOLLARD 50 präsentiert sich als moderner Neubau mit drei Gebäudetrakten samt Tiefgarage. Die Architektur überzeugt durch klare Linien und durchdachte Details, während die Grundrisse mit höchster Flexibilität und intelligenter Raumaufteilung gestaltet sind. Großzügige Balkone, Loggien, Terrassen und Gartenflächen erweitern den Wohnraum fast jeder Wohnung ins Freie und schaffen eine besondere Lebensqualität.

Die Lage im Herzen des 6. Bezirks vereint urbane Infrastruktur mit hoher Wohnqualität zahlreiche Einkaufsmöglichkeiten, Gastronomie, sowie eine hervorragende öffentliche Anbindung liegen in unmittelbarer Nähe.

 

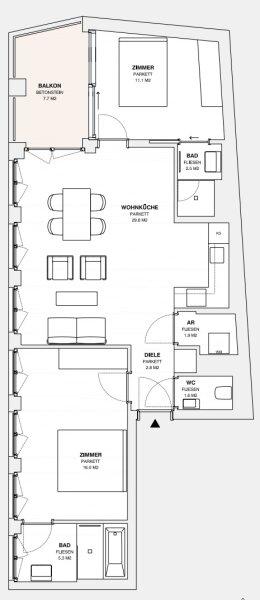
Raumaufteilung: Stiege 3 Top 5

  • Vorraum 
  • getrenntes WC
  • Abstellraum
  • Wohnküche
  • Zimmer
  • Badezimmer mit Dusche und Badewanne
  • Zimmer
  • Badezimmer mit Dusche
  • Balkon

(siehe Plan und aktuelle Fotos)

 

Die Ausstattung:

Das Projekt MOLLARD 50 vereint eine sehr gute Lage mit einer sehr guten Qualität des Bauwerks.

Fast jede Wohnung ist nicht nur mit einer Freifläche ausgestattet, sondern weißt auch hochwertige Materialien als auch Ausstattung aus:

- elektrische Beschattung

- Fußbodenheizung

- Badezimmer mit schönen Armaturen 

- voll ausgestattete Küche mit  hochwertigen Markengeräten

- Kellerabteil

- uvm.

Darüber hinaus stehen in der hauseigenen Tiefgarage PKW zur Verfügung (gegen Aufpreis).

 

Lage & Umfeld
Ruhige Wohnlage im 6. Bezirk zwischen Gumpendorfer Straße und Linker Wienzeile, mit schneller Anbindung ins Zentrum. Mariahilfer Straße (ca. 800 m) bietet vielfältige Einkaufs- und Gastronomieangebote. Bruno-Kreisky-Park (ca. 230 m) sowie Haus des Meeres/Esterházypark befinden sich in fußläufiger Nähe.

Öffentliche Verkehrsanbindung
 

  • U4 (Margaretengürtel, Pilgramgasse)

  • Straßenbahn 6 & 18 (u. a. Richtung Westbahnhof, St. Marx)

  • Bus 12A, 57A sowie Nachtlinien N6, N8, N60

  • Rascher Anschluss an S-Bahn- und Regionalzüge über Westbahnhof/Matzleinsdorfer Platz

Individualverkehr
Gute Erreichbarkeit über Wienzeile und Gürtel; Südeinfahrt und A23 schnell angebunden. Kurzparkzone werktags im Grätzel.

 

Der Preis:

Die monatliche Bruttogesamtmiete (inkl. Umsatzsteuer) beträgt 2.025,00 €

Hinweis: Monatliche Kosten für Strom, Heizung sowie Wasser sind nicht inkludiert und müssen gesondert bezahlt werden. 

Das Haus verfügt über eine großzügige Tiefgarage. Die Anmietung eines Stellplatzes kostet monatlich 168 € brutto. 

Die Vermietung erfolgt befristet auf 5 Jahre. 

Kaution: 3 Bruttomonatsmieten 

Provisionsfrei

Mietbeginn: voraussichtlich 01.12.2025

 

Das Kleingedruckte:
Wir weisen ausdrücklich auf unser wirtschaftliches Naheverhältnis mit dem Abgeber/ der Abgeberin hin! 
Wir sind in unserer Position als Vermittler als Doppelmakler tätig. 
Alle hier veröffentlichen Informationen basieren auf den uns von dem Abgeber/ der Abgeberin zur Verfügung gestellten Informationen und wurden nicht selbst erhoben.
Unsere Allgemeinen Geschäftsbedingungen können Sie sowohl in dem Ihnen zugesandten Expose einsehen als auch auf unserer Homepage. Wir weisen ausdrücklich darauf hin, dass diese AGBs Vertragsinhalt werden.
Der Schutz von personenbezogenen Daten ist uns wichtig und auch gesetzlich gefordert. Die Verarbeitung Ihrer personenbezogenen Daten erfolgt nach den datenschutzrechtlichen Bestimmungen. Auf unserer Homepage (unter Datenschutzinformation) finden Sie eine Übersicht die Sie über die wichtigsten Aspekte der Verarbeitung personenbezogener Daten informieren soll.
Irrtum und Änderungen vorbehalten. 

Wir weisen darauf hin, dass zwischen dem Vermittler und dem zu vermittelnden Dritten ein familiäres oder wirtschaftliches Naheverhältnis besteht.

Der Immobilienmakler erklärt, dass er entgegen dem in der Immobilienwirtschaft üblichen Geschäftsgebrauch des Doppelmaklers einseitig nur für den Vermieter tätig ist.


Infrastruktur / Entfernungen

Gesundheit
Arzt <500m
Apotheke <500m
Klinik <500m
Krankenhaus <500m

Kinder & Schulen
Schule <500m
Kindergarten <500m
Universität <1.000m
Höhere Schule <1.000m

Nahversorgung
Supermarkt <500m
Bäckerei <500m
Einkaufszentrum <1.000m

Sonstige
Geldautomat <500m
Bank <500m
Post <500m
Polizei <1.000m

Verkehr
Bus <500m
U-Bahn <500m
Straßenbahn <500m
Bahnhof <500m
Autobahnanschluss <4.000m

Angaben Entfernung Luftlinie / Quelle: OpenStreetMap

Objekt ist für eine Wohngemeinschaft geeignet
Rollstuhlgerecht: JA
Barrierefrei: JA
Provision: Gemäß Erstauftraggeberprinzip bezahlt der Abgeber die Provision.


Alle Details anzeigen

KONTAKT






 

Lasse dich kostenlos vom Anbieter dieser Immobilie zurückrufen.







 


 
Adonia Realitätenvermittlung GmbH
Adonia Immobilien
Telefonnummer anzeigen Telefon Allgemein: +436766372496
 
Bitte dem Makler die FindMyHome.at - ID bekanntgeben: 5551320

Bewertungen dieses Anbieters
Qualitätsmakler
Qualitätsmakler:
2015, 2018, 2019, 2020, 2023, 2024,
Netiquette
Freundlichkeit

BEWERTUNGEN DIESES ANBIETERS

 
Qualit�tsmakler
Qualitätsmakler
2015, 2018, 2019, 2020, 22/23, 2024
Freundlichkeit
BESONDERS
FREUNDLICH
Netiquette
FINDMYHOME
NETIQUETTE
Auch du kannst bewerten! 7 Tage nach deiner Anfrage erhältst du dafür von uns ein Bewertungsmail.
Alle Infos zu unseren Auszeichnungen und dem FINDMYHOME.AT Qualitätsprogramm findest du hier: Übersicht anzeigen


Du willst wissen, wie viel dein Umzug kosten wird?

Mach gleich den kostenlosen Preisvergleich und schau, welche seriösen Anbieter in deiner Region günstig deinen Umzug organisieren


ZUM UMZUGS-VERGLEICH
-->

MYHOME BLOG
SuchAgentin auf FindMyHome.at
Unterschiedlichen Rechtsthemen, köstliche Rezepte, neueste Design-Highlights, sowie aktuelle Technik-Tools für Ihr Eigenheim.


FINDMYHOME.AT SUCHAGENTIN
SuchAgentin auf FindMyHome.at
Hallo, soll ich dir ähnliche Immobilien kostenfrei per E-Mail schicken?


ÄHNLICHE IMMOBILIEN
Aehnliche Immobilie - Vorschaubild 1

++MOLLARD 50++ hochwertige 3-Zimmer-Wohnung mitten im Herzen... - Objektnr. 5549506

65,20 m² - 3.0 Zimmer
1725 €
PLZ: 1060

Mehr anzeigen

Aehnliche Immobilie - Vorschaubild 2

++MOLLARD 50++ Außergewöhnliche 3-Zimmer-Wohnung mitten im H... - Objektnr. 5550612

65,31 m² - 3.0 Zimmer
1725 €
PLZ: 1060

Mehr anzeigen

Aehnliche Immobilie - Vorschaubild 3

++MOLLARD 50++ Elegant 3-room apartment in the very heart of... - Objektnr. 5550602

65,11 m² - 3.0 Zimmer
1924.99 €
PLZ: 1060

Mehr anzeigen

Durch die Nutzung unserer Seite erklären Sie sich mit der Verwendung von Cookies zur Verbesserung Ihres Online-Erlebnisses einverstanden. Detaillierte Informationen zu diesem und weiteren Themen erhalten Sie in unserer Datenschutzerklärung.