MEIN ERGEBNIS ANPASSEN

NEU! ++ ERSTBEZUG NÄHE U2 ASPERNSTRASSE ++16 MODERNE NEUBAUWOHNUNGEN ++KLINIKUM DONAUSTADT / CAMPUS DONAUSTADT ++ ++ 10 TIEFGARAGENPLÄTZEN ++ 1220 WIEN - Objektnr. 5550590


ökologisch beheizt
1220
Ort
76,32 m²
Fläche
3.0
Zimmer

ECKDATEN
FindMyHome.at // Externe Immobilien-ID5550590 // 27766
ImmobilienartEigentum
Anschrift/15A
1220 Wien
Baujahr2023
Befeuerung
Luftwärmepumpe
Stock3
Geschosse4
Fläche76,32 m²
Terrassen1 (9,00 m²)
Zimmer3.0
Bad1
WC1
Kaufpreis:€ 499.000,00
Ratenzahlung:Finanzierungsmöglichkeiten für diese Immobilie anzeigen
Provision: 3% des Kaufpreises zzgl. 20% USt.







BESCHREIBUNG

NEU! ++ ERSTBEZUG NÄHE U2 ASPERNSTRASSE ++16 MODERNE NEUBAUWOHNUNGEN ++KLINIKUM DONAUSTADT / CAMPUS DONAUSTADT ++ ++ 10 TIEFGARAGENPLÄTZEN ++ 1220 WIEN

  • PROJEKT:

In der Nähe der U2-Station Aspernstraße wurden 16 topmoderne Neubauwohnungen mit großzügigen Außenflächen (Terrassen/Balkone/Gärten) sowie 10 Tiefgaragen-Stellplätzen errichtet und stehen ab sofort zum Verkauf.

Im Vergleich zu vielen Projekten, die sich noch im Bau befinden oder bei denen man bereits in der Planungsphase kauft und einen Bezugstermin erst in 12 bis 24 Monaten erwarten kann, sind diese Wohnungen bereits bezugsfertig (einige Käufer sind bereits eingezogen).

Man sieht hier, was man kauft und spart dadurch Zeit, Geld und Nerven.

Die Frage und was, wenn erübrigt sich, da das Projekt bereits abgeschlossen ist und dem Käufer damit volle Sicherheit bietet.

Die 2- bis 3-Zimmer-Wohnungen sind so konzipiert, dass sie weder zu groß (und damit zu teuer) sind, noch zu klein wirken vielmehr bieten sie ausreichend Platz und gleichzeitig großzügige Außenflächen wie Balkone, Terrassen und Gärten.

Damit finden Eigennutzer ein gemütliches Zuhause und Anleger eine perfekte Geldanlage (kaufen und vermieten), die durch die U2 "Aspernstraße" zahlreiche Wohnungssuchende anzieht insbesondere aus dem Donauspital-Umfeld und der UNI-Campus-Klientel.

Das Gebäude (Baujahr 2024/25) überzeugt durch hochwertige Ausstattung, modernes Design und zeitgemäße Technik, die höchsten Wohnkomfort garantieren.

  • TOP-LAGE MIT AUSGEZEICHNETER INFRASTRUKTUR:

Die U2 Aspernstraße ist in nur 23 Minuten zu Fuß erreichbar, das Klinikum Donaustadt und der Campus Donaustadt nur eine Station entfernt (3 Min. Fahrzeit) bzw. 10 Minuten zu Fuß.

Ideal für Eigennutzer, die umweltfreundlich und ohne Stau mit den Öffis unterwegs sind, sowie für Investoren, die von hoher Mietnachfrage durch Studierende und medizinisches Personal profitieren möchten.

-----------------------------

  • WOHNUNGEN:

-----------------------------

GARTENWOHNUNGEN:

  • TOP 1: Verkauft!
  • TOP 2: Verkauft!
  • TOP 3: Verkauft!
  • TOP 4: Verkauft!

-----------------------------

1. STOCK:

  • TOP 5: Verkauft!
  • TOP 6: ca. 47,50 m² (2 Zimmer) + Balkon ca. 7,57 m²,  Kaufpreis: EUR 329.000

  • TOP 7: Verkauft!
  • TOP 8: Verkauft!

  • TOP 9: Verkauft!

-----------------------------

1. DACHGESCHOSS:

  • TOP 10: ca. 45,35 m² (2 Zimmer) + Balkon ca. 11,45 m² + Terrasse ca. 7,08 m²,  Verkauft!

  • TOP 11: ca. 44,60 m² (2 Zimmer) + Balkon ca. 7,57 m² + Terrasse ca. 4,50 m²Kaufpreis: EUR 279.000

  •  TOP 12: Verkauft!
  • TOP 13: Verkauft!

  • TOP 14: Verkauft!

-----------------------------

2. DACHGESCHOSS:

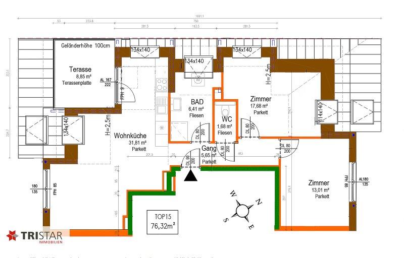
  • TOP 15: ca. 76,32 m² (3 Zimmer) + Terrasse ca. 9 m²,  Kaufpreis: EUR 499.000 

  • TOP 16: ca. 85 m² (3 Zimmer) + Terrasse ca. 11 m²,  Kaufpreis: EUR 549.000

-----------------------------

  • EIGENNUTZER/ANLEGER: 

Die angegebenen Kaufpreise gelten für Eigennutzer. Anlegerpreise sind ebenfalls verfügbar!

-----------------------------

  • TIEFGARAGENPLÄTZE:

Haben Sie genug von Schmutz und Kratzern durch Straßenparken

Wir haben die perfekte Lösung für Sie: 10 PKW-Stellplätze stehen Ihnen optional (Gegen Aufpreis) zur Verfügung.

  • PKW-Tiefgaragenplatz 1:  EUR 30.000   
  • PKW-Tiefgaragenplatz 2:  Verkauft!
  • PKW-Tiefgaragenplatz 3:  Verkauft!
  • PKW-Tiefgaragenplatz 4:  Verkauft!
  • PKW-Tiefgaragenplatz 5:  Verkauft!
  • PKW-Tiefgaragenplatz 6:  Verkauft!
  • PKW-Tiefgaragenplatz 7:  EUR 30.000   
  • PKW-Tiefgaragenplatz 8:  Verkauft!
  • PKW-Tiefgaragenplatz 9:  Verkauft!
  • PKW-Tiefgaragenplatz10: Verkauft!

-----------------------------

  • SYMBIOSE AUS KOMFORT UND LUXUS:

Für ein gemütliches Raumklima sorgt eine Fußbodenheizung, welche von einer effizienten Luft/Wasser-Wärmepumpe versorgt wird.

Zur hochwertigen Ausstattung gehören Eichenparkettböden, Vorbereitung für Klimaanlage, Kunststoff-Alu-Fenster mit 3-fach Isolierverglasung und mit integriertem Sonnenschutz.

NEU! ++ ERSTBEZUG NÄHE U2 ASPERNSTRASSE ++16 MODERNE NEUBAUWOHNUNGEN ++KLINIKUM DONAUSTADT / CAMPUS DONAUSTADT ++  ++ 10 TIEFGARAGENPLÄTZEN ++ 1220 WIEN

Wir weisen darauf hin, dass zwischen dem Vermittler und dem zu vermittelnden Dritten ein familiäres oder wirtschaftliches Naheverhältnis besteht.

Der Vermittler ist als Doppelmakler tätig.

Objekt ist für eine Wohngemeinschaft geeignet
Barrierefrei: JA
Provision: 3% des Kaufpreises zzgl. 20% USt.


Alle Details anzeigen

KONTAKT






 

Lasse dich kostenlos vom Anbieter dieser Immobilie zurückrufen.







 


 
TRISTAR Immobilien
TRISTAR Immobilien
Telefonnummer anzeigen Handy Bearbeiter: +436769017374
 
Bitte dem Makler die FindMyHome.at - ID bekanntgeben: 5550590

Bewertungen dieses Anbieters
Qualitätsmakler
Qualitätsmakler:
2017, 2019, 2020, 2021,
Netiquette
Freundlichkeit

BEWERTUNGEN DIESES ANBIETERS

 
Qualit�tsmakler
Qualitätsmakler
2017, 2019, 2020, 2021
Freundlichkeit
BESONDERS
FREUNDLICH
Netiquette
FINDMYHOME
NETIQUETTE
Auch du kannst bewerten! 7 Tage nach deiner Anfrage erhältst du dafür von uns ein Bewertungsmail.
Alle Infos zu unseren Auszeichnungen und dem FINDMYHOME.AT Qualitätsprogramm findest du hier: Übersicht anzeigen

FINANZIERUNG
?>

Du willst wissen, wie viel dein Umzug kosten wird?

Mach gleich den kostenlosen Preisvergleich und schau, welche seriösen Anbieter in deiner Region günstig deinen Umzug organisieren


ZUM UMZUGS-VERGLEICH
-->

MYHOME BLOG
SuchAgentin auf FindMyHome.at
Unterschiedlichen Rechtsthemen, köstliche Rezepte, neueste Design-Highlights, sowie aktuelle Technik-Tools für Ihr Eigenheim.


FINDMYHOME.AT SUCHAGENTIN
SuchAgentin auf FindMyHome.at
Hallo, soll ich dir ähnliche Immobilien kostenfrei per E-Mail schicken?


ÄHNLICHE IMMOBILIEN
Aehnliche Immobilie - Vorschaubild 1

NEU! ++ 19 EIGENTUMSWOHNUNGEN ++ SCHLÜSSELFERTIG ++ URBAN + ... - Objektnr. 5550074

89,04 m² - 4.0 Zimmer
461000 €
PLZ: 1220

Mehr anzeigen

Aehnliche Immobilie - Vorschaubild 2

NEU! ++ ATTRAKTIVER ANLEGERPREISE ++ 14 TOP NEUBAU-WOHNUNGEN... - Objektnr. 5353647

68,77 m² - 3.0 Zimmer
429000 €
PLZ: 1220

Mehr anzeigen

Aehnliche Immobilie - Vorschaubild 3

Erleben Sie urbanen Komfort in lichtdurchfluteten 3 Zimmern... - Objektnr. 5462407

85,76 m² - 3.0 Zimmer
550000 €
PLZ: 1220

Mehr anzeigen

Durch die Nutzung unserer Seite erklären Sie sich mit der Verwendung von Cookies zur Verbesserung Ihres Online-Erlebnisses einverstanden. Detaillierte Informationen zu diesem und weiteren Themen erhalten Sie in unserer Datenschutzerklärung.