MEIN ERGEBNIS ANPASSEN

Sehr schöne Familienwohnung mit Terrasse und großer Gartenfläche (T 1.3 / EG) - Objektnr. 5550127


ökologisch beheizt
1230
Ort
79,43 m²
Fläche
3.0
Zimmer
WEITERE MEDIEN

ECKDATEN
FindMyHome.at // Externe Immobilien-ID5550127 // 1723103-2
ImmobilienartWohnung - Eigentum
Anschrift1230 Wien
Baujahr2022
Befeuerung
Luftwärmepumpe
Fläche79,43 m²
Terrassen1 (39,00 m²)
Zimmer3.0
Bad1
WC1
Kaufpreis:€ 529.000,00
Ratenzahlung:Finanzierungsmöglichkeiten für diese Immobilie anzeigen
Provision: 3% des Kaufpreises zzgl. 20% USt.







BESCHREIBUNG

Sehr schöne Familienwohnung mit Terrasse und großer Gartenfläche (T 1.3 / EG)

1230 KETZERGASSE 99

Wohnen am Stadtrand - ein Konzept für jene, die ein Leben in einem überschaubaren Ort mit der Infrastruktur einer Großstadt suchen. Ein Highlight dieser Immobilie ist der liebevoll angelegte Garten mit einer einladenden Terrasse. Die Verbindung von Innen- und Außenbereich schafft eine harmonische Atmosphäre.

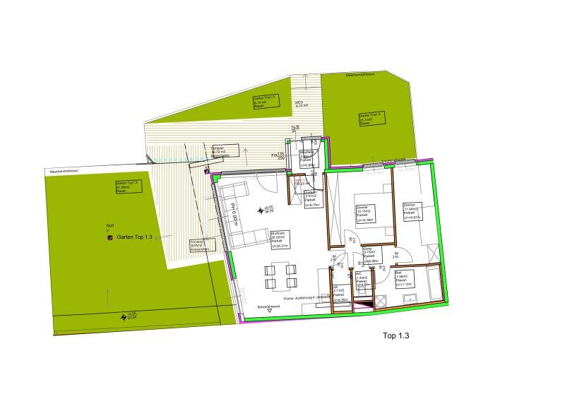
TOP 1.3 :
Diese schön, sehr gut aufgeteilte 3 Zimmer-Wohnung hat von allen Zimmern einen Zugang zum eignen Garten. 

Raumaufteilung:

- 1 Wohnküchenbereich mit Ausgang auf die große Terrasse und den Eigengarten
- 2 Schlafzimmer mit Ausgang auf in den  Eigengarten
- 1 Badezimmer 
- 1 WC
- 1 Vorzimmer
- 1 Abstellraum.

Ausstattung:

  • Inklusiver Küche mit allen Geräten
  • Kühlung im Sommer durch zusätzlich installierte Wärmepumpe
  • Moderne Hauszentralheizung - Anlagencontracting (Gas-Brennwertgerät/Wärmepumpe)
  • Parketten in allen Räumen
  • Großformatige Fliesen in den Sanitärbereichen
  • Weiße Innentüren
  • Hochwertige Ausführung durch STRABAG AG

Lage: 

Die Infrastruktur rund um das Projekt ist als sehr gut zu bezeichnen. Einkaufsmöglichkeiten, Ärzten, Schulen und Behörden und Orte der Freizeitgestaltung (Badeseen und SCS) in unmittelbarer Nähe, sowie die hervorragende Verkehrsanbindung ins Zentrum der Großstadt Wien durch die U6, zeichnen diesen außergewöhnlichen Wohnkomfort am Stadtrand von Wien aus.

Öffentliche Verkehrsanbindung:

U-Bahnstation und Busstationen befinden sich in unmittelbarer Nähe.

Siebenhirten:      U6, Badner Bahn, Bus 207,260,266,269,270 
Perfektastraße : Bus 61A, 64A

 

WEITERE DETAILS AUF      wohnmodus23.at

KFZ-Stellplätze in der Garage können zusätzlich angekauft werden ( €24.900,)

Wir weisen ausdrücklich auf unser wirtschaftliches Naheverhältnis mit dem Abgeber/der Abgeberin hin! Irrtum und Änderungen vorbehalten! Die angeführten Bilder sind Visualisierungen. Abänderungen zur tatsächlichen Ausführung können resultieren. 


Infrastruktur / Entfernungen

Gesundheit
Arzt <500m
Apotheke <500m
Klinik <2.000m
Krankenhaus <3.000m

Kinder & Schulen
Schule <500m
Kindergarten <1.000m
Universität <6.500m
Höhere Schule <6.000m

Nahversorgung
Supermarkt <500m
Bäckerei <500m
Einkaufszentrum <1.500m

Sonstige
Geldautomat <500m
Bank <500m
Post <2.000m
Polizei <2.000m

Verkehr
Bus <500m
U-Bahn <500m
Straßenbahn <3.500m
Bahnhof <500m
Autobahnanschluss <1.000m

Angaben Entfernung Luftlinie / Quelle: OpenStreetMap

Klimaanlage: JA
Barrierefrei: JA
Provision: 3% des Kaufpreises zzgl. 20% USt.


Alle Details anzeigen

KONTAKT






 

Lasse dich kostenlos vom Anbieter dieser Immobilie zurückrufen.







 


 
Ticon Immobilienservice
Claudia Sailer
Telefonnummer anzeigen Telefon Allgemein: +436642122877
Handy Bearbeiter: +436642122877
 
Bitte dem Makler die FindMyHome.at - ID bekanntgeben: 5550127

Bewertungen dieses Anbieters
Qualitätsmakler
Qualitätsmakler:
2012, 2015, 2016, 2017, 2018, 2020, 2021 , 2023,
Netiquette

BEWERTUNGEN DIESES ANBIETERS

 
Qualit�tsmakler
Qualitätsmakler
2012, 2015, 2016, 2017, 2018, 2020, 2021 22/23
Netiquette
FINDMYHOME
NETIQUETTE
Auch du kannst bewerten! 7 Tage nach deiner Anfrage erhältst du dafür von uns ein Bewertungsmail.
Alle Infos zu unseren Auszeichnungen und dem FINDMYHOME.AT Qualitätsprogramm findest du hier: Übersicht anzeigen

FINANZIERUNG
?>

Du willst wissen, wie viel dein Umzug kosten wird?

Mach gleich den kostenlosen Preisvergleich und schau, welche seriösen Anbieter in deiner Region günstig deinen Umzug organisieren


ZUM UMZUGS-VERGLEICH
-->

MYHOME BLOG
SuchAgentin auf FindMyHome.at
Unterschiedlichen Rechtsthemen, köstliche Rezepte, neueste Design-Highlights, sowie aktuelle Technik-Tools für Ihr Eigenheim.


FINDMYHOME.AT SUCHAGENTIN
SuchAgentin auf FindMyHome.at
Hallo, soll ich dir ähnliche Immobilien kostenfrei per E-Mail schicken?


ÄHNLICHE IMMOBILIEN
Aehnliche Immobilie - Vorschaubild 1

Balkonwohnung inkl Stellplatz mit E-Ladestation *** Grün- un... - Objektnr. 5539421

75,23 m² - 3.0 Zimmer
479000 €
PLZ: 1230

Mehr anzeigen

Aehnliche Immobilie - Vorschaubild 2

ERSTBEZUG | TRAUMHAFTE GARTENWOHNUNG | 3 ZIMMER FÜR 489.00,... - Objektnr. 5490442

76,53 m² - 3.0 Zimmer
489000 €
PLZ: 1230

Mehr anzeigen

Aehnliche Immobilie - Vorschaubild 3

SOMMERAKTION! LIESING GARDENS: Urbanes Wohnen im Grünen... - Objektnr. 5498261

84,19 m² - 3.0 Zimmer
598000 €
PLZ: 1230

Mehr anzeigen

Durch die Nutzung unserer Seite erklären Sie sich mit der Verwendung von Cookies zur Verbesserung Ihres Online-Erlebnisses einverstanden. Detaillierte Informationen zu diesem und weiteren Themen erhalten Sie in unserer Datenschutzerklärung.