WEITERE MEDIEN
ECKDATEN
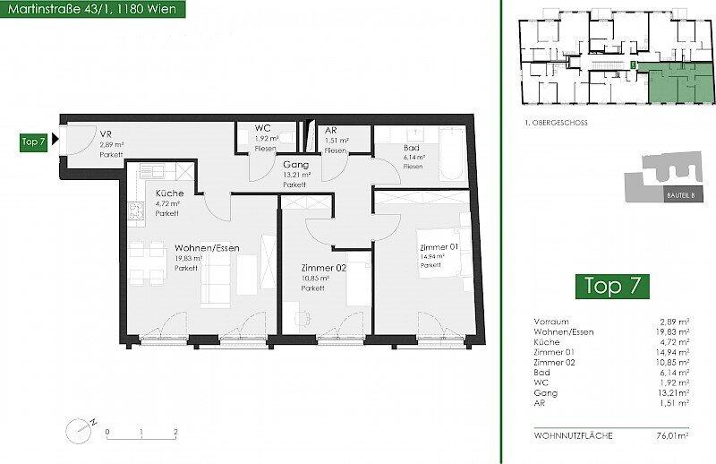
BESCHREIBUNG
KONTAKT
Lasse dich kostenlos vom Anbieter dieser Immobilie zurückrufen.
Ticon Immobilienservice
Claudia Sailer
Claudia Sailer
Telefonnummer anzeigen
Telefon Allgemein: +436642122877
Handy Bearbeiter: +436642122877
Bitte dem Makler die FindMyHome.at - ID bekanntgeben: 5549889
Handy Bearbeiter: +436642122877
Bitte dem Makler die FindMyHome.at - ID bekanntgeben: 5549889
Bewertungen dieses Anbieters
Qualitätsmakler:
2012, 2015, 2016, 2017, 2018, 2020, 2021 , 2023,
2012, 2015, 2016, 2017, 2018, 2020, 2021 , 2023,
BEWERTUNGEN DIESES ANBIETERS
Qualitätsmakler
2012, 2015, 2016, 2017, 2018, 2020, 2021 22/23
2012, 2015, 2016, 2017, 2018, 2020, 2021 22/23
FINDMYHOME.AT
NETIQUETTE
NETIQUETTE
Auch du kannst bewerten! 7 Tage nach deiner Anfrage erhältst du dafür von uns ein Bewertungsmail.
Alle Infos zu unseren Auszeichnungen und dem FINDMYHOME.AT Qualitätsprogramm findest du hier: Übersicht anzeigen
Alle Infos zu unseren Auszeichnungen und dem FINDMYHOME.AT Qualitätsprogramm findest du hier: Übersicht anzeigen
FINANZIERUNG
Du willst wissen, wie viel dein Umzug kosten wird?
Mach gleich den kostenlosen Preisvergleich und schau, welche seriösen Anbieter in deiner Region günstig deinen Umzug organisieren
ZUM UMZUGS-VERGLEICH
























