MEIN ERGEBNIS ANPASSEN

Grinzinger Bestlage - große Terrasse - mit separater Büro-/Einlieger-Einheit - Objektnr. 5549710

1190
Ort
214,10 m²
Fläche
3.0
Zimmer

ECKDATEN
FindMyHome.at // Externe Immobilien-ID5549710 // 18595
ImmobilienartWohnung - Eigentum
Anschrift1190 Wien
Befeuerung
Fläche214,10 m²
Terrassen1 (92,00 m²)
Zimmer3.0
Bad3
WC4
 Abstellraum
Kaufpreis:€ 1.790.000,00
Ratenzahlung:Finanzierungsmöglichkeiten für diese Immobilie anzeigen
Provision: 3% des Kaufpreises zzgl. 20% USt.







BESCHREIBUNG

Grinzinger Bestlage - große Terrasse - mit separater Büro-/Einlieger-Einheit

RARITÄT IN BESTLAGE - WOHNEN UND ARBEITEN IN EHEMALIGEM HEURIGEN ENSEMBLE IM HISTORISCHEN ZENTRUM VON GRINZING!

Die Wohnung und das Büro befinden sich in einem ehemaligen Winzerhaus, das etwa Ende der 1670er Jahre mitten im historischen Ortskern von Grinzing erbaut wurde. Das historische Heurigen-Ensemble wurde 2009 vom Architektur-Büro BWM für eine Wohnnutzung hochwertig generalsaniert und mit einem Zubau erweitert. Das gesamte denkmalgeschützte Ensemble bietet neben der fanstastischen Lage eine einzigartige Atmosphäre.

Schon der Zugang in den Innenhof ist beeindruckend - Altes und Neues passen hervorragend zusammen. Dreht man sich um, ergibt sich der Blick Richtung Kirchturm, der im gesamten Ensemble eingebettet zu sein scheint.

Die zum Verkauf stehenden Einheiten bestehen aus einer luxuriösen Wohnung mit ca. 153 m2 Wohnfläche plus ca. 92 m2 Terrasse und einer als Büro oder Einlieger nutzbaren Einheit mit ca. 60,7 m2.  Beide Einheiten verfügen über je einen eigenen Eingang im Innenhof und könnten baulich auch zusammengelegt werden.

DIE UMGEBUNG

Die Lage im historischen Kern von Grinzing ist einmalig - Geschäfte des täglichen Gebrauchs, berühmte Heurige und Restaurants wie auch der öffentliche Nahverkehr befinden sich direkt in der direkten Umgebung.
Die Endstation der Straßenbahn 38 sowie der Bus 38A halten ca. 1 Gehminute entfernt. Damit gelangt man in kurzer Zeit in die Innenstadt (Schottentor) oder zum Wandern und Aussicht genießen Richtung Kahlenberg / Cobenzl / Leopoldsberg. Umstiege sind in die U6 (Nußdorfer Straße) und U4 (Heiligenstadt) möglich.
Mit dem Auto benötigt man ca. 20 Minuten in den 1. Bezirk. Stellplätze stehen im Rahmen der Parkpickerl-Regelung (Anwohner-Parksystem) in der näheren Umgebung zur Verfügung. Ein paar Gehminuten entfernt befindet sich die Parkgarage "Grinzing".

DIE WOHNEINHEIT

Der Zugang zur Wohnung erfolgt durch einen großzügigen Eingangsbereich, in dem ausreichend Platz für Garderobe und Kästen vorhanden ist.

Über eine schöne Holzstiege gelangt man in den WOHN-ETAGE, in der zwei Schlafzimmer mit jeweils eigenen Bädern und separaten WCs untergebracht sind.

In der Primary-Suite ist das Bad mit hochwertigem Sanitär (Badewanne, Dusche mit Regenduschkopf, Doppelwaschbecken, Handtuchheizkörper) und außergewöhnlichem Marmor sowie indirekter Beleuchtung ausgestattet. Auch der Waschmaschinen-Anschluss befindet sich hier, ist allerdings clever versteckt. Im Schlafbereich bietet ein Einbaukasten viel Stauraum.

Im zweiten Schlafzimmer ist die Ausstattung schlichter, aber trotzdem hochwertig und bietet im Tageslicht-En-Suite Bad ebenfalls ein Doppelwaschbecken und eine Badewanne sowie ein nochmals separat angelegtes WC

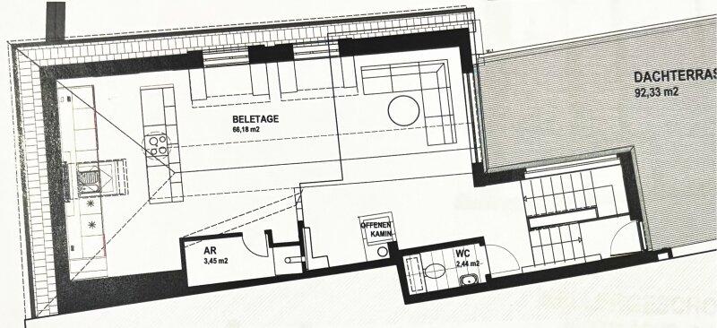
Weiter über die Holzstiege gelangt man in die vom Architekten so benannte "BEL-ETAGE", die ihrem Namen alle Ehre macht.
Schon auf den letzten Stufen erkennt man die außergewöhnliche Deckenhöhe und den beeindruckenden Schnitt des Wohn-Ess-Bereichs. An der höchsten Stelle sind es ca. 3,25m Höhe, so dass auch die zum Innenhof gelegenen Dachschrägen kaum mehr ins Gewicht fallen, sondern dem Raum vielmehr eine gemütliche Atmosphäre verleihen. Der an drei Seiten offene Kamin unterstreicht die besondere Atmosphäre des Raums.

SCHÖNER KOCHEN GEHT NICHT: Durch das Dachfenster im Küchenbereich blickt man direkt auf den Kirchturm. Auf der anderen Seite blickt man auf die Terrasse bzw ins Grüne.
Die Küche ist mit hochwertigen Miele-Geräten ausgestattet und bietet neben der üblichen Ausstattung auch einen Weinkühlschrank. Ein Abstellraum/Speisekammer, in dem sich auch das Heizsystem befindet, rundet den Bereich ab.

Desweiteren gibt es auch auf dieser Etage ein separates WC, welches sich am Aufgang zur ca. 92 m2 großen Terrasse befindet! Die Terrasse bietet aufgrund ihrer Größe Platz für alles, wovon man Outdoor träumen kann. Richtung Norden wird der Blick von den umliegenden Bäumen geleitet, Richtung Süden kommt erneut der Kirchturm ins Blickfeld.

Zusammengefasst bietet die Wohnung:

  • Eingangsbereich mit ca. 7,5 m2
  • BelEtage mit ca. 72 m2
  • Terrasse mit ca. 92,3 m2
  • Primary-Suite mit ca. 42 m2 inkl. WC
  • Schlafzimmer mit ca. 20,4 m2 inkl. En-Suite Bad und WC
  • Stiegenbereich mit Stellfläche mit ca. 11,4 m2
  • Kellerabteil mit ca. 5 m2

DIE AUSSTATTUNG DER WOHNEINHEIT

Hier wurde durch die Architekten nicht nur eine luxuriöse, sondern auch funktionelle Wohnung geschaffen, die mit hochwertiger Ausstattung punktet:

  • Klima-Anlage im Wohnbereich
  • Moderner Kamin
  • Dunkel geöltes Nussholz-Parkett in allen Wohnräumen
  • Schiefer-Natursteinplatten in den Toiletten
  • Brasilianischer Marmor "Rain Forest" im Bad der Primary-Suite
  • teilweise Fußbodenheizung - separat zu steuern im Badbereich der Primary-Suite
  • Kästen aus Vollholz (Nuss) 
  • Einbauküche in weiss glänzend mit Miele Geräten
  • Weinkühlschrank
  • Terrassenbelag aus Bankirai
  • Glasfaser-Kabel

DAS BÜRO / DIE EINLIEGER-EINHEIT

Vorweg: Diese Einheit wird derzeit als Wohnung genutzt, würde sich auch sehr gut für ein Büro oder eine Einheit für ein Au-Pair oder sonstiges Personal eignen.

Hier kommt der historische Charme des ehemaligen Heurigen so richtig zur Geltung - Gewölbedecken und Holzbalken vermitteln ein ganz besonderes Flair!

Der Zugang erfolgt über den Innenhof im Erdgeschoß und bietet beim Betreten einen leicht abgegrenzten Eingangsbereich mit ausreichend Fläche für eine Garderobe. Weiter gelangt man in einen großen offenen Bereich, der viel Platz für Arbeitsplätze oder einen Wohnbereich bietet. Angeschlossen ist eine offene Küche samt Einbauküche inkl. Geräten und einer Bar-Theke. Weiters steht ein zusätzliches separates Zimmer zur Verfügung, das ebenfalls einen eigenen Zugang zum Innenhof bietet. Das Bad hat zwei Zugänge und ist mit Wanne, Waschtisch, Waschmaschinen-Anschluss sowie der Therme ausgestattet. Das WC ist mittels einer Schiebetür zu separieren. Es stehen insgesamt knapp 61 m2 zur Verfügung.

Die gesamte Einheit ist mit einer Fußbodenheizung ausgestattet und wird mittels Gastherme mit Warmwasser und Heizung versorgt. Auch hier ist ein eigenes Kellerabteil mit ca. 5 m2 zugeordnet.

Es gibt einen allgemeinen Fahrrad-Keller.

DER KAUF

Der Kaufpreis für beide Einheiten gemeinsam beträgt 1.790.000 EURO

Besichtigungen sind nach Absprache gerne möglich.

Nebenkosten beim Kauf:

  • 3,5% Grunderwerbsteuer
  • 1,1% Eintragungsgebühren (diese entfallen evtl. momentan bei Hauptwohnsitz-Nutzung)
  • 3% Maklerprovision zuzügl. 20% USt
  • ca. 1-2% Vertragserrichtungskosten zuzügl. 20% USt und evtl. Barauslagen

Ich freue mich auf Ihre Anfragen! Bitte schicken Sie diese direkt über das Kontaktformular mit Angabe Ihrer vollständigen Kontaktdaten oder direkt an bonk@immoagency.at 

Für das Haus liegt ein Energieausweis mit den Kennziffern C (HWB 72,9 kWh/m2pa und fGEE 1,39) vor.

Der Vermittler ist als Doppelmakler tätig.

Klimaanlage: JA
Kabel/SAT/TV: JA
Provision: 3% des Kaufpreises zzgl. 20% USt.


Alle Details anzeigen

KONTAKT






 

Lasse dich kostenlos vom Anbieter dieser Immobilie zurückrufen.







 


 
IMMO AGENCY GmbH
Claudia Bonk
Telefonnummer anzeigen Handy Bearbeiter: +4369919479003
 
Bitte dem Makler die FindMyHome.at - ID bekanntgeben: 5549710

Bewertungen dieses Anbieters
Qualitätsmakler
Qualitätsmakler:
2015, 2016, 2017, 2019, 2020, 2021, 2023 , 2024,
Netiquette
Freundlichkeit
75 %

BEWERTUNGEN DIESES ANBIETERS

 
Qualit�tsmakler
Qualitätsmakler
2015, 2016, 2017, 2019, 2020, 2021, 22/23 2024
Weiterempfehlung
WIRD GERNE

Freundlichkeit
BESONDERS
FREUNDLICH
Netiquette
FINDMYHOME
NETIQUETTE
Auch du kannst bewerten! 7 Tage nach deiner Anfrage erhältst du dafür von uns ein Bewertungsmail.
Alle Infos zu unseren Auszeichnungen und dem FINDMYHOME.AT Qualitätsprogramm findest du hier: Übersicht anzeigen

FINANZIERUNG
?>

Du willst wissen, wie viel dein Umzug kosten wird?

Mach gleich den kostenlosen Preisvergleich und schau, welche seriösen Anbieter in deiner Region günstig deinen Umzug organisieren


ZUM UMZUGS-VERGLEICH
-->

MYHOME BLOG
SuchAgentin auf FindMyHome.at
Unterschiedlichen Rechtsthemen, köstliche Rezepte, neueste Design-Highlights, sowie aktuelle Technik-Tools für Ihr Eigenheim.


FINDMYHOME.AT SUCHAGENTIN
SuchAgentin auf FindMyHome.at
Hallo, soll ich dir ähnliche Immobilien kostenfrei per E-Mail schicken?


ÄHNLICHE IMMOBILIEN
Aehnliche Immobilie - Vorschaubild 1

AURORA TERRA - PIONIERPROJEKT GEOTHERMIE x EINZIGARTIGES WOH... - Objektnr. 5549783

206,36 m² - 5.0 Zimmer
1500000 €
PLZ: 1190

Mehr anzeigen

Aehnliche Immobilie - Vorschaubild 2

LUXUS LEBEN AM WASSER - Winteraktion TOP HIT - WATERVIEW... - Objektnr. 5491879

199,35 m² - 6 Zimmer
1690000 €
PLZ: 1190

Mehr anzeigen

Aehnliche Immobilie - Vorschaubild 3

Wohnateliers Döbling - luxuriös Wohnen - Objektnr. 5546055


193,73 m² - 6.0 Zimmer
1549000 €
PLZ: 1190

Mehr anzeigen

Durch die Nutzung unserer Seite erklären Sie sich mit der Verwendung von Cookies zur Verbesserung Ihres Online-Erlebnisses einverstanden. Detaillierte Informationen zu diesem und weiteren Themen erhalten Sie in unserer Datenschutzerklärung.