MEIN ERGEBNIS ANPASSEN

Herbstaktion! MUST HAVE - Lebens(t)raum Erfüller im Grünen! Klimaaktiv Bronze! Ab ins Dachgeschoss / 3 Zimmer / 3 Terrassen / Viel Lebensqualität! Wärmepumpe und Solaranlage + Naturnahe Gewässer ums Eck! - Objektnr. 5549023


ökologisch beheizt
1220
Ort
68,71 m²
Fläche
3.0
Zimmer

ECKDATEN
FindMyHome.at // Externe Immobilien-ID5549023 // 287763
ImmobilienartEigentum
AnschriftKhuenweg
1220 Wien
Baujahr2025
Befeuerung
Luftwärmepumpe
Stock3
Geschosse5
Fläche68,71 m²
Terrassen3 (17,00 m²)
Zimmer3.0
Bad1
WC1
 Abstellraum
Kaufpreis:€ 414.955,00
Ratenzahlung:Finanzierungsmöglichkeiten für diese Immobilie anzeigen
Provision: 3% des Kaufpreises zzgl. 20% USt.







BESCHREIBUNG

Herbstaktion! MUST HAVE - Lebens(t)raum Erfüller im Grünen! Klimaaktiv Bronze! Ab ins Dachgeschoss / 3 Zimmer / 3 Terrassen / Viel Lebensqualität! Wärmepumpe und Solaranlage + Naturnahe Gewässer ums Eck!

Herbstaktion! Lebens(t)raum Erfüller!

Hier wartet ein Neubau-Traumprojekt auf Sie! Perfekt als Anlage als auch für Eigennutzer!

Lebenswert / Grün / Leistbar / Moderner Neubau

 

Klimaaktiv Bronze zertifiziert! Ihre Vorteile: Hohe Energieeffizienz / Erneuerbare Energieträger / Sehr gute Raumluftqualität / Einsatz ökologischer Baustoffe / Thermischer Komfort / Hohe Qualität der Bauführung / Gute Qualität der Infrastruktur / Beschleunigte Absetzung für Abnutzung (AfA) - interessant für Anleger und Investoren / Beitrag zur Klimaneutralität / Niedriger Energieverbrauch und somit niedrige Heiz- und Betriebskosten

 

30 ideal geplante Traumwohnungen mit Größen von ca. 40m² bis ca. 102m² - alle mit Balkon/Terrasse oder Garten - werden Sie verzaubern! Hier finden Sie für jedes Budget und jeden Geschmack die richtige Wohnung! 17 Garagenplätze stehen darüber hinaus für die neuen Eigentümer zur Verfügung.

Fertigstellung: Ende 2025

 

MUST HAVE - Lebens(t)raum Erfüller im Grünen! Ab ins Dachgeschoss / 3 Zimmer / 3 Terrassen / Viel Lebensqualität! Wärmepumpe und Solaranlage + Naturnahe Gewässer ums Eck!

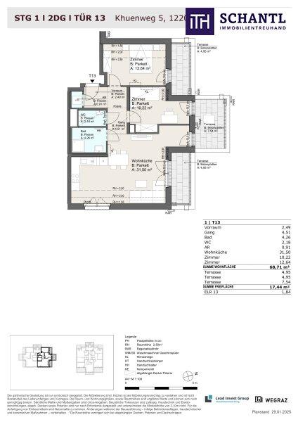
TOP 13 (Stiege 1, 2.DG):

Ihre neue Wohnung wird Sie restlos begeistern und teilt sich einen kleinen Vorraum mit Platz für eine Garderobe, ein separates WC mit Handwaschbecken, ein stylisches Badezimmer mit Dusche, einen praktischen Abstellraum mit Waschmaschinenanschluss, 2 getrennt begehbare Schlafzimmer, welche jeweils Zugang zu einer Terrasse haben, sowie ein lichtdurchflutetes Wohn-Esszimmer mit Zugang zu 2 Terrassen.

Highlights: Hochwertige Ausstattung / 3-fach isolierte Holz-Alufenster / Sonnenschutz bei allen Wohnungen (Rollladen, Raffstores bzw. Markisoletten) / Wasser-Wasser-Wärmepumpen für Heizung + Kühlung uvm.

Niedrige monatliche Kosten durch: Wasser-Wasser-Wärmepumpe und Solaranlage!

 

Wohnfläche: ca. 68,71m² + 3 Terrassen: ca. 17,44m² + Kellerabteil: ca. 1,84m²

Kaufpreis Anleger: € 414.955.- netto + UST

Kaufpreis Eigennutzer: € 460.600.-

 

Garagenplatz (optional) Anleger: € 25.945.- netto + UST

Garagenplatz (optional) Eigennutzer: € 28.800.-

Folgende Wohnungen haben bereits glückliche, neue Eigentümer: Stiege 2/TOP1, Stiege 1/TOP3, Stiege 1/TOP10, Stiege 1/TOP11, Stiege 1/TOP2, Stiege 2/TOP3, Stiege 2/TOP2, Stiege 1/TOP6

 

Fixer Baustart: September 2024

Geplante Fertigstellung laut Auskunft des Bauträgers: Dezember 2025

Die Einschätzung der Betriebskosten erfolgt noch seitens der Hausverwaltung und wird nachgereicht, geschätzt werden ca. € 2.-/m².

 

Worauf warten Sie noch Verwirklichen Sie Ihren Wohntraum jetzt!

Gerne senden wir Ihnen auch Unterlagen zu den noch verfügbaren Einheiten zu...

www.schantl-ith.at

Wir weisen darauf hin, dass zwischen dem Vermittler und dem zu vermittelnden Dritten ein familiäres oder wirtschaftliches Naheverhältnis besteht.

Der Vermittler ist als Doppelmakler tätig.


Infrastruktur / Entfernungen

Gesundheit
Arzt <250m
Apotheke <1.000m
Klinik <1.250m
Krankenhaus <1.500m

Kinder & Schulen
Schule <500m
Kindergarten <500m
Universität <2.750m
Höhere Schule <2.500m

Nahversorgung
Supermarkt <250m
Bäckerei <1.000m
Einkaufszentrum <3.500m

Sonstige
Geldautomat <750m
Bank <750m
Post <1.000m
Polizei <750m

Verkehr
Bus <250m
U-Bahn <1.250m
Straßenbahn <750m
Bahnhof <1.500m
Autobahnanschluss <2.500m

Angaben Entfernung Luftlinie / Quelle: OpenStreetMap

Klimaanlage: JA
Kabel/SAT/TV: JA
Barrierefrei: JA
Provision: 3% des Kaufpreises zzgl. 20% USt.


Alle Details anzeigen

KONTAKT






 

Lasse dich kostenlos vom Anbieter dieser Immobilie zurückrufen.







 


 
Schantl ITH Immobilientreuhand GmbH
Samir Agha-Schantl
Telefonnummer anzeigen Telefon Allgemein: +436643070009
Handy Bearbeiter: +436604701793
 
Bitte dem Makler die FindMyHome.at - ID bekanntgeben: 5549023

Bewertungen dieses Anbieters
Qualitätsmakler
Qualitätsmakler:
2015, 2016, 2018, 2019, 2020, 2021, 2023 , 2024, 2025,
Netiquette
Freundlichkeit
79 %

BEWERTUNGEN DIESES ANBIETERS

 
Qualit�tsmakler
Qualitätsmakler
2015, 2016, 2018, 2019, 2020, 2021, 22/23, 2024, 2025
Antwortzeit
ø 48h ANTWORT
Weiterempfehlung
WIRD GERNE

Freundlichkeit
BESONDERS
FREUNDLICH
Netiquette
FINDMYHOME
NETIQUETTE
Auch du kannst bewerten! 7 Tage nach deiner Anfrage erhältst du dafür von uns ein Bewertungsmail.
Alle Infos zu unseren Auszeichnungen und dem FINDMYHOME.AT Qualitätsprogramm findest du hier: Übersicht anzeigen

FINANZIERUNG
?>

Du willst wissen, wie viel dein Umzug kosten wird?

Mach gleich den kostenlosen Preisvergleich und schau, welche seriösen Anbieter in deiner Region günstig deinen Umzug organisieren


ZUM UMZUGS-VERGLEICH
-->

MYHOME BLOG
SuchAgentin auf FindMyHome.at
Unterschiedlichen Rechtsthemen, köstliche Rezepte, neueste Design-Highlights, sowie aktuelle Technik-Tools für Ihr Eigenheim.


FINDMYHOME.AT SUCHAGENTIN
SuchAgentin auf FindMyHome.at
Hallo, soll ich dir ähnliche Immobilien kostenfrei per E-Mail schicken?


ÄHNLICHE IMMOBILIEN
Aehnliche Immobilie - Vorschaubild 1

Herbstaktion! Klimaaktiv Bronze / Traum-Balkon / Traum-Wohnu... - Objektnr. 5549028

61,83 m² - 3.0 Zimmer
379640 €
PLZ: 1220

Mehr anzeigen

Aehnliche Immobilie - Vorschaubild 2

NEU! ++ 19 EIGENTUMSWOHNUNGEN ++ SCHLÜSSELFERTIG ++ URBAN + ... - Objektnr. 5438621

55,43 m² - 3.0 Zimmer
339000 €
PLZ: 1220

Mehr anzeigen

Aehnliche Immobilie - Vorschaubild 3

Herbstaktion! WOW - Lebens(t)raum Erfüller im Grünen! Ab ins... - Objektnr. 5549035

62,79 m² - 3.0 Zimmer
378757 €
PLZ: 1220

Mehr anzeigen

Durch die Nutzung unserer Seite erklären Sie sich mit der Verwendung von Cookies zur Verbesserung Ihres Online-Erlebnisses einverstanden. Detaillierte Informationen zu diesem und weiteren Themen erhalten Sie in unserer Datenschutzerklärung.