MEIN ERGEBNIS ANPASSEN

15401 - RUHELAGE EIGENGARTEN NEUBAU - Objektnr. 5548305

  • IMG_0034
  • K-DSC09396
  • K-DSC09398
  • K-DSC09400
  • IMG_0035
  • IMG_0036
  • IMG_0037
  • IMG_0038
  • IMG_0039
  • IMG_0040
  • IMG_0041
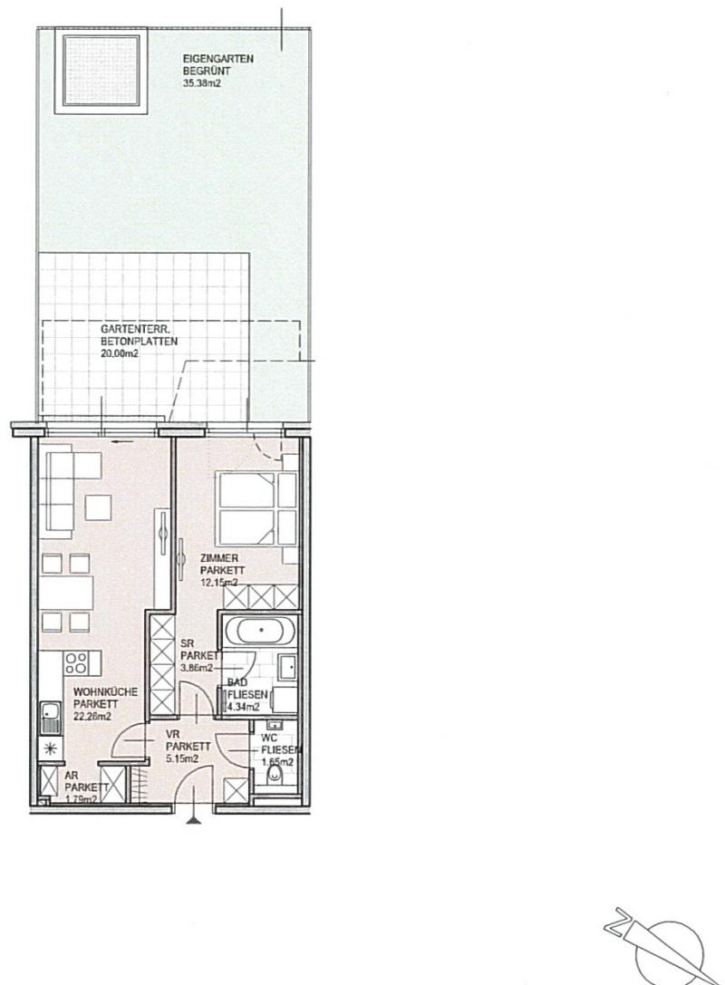
  • Plan
1140
Ort
€ 1.050,00
Gesamtkosten
51,20 m²
Fläche
2
Zimmer

ECKDATEN
FindMyHome.at // Externe Immobilien-ID5548305 // 215/15401
ImmobilienartWohnung - Miete
Anschrift1140 Wien
Baujahr2017
Liftja
KellerJa
Beziehbar abOktober 2025
Fläche51,20 m²
Gartenfläche35,38 m²
Balkon1 (20,00 m²)
Zimmer2
Bad1
WC1
Kaution:€ 4.200,00
Monatliche Gesamtkosten:€ 1.050,00




BESCHREIBUNG

15401 - RUHELAGE EIGENGARTEN NEUBAU

Wunderschöne Wohnung mit Eigengarten im 14 Bezirk


Die Wohnung befindet sich im Erdgeschoss mit 51,20 m² und ist süd-ostseitig ausgerichtet.

Sie gliedert sich in einen Vorraum, ein separates WC mit Handwaschbecken, ein Wohnzimmer mit offener Küche und großer Glasschiebetüre die auf die Terrasse und in den 35,38 m² großen Garten führt, ein Schlafzimmer, ein Badezimmer mit Wanne. Mit dem Lift erreichen Sie auch das Kellergeschoss.

Ausgestattet sind die Wohnungen mit Echtholzparkettböden, Fußbodenheizung, Anschlüsse für Telekabel und verfliesten Nassräumen.

Zu jeder Wohnung gehört ein Kellerabteil mit ca. 2,2 m²

Die monatlichen Kosten von 1.050,-- verstehen sich inkl. Betriebskosten.

Die Heizkosten und Kosten für Warmwasser werden monatlich mit 95,23 zusätzlich zur Miete vorgeschrieben.


Alle Details anzeigen

KONTAKT






 

Lasse dich kostenlos vom Anbieter dieser Immobilie zurückrufen.







 


 
Oswald H. Borger
Alexander WASTL
Telefonnummer anzeigen Telefon Allgemein: +43274235233210
 
Bitte dem Makler die FindMyHome.at - ID bekanntgeben: 5548305

Bewertungen dieses Anbieters
Qualitätsmakler
Qualitätsmakler:
2018,

BEWERTUNGEN DIESES ANBIETERS

 
Qualit�tsmakler
Qualitätsmakler
2018
Auch du kannst bewerten! 7 Tage nach deiner Anfrage erhältst du dafür von uns ein Bewertungsmail.
Alle Infos zu unseren Auszeichnungen und dem FINDMYHOME.AT Qualitätsprogramm findest du hier: Übersicht anzeigen


Du willst wissen, wie viel dein Umzug kosten wird?

Mach gleich den kostenlosen Preisvergleich und schau, welche seriösen Anbieter in deiner Region günstig deinen Umzug organisieren


ZUM UMZUGS-VERGLEICH
-->

MYHOME BLOG
SuchAgentin auf FindMyHome.at
Unterschiedlichen Rechtsthemen, köstliche Rezepte, neueste Design-Highlights, sowie aktuelle Technik-Tools für Ihr Eigenheim.


FINDMYHOME.AT SUCHAGENTIN
SuchAgentin auf FindMyHome.at
Hallo, soll ich dir ähnliche Immobilien kostenfrei per E-Mail schicken?


ÄHNLICHE IMMOBILIEN
Aehnliche Immobilie - Vorschaubild 1

RESIDENZ AM STADTRAND zum Mieten - Objektnr. 5542933


46,90 m² - 2 Zimmer
1073.18 €
PLZ: 1140

Mehr anzeigen

Aehnliche Immobilie - Vorschaubild 2

RESIDENZ AM STADTRAND zum Mieten - Objektnr. 5542946


45,53 m² - 2 Zimmer
1073.18 €
PLZ: 1140

Mehr anzeigen

Aehnliche Immobilie - Vorschaubild 3

| ZWEI ZIMMER | HÜTTELDORFER STRASSE | AB OKTOBER | NEUBAU |... - Objektnr. 5525741

53,16 m² - 2.0 Zimmer
1249 €
PLZ: 1140

Mehr anzeigen

Durch die Nutzung unserer Seite erklären Sie sich mit der Verwendung von Cookies zur Verbesserung Ihres Online-Erlebnisses einverstanden. Detaillierte Informationen zu diesem und weiteren Themen erhalten Sie in unserer Datenschutzerklärung.