MEIN ERGEBNIS ANPASSEN

3-Zimmer mit Balkon und Gemeinschaftsgarten ab OKTOBER 2025! - Objektnr. 5548223

1130
Ort
€ 1.495,81
Gesamtkosten
67,00 m²
Fläche
3.0
Zimmer

ECKDATEN
FindMyHome.at // Externe Immobilien-ID5548223 // 3804
ImmobilienartWohnung - Miete
Anschrift1130 Wien
Baujahr1990
Stock3
Beziehbar ab2025-10-01
Mietdauer5
Zimmer3.0
Bad1
WC1
Kaution:€ 4.500,00
Brutto-Miete:€ 1.495,81
Betriebskosten (inkl. MwSt):€ 152,77
Mehrwertsteuer:€ 144,57
Monatliche Gesamtkosten:€ 1.495,81
Provision: Gemäß Erstauftraggeberprinzip bezahlt der Abgeber die Provision.




BESCHREIBUNG

3-Zimmer mit Balkon und Gemeinschaftsgarten ab OKTOBER 2025!

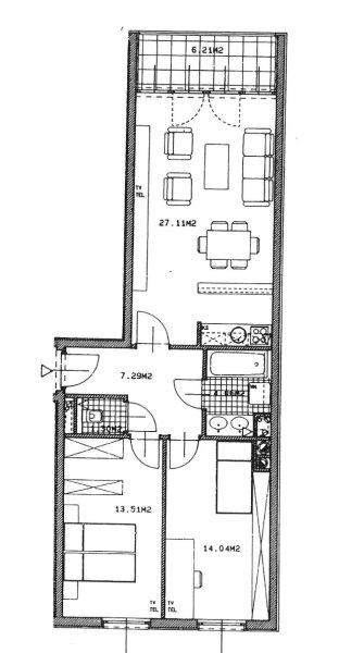
3 Zimmer Wohnung im dritten Stock mit Balkon und Gemeinschaftsgarten!

 

Beschreibung:

Die Wohnung befindet sich im Dritten Obergeschoss mit Lift im 13. Bezirk von Wien

Die knapp 67 m² große 3-Zimmer-Wohnung sucht einen neuen Nachmieter ab 01.10.2025 

 

Beim Betreten der Wohnung erwartet Sie ein geräumiges Vorzimmer, welches Sie in jegliche Räume führt! Auf der rechten Seite befindet sich das separatgelegene WC, geradeaus vom Eingang das mit einer Badewanne, Handwaschbecken und einem Waschmaschinenanschluss ausgestattete Badezimmer.

Zu Ihrer rechten Seite befinden sich die beiden separaten (Schlaf)zimmer, welche sich ebenfalls gut als Arbeits- oder Ankleidezimmer eignen! Linkerhand des Vorzimmers öffnet sich das großzügige Wohnzimmer mit integrierter Wohnküche. Von hier aus gelangen Sie ebenfalls auf den etwa 6 m² großen Balkon!

 

 

Geheizt wird in der Anlage mittels Fernwärme.

Im Haus steht Ihnen die Nutzung der Waschküche, ein Fahrrad- und ein Kinderwagenraum, ein Lift, sowie ein Gemienschaftsgarten zur Verfügung.

Bei Bedarf und Freiwerden kann auch zusätzlich ein Garagenstellplatz angemietet werden.

 

 

 

Konditionen:

Vermietet wird auf 5 Jahre ab voraussichtlich dem 01.10.2025

Kündigungsverzicht: 1 JahrKündigungsfrist: 3 Monate;

Gesamtmiete (inkl. BK, Heizkosten, Warmwasser und den anteiligen Steuern): € 1.495,81

Kaution: € 4.500 // Vertragserrichtungskosten: € 360,- // provisionsfrei für den Mieter!

 

Strom wird auf den Mieter umgemeldet.

TV und Internet sind nach Bedarf selbst an- und wieder abzumelden.

Der Abschluss einer Haushaltsversicherung wird vor dem Einzug empfohlen.

 

 

Kontakt

Bitte beachten Sie, dass wir aufgrund der Nachweispflicht gegenüber dem Eigentümer nur Anfragen mit vollständiger Angabe der Anschrift bearbeiten können. 

Wir senden Ihnen gerne weitere und detaillierte Beschreibungen, sowie Besichtigungstermine zu, sobald wir Ihre Anfrage erhalten haben.

Wir bitten Sie daher um eine schriftliche Anfrage, entweder über die jeweiligen Plattformen oder direkt per Mail an:

Weitere Informationen und alle Objekte finden Sie unter: www.pr-immobilien.at

 

Noch nichts gefunden Wir informieren Sie über geeignete Immobilienangebote noch vor allen anderen.
Legen Sie jetzt Ihren individuellen Suchagenten unter folgendem Link an. Wir schicken Ihnen passende Immobilien exklusiv vorab zu.
Suchagent anlegen - https://pr-immobilien-real-estate.service.immo/registrieren/de

Der Immobilienmakler erklärt, dass er entgegen dem in der Immobilienwirtschaft üblichen Geschäftsgebrauch des Doppelmaklers einseitig nur für den Vermieter tätig ist.


Infrastruktur / Entfernungen

Gesundheit
Arzt <500m
Apotheke <500m
Klinik <1.000m
Krankenhaus <1.500m

Kinder & Schulen
Schule <500m
Kindergarten <500m
Universität <1.500m
Höhere Schule <3.500m

Nahversorgung
Supermarkt <500m
Bäckerei <500m
Einkaufszentrum <3.000m

Sonstige
Geldautomat <500m
Bank <500m
Post <500m
Polizei <1.000m

Verkehr
Bus <500m
U-Bahn <500m
Straßenbahn <500m
Bahnhof <500m
Autobahnanschluss <4.500m

Angaben Entfernung Luftlinie / Quelle: OpenStreetMap

Klimaanlage: JA
Gartennutzung: JA
Kabel/SAT/TV: JA
Provision: Gemäß Erstauftraggeberprinzip bezahlt der Abgeber die Provision.


Alle Details anzeigen

KONTAKT






 

Lasse dich kostenlos vom Anbieter dieser Immobilie zurückrufen.







 


 
PR-IMMOBILIEN / REAL ESTATE
Marissa Stifter
Telefonnummer anzeigen Telefon Allgemein: +436765900280
Handy Bearbeiter: +436765900280
 
Bitte dem Makler die FindMyHome.at - ID bekanntgeben: 5548223

Bewertungen dieses Anbieters
Netiquette
Freundlichkeit
80 %

BEWERTUNGEN DIESES ANBIETERS

 
Antwortzeit
ø 48h ANTWORT
Weiterempfehlung
WIRD GERNE

Freundlichkeit
BESONDERS
FREUNDLICH
Netiquette
FINDMYHOME
NETIQUETTE
Auch du kannst bewerten! 7 Tage nach deiner Anfrage erhältst du dafür von uns ein Bewertungsmail.
Alle Infos zu unseren Auszeichnungen und dem FINDMYHOME.AT Qualitätsprogramm findest du hier: Übersicht anzeigen


Du willst wissen, wie viel dein Umzug kosten wird?

Mach gleich den kostenlosen Preisvergleich und schau, welche seriösen Anbieter in deiner Region günstig deinen Umzug organisieren


ZUM UMZUGS-VERGLEICH
-->

MYHOME BLOG
SuchAgentin auf FindMyHome.at
Unterschiedlichen Rechtsthemen, köstliche Rezepte, neueste Design-Highlights, sowie aktuelle Technik-Tools für Ihr Eigenheim.


FINDMYHOME.AT SUCHAGENTIN
SuchAgentin auf FindMyHome.at
Hallo, soll ich dir ähnliche Immobilien kostenfrei per E-Mail schicken?


ÄHNLICHE IMMOBILIEN
Aehnliche Immobilie - Vorschaubild 1

| 2 ZIMMER | BALKON | ST. VEIT GASSE 25 | ERSTBEZUG IN HIET... - Objektnr. 5534014

51,45 m² - 2.0 Zimmer
1199 €
PLZ: 1130

Mehr anzeigen

Aehnliche Immobilie - Vorschaubild 2

| 2 ZIMMER | BALKON | ST. VEIT GASSE 25 | ERSTBEZUG IN HIET... - Objektnr. 5500161

51,50 m² - 2.0 Zimmer
1199 €
PLZ: 1130

Mehr anzeigen

Aehnliche Immobilie - Vorschaubild 3

| 3 ZIMMER | BALKON | ST. VEIT GASSE 25 | ERSTBEZUG IN HIET... - Objektnr. 5499795

78,86 m² - 3.0 Zimmer
1739.01 €
PLZ: 1130

Mehr anzeigen

Durch die Nutzung unserer Seite erklären Sie sich mit der Verwendung von Cookies zur Verbesserung Ihres Online-Erlebnisses einverstanden. Detaillierte Informationen zu diesem und weiteren Themen erhalten Sie in unserer Datenschutzerklärung.