MEIN ERGEBNIS ANPASSEN

NÄHE AUGARTEN: 2,5-Zimmer-Altbauwohnung mit großem Gestaltungspotenzial beim Wallensteinplatz - Objektnr. 5547381

1200
Ort
63,15 m²
Fläche
2.5
Zimmer
WEITERE MEDIEN

ECKDATEN
FindMyHome.at // Externe Immobilien-ID5547381 // 16004
ImmobilienartWohnung - Eigentum
Anschrift1200 Wien
Baujahr1900
Befeuerung
Stock2
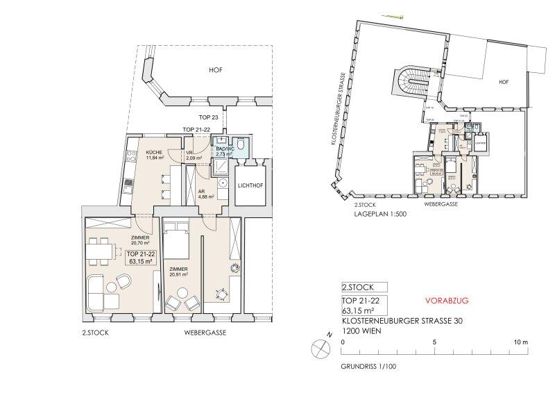
Fläche63,15 m²
Zimmer2.5
Bad1
WC1
Kaufpreis:€ 329.000,00
Ratenzahlung:Finanzierungsmöglichkeiten für diese Immobilie anzeigen
Provision: 3% des Kaufpreises zzgl. 20% USt.







BESCHREIBUNG

NÄHE AUGARTEN: 2,5-Zimmer-Altbauwohnung mit großem Gestaltungspotenzial beim Wallensteinplatz

NÄHE AUGARTEN: 2,5-Zimmer-Altbauwohnung mit großem Gestaltungspotenzial beim Wallensteinplatz

Diese charmante 2,5-Zimmerwohnung befindet sich im 2. Stock eines gepflegten, bereits renovierten Altbaus. Sie besticht durch ihre hervorragende Lage nahe Augarten, Hannovermarkt, U4-Friedensbrücke und Wallensteinplatz. Die Wohnung ist sanierungsbedürftig und bietet damit die ideale Gelegenheit, ein individuelles Zuhause nach eigenen Vorstellungen zu gestalten.

Die Zimmer sind in Richtung Webergasse (Seitenstraße von der Klosterneuburger Straße) ausgerichtet.

Besonders attraktiv: Der Verkäufer verpflichtet sich vertraglich zur Errichtung eines Liftes bis spätestens 2028.

Sanierung im Gebäude: das Wohnhaus wurde frisch gestrichen und der Eingangsbereich modernisiert. Gleichzeitig blieben die bezaubernden Altbau-Details erhalten:

  • Helles Stiegenhaus mit zahlreichen Fenstern

  • Originale Mosaikfliesen und kunstvolle Stiegenhausgeländer

  • Bassena auf den Gängen, die den historischen Charme unterstreichen

  • Digitales Schwarzes Brett zur einfachen Kommunikation im Haus

  • Einbau eines Liftes: der Verkäufer verpflichtet sich vertraglich zur Errichtung eines Lifts spätestens bis 2028

 

Perfekte Lage urban & naturnah zugleich: Die Wohnung überzeugt nicht nur durch ihre Ausstattung, sondern auch durch ihre ausgezeichnete Lage. Der wunderschöne Augarten ist nur wenige Gehminuten entfernt und lädt mit seinen weitläufigen Grünflächen, Kinderspielplätzen, Cafés, Lokalen und Hundezonen zum Spazieren, Entspannen oder Sport treiben ein. Auch der beliebte Hannovermarkt ist gleich um die Ecke und bietet frische Lebensmittel sowie kulinarische Spezialitäten.

Auf der anderen Seite des Donaukanals befindet sich der 9. Bezirk mit seinem neu renovierten Franz-Josefs-Bahnhof, wo Geschäfte wie zB Billa und Bipa auch sonntags geöffnet haben. Zudem befinden sich zahlreiche Einkaufsmöglichkeiten des täglichen Bedarfs direkt gegenüber auf der Klosterneuburger Straße sowie auf der Wallensteinstraße.

Die Anbindung an den öffentlichen Verkehr ist hervorragend (siehe unten) und für die Radfahrer bietet der Donaukanal-Radweg den direkten Weg in Richtung Stadt oder ins Grüne Richtung Klosterneuburg. 

 

Öffentliche Verkehrsmittel: 

  • U-Bahnlinie: U4 "Friedensbrücke" (6 Gehminuten)
  • Buslinien: 5B
  • Straßenbahnlinien: 1, 2, 5, 31, 33, O

 

Nebenkosten: 

Grundbucheintragung: 1,1% d.KP. 

Grunderwerbssteuer: 3,5% d.KP.

Maklerprovision: 3% d.KP. + 20% USt. 

Kaufvertragshonorar: 1,2% zzgl. Barauslagen und USt. | Die Errichtung und Durchführung des Kaufvertrages erfolgt durch die Kanzlei Tiefenthaler Gnesda Rechtsanwälte GmbH.

 

Bei ernsthaftem Interesse stellen wir Ihnen selbstverständlich gerne weitere Unterlagen zur Verfügung, darunter beispielsweise:

  • Grundbuchsauszug

  • Wohnungseigentumsvertrag

  • Nutzwertgutachten

  • Protokolle von Eigentümerversammlungen (sofern vorhanden) u. v. m.

 

Unser Rundum-Service für Sie:
Sollten Sie sich für diese Immobilie entscheiden, begleiten wir Sie kompetent durch den gesamten Kaufprozess beginnend beim Kaufanbot über die Abstimmung individueller Wünsche und die Vertragsunterzeichnung bis hin zur Übergabe der Immobilie. Auch bei organisatorischen Schritten wie der Ummeldung von Strom, Gas oder Fernwärme stehen wir Ihnen unterstützend zur Seite. Selbstverständlich stellen wir Ihnen dafür alle notwendigen Formulare und Unterlagen bereit.

Darüber hinaus helfen wir Ihnen gerne bei der Finanzierung Ihrer Wunschimmobilie und erarbeiten gemeinsam mit unseren erfahrenen Finanzierungspartnern optimale Lösungen zu attraktiven Konditionen.

 

Sie möchten Ihre Immobilie verkaufen
Dann sind Sie bei uns bestens aufgehoben! Wir bieten Ihnen eine unverbindliche und kostenfreie Erstberatung inklusive fundierter Bewertung Ihrer Immobilie sowie einer transparenten Darstellung aller relevanten Faktoren.

 

Maklervereinbarung: Wir ersuchen um Verständnis, dass wir bei Anfragen zur Objektadresse, bzw. Besichtigungstermin  aufgrund neuer gesetzlicher Bestimmungen Unterlagen erst dann zusenden können, wenn Sie vorab bestätigen, dass Sie unser sofortiges Tätigwerden wünschen und über Ihre Rücktrittsrechte aufgeklärt wurden. Sie bekommen nach Ihrer schriftlichen Anfrage mit vollständiger Angabe des Namens, Anschrift und Telefonnummer ein Email, in dem Sie diese Punkte bestätigen müssen.


Haftungsausschluss:  Wir weisen darauf hin, dass sämtliche Daten im vorliegenden Angebot sowie die von unserem Büro an Sie weitergegebenen Auskünfte, vom Eigentümer der Immobilie zur Verfügung gestellt wurden. Ebenso sind Informationen von Dritten (z.B. behördliche Informationen) eingeholt worden, auch für diese können wir unsererseits keinerlei Haftung für deren uneingeschränkte Richtigkeit übernehmen.

Wir weisen darauf hin, dass zwischen dem Vermittler und dem zu vermittelnden Dritten ein familiäres oder wirtschaftliches Naheverhältnis besteht.


Infrastruktur / Entfernungen

Gesundheit
Arzt <500m
Apotheke <500m
Klinik <1.000m
Krankenhaus <1.500m

Kinder & Schulen
Schule <500m
Kindergarten <500m
Universität <1.000m
Höhere Schule <1.000m

Nahversorgung
Supermarkt <500m
Bäckerei <500m
Einkaufszentrum <1.500m

Sonstige
Geldautomat <500m
Bank <500m
Post <500m
Polizei <500m

Verkehr
Bus <500m
U-Bahn <500m
Straßenbahn <500m
Bahnhof <500m
Autobahnanschluss <1.500m

Angaben Entfernung Luftlinie / Quelle: OpenStreetMap

Provision: 3% des Kaufpreises zzgl. 20% USt.


Alle Details anzeigen

KONTAKT






 

Lasse dich kostenlos vom Anbieter dieser Immobilie zurückrufen.







 


 
Moritz Immobilien
Anita Ochsenhofer
Telefonnummer anzeigen Telefon Allgemein: +4319971693
Handy Bearbeiter: +436607413324
 
Bitte dem Makler die FindMyHome.at - ID bekanntgeben: 5547381

Bewertungen dieses Anbieters
Netiquette
Freundlichkeit
100 %

BEWERTUNGEN DIESES ANBIETERS

 
Weiterempfehlung
WIRD SEHR GERNE

Freundlichkeit
BESONDERS
FREUNDLICH
Netiquette
FINDMYHOME
NETIQUETTE
Auch du kannst bewerten! 7 Tage nach deiner Anfrage erhältst du dafür von uns ein Bewertungsmail.
Alle Infos zu unseren Auszeichnungen und dem FINDMYHOME.AT Qualitätsprogramm findest du hier: Übersicht anzeigen

FINANZIERUNG
?>

Du willst wissen, wie viel dein Umzug kosten wird?

Mach gleich den kostenlosen Preisvergleich und schau, welche seriösen Anbieter in deiner Region günstig deinen Umzug organisieren


ZUM UMZUGS-VERGLEICH
-->

MYHOME BLOG
SuchAgentin auf FindMyHome.at
Unterschiedlichen Rechtsthemen, köstliche Rezepte, neueste Design-Highlights, sowie aktuelle Technik-Tools für Ihr Eigenheim.


FINDMYHOME.AT SUCHAGENTIN
SuchAgentin auf FindMyHome.at
Hallo, soll ich dir ähnliche Immobilien kostenfrei per E-Mail schicken?


ÄHNLICHE IMMOBILIEN
Aehnliche Immobilie - Vorschaubild 1

**Hannovermarkt** Renovation Opportunity: 3-Room Period Apar... - Objektnr. 5491359

68,00 m² - 3.0 Zimmer
268900 €
PLZ: 1200

Mehr anzeigen

Aehnliche Immobilie - Vorschaubild 2

**Hannovermarkt** Sanierungsbedürftige 3-Zimmer Altbauwohnun... - Objektnr. 5445407

67,16 m² - 3.0 Zimmer
269000 €
PLZ: 1200

Mehr anzeigen

Aehnliche Immobilie - Vorschaubild 3

**ALTBAU-HIGHLIGHT: Frisch saniert, Erstbezug & herrlich ruh... - Objektnr. 5645269

56,00 m² - 2 Zimmer
299000 €
PLZ: 1200

Mehr anzeigen