MEIN ERGEBNIS ANPASSEN

IHRE CHANCE FÜR 10,. FORTUNA-PARK-NÄHE! 3-ZIMMER-WHG, LOGGIA, GARAGE - Objektnr. 5546215

virtuell besichtigen
  • 1100 Wien Fortuna-Pa
  • Kitchen
  • Livingroom
  • Loggia
  • Foyer
  • Walk-in Closet
  • Bathroom
  • Bedroom 2
  • Bedroom 1
  • Electric System
  • Half Garage
  • Plan
  • Plan_1
  • Fortuna-Park-2
  • Fortuna-Park-1
  • Dog-Zone
  • Supermarket
  • Bus 7A
  • Sicher. Seriös. Schn
  • Nr1 BPS 01
1100
Ort
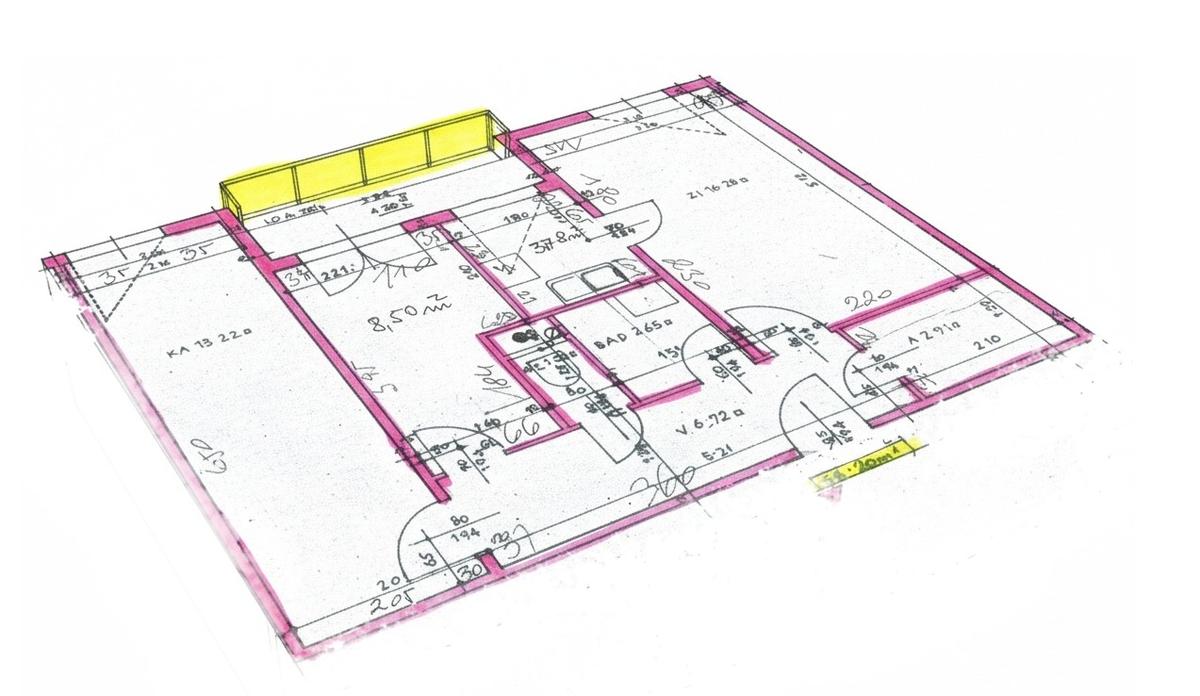
54,00 m²
Fläche
3
Zimmer
WEITERE MEDIEN

Virtuelle Rundgänge


ECKDATEN
FindMyHome.at // Externe Immobilien-ID5546215 // 128/00947
ImmobilienartWohnung - Eigentum
AnschriftFORTUNAPARK NÄHE
1100 WIEN
NäheFORTUNAPARK, U1, MATZLEINSDORFERPLATZ
Liftja
Garagenplätze1
KellerJa
Beziehbar absofort
Fläche54,00 m²
Zimmer3
Bad1
WC1
Kaufpreis:€ 220.000,00
Ratenzahlung:Finanzierungsmöglichkeiten für diese Immobilie anzeigen
Provision: 3 %







BESCHREIBUNG

IHRE CHANCE FÜR 10,. FORTUNA-PARK-NÄHE! 3-ZIMMER-WHG, LOGGIA, GARAGE

freundliche ca. 54 m² Eigentums-Wohnung
+ 4,20 m² Loggia extra
+ halber Doppelgaragenplatz
+ Ruhelage
+ genial clevere Raumaufteilung: 3-Zimmer-Wohnung!
in sehr praktischer Lage Nähe Fortunapark, Matzleinsdorferplatz, U1 und Hauptbahnhof
Auch die Fußgängerzone Favoritenstrasse samt U1 ist leicht erreichbar

Das Wohnzimmer und die 2 Schlafzimmer haben jeweils eine gute Größe
mit viel Stauraum(begehbare Garderobe extra) - also Platz für alles.
Eine separate Küche offen zum Wohnzimmer ist der ideale Treffpunkt für alle.

Alles leicht erreichbar:
mehrere große Supermärkte und viele weitere Geschäfte wie BILLA, Penny-Markt,
sowie Cafes und gute Restaurants erreichen Sie innerhalb weniger Gehminuten.
Auch die Fussgängerzone Favoritenstrasse lädt zu ausgedehnten Spaziergängen ein.

sympathische 3-Raum-Eigentums-Wohnung

in sehr gut erreichbarer City-Lage

Diese freundliche ca. 54 m²-Wohnung mit extra 4,20 m² Loggia, also gesamt 58,20 m²,
hat eine sehr angenehme Raum-Aufteilung.

+ zentrales Vorzimmer
+ separate Küche
+ Fliesen-Bad mit Wanne samt integrierter Dusche
+ extra WC
+ begehbare Garderobe
+ 2 x Schlaf-Zimmer
+ 1 x Wohnzimmer
+ Loggia
+ 1 x Kellerabteil als Zubehör
+ 1 Auto-Stellplatz in halber Doppelgarage - Wohnungseigentum mit Benutzungsvereinbarung
+ die Doppelgarage ist ein Wohnungseigentumsobjekt, wovon ein halber Anteil mit einer Eigentümergemeinschaft mit dem derzeitigen anderen Halb-Anteil- Eigentümer mit Benützungsregelung(für die linke Doppelgaragenhälfte) erworben wird
+ der Kaufpreis für die halbe Doppelgarage ist im Gesamtkaufpreis bereits enthalten!

monatliche Vorschreibung mit Betriebskosten und mit Instandhaltung nur € 281,-
Heizung und inklusive Warmwasser ist alles zusammen ca. € 72,-
Hauszentralheizung für Heizung und Warmwasser
- also Sie brauchen keine Therme, kein Thermenser-Service, keinen Rauchfangkehrer bezahlen
HWB: 99 kWh/m².a fGee 4,93
Das Haus hat per September 2025 ein Guthaben von ca. € 324.257,--.
Gemäß Hausverwaltung sind derzeit keine größeren Sanierungen geplant.

Diese freundliche Wohnung befindet sich im guten 1. Stock - mit dem Lift erreichbar.

angenehme Infrastruktur -
Buslinie 7A( zur U1- Reumannplatz),
Tram-Linie 1 (in ca. 6 Gehminuten),
Schnellbahn und Straßenbahnen Matzleinsdorferplatz,
U-Bahn U1 Reumannplatz,
mehrere Straßenbahn- und Autobus-Linien,
alles da - in der nächsten Umgebung
finden Sie zahlreiche Einkaufsmöglichkeiten,
Konditorei, Cafes und Restaurants in der Nähe

Für fröhliche Freizeit stehen der Fortuna-Park mit separater Hundezone
(der Fortuna-Park selbst ist also hundefrei),
die Therme Oberlaa, Kaffee-Konditorei Oberlaa
und Heurige in Oberlaa in leichter Erreichbarkeit zur Verfügung.

Den besten Eindruck von dieser günstigen Immobilie
bekommen Sie sicherlich bei einer Besichtigung vor Ort.

Die Daten beruhen größtenteils auf Angaben
der Verkäuferseite und sind daher
unsererseits ohne Haftung für die Vollständigkeit,
Richtigkeit und Aktualität. Irrtümer vorbehalten.

Den besten Eindruck von dieser schönen Immobilie
bekommen Sie sicherlich bei einer Besichtigung vor Ort.

Ich freue mich über Ihre Kontaktaufnahme!
Rufen Sie bitte Tel. 0676 503 73 30
Walter Fichtinger CEO Nr1-IMMOMAX

Bitte beachten Sie, dass wir aufgrund der Nachweispflicht gegenüber der Eigentümerseite
nur Anfragen mit vollständigem Namen, Anschrift und Telefonnummer bearbeiten können.
Ihre Kontaktdaten werden vertraulich gemäß DSGVO behandelt und mit niemanden zu Werbezwecken geteilt.

P.S.:
Wenn Sie ein Haus, Grundstück oder eine
Eigentumswohnung zu verkaufen haben
bzw. wissen wer eine solche Immobilie
in diesem Gebiet verkauft, kontaktieren Sie uns bitte
- vorgemerkte Interessenten sind verfügbar.
Wir freuen uns auf Ihren Anruf !
Tel. +43 1 503 73 30 Walter Fichtinger CEO Nr1-IMMOMAX
Provision: 3 %


Alle Details anzeigen

KONTAKT






 

Lasse dich kostenlos vom Anbieter dieser Immobilie zurückrufen.







 


 
Nr1-IMMOMAX
Walter Fichtinger CEO Nr1-IMMOMAX
Telefonnummer anzeigen Telefon Allgemein: +4315037330
Handy Bearbeiter: +436765037330
 
Bitte dem Makler die FindMyHome.at - ID bekanntgeben: 5546215

Bewertungen dieses Anbieters
Freundlichkeit

BEWERTUNGEN DIESES ANBIETERS

 
Freundlichkeit
BESONDERS
FREUNDLICH
Auch du kannst bewerten! 7 Tage nach deiner Anfrage erhältst du dafür von uns ein Bewertungsmail.
Alle Infos zu unseren Auszeichnungen und dem FINDMYHOME.AT Qualitätsprogramm findest du hier: Übersicht anzeigen

FINANZIERUNG
?>

Du willst wissen, wie viel dein Umzug kosten wird?

Mach gleich den kostenlosen Preisvergleich und schau, welche seriösen Anbieter in deiner Region günstig deinen Umzug organisieren


ZUM UMZUGS-VERGLEICH
-->

MYHOME BLOG
SuchAgentin auf FindMyHome.at
Unterschiedlichen Rechtsthemen, köstliche Rezepte, neueste Design-Highlights, sowie aktuelle Technik-Tools für Ihr Eigenheim.


FINDMYHOME.AT SUCHAGENTIN
SuchAgentin auf FindMyHome.at
Hallo, soll ich dir ähnliche Immobilien kostenfrei per E-Mail schicken?


ÄHNLICHE IMMOBILIEN
Aehnliche Immobilie - Vorschaubild 1

* MIT FREIFLÄCHE * EG * NÄHE KURPARK OBERLAA * GARTENWOHNUNG... - Objektnr. 4786765

53,74 m² - 2.0 Zimmer
239000 €
PLZ: 1100

Mehr anzeigen

Aehnliche Immobilie - Vorschaubild 2

Erstklassig - 2-Zimmer-Erstbezug im stilvollen Altbau... - Objektnr. 5545599

46,94 m² - 2.0 Zimmer
239000 €
PLZ: 1100

Mehr anzeigen

Aehnliche Immobilie - Vorschaubild 3

"Eigentumswohnung mit Loggia ? Zur Spinnerin, 1100 Wien... - Objektnr. 5548790

61,75 m² - 2.0 Zimmer
199000 €
PLZ: 1100

Mehr anzeigen

Durch die Nutzung unserer Seite erklären Sie sich mit der Verwendung von Cookies zur Verbesserung Ihres Online-Erlebnisses einverstanden. Detaillierte Informationen zu diesem und weiteren Themen erhalten Sie in unserer Datenschutzerklärung.