MEIN ERGEBNIS ANPASSEN

Seltene Gelegenheit am WOLFERSBERG - Einfamilienhaus mit großem Garten, Sonne & Potenzial - PROVISIONSFREI - Objektnr. 5546053

1140
Ort
164,39 m²
Fläche

ECKDATEN
FindMyHome.at // Externe Immobilien-ID5546053 // 547
ImmobilienartHaus - Eigentum
AnschriftAbraham-a-Sancta-Clara-Straße
1140 Wien
Baujahr1970
Befeuerung
Geschosse3
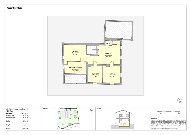
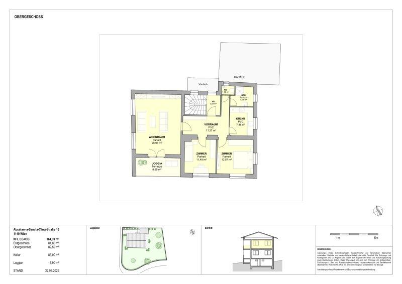
Fläche164,39 m²
Grundfläche896,00 m²
Kaufpreis:€ 990.000,00
Ratenzahlung:Finanzierungsmöglichkeiten für diese Immobilie anzeigen
Provision: Provision bezahlt der Abgeber.







BESCHREIBUNG

Seltene Gelegenheit am WOLFERSBERG - Einfamilienhaus mit großem Garten, Sonne & Potenzial - PROVISIONSFREI

Sonnige Ruhelage, grüne Nachbarschaft und reichlich Platz für eigene Ideen: Am begehrten Wolfersberg wartet ein klassisches Einfamilienhaus (Baujahr 1970) mit großem Garten darauf, neu gedacht zu werden für Familien, zwei Generationen oder Wohnen & Arbeiten unter einem Dach.

Die südseitige Ausrichtung sorgt den ganzen Tag über für helles, freundliches Wohnlicht und eine schöne Aussicht. Das renovierungsbedürftige Haus liegt ruhig auf einem sonnigen Südhang. Das Grundstück umfasst laut Grundbuch rund 900 m² und verfügt über eine PKW-Garage.

Garten & Außenbereich

Der großzügige, grüne Garten mit regionaler Bepflanzung und teils älterem Baumbestand bietet vielfältige Möglichkeiten vom Spielbereich über Gemüsebeete bis hin zur künftigen Pool-Oase. Hobbygärtner:innen finden hier ihr Paradies, Freiraum-Fans ebenso.

Raumaufteilung & Nutzungsmöglichkeiten

Die Immobilie bietet zwei nahezu identisch geschnittene Wohnebenen ideal für größere Familien, zwei Generationen oder Wohnen & Arbeiten unter einem Dach.
Auch der Keller lässt sich dank seiner Lage und Lichtverhältnisse hervorragend für Homeoffice, Hobbys, Fitness oder Wellness nutzen.
Die Garage bietet Platz für ein Auto plus ein zusätzliches kleineres Fahrzeug; zusätzlicher Stauraum ist vorhanden.

Flächen im Überblick

  • Wohnnutzfläche: ca. 164 m²

  • Loggien: ca. 17,90 m²

  • Keller: ca. 83 m²

  • Garage: ca. 23,31 m²

Aufteilung je Wohnebene

  • 2 Schlafzimmer

  • Großzügiger Wohnraum mit direktem Ausgang auf die Loggia

  • Küche

  • Badezimmer und separates WC

Der durchdachte Grundriss ermöglicht bei Bedarf eine Teilung in zwei Wohneinheiten flexibel und zukunftssicher.

Potenzial & Optionen

  • Erweiterung gemäß Bebauungsbestimmungen möglich (eine Umbauvariante wurde vom Verkäufer bereits ausgearbeitet).

  • Die bebaute Fläche darf 150m² betragen.

Ausstattung & Technik

  • Pflegeleichte Böden: Echtholzparkett, Melan und keramische Beläge

  • Gas-Zentralheizung mit Radiatoren

  • Versorgungsanschlüsse: Strom, Gas, Wasser, Kanal

 

Ein Haus mit Geschichte und Zukunft lassen Sie Ihrer Fantasie freien Lauf und gestalten Sie Ihre persönliche Wohlfühloase am Wolfersberg.

 

Kontakt & Besichtigung
Wir von Rechberger Immobilien freuen uns, Ihnen dieses Juwel persönlich präsentieren zu dürfen!
E-Mail: Anja Rechberger ar@rechbergerimmobilien.at
Telefon: +43 (0) 699 111 60 848

Diese Immobilie wird provisionsfrei für den/die Käufer:in angeboten. 

 


Infrastruktur / Entfernungen

Gesundheit
Arzt <1.750m
Apotheke <1.000m
Klinik <3.500m
Krankenhaus <2.500m

Kinder & Schulen
Schule <750m
Kindergarten <1.250m
Universität <1.000m
Höhere Schule <6.000m

Nahversorgung
Supermarkt <750m
Bäckerei <1.250m
Einkaufszentrum <1.750m

Sonstige
Geldautomat <1.500m
Bank <1.500m
Post <1.750m
Polizei <1.500m

Verkehr
Bus <250m
Straßenbahn <1.500m
U-Bahn <2.000m
Bahnhof <750m
Autobahnanschluss <1.500m

Angaben Entfernung Luftlinie / Quelle: OpenStreetMap

Provision: Provision bezahlt der Abgeber.


Alle Details anzeigen

KONTAKT






 

Lasse dich kostenlos vom Anbieter dieser Immobilie zurückrufen.







 


 
Rechberger Immobilien Vermarktungs GmbH
Anja Rechberger
Telefonnummer anzeigen Telefon Allgemein: +4318900614620
Handy Bearbeiter: +4369911160848
 
Bitte dem Makler die FindMyHome.at - ID bekanntgeben: 5546053

Bewertungen dieses Anbieters
Netiquette

BEWERTUNGEN DIESES ANBIETERS

 
Netiquette
FINDMYHOME.AT
NETIQUETTE
Auch du kannst bewerten! 7 Tage nach deiner Anfrage erhältst du dafür von uns ein Bewertungsmail.
Alle Infos zu unseren Auszeichnungen und dem FINDMYHOME.AT Qualitätsprogramm findest du hier: Übersicht anzeigen

FINANZIERUNG
?>

Du willst wissen, wie viel dein Umzug kosten wird?

Mach gleich den kostenlosen Preisvergleich und schau, welche seriösen Anbieter in deiner Region günstig deinen Umzug organisieren


ZUM UMZUGS-VERGLEICH
-->

MYHOME BLOG
SuchAgentin auf FindMyHome.at
Unterschiedlichen Rechtsthemen, köstliche Rezepte, neueste Design-Highlights, sowie aktuelle Technik-Tools für Ihr Eigenheim.


FINDMYHOME.AT SUCHAGENTIN
SuchAgentin auf FindMyHome.at
Hallo, soll ich dir ähnliche Immobilien kostenfrei per E-Mail schicken?


ÄHNLICHE IMMOBILIEN
Aehnliche Immobilie - Vorschaubild 1

Satzberg: Aussichtslage mit Traumausblick - Objektnr. 5398495


148,00 m² - 5.0 Zimmer
850000 €
PLZ: 1140

Mehr anzeigen

Aehnliche Immobilie - Vorschaubild 2

Traditionelles Wienerwaldhaus in Aussichtslage auf der Sophi... - Objektnr. 5345212

157,00 m² - 6.0 Zimmer
950000 €
PLZ: 1140

Mehr anzeigen

Aehnliche Immobilie - Vorschaubild 3

Nachhaltiges Wohnen am Park - Ihr neues Zuhause - Objektnr. 5541952

147,39 m² - 4.5 Zimmer
953800 €
PLZ: 1140

Mehr anzeigen

Durch die Nutzung unserer Seite erklären Sie sich mit der Verwendung von Cookies zur Verbesserung Ihres Online-Erlebnisses einverstanden. Detaillierte Informationen zu diesem und weiteren Themen erhalten Sie in unserer Datenschutzerklärung.