MEIN ERGEBNIS ANPASSEN

Am Langen Felde 24 - Bezugsfertige Vorsorgewohnungen in Kagran - Objektnr. 5545289


ökologisch beheizt
1220
Ort
62,89 m²
Fläche
2.0
Zimmer
WEITERE MEDIEN

ECKDATEN
FindMyHome.at // Externe Immobilien-ID5545289 // 15982
ImmobilienartWohnung - Eigentum
Anschrift1220 Wien
Baujahr2024
Befeuerung
Fernwärme
Stock2
Geschosse4
Zimmer2.0
Bad1
WC1
Kaufpreis:€ 363.600,00
Ratenzahlung:Finanzierungsmöglichkeiten für diese Immobilie anzeigen
Provision: Provision bezahlt der Abgeber.







BESCHREIBUNG

Am Langen Felde 24 - Bezugsfertige Vorsorgewohnungen in Kagran

Wohnen in Kagran Am Langen Felde 24, 1220 Wien

Bezugsfertige Vorsorgewohnungen in moderner Wohnanlage

Mit dem Projekt Am Langen Felde 24 entstand in Kagran ein hochwertiges Neubauensemble, das urbanes Wohnen mit modernem Komfort und nachhaltiger Bauweise verbindet. Die Anlage umfasst insgesamt rund 86 Wohneinheiten auf ca. 4.866 m² Wohnnutzfläche, ergänzt durch 48 Tiefgaragenstellplätze, großzügige Grünflächen und attraktive Gemeinschaftsbereiche.

Die Wohnungen wurden im Jahr 2023 fertiggestellt und sind ab sofort bezugsfertig. Im Vordergrund steht ein durchdachtes Konzept, das kompakte 2-Zimmer-Wohnungen ideal für Anleger:innen mit großzügigeren Familienwohnungen kombiniert. Jede Einheit verfügt über eine private Freifläche wie Balkon, Terrasse, Loggia oder Eigengarten.

Ausstattung & Highlights:

  • Moderne Einbauküchen mit Siemens-Geräten

  • Eichenparkettböden in allen Wohnräumen, großformatige Fliesen in den Sanitärbereichen

  • Fußbodenheizung über Fernwärme, im Bad zusätzlicher Handtuchheizkörper

  • 3-fach verglaste Fenster mit elektrischem Sonnenschutz

  • Wohnungseingangstüren der Widerstandsklasse RC3

  • Photovoltaikanlage für Allgemeinflächen

  • Vorbereitung für E-Ladestationen in der Tiefgarage

  • Barrierefreie Erschließung aller Ebenen

Nachhaltigkeit & Wohnqualität:
Die Anlage überzeugt mit energieeffizienter Bauweise (HWB 24,527,9 kWh/m²a), begrünten Dachflächen, Photovoltaik sowie einem attraktiven Freiraumkonzept mit Spielplatz und Aufenthaltszonen im Grünen.

Lage & Infrastruktur:
Die Adresse Am Langen Felde 24 punktet mit urbaner Infrastruktur und exzellenter Verkehrsanbindung:

  • U1 Kagraner Platz in ca. 4 Gehminuten

  • Straßenbahn 26 und Buslinien 22A & 24A in unmittelbarer Nähe

  • Donauzentrum in ca. 7 Minuten erreichbar

  • Alte Donau, Blumengärten Hirschstetten und Lobau als nahegelegene Erholungsräume

Damit verbindet das Projekt kurze Wege ins Zentrum mit hoher Freizeit- und Lebensqualität im Grünen.

 

Nebenkosten: 

Grundbucheintragung: 1,1% d.KP. 

Grunderwerbssteuer: 3,5% d.KP.

Maklerprovision: Provisionsfrei für den Käufer

Kaufvertragshonorar: 1,5% zzgl. Barauslagen und USt. | Die Errichtung und Durchführung des Kaufvertrages erfolgt durch pwc Legal Österreich

 

Maklervereinbarung: Wir ersuchen um Verständnis, dass wir bei Anfragen zur Objektadresse, bzw. Besichtigungstermin  aufgrund neuer gesetzlicher Bestimmungen Unterlagen erst dann zusenden können, wenn Sie vorab bestätigen, dass Sie unser sofortiges Tätigwerden wünschen und über Ihre Rücktrittsrechte aufgeklärt wurden. Sie bekommen nach Ihrer schriftlichen Anfrage mit vollständiger Angabe des Namens, Anschrift und Telefonnummer ein Email, in dem Sie diese Punkte bestätigen müssen.


Haftungsausschluss:  Wir weisen darauf hin, dass sämtliche Daten im vorliegenden Angebot sowie die von unserem Büro an Sie weitergegebenen Auskünfte, vom Eigentümer der Immobilie zur Verfügung gestellt wurden. Ebenso sind Informationen von Dritten (z.B. behördliche Informationen) eingeholt worden, auch für diese können wir unsererseits keinerlei Haftung für deren uneingeschränkte Richtigkeit übernehmen.

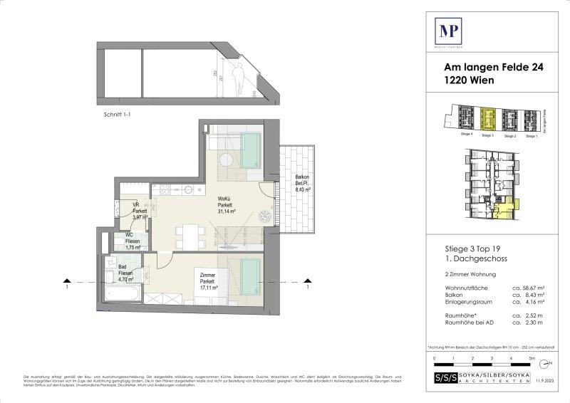
2-Zimmer-Dachgeschosswohnung mit Balkon in 1220 Wien

Diese einladende 2-Zimmer-Wohnung befindet sich im 1. Dachgeschoss des Projekts Am Langen Felde 24 in Kagran und überzeugt durch ihre helle Wohnküche, eine durchdachte Raumaufteilung sowie einen großzügigen Balkon.

Wohnungsdetails:

  • Wohnnutzfläche: ca. 58,67 m²

  • Balkon: ca. 8,43 m²

  • Einlagerungsraum: ca. 4,16 m²

  • Raumhöhe: ca. 2,52 m (teilweise Dachschrägen mit Verlauf 10 cm 252 cm)

Raumaufteilung:

  • Vorraum (ca. 3,97 m²) kompakt und einladend

  • Wohnküche (ca. 31,14 m²) großzügiger Lebensmittelpunkt mit Zugang zum Balkon

  • Zimmer (ca. 17,11 m²) hell und ruhig gelegen, ideal als Schlafzimmer

  • Badezimmer (ca. 4,70 m²) modern ausgestattet mit Badewanne und Waschmaschinenanschluss

  • Separates WC (ca. 1,75 m²) praktisch und komfortabel

  • Gang (ca. 3,18 m²) verbindet die Räume funktional

  • Balkon (ca. 8,43 m²) großzügige Freifläche für entspannte Stunden im Freien

Ausstattung:

Die Wohnung ist mit hochwertigen Parkettböden in den Wohnräumen, modernen Fliesen in den Nassbereichen sowie zeitgemäßer Haustechnik ausgestattet. Großflächige Fensterflächen mit Sonnenschutz sorgen für ein helles, freundliches Wohngefühl. Das Gebäude verfügt zusätzlich über Fahrradabstellplätze, Kinderwagenräume und ein begrüntes Flachdach.

Kaufpreis:

  • Wohnung: € 363.600 (für Anleger zzgl. 20 % USt)

  • Tiefgaragenstellplatz: € 28.500 (optional erwerbbar, für Anleger zzgl. 20 % USt)

Lage:

Das Projekt Am Langen Felde 24 liegt im beliebten Stadtteil Kagran (22. Bezirk) und verbindet urbane Infrastruktur mit naturnaher Erholung. Nahversorger, Schulen, Kindergärten sowie zahlreiche Freizeitmöglichkeiten sind fußläufig erreichbar. Durch die sehr gute Anbindung an das öffentliche Verkehrsnetz (U-Bahn, Straßenbahn und Bus) ist die Wiener Innenstadt bequem und rasch erreichbar.

 

Wir weisen darauf hin, dass zwischen dem Vermittler und dem zu vermittelnden Dritten ein familiäres oder wirtschaftliches Naheverhältnis besteht.

Der Vermittler ist als Doppelmakler tätig.


Infrastruktur / Entfernungen

Gesundheit
Arzt <500m
Apotheke <500m
Klinik <2.500m
Krankenhaus <4.000m

Kinder & Schulen
Schule <500m
Kindergarten <500m
Universität <1.500m
Höhere Schule <500m

Nahversorgung
Supermarkt <500m
Bäckerei <500m
Einkaufszentrum <1.500m

Sonstige
Geldautomat <500m
Bank <500m
Post <500m
Polizei <1.500m

Verkehr
Bus <500m
U-Bahn <500m
Straßenbahn <500m
Bahnhof <500m
Autobahnanschluss <1.500m

Angaben Entfernung Luftlinie / Quelle: OpenStreetMap

Provision: Provision bezahlt der Abgeber.


Alle Details anzeigen

KONTAKT






 

Lasse dich kostenlos vom Anbieter dieser Immobilie zurückrufen.







 


 
Moritz Immobilien
Nicolas Büttner
Telefonnummer anzeigen Handy Bearbeiter: +436606365858
 
Bitte dem Makler die FindMyHome.at - ID bekanntgeben: 5545289

Bewertungen dieses Anbieters
Netiquette

BEWERTUNGEN DIESES ANBIETERS

 
Netiquette
FINDMYHOME.AT
NETIQUETTE
Auch du kannst bewerten! 7 Tage nach deiner Anfrage erhältst du dafür von uns ein Bewertungsmail.
Alle Infos zu unseren Auszeichnungen und dem FINDMYHOME.AT Qualitätsprogramm findest du hier: Übersicht anzeigen

FINANZIERUNG
?>

Du willst wissen, wie viel dein Umzug kosten wird?

Mach gleich den kostenlosen Preisvergleich und schau, welche seriösen Anbieter in deiner Region günstig deinen Umzug organisieren


ZUM UMZUGS-VERGLEICH
-->

MYHOME BLOG
SuchAgentin auf FindMyHome.at
Unterschiedlichen Rechtsthemen, köstliche Rezepte, neueste Design-Highlights, sowie aktuelle Technik-Tools für Ihr Eigenheim.


FINDMYHOME.AT SUCHAGENTIN
SuchAgentin auf FindMyHome.at
Hallo, soll ich dir ähnliche Immobilien kostenfrei per E-Mail schicken?


ÄHNLICHE IMMOBILIEN
Aehnliche Immobilie - Vorschaubild 1

Am Langen Felde 24 - Bezugsfertige Vorsorgewohnungen in Kagr... - Objektnr. 5544932

0,00 m² - 2.0 Zimmer
343200 €
PLZ: 1220

Mehr anzeigen

Aehnliche Immobilie - Vorschaubild 2

Eigentumswohnung | Stadt. Land. Fluss. | 1 - Zimmer Wohntrau... - Objektnr. 5433095

38,20 m² - 1 Zimmer
295300 €
PLZ: 1220

Mehr anzeigen

Aehnliche Immobilie - Vorschaubild 3

Exklusives Wohnen in der Donaustadt: Entdecken Sie Am Bienef... - Objektnr. 5570220

54,76 m² - 2.0 Zimmer
310000 €
PLZ: 1220

Mehr anzeigen

Durch die Nutzung unserer Seite erklären Sie sich mit der Verwendung von Cookies zur Verbesserung Ihres Online-Erlebnisses einverstanden. Detaillierte Informationen zu diesem und weiteren Themen erhalten Sie in unserer Datenschutzerklärung.