MEIN ERGEBNIS ANPASSEN

Exklusive Dachgeschosswohnung mit imposanter Dachterrasse am Schwarzenbergplatz - Objektnr. 5542003

  • Terrasse in der 2. Etage
  • Einladender Vorraum
  • Ruhiges Schlafzimmer
  • Hochwertiges Badezimmer
  • Blick ins Entrée
  • Schlafzimmer neben dem Atrium
  • Schlafzimmer mit en-suite Badezimmer
  • Heller, offener Wohnbereich
  • Küche
  • Edles Badezimmer
  • Galeriebereich
  • Schlafzimmer
  • Unglaublicher Blick über Wien und die Karlskirche
  • Eleganter Wohnbereich mit offenem Raumkonzept
1040
Ort
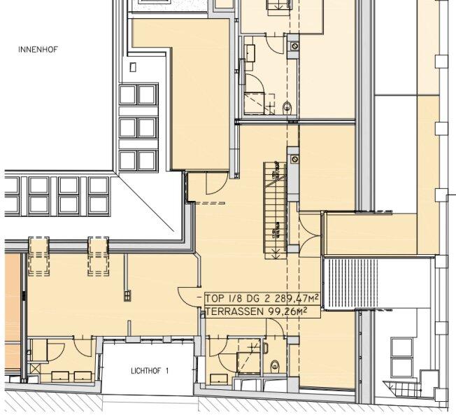
289,67 m²
Fläche
5.0
Zimmer

ECKDATEN
FindMyHome.at // Externe Immobilien-ID5542003 // 1145
ImmobilienartWohnung - Eigentum
Anschrift1040 Wien
Befeuerung
Fläche289,67 m²
Terrassen2 (99,00 m²)
Zimmer5.0
Bad4
WC4
 Abstellraum
Kaufpreis:€ 3.600.000,00
Ratenzahlung:Finanzierungsmöglichkeiten für diese Immobilie anzeigen
Provision: 3% des Kaufpreises zzgl. 20% USt.







BESCHREIBUNG

Exklusive Dachgeschosswohnung mit imposanter Dachterrasse am Schwarzenbergplatz

Diese außergewöhnliche Dachgeschoss-Maisonette, die sich über drei Ebenen erstreckt, vereint Großzügigkeit, stilvolles Design und einen atemberaubenden Blick über die Dächer Wiens bis hin zur prachtvollen Karlskirche. Mit einer Wohnfläche von rund 290 m² bietet sie eine seltene Kombination aus urbanem Luxus, lichtdurchfluteter Architektur und maximalem Wohnkomfort.

Bereits das Entrée beeindruckt mit seiner offenen Gestaltung und der einladenden Atmosphäre. Hochwertige Materialien, klare Linien und eine großzügige Raumaufteilung sorgen für ein sofortiges Gefühl von Zuhause. Linker Hand öffnet sich die moderne Küche mit hochwertigen Einbaugeräten ein Raum, der nicht nur funktional ist, sondern auch zum Mittelpunkt des familiären und gesellschaftlichen Lebens wird.

Der anschließende Wohnbereich ist durch große Fenster und die eindrucksvolle Raumhöhe hell und offen gestaltet. Eine elegante Galerieebene sorgt für ein luftiges Raumgefühl und verbindet die Etagen auf stilvolle Weise. Hier finden sowohl gemütliche Rückzugsorte als auch repräsentative Bereiche für Gäste ihren Platz.

Ein architektonisches Highlight bildet das zentral gelegene Atrium ein lichtdurchfluteter Lichthof, der sich ideal als begrünte Ruhezone, Wintergarten oder künstlerisch gestalteter Innenhof eignet. Er bringt nicht nur natürliches Licht ins Herz der Wohnung, sondern schafft eine besondere Verbindung zwischen Innen- und Außenraum.

Im hinteren Teil dieser Wohnebene befinden sich zwei großzügige Schlafzimmer. Eines davon ist als Masterbedroom konzipiert und verfügt über einen begehbaren Schrankraum sowie ein stilvolles en-suite Badezimmer mit edler Ausstattung. Ein praktischer Hauswirtschaftsraum mit separatem Zugang, ein weiteres Badezimmer sowie ein Gäste-WC ergänzen das Angebot dieser Etage.

Über eine formschöne Treppe gelangt man auf die Galerieebene, die sich ideal als private Rückzugszone eignet. Zwei weitere Schlafzimmer, zwei geschmackvoll gestaltete Bäder (eines davon en-suite) sowie eine kleine, windgeschützte Terrasse bieten zusätzlichen Raum für Individualität sei es als Kinderbereich, Gästezimmer oder Homeoffice mit Aussicht.

Den krönenden Abschluss bildet die großzügige Dachterrasse ein echtes Juwel über den Dächern Wiens. Ob Sonnenuntergang mit einem Glas Wein, morgendlicher Kaffee mit Blick auf die Karlskirche oder gesellige Sommerabende mit Freunden: Diese Freifläche lässt keine Wünsche offen und bietet einen exklusiven Rahmen für entspannte Stunden unter freiem Himmel.

Lage

Die Liegenschaft befindet sich in der eleganten Schwindgasse, mitten im historischen Kern des 4. Bezirks, Wieden einer der charmantesten und zentralsten Wohnlagen Wiens. Die Schwindgasse verläuft zwischen der Prinz-Eugen-Straße und der Argentinierstraße und wurde nach dem bekannten romantischen Maler Moritz von Schwind benannt. Die Umgebung ist geprägt von prachtvoller Gründerzeitarchitektur, internationalem Flair und der Nähe zu zahlreichen Botschaften, Residenzen und kulturellen Highlights.

Nur wenige Schritte entfernt liegt der prachtvolle Schwarzenbergplatz mit dem imposanten Hochstrahlbrunnen und dem Palais Schwarzenberg. Auch das barocke Schloss Belvedere mit seiner weitläufigen Gartenanlage ist in wenigen Minuten zu Fuß erreichbar. Weitere Highlights in der Umgebung sind die Wiener Staatsoper, der Stadtpark, das Musikverein-Gebäude und der Karlsplatz.

Dank der ausgezeichneten öffentlichen Verkehrsanbindung mit der Straßenbahnlinie D, der U1-Station Karlsplatz, sowie der Nähe zum Wiener Hauptbahnhof ist der Standort sowohl innerstädtisch als auch international bestens vernetzt.

Diese Lage vereint urbane Eleganz, kulturellen Reichtum und höchste Lebensqualität ideal für Menschen mit Sinn für Stil und Anspruch.

 

Die Bilder gelten als Beispielbilder!

Weitere Informationen zu monatlichen Kosten (Betriebskosten, Rücklage, Pläne etc.) oder ergänzende Dokumente schicken wir Ihnen gerne auf Wunsch zu.

Für weitere Detailfragen oder einen Besichtigungstermin steht Ihnen Frau Alissa Zwickelstorfer von Sangreal jederzeit gerne unter +43 664 419 78 92 oder zwickelstorfer@sangreal.at zur Verfügung!

Wir möchten Sie darauf hinweisen, dass zwischen dem Vermittler und dem Verkäufer ein wirtschaftliches Naheverhältnis besteht. Der Vermittler ist als Doppelmakler tätig.


Infrastruktur / Entfernungen

Gesundheit
Arzt <500m
Apotheke <500m
Klinik <500m
Krankenhaus <1.500m

Kinder & Schulen
Schule <500m
Kindergarten <500m
Universität <500m
Höhere Schule <500m

Nahversorgung
Supermarkt <500m
Bäckerei <500m
Einkaufszentrum <1.000m

Sonstige
Geldautomat <500m
Bank <500m
Post <500m
Polizei <500m

Verkehr
Bus <500m
U-Bahn <500m
Straßenbahn <500m
Bahnhof <500m
Autobahnanschluss <3.000m

Angaben Entfernung Luftlinie / Quelle: OpenStreetMap

Klimaanlage: JA
Provision: 3% des Kaufpreises zzgl. 20% USt.


Alle Details anzeigen

KONTAKT






 

Lasse dich kostenlos vom Anbieter dieser Immobilie zurückrufen.







 


 
Sangreal Living & Estates GmbH
Alissa Zwickelstorfer
Telefonnummer anzeigen Telefon Allgemein: +436644197892
 
Bitte dem Makler die FindMyHome.at - ID bekanntgeben: 5542003

Bewertungen dieses Anbieters
Netiquette

BEWERTUNGEN DIESES ANBIETERS

 
Netiquette
FINDMYHOME.AT
NETIQUETTE
Auch du kannst bewerten! 7 Tage nach deiner Anfrage erhältst du dafür von uns ein Bewertungsmail.
Alle Infos zu unseren Auszeichnungen und dem FINDMYHOME.AT Qualitätsprogramm findest du hier: Übersicht anzeigen

FINANZIERUNG
?>

Du willst wissen, wie viel dein Umzug kosten wird?

Mach gleich den kostenlosen Preisvergleich und schau, welche seriösen Anbieter in deiner Region günstig deinen Umzug organisieren


ZUM UMZUGS-VERGLEICH
-->

MYHOME BLOG
SuchAgentin auf FindMyHome.at
Unterschiedlichen Rechtsthemen, köstliche Rezepte, neueste Design-Highlights, sowie aktuelle Technik-Tools für Ihr Eigenheim.


FINDMYHOME.AT SUCHAGENTIN
SuchAgentin auf FindMyHome.at
Hallo, soll ich dir ähnliche Immobilien kostenfrei per E-Mail schicken?


ÄHNLICHE IMMOBILIEN
Aehnliche Immobilie - Vorschaubild 1

Exklusive Dachgeschoss-Maisonette mit Blick über Wien nahe d... - Objektnr. 5542004

264,31 m² - 5.5 Zimmer
3350000 €
PLZ: 1040

Mehr anzeigen

Aehnliche Immobilie - Vorschaubild 2

Exklusive Dachwohnung mit Stadtblick im Altbaupalais... - Objektnr. 5527273

264,31 m² - 6.0 Zimmer
3350000 €
PLZ: 1040

Mehr anzeigen

Aehnliche Immobilie - Vorschaubild 3

Exklusive Dachgeschoßwohnung mit Blick über Wien!... - Objektnr. 5560398

233,78 m² - 4.0 Zimmer
4290000 €
PLZ: 1040

Mehr anzeigen

Durch die Nutzung unserer Seite erklären Sie sich mit der Verwendung von Cookies zur Verbesserung Ihres Online-Erlebnisses einverstanden. Detaillierte Informationen zu diesem und weiteren Themen erhalten Sie in unserer Datenschutzerklärung.