DG-ERSTBEZUG | 3-Zimmer mit hofseitiger Terrasse | Ost/West | Fernwärme | Fassadenbegrünung | TG-Stellplatz optional | Nachhaltiges Wohnbauprojekt - Objektnr. 5538500


ökologisch beheizt
1170
Ort
74,78 m²
Fläche
3.0
Zimmer

ECKDATEN
FindMyHome.at // Externe Immobilien-ID5538500 // 56164
ImmobilienartEigentum
AnschriftVeronikagasse 31/18
1170 Wien
Baujahr2026
Befeuerung
Fernwärme
Stock4
Geschosse6
Fläche74,78 m²
Terrassen1 (7,00 m²)
Zimmer3.0
Bad1
WC1
 Abstellraum
Kaufpreis:€ 690.100,00
Ratenzahlung:Finanzierungsmöglichkeiten für diese Immobilie anzeigen
Provision:







BESCHREIBUNG

DG-ERSTBEZUG | 3-Zimmer mit hofseitiger Terrasse | Ost/West | Fernwärme | Fassadenbegrünung | TG-Stellplatz optional | Nachhaltiges Wohnbauprojekt

JETZT BAUSTELLE & MUSTERWOHNUNG BESICHTIGEN
 

Im lebendigen 17. Bezirk entsteht ein Wohnensemble, das Lebensqualität neu definiert. In der Ottakringer Straße 26 und Veronikagasse 31 warten 60 moderne Eigentumswohnungen verteilt auf zwei Wohnhäuser und ein charmantes Townhouse auf alle, die ein Zuhause mit besonderem Wohlfühlfaktor suchen. Zusätzlich stehen ein Geschäftslokal und PKW- und Motorradstellplätze in der hauseigenen Tiefgarage zum Verkauf. Durchdachte Grundrisse, eine hochwertige Ausstattung und ein ansprechendes, modernes Architekturkonzept schaffen Räume, in denen man sich sofort zuhause fühlt. Der begrünte Innenhof lädt zum Durchatmen und Verweilen ein, während nachhaltige Energielösungen ein Zeichen für Nachhaltigkeit setzen. Das Grätzl präsentiert sich als offen und urban mit vielfältigen Möglichkeiten für alle, die nach einem aufregenden und gleichzeitig entspannten Wohnstandort streben.

Die komfortabel konzipierten Eigentumswohnungen und Townhouses überzeugen mit vielfältigen Grundrissen und Größen, die für jede Lebensphase die perfekte Wohnlösung bieten. Feinste Eichenparkettböden und elegant ausgestattete Bäder schaffen ein Ambiente von zeitloser Eleganz und höchstem Wohnkomfort. Modernste Haustechnik sorgt für ein angenehmes Raumklima zu jeder Jahreszeit: Eine durch Fernwärme betriebene Fußbodenheizung sorgt für wohlige Wärme, während elektrisch steuerbarer Raffstores oder Rollläden Komfort und Privatsphäre auf Knopfdruck ermöglichen. In den Dachgeschosswohnungen runden hochwertige Klimaanlagen das exklusive Ausstattungspaket ab und bieten auch im Sommer ein stets erfrischendes Wohngefühl. Jede Wohneinheit verfügt über eine private Freifläche ob Loggia, Balkon, Terrasse oder Garten die den Wohnraum stilvoll ins Freie erweitert und einen Rückzugsort von besonderer Qualität schafft.

Bei diesem Projekt stehen die Erschaffung von nachhaltigem Lebensraum, das Wohlbefinden der zukünftigen Bewohner und die Wertsteigerung der Immobilie im Mittelpunkt. Neben der Optimierung der Nutzungsdauer achtet der Projektentwickler bei der Projektrealisierung auf die Minimierung des Verbrauchs von Energie und natürlichen Ressourcen. Dieses Projekt erhielt bereits eine unabhängige DGNB-Gold-Zertifizierung, weiters wird eine EU-Taxonomie-Verifikation angestrebt.

Rund um Ihr neues Zuhause erwartet Sie ein lebendiges Grätzl voller Genuss und Kultur: Der Yppenmarkt und Brunnenmarkt verführen mit frischen Spezialitäten, Cafés und Wiener Beisln laden zum Verweilen ein. Mit dem stilvollen Jörgerbad und dem traditionsreichen Wiener Metropol liegt auch ein vielfältiges Freizeit- und Kulturangebot direkt vor der Haustür. Die urbane Lage gewährt Ihnen eine seht gute öffentliche Anbindung: Mit der Straßenbahnlinie 44 erreichen Sie das Stadtzentrum mit seinen historischen Gebäuden und der prachtvollen Ringstraße in nur ca. 10 Minuten. Die U-Bahnlinie U6 bildet eine wichtige Verbindung und erschließt zentrale Punkte der Stadt. Ab ca. 2032 wird Sie die neue U-Bahnlinie U5 ab Elterleinplatz noch schneller zum Rathaus und Karlsplatz führen, was die Anbindung und Attraktivität von Hernals weiter steigert.

PROJEKT

  • 32 Eigentumswohnungen im Bauteil Ottakringer Straße 26
  • 20 Eigentumswohnungen im Bauteil Veronikagasse 31
  • 8 Eigentumswohnungen im Townhouse
  • 1 Geschäftslokal (straßenseitiger Kundeneingang über die Ottakringer Straße)
  • Wohnflächen von ca. 32 m² - 121 m² mit 2-5 Zimmern
  • alle Wohnungen mit mindestens einer Außenfläche
  • jede Wohnung mit Kellerabteil
  • Tiefgarage mit 30 PKW- und 3 Motorradstellplätzen (optional zu erwerben)
  • Ideal für Anleger und Eigennutzer

HIGHLIGHTS

  • Eichenparkettböden
  • stilvolle Markenfliesen
  • exklusive Sanitärausstattung u. a. von Villeroy & Boch und Dornbracht
  • außenliegender elektrischer Sonnenschutz
  • E-Mobilität
  • Fernwärme
  • Fußbodenheizung
  • dezentrale Wohnraumlüftung
  • Klimaanlage im DG
  • Photovoltaikanlage am Dach
  • Fassadenbegrünung
  • Urban-Gardening-Beete
  • Kleinkinderspielplatz
  • Smarte Hausverwaltungsapp
  • Paketboxenanlage
  • Gegensprechanlage via App
  • DGNB Gold vorzertifiziert
  • Yppenmarkt & Brunnenmarkt fußläufig erreichbar
  • Straßenbahnlinie 44 (Richtung Schottentor & Ottakring) nur ca. 2 Min. entfernt
  • U6-Station Alser Straße in ca. 5 Minuten zu Fuß erreichbar 
  • ca. 7 Min. öffentlich oder mit dem Rad in das AKH
  • ca. 10 Min. öffentlich oder mit dem Rad in die Innenstadt
  • diverse Supermärkte fußläufig erreichbar

INFOS ZUR WOHNUNG

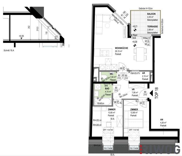
  • WOHNFLÄCHE: ca. 74,7 m²
  • ZIMMER: 3
  • BALKON: ca. 4,3 m²
  • TERRASSE: ca. 3 m²
  • EINLAGERUNGSRAUM: ca. 1,5 m²
  • AUSRICHTUNG: Ost/West
  • GESCHOSS: 1. DG

Baufortschritt: Fertigstellung Rohbau und Dach und Fertigstellung der Rohinstallationen (Bauteil Ottakringer Straße)

Geplante Fertigstellung: 02/2026

Betriebskosten (exkl. Rücklage): ca. € 2,50 - 2,80 brutto pro m² p.M. - vorläufige und unverbindliche Kalkulation der HV für das erste Betriebsjahr

Kaufpreis Eigennutzer (WHG): € 690.100,00 
Kaufpreis Anleger netto (WHG): € 635.900,00 zzgl. 20% USt.

Kaufpreis TG-Stellplatz Eigennutzer: ab € 35.000,00 (PKW) | € 12.000,00 (Motorrad)
Kaufpreis TG-Stellplatz Anleger netto: ab € 30.880,00 zzgl. 20% USt. (PKW) | € 10.630,00 zzgl. 20% USt. (Motorrad)

Vertragserrichtung: Kanzlei Tiefenthaler Gnesda Rechtsanwälte GmbH (1,5 % vom Kaufpreis zzgl. 20 % Ust., zzgl. Barauslagen und Beglaubigungskosten) - Abwicklung nach BTVG (Bauträgervertragsgesetz)

Provision: 3% vom Kaufpreis zzgl. 20% USt.

Bei den gezeigten Bildern handelt es sich einerseits um Visualisierungen, andererseits um Fotos der Musterwohnung (Bauteil Ottakringer Straße, Top 1/6) mit ähnlicher Ausstattung. 

Wir freuen uns auf Ihre schriftliche Anfrage, um Ihnen dieses exklusive Projekt näher bringen zu dürfen. 

Wir weisen darauf hin, dass zwischen dem Vermittler und dem zu vermittelnden Dritten ein familiäres oder wirtschaftliches Naheverhältnis besteht.

Der Vermittler ist als Doppelmakler tätig.


Infrastruktur / Entfernungen

Gesundheit
Arzt <150m
Apotheke <250m
Klinik <150m
Krankenhaus <450m

Kinder & Schulen
Schule <175m
Kindergarten <175m
Universität <850m
Höhere Schule <625m

Nahversorgung
Supermarkt <175m
Bäckerei <125m
Einkaufszentrum <625m

Sonstige
Geldautomat <250m
Bank <250m
Post <450m
Polizei <300m

Verkehr
Bus <275m
U-Bahn <275m
Straßenbahn <150m
Bahnhof <275m
Autobahnanschluss <3.200m

Angaben Entfernung Luftlinie / Quelle: OpenStreetMap

Klimaanlage: JA
Kabel/SAT/TV: JA
Barrierefrei: JA
Provision: 24.843,60 ? inkl. 20% USt.


Alle Details anzeigen

KONTAKT






 

Lasse dich kostenlos vom Anbieter dieser Immobilie zurückrufen.







 


 
RIWOG Real Estate Management GmbH
Learco Andrea Tews, MSc (WU)
Telefonnummer anzeigen Handy Bearbeiter: +436602479331
 
Bitte dem Makler die FindMyHome.at - ID bekanntgeben: 5538500

Bewertungen dieses Anbieters
Qualitätsmakler
Qualitätsmakler:
2015, 2016, 2017, 2018, 2019, 2021, 2023 ,
Netiquette
Freundlichkeit

BEWERTUNGEN DIESES ANBIETERS

 
Qualit�tsmakler
Qualitätsmakler
2015, 2016, 2017, 2018, 2019, 2021, 22/23
Freundlichkeit
BESONDERS
FREUNDLICH
Netiquette
FINDMYHOME
NETIQUETTE
Auch du kannst bewerten! 7 Tage nach deiner Anfrage erhältst du dafür von uns ein Bewertungsmail.
Alle Infos zu unseren Auszeichnungen und dem FINDMYHOME.AT Qualitätsprogramm findest du hier: Übersicht anzeigen

FINANZIERUNG
?>

Du willst wissen, wie viel dein Umzug kosten wird?

Mach gleich den kostenlosen Preisvergleich und schau, welche seriösen Anbieter in deiner Region günstig deinen Umzug organisieren


ZUM UMZUGS-VERGLEICH
-->

MYHOME BLOG
SuchAgentin auf FindMyHome.at
Unterschiedlichen Rechtsthemen, köstliche Rezepte, neueste Design-Highlights, sowie aktuelle Technik-Tools für Ihr Eigenheim.


FINDMYHOME.AT SUCHAGENTIN
SuchAgentin auf FindMyHome.at
Hallo, soll ich dir ähnliche Immobilien kostenfrei per E-Mail schicken?


ÄHNLICHE IMMOBILIEN
Aehnliche Immobilie - Vorschaubild 1

PROVISIONSFREI und SOFORT BEZUGSFERTIG ++ Traumhafter Ausbli... - Objektnr. 5556118

66,32 m² - 2.0 Zimmer
646989 €
PLZ: 1170

Mehr anzeigen

Aehnliche Immobilie - Vorschaubild 2

Ein wahres Highlight im Dachgeschoss ++ Erstbezug ++ PROVISI... - Objektnr. 5556119

78,82 m² - 3.0 Zimmer
797994 €
PLZ: 1170

Mehr anzeigen

Aehnliche Immobilie - Vorschaubild 3

Wiener Weinberge vor der Tür ++ PROVISIONSFREI und SOFORT BE... - Objektnr. 5556106

61,99 m² - 2.0 Zimmer
593211 €
PLZ: 1170

Mehr anzeigen

Durch die Nutzung unserer Seite erklären Sie sich mit der Verwendung von Cookies zur Verbesserung Ihres Online-Erlebnisses einverstanden. Detaillierte Informationen zu diesem und weiteren Themen erhalten Sie in unserer Datenschutzerklärung.