Erstbezug mit hofseitigem Balkon! Vollsanierte Jahrhundertwendeliegenschaft mit Luftwärmepumpe - Objektnr. 5516659


ökologisch beheizt
  • Hausansicht
  • Wohnzimmer
  • Dachgeschoß
  • Hauseingang
  • Dachgeschoß
  • Hausansicht
  • Entrée
  • barrierefreier Lift
1180
Ort
73,71 m²
Fläche
2.0
Zimmer

ECKDATEN
FindMyHome.at // Externe Immobilien-ID5516659 // 23768
ImmobilienartWohnung - Eigentum
AnschriftSternwartestraße
1180 Wien
Befeuerung
Luftwärmepumpe
Stock4
Geschosse6
Fläche73,71 m²
Zimmer2.0
Bad1
WC1
Kaufpreis:€ 810.000,00
Ratenzahlung:Finanzierungsmöglichkeiten für diese Immobilie anzeigen
Provision:







BESCHREIBUNG

Erstbezug mit hofseitigem Balkon! Vollsanierte Jahrhundertwendeliegenschaft mit Luftwärmepumpe

DAS PROJEKT

Die vollsanierte Jahrhundertwendeliegenschaft befindet sich in der Sternwartestraße/Ecke Semperstraße, nächst Währinger Park, und bietet somit eine ausgezeichnete Infrastruktur. Die Sanierung des Gebäudes ist in Fertigstellung. Die Ausstattung und das Design sind hochwertig und geschmackvoll und lassen keine Wohnwünsche offen!

In dieser Liegenschaft gelangen mehrere Dachgeschoß-Erstbezüge und generalsanierte Altbauwohnungen zum Kauf.

Beiliegend finden Sie eine Übersicht aller verfügbaren Einheiten!

 

WOHNUNGSBESCHREIBUNG

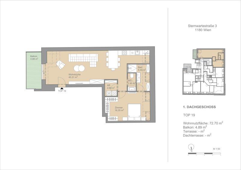
Der Zwei-Zimmer-Erstbezug befindet sich im 1. Dachgeschoß und verfügt über ca. 74 qm Wohnfläche und einen hofseitigen Balkon mit ca. 8 qm auf Wohnebene.

Über die offen gestaltete Wohnküche, welche hofseitig und auf die Semperstraße ausgerichtet ist, gelangt man in das Schlafzimmer mit en Suite-Bad sowie das separate WC und den Abstellraum.

 

AUSSTATTUNGSHIGHLIGHTS

- Luft-Wasser-Wärmepumpe für Heizen, Kühlen und Warmwasseraufbereitung

- Photovoltaikanlage zur Warmwasseraufbereitung sowie für die Beleuchtung der Allgemeinteile

- Wärmedämmung der Hoffassade

- Smart Home-System

- Klimaanlage

- doppelte Beplankung der Innenwände

- Landhausdiele Eiche astig gebürstet

- Terrassendielen aus Massivholz

- Sanitärprodukte von Dornbracht und Laufen

- hochqualitative Schüco-Alu-Elemente 3-fach verglast (Hebeschiebetüren oder Klappschwingflügel)

- Sonnenschutz in Form von elektrische gesteuerten Raffstores oder Außenrollläden

- neue Eingangstüren in Klimaklasse C2 und Sicherheitsklasse RC3

- Lift für 8 Personen

 

RESUMÉE

Dieses aufwändig sanierte Jahrhundertwendehaus mit neu errichtetem Dachgeschoß bietet Ihnen höchsten Wohnkomfort mit modernster Technik. Genießen Sie den Vorteil einer Heizung- und Warmwasseraufbereitung OHNE GAS!

Wir freuen uns schon, Ihnen die Besonderheiten dieser Objekte im Zuge einer persönlichen Besichtigung präsentieren zu dürfen!

 

NEBENKOSTEN

Die Vertragserrichtung und Treuhandabwicklung ist gebunden an die Kanzlei Sauerzopf und Partner in 1010 Wien, Laurenzerberg 1/28.

Der guten Ordnung halber halten wir fest, dass, sofern im Angebot nicht anders vermerkt, bei erfolgreichem Abschlussfall eine Provision anfällt, die den in der Immobilienmaklerverordnung BGBI. 262 und 297/1996 festgelegten Sätzen entspricht das sind 3 % des Kaufpreises zzgl. 20 % USt. Diese Provisionspflicht besteht auch dann, wenn Sie die Ihnen überlassenen Informationen an Dritte weitergeben. Es besteht ein wirtschaftliches Naheverhältnis zum Verkäufer. Wir weisen darauf hin, dass wir als Doppelmakler tätig sind. 

Wir weisen darauf hin, dass zwischen dem Vermittler und dem zu vermittelnden Dritten ein familiäres oder wirtschaftliches Naheverhältnis besteht.

Der Vermittler ist als Doppelmakler tätig.


Infrastruktur / Entfernungen

Gesundheit
Arzt <250m
Apotheke <250m
Klinik <500m
Krankenhaus <750m

Kinder & Schulen
Schule <250m
Kindergarten <250m
Universität <500m
Höhere Schule <250m

Nahversorgung
Supermarkt <500m
Bäckerei <250m
Einkaufszentrum <1.750m

Sonstige
Geldautomat <250m
Bank <250m
Post <250m
Polizei <1.000m

Verkehr
Bus <250m
U-Bahn <250m
Straßenbahn <250m
Bahnhof <500m
Autobahnanschluss <1.750m

Angaben Entfernung Luftlinie / Quelle: OpenStreetMap

Klimaanlage: JA
Provision:


Alle Details anzeigen

KONTAKT






 

Lasse dich kostenlos vom Anbieter dieser Immobilie zurückrufen.







 


 
WINEGG Makler GmbH
Julian Himmelbauer
Telefonnummer anzeigen Telefon Allgemein: +4313157280
Handy Bearbeiter: +436765505797
 
Bitte dem Makler die FindMyHome.at - ID bekanntgeben: 5516659

Bewertungen dieses Anbieters
Qualitätsmakler
Qualitätsmakler:
2015, 2017, 2025,
Netiquette
Freundlichkeit
82 %

BEWERTUNGEN DIESES ANBIETERS

 
Qualit�tsmakler
Qualitätsmakler
2015, 2017, 2025
Weiterempfehlung
WIRD GERNE

Freundlichkeit
BESONDERS
FREUNDLICH
Netiquette
FINDMYHOME
NETIQUETTE
Auch du kannst bewerten! 7 Tage nach deiner Anfrage erhältst du dafür von uns ein Bewertungsmail.
Alle Infos zu unseren Auszeichnungen und dem FINDMYHOME.AT Qualitätsprogramm findest du hier: Übersicht anzeigen

FINANZIERUNG
?>

Du willst wissen, wie viel dein Umzug kosten wird?

Mach gleich den kostenlosen Preisvergleich und schau, welche seriösen Anbieter in deiner Region günstig deinen Umzug organisieren


ZUM UMZUGS-VERGLEICH
-->

MYHOME BLOG
SuchAgentin auf FindMyHome.at
Unterschiedlichen Rechtsthemen, köstliche Rezepte, neueste Design-Highlights, sowie aktuelle Technik-Tools für Ihr Eigenheim.


FINDMYHOME.AT SUCHAGENTIN
SuchAgentin auf FindMyHome.at
Hallo, soll ich dir ähnliche Immobilien kostenfrei per E-Mail schicken?


ÄHNLICHE IMMOBILIEN
Aehnliche Immobilie - Vorschaubild 1

Erstbezug - Atemberaubende Dachterrasse in den Innenhof!... - Objektnr. 5536815

70,43 m² - 2.0 Zimmer
790000 €
PLZ: 1180

Mehr anzeigen

Aehnliche Immobilie - Vorschaubild 2

Park Suites - Geschmackvoll leben mit erstklassiger Infrastr... - Objektnr. 5559336

70,94 m² - 3.0 Zimmer
790000 €
PLZ: 1180

Mehr anzeigen

Aehnliche Immobilie - Vorschaubild 3

Erstbezug I Neubauprojekt I Balkon - Objektnr. 5504425


62,01 m² - 2.0 Zimmer
735000 €
PLZ: 1180

Mehr anzeigen

Durch die Nutzung unserer Seite erklären Sie sich mit der Verwendung von Cookies zur Verbesserung Ihres Online-Erlebnisses einverstanden. Detaillierte Informationen zu diesem und weiteren Themen erhalten Sie in unserer Datenschutzerklärung.