MEIN ERGEBNIS ANPASSEN

NEU! SIEBENBRUNNENPLATZ ERSTBEZUG EXKLUSIVE 3-4 ZIMMER-WOHNUNGEN BALKON/TERRASSE KLIMAANLAGE TOP-AUSSTATTUNG 1050 WIEN - Objektnr. 5503320

1050
Ort
63,19 m²
Fläche
3.0
Zimmer

ECKDATEN
FindMyHome.at // Externe Immobilien-ID5503320 // 27419
ImmobilienartEigentum
Anschrift/19
1050 Wien
Baujahr1900
Stock6
Geschosse7
Fläche63,19 m²
Terrassen1 (2,00 m²)
Zimmer3.0
Bad1
WC2
Kaufpreis:€ 545.000,00
Ratenzahlung:Finanzierungsmöglichkeiten für diese Immobilie anzeigen
Provision: 3% des Kaufpreises zzgl. 20% USt.







BESCHREIBUNG

NEU! SIEBENBRUNNENPLATZ ERSTBEZUG EXKLUSIVE 3-4 ZIMMER-WOHNUNGEN BALKON/TERRASSE KLIMAANLAGE TOP-AUSSTATTUNG 1050 WIEN

PROJEKT:

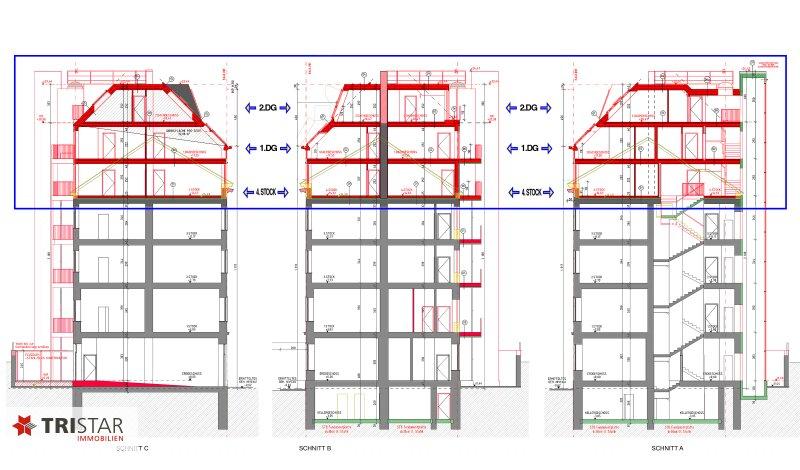
Auf einem wunderschönen Altbau unweit des Siebenbrunnenplatzes entstehen aktuell drei neu errichtete Stockwerke (4.6. Stock), die jeweils zwei großzügige Wohnungen mit hochwertiger, schlüsselfertiger Ausstattung bieten. Im Zuge der Aufstockung wird das Gebäude umfassend modernisiert (Aufzug, Stiegenhaus, Fassade, Balkone, Keller) und technisch sowie optisch auf einen zeitgemäßen Standard gebracht.

Im 4. Stock und im 1. Dachgeschoss entstehen großzügige 4-Zimmer-Wohnungen mit Balkonen, im 2. Dachgeschoss 3-Zimmer-Wohnungen mit Terrassen.

Die Wohnungen befinden sich derzeit im Bau. Planmäßige Fertigstellung / geplanter Bezug: bis 01.03.2026.

LAGE:

Die Lage überzeugt durch eine ideale Kombination aus urbanem Flair, hervorragender Nahversorgung, zahlreichen Grünflächen und charmanten Lokalen, ergänzt durch eine exzellente Anbindung an den öffentlichen Verkehr. Ein umfangreiches Lageexposé (50 Seiten) steht nach Eingang Ihrer Anfrage zum Download zur Verfügung.

-----------------------------------

VERFÜGBARE WOHNUNGEN:

-----------------------------------

4. STOCK:

Top 14 4 Zimmer | ca. 86,50 m² WNFL + Balkon ca. 8 m² | Kaufpreis: EUR 685.000 - Schlüsselfertig!

Top 15 4 Zimmer | ca. 101 m² WNFL + Balkon ca. 4,50 m² | Kaufpreis: EUR 795.000 - Schlüsselfertig!

-----------------------------------

STOCK (DG 1):

DG 16 4 Zimmer | ca. 90 m² WNFL + Balkon ca. 7 m² | Kaufpreis: EUR 690.000 - Schlüsselfertig!

DG 17 4 Zimmer | ca. 93 m² WNFL + Balkon ca. 4 m² | Kaufpreis: EUR 695.000 - Schlüsselfertig!

-----------------------------------

STOCK (DG 2):

DG 18 3 Zimmer | ca. 68,30 m² WNFL + Terrasse ca. 3,12 m² | Kaufpreis: EUR 595.000 - Schlüsselfertig!

DG 19 3 Zimmer | ca. 63,19 m² WNFL + Terrasse ca. 2,15 m² | Kaufpreis: EUR 545.000 - Schlüsselfertig!

-----------------------------------

AUSSTATTUNG UND FERTIGSTELLUNGSGRAD DER WOHNUNGEN:

  • Boden Zementestrich mit Schalldämmung und Fußbodenheizung; Flur, Küchenbereich und Heizraum mit Thermokeramik; übrige Räume mit hochwertigem Parkett
  • Wände Gipskartonsystem KNAUF
  • Decken Gipskartonsystem KNAUF
  • Jalousien außenliegende Rollläden mit Solarantrieb in den Wohnungen des obersten Stockwerks
  • Bodenbeläge in Fluren und Küchenbereichen hochwertiges italienisches Feinsteinzeug, in Wohn- und Schlafräumen Echtholzparkett
  • Elektrische Installation montierte Schalttafel mit Sicherungen, FI-Schutzschalter, Schaltern und Steckdosen Schrack Visio 55, Lampenfassungen an allen Lichtauslässen
  • Niedrigstrominstallation integrierte Video-Gegensprechanlage
  • Sanitärinstallation vertikale Steigleitungen aus VALSIR BLACKFIRE mit Absperrhähnen; horizontale Leitungen aus VALSIR BLACKFIRE mit Endstopfen; Abwassersystem aus schallgedämmten Rohren
  • Klimasystem installiertes LG-System mit Wärmepumpenaggregat, Fußbodenheizung, Klimageräten und Boiler
  • WC Wände mit KNAUF verkleidet; Boden und Wände mit hochwertigen Belägen; Ausstattung aus hochwertiger Keramik wandhängendes Waschbecken mit FIMA MAST Washbasin Standard sowie Monoblock-WC
  • Badezimmer Wände mit KNAUF verkleidet; Boden- und Wandbeläge aus hochwertigem italienischem Feinsteinzeug; Ausstattung aus hochwertiger Keramik Arbeitsplatte mit gegossenem Waschbecken, Unterschrank mit Schublade, abgetrennter Duschbereich mit Trennwand, montierte Armaturen und Duschmischer hoher Qualität, Spiegelschrank und Monoblock-WC
  • Innentüren DANA
  • Eingangstüren gepanzerte DANA-Türen, Sicherheitsklasse WK2, hoher Schall- und Wärmedämmungsgrad, Edelstahlgriffe, Spione, Zylinder und Schutzbeschläge
  • Terrassen struktureller Bodenbelag aus Feinsteinzeug, Doppelboden-Decking-System, integrierte Beleuchtungselemente
  • Außengeländer Edelstahlgeländer mit Handlauf, gefertigt aus hochwertigem galvanisch verzinktem Stahl

-----------------------------------

TECHNISCHE EIGENSCHAFTEN DES GEBÄUDES:

  • Moderne Fassade mit hohem Energieeffizienzkoeffizienten
  • Schall- und Dampfdämmung sowie Fußbodenheizung auf jeder Etage
  • Aluminiumfenster ELVIAL der höchsten Klasse exzellenter Schallschutz, Stabilität und Sicherheit sowie Wasser- und Luftdichtheit
  • Dachwohnungen mit VELUX-Fenstern und außenliegenden Rollläden mit Solarantrieb
  • Außengeländer aus Edelstahl mit Handlauf, galvanisch verzinkt
  • Elektrischer Aufzug OTIS
  • Innentüren DANA
  • Eingangstüren DANA, gepanzert, Sicherheitsklasse WK2, hoher Schall- und Wärmedämmungsgrad, Edelstahlgriffe, Türspione, Schließzylinder und Schutzbeschläge
  • Luxuriöse Bodenbeläge in den allgemeinen Bereichen Naturstein
  • Terrassen mit hochwertigem italienischem Feinsteinzeug, verlegt auf Decking-System
  • Wandverkleidung der allgemeinen Teile LAMINAM
  • Integriertes Klimasystem mit Wärmepumpenaggregat, Boiler und elektrischen Klimageräten mit hoher Energieeffizienz und niedrigem Geräuschpegel
  • Elektrische Installation Hauptschalttafel, Verteilertafeln, Schalter und Steckdosen Schrack Visio 55
  • Videosprechanlage mit Überwachungssystem
  • Vollständig installierte Sanitäranlagen

Alle verwendeten Materialien entsprechen der Energieeffizienzklasse A, sind österreichischer Herkunft und verfügen über Zertifikate für Entflammbarkeit und Qualität.

-----------------------------------

VERMITTLUNGSPROVISION / DOPPELMAKLERTÄTIGKEIT:

Der Ordnung halber wird darauf hingewiesen, dass die Vermittlungsprovision 3 % des Kaufpreises zuzüglich 20 % USt. (insgesamt 3,6 %) beträgt und mit Zustandekommen des vermittelten Rechtsgeschäfts (Annahme des Kaufanbots ohne aufschiebende Bedingungen durch den Verkäufer) fällig wird. Der Makler ist als Doppelmakler tätig.

NEU! SIEBENBRUNNENPLATZ ERSTBEZUG EXKLUSIVE 34 ZIMMER-WOHNUNGEN BALKON/TERRASSE KLIMAANLAGE TOP-AUSSTATTUNG 1050 WIEN

Wir weisen darauf hin, dass zwischen dem Vermittler und dem zu vermittelnden Dritten ein familiäres oder wirtschaftliches Naheverhältnis besteht.

Der Vermittler ist als Doppelmakler tätig.

Klimaanlage: JA
Barrierefrei: JA
Provision: 3% des Kaufpreises zzgl. 20% USt.


Alle Details anzeigen

KONTAKT






 

Lasse dich kostenlos vom Anbieter dieser Immobilie zurückrufen.







 


 
TRISTAR Immobilien
TRISTAR Immobilien
Telefonnummer anzeigen Handy Bearbeiter: +436769017374
 
Bitte dem Makler die FindMyHome.at - ID bekanntgeben: 5503320

Bewertungen dieses Anbieters
Qualitätsmakler
Qualitätsmakler:
2017, 2019, 2020, 2021,
Netiquette
Freundlichkeit

BEWERTUNGEN DIESES ANBIETERS

 
Qualit�tsmakler
Qualitätsmakler
2017, 2019, 2020, 2021
Freundlichkeit
BESONDERS
FREUNDLICH
Netiquette
FINDMYHOME
NETIQUETTE
Auch du kannst bewerten! 7 Tage nach deiner Anfrage erhältst du dafür von uns ein Bewertungsmail.
Alle Infos zu unseren Auszeichnungen und dem FINDMYHOME.AT Qualitätsprogramm findest du hier: Übersicht anzeigen

FINANZIERUNG
?>

Du willst wissen, wie viel dein Umzug kosten wird?

Mach gleich den kostenlosen Preisvergleich und schau, welche seriösen Anbieter in deiner Region günstig deinen Umzug organisieren


ZUM UMZUGS-VERGLEICH
-->

MYHOME BLOG
SuchAgentin auf FindMyHome.at
Unterschiedlichen Rechtsthemen, köstliche Rezepte, neueste Design-Highlights, sowie aktuelle Technik-Tools für Ihr Eigenheim.


FINDMYHOME.AT SUCHAGENTIN
SuchAgentin auf FindMyHome.at
Hallo, soll ich dir ähnliche Immobilien kostenfrei per E-Mail schicken?


ÄHNLICHE IMMOBILIEN
Aehnliche Immobilie - Vorschaubild 1

Ihr Kapital arbeitet über den Dächern! WOW! HIP und TRENDY d... - Objektnr. 5574913

69,12 m² - 3.0 Zimmer
549000 €
PLZ: 1050

Mehr anzeigen

Aehnliche Immobilie - Vorschaubild 2

AH11 - Ein prachtvolles Gründerzeithaus erstrahlt in neuem G... - Objektnr. 5579821

73,56 m² - 3.0 Zimmer
551700 €
PLZ: 1050

Mehr anzeigen

Aehnliche Immobilie - Vorschaubild 3

GROHGASSE 10 | großzügige 2-Zimmer Altbauwohnung mit innenho... - Objektnr. 5578849

64,51 m² - 2.0 Zimmer
625000 €
PLZ: 1050

Mehr anzeigen

Durch die Nutzung unserer Seite erklären Sie sich mit der Verwendung von Cookies zur Verbesserung Ihres Online-Erlebnisses einverstanden. Detaillierte Informationen zu diesem und weiteren Themen erhalten Sie in unserer Datenschutzerklärung.