MEIN ERGEBNIS ANPASSEN

NEU ZIEGELMASSIV 12 SCHLÜSSELFERTIGE HÄUSER JEWEILS 2 PKW-STELLPLÄTZE GARTEN & TERRASSE FISCHAMEND - Objektnr. 5466289


ökologisch beheizt
2401
Ort
99,00 m²
Fläche
4.0
Zimmer

ECKDATEN
FindMyHome.at // Externe Immobilien-ID5466289 // 27278
ImmobilienartHaus - Eigentum
Anschrift/1A
2401 Fischamend
Baujahr2024
Befeuerung
Luftwärmepumpe
Geschosse3
Fläche99,00 m²
Terrassen1 (17,00 m²)
Zimmer4.0
Bad2
WC3
Kaufpreis:€ 479.000,00
Ratenzahlung:Finanzierungsmöglichkeiten für diese Immobilie anzeigen
Provision: 3% des Kaufpreises zzgl. 20% USt.







BESCHREIBUNG

NEU ZIEGELMASSIV 12 SCHLÜSSELFERTIGE HÄUSER JEWEILS 2 PKW-STELLPLÄTZE GARTEN & TERRASSE FISCHAMEND

  • TOP PROJEKT zum TOP KAUFPREIS:

Zum Verkauf gelangen 12 Reihenhäuser und 2 Einzelhäuser in Ziegelmassivbauweise, welche in Kürze fertiggestellt und bezugsbereit sein werden.

Das Projekt befindet sich in Fischamend und ist somit ideal zwischen Wien und dem Neusiedler See gelegen.

Es profitiert von der hervorragend ausgebauten Infrastruktur und den Anbindungen in alle Richtungen.

Die Immobilien bieten sowohl Wohn- als auch Investitionsmöglichkeiten in bevorzugter Lage.

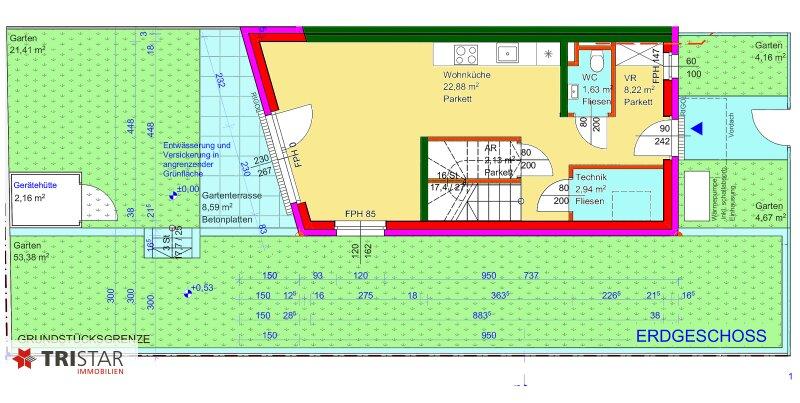
Die Einheiten haben Wohnflächen von 99 m² bis 112 m² und Gesamtflächen zwischen 123 m² und 241 m², einschließlich Terrassen, Gärten und jeweils zwei im Kaufpreis inbegriffenen PKW-Stellplätzen pro Haus.

  • KEIN BAURECHT, KEINE PACHT:

Sie erwerben hier Ihr Eigenheim und Eigentumsgrund!

  • GARTEN/ TERRASSE/ 2 PKW STELLPLÄTZE/ ERDGESCHOSS/ OBERGESCHOSS/ DACHGESCHOSS:

  • REIHENHÄUSER - BAUPLATZ 1:

HAUS 1A = ca. 156,16 m² Gesamtfläche!

  • WNFL (4 Zimmer+Home Office) ca. 99 m² + GARTEN ca. 41 m2 + TERRASSE ca. 16,67 m2 + 2 PKW Stellplätze ca. 25,50 m² = EUR 479.000,- SCHLÜSSELFERTIG

HAUS 1B = ca. 156 m² Gesamtfläche!

  • WNFL (4 Zimmer+Home Office) ca. 112,59 m² + GARTEN ca. 30 m2 + TERRASSE ca. 13,30 m2 + 2 PKW Stellplätze ca. 25,50 m² = EUR 479.000,- SCHLÜSSELFERTIG

HAUS 1C = ca. 209 m² Gesamtfläche!

  • WNFL (4 Zimmer+Home Office) ca. 112 m² + GARTEN ca. 84 m2 + TERRASSE ca. 14 m2 + 2 PKW Stellplätze ca. 25,50 m² = EUR 479.000,- SCHLÜSSELFERTIG

  • REIHENHÄUSER - BAUPLATZ 2:

HAUS 2A = ca. 140,61 m² Gesamtfläche!

  • WNFL ca. 112 m² (4 Zimmer+Home Office) + GARTEN ca. 15,50 m2 + TERRASSE ca. 13,37 m2 + 2 PKW Stellplätze ca. 25,50 m² = EUR 479.000,- SCHLÜSSELFERTIG

HAUS 2B = ca. 146,07 m² Gesamtfläche!

  • WNFL (4 Zimmer+Home Office) ca. 112,50 m² + GARTEN ca. 20,50 m2 + TERRASSE ca. 13,30 m2 + 2 PKW Stellplätze ca. 25,50 m² = EUR 479.000,- SCHLÜSSELFERTIG

HAUS 2C = ca. 198,50 m² Gesamtfläche!

  • WNFL (4 Zimmer+Home Office) ca. 112 m² + GARTEN ca. 73 m2 + TERRASSE ca. 14 m2 + 2 PKW Stellplätze ca. 25,50 m² = EUR 479.000,- SCHLÜSSELFERTIG

  • REIHENHÄUSER - BAUPLATZ 3:

HAUS 3A = ca. 127 m² Gesamtfläche!

  • WNFL (4 Zimmer+Home Office) ca. 102,50 m² + GARTEN ca. 9,50 m2 + TERRASSE ca. 15,13 m2 + 2 PKW Stellplätze ca. 25,50 m² = EUR 479.000,- SCHLÜSSELFERTIG

HAUS 3B = ca. 123,50 m² Gesamtfläche!

  • WNFL (4 Zimmer+Home Office) ca. 102,57 m² + GARTEN ca. 6,10 m2 + TERRASSE ca. 15 m2 + 2 PKW Stellplätze ca. 25,50 m² = EUR 479.000,- SCHLÜSSELFERTIG

HAUS 3C = ca. 159 m² Gesamtfläche!

  • WNFL (4 Zimmer+Home Office) ca. 101 m² + GARTEN ca. 43 m2 + TERRASSE ca. 15 m2 + 2 PKW Stellplätze ca. 25,50 m² = EUR 479.000,- SCHLÜSSELFERTIG

  • REIHENHÄUSER - BAUPLATZ 4:

HAUS 4A = ca. 161,20 m² Gesamtfläche!

  • WNFL (4 Zimmer+Home Office) ca. 112 m² + GARTEN ca. 35 m2 + 2 TERRASSEN ca. 14,50 m2 + 2 PKW Stellplätze ca. 25,50 m² = EUR 479.000,- SCHLÜSSELFERTIG

HAUS 4B = ca. 166 m² Gesamtfläche!

  • WNFL (4 Zimmer+Home Office) ca. 107 m² + GARTEN ca. 42 m2 + 2 TERRASSEN ca. 17 m2 + 2 PKW Stellplätze ca. 25,50 m² = EUR 479.000,- SCHLÜSSELFERTIG - RESERVIERT!

HAUS 4C = VERKAUFT!

HAUS 5A: = VERKAUFT!

HAUS 5B = VERKAUFT!

  • SCHLÜSSELFERTIG:

Der angegebene Kaufpreis gilt für die schlüsselfertige Ausführung!

  • AUSSTATTUNG:

Fußbodenheizung UND -kühlung über Luftwärmepumpe

Vorbereitung für die Photovoltaik-Anlage

Ziegelmassivbauweise eine erstklassige Investition für gegenwärtige und kommende Generationen

Zum Schutz vor extremer Hitze und Kälte sind bei dem Projekt hochwertige, dreifach verglaste Fenster installiert

Fliesen in den Sanitärbereichen (Schlüsselfertig)

Die Badezimmer sind mit Badewannen und/oder Duschen ausgestattet (Schlüsselfertig)

Frostsicherer Kaltwasseranschluss 

  • LAGE:

Die Beantwortung ist bei uns automatisiert (24/7), sodass wir die Anfragen unserer Kunden innerhalb von 2-3 Sekunden beantworten können (bitte überprüfen Sie ggf. Ihren Spam-Ordner)!

Ein detailliertes Lageexposé mit 65 Seiten, das eine Übersicht aller relevanten Anbindungen, Kindereinrichtungen, Möglichkeiten zur Nahversorgung, Freizeitangebote und vieles mehr enthält, wird automatisch nach Ihrer Anfrage zugesendet!

  • VERMITTLUNGSPROVISION / DOPPELMAKLERTÄTIGKEIT:

Der Ordnung halber wird darauf hingewiesen, dass die Vermittlungsprovision 3 % des Kaufpreises zuzüglich 20 % USt. (insgesamt 3,6 %) beträgt und mit Zustandekommen des vermittelten Rechtsgeschäfts (Annahme des Kaufanbots ohne aufschiebende Bedingungen durch den Verkäufer) fällig wird. Der Makler ist als Doppelmakler tätig.

NEU! ZIEGELMASSIV 12 REIHENHÄUSER 2 PKW-STELLPLÄTZE PRO HAUS GARTEN & TERRASSE BELAGSFERTIG FISCHAMEND

Wir weisen darauf hin, dass zwischen dem Vermittler und dem zu vermittelnden Dritten ein familiäres oder wirtschaftliches Naheverhältnis besteht.

Der Vermittler ist als Doppelmakler tätig.

Gartennutzung: JA
Provision: 3% des Kaufpreises zzgl. 20% USt.


Alle Details anzeigen

KONTAKT






 

Lasse dich kostenlos vom Anbieter dieser Immobilie zurückrufen.







 


 
TRISTAR Immobilien
TRISTAR Immobilien
Telefonnummer anzeigen Handy Bearbeiter: +436769017374
 
Bitte dem Makler die FindMyHome.at - ID bekanntgeben: 5466289

Bewertungen dieses Anbieters
Qualitätsmakler
Qualitätsmakler:
2017, 2019, 2020, 2021,
Netiquette
Freundlichkeit

BEWERTUNGEN DIESES ANBIETERS

 
Qualit�tsmakler
Qualitätsmakler
2017, 2019, 2020, 2021
Freundlichkeit
BESONDERS
FREUNDLICH
Netiquette
FINDMYHOME
NETIQUETTE
Auch du kannst bewerten! 7 Tage nach deiner Anfrage erhältst du dafür von uns ein Bewertungsmail.
Alle Infos zu unseren Auszeichnungen und dem FINDMYHOME.AT Qualitätsprogramm findest du hier: Übersicht anzeigen

FINANZIERUNG
?>

Du willst wissen, wie viel dein Umzug kosten wird?

Mach gleich den kostenlosen Preisvergleich und schau, welche seriösen Anbieter in deiner Region günstig deinen Umzug organisieren


ZUM UMZUGS-VERGLEICH
-->

MYHOME BLOG
SuchAgentin auf FindMyHome.at
Unterschiedlichen Rechtsthemen, köstliche Rezepte, neueste Design-Highlights, sowie aktuelle Technik-Tools für Ihr Eigenheim.


FINDMYHOME.AT SUCHAGENTIN
SuchAgentin auf FindMyHome.at
Hallo, soll ich dir ähnliche Immobilien kostenfrei per E-Mail schicken?


ÄHNLICHE IMMOBILIEN
Aehnliche Immobilie - Vorschaubild 1

NEU ZIEGELMASSIV 12 SCHLÜSSELFERTIGE HÄUSER JEWEILS 2 PK... - Objektnr. 5466286

112,00 m² - 4.0 Zimmer
479000 €
PLZ: 2401

Mehr anzeigen

Aehnliche Immobilie - Vorschaubild 2

NEU ZIEGELMASSIV 12 SCHLÜSSELFERTIGE HÄUSER JEWEILS 2 PK... - Objektnr. 5466288

112,59 m² - 4.0 Zimmer
479000 €
PLZ: 2401

Mehr anzeigen

Aehnliche Immobilie - Vorschaubild 3

ZIEGELMASSIVHAUS GARTEN TERRASSE 2 PKW-STELLPLÄTZE EIGEN... - Objektnr. 5582885

107,00 m² - 4.0 Zimmer
479000 €
PLZ: 2401

Mehr anzeigen

Durch die Nutzung unserer Seite erklären Sie sich mit der Verwendung von Cookies zur Verbesserung Ihres Online-Erlebnisses einverstanden. Detaillierte Informationen zu diesem und weiteren Themen erhalten Sie in unserer Datenschutzerklärung.